There are no shipping fees if you buy one of our 2 plan packages "PDF file format" or "5 sets of blueprints + PDF". Shipping charges may apply if you buy additional sets of blueprints.
House plan Woodside (3291)
One-story northwest style house plan with 3 bedrooms ou 2 beds + home office, 2 full bath, cathedral ceiling
Other useful information on this plan
Home plan with an option of 2 or 3 bedrooms with cathedral ceiling.
Drummond House Plans new plan, #3291 also named Woodside will offer comfort and many conveniences to you and your family.
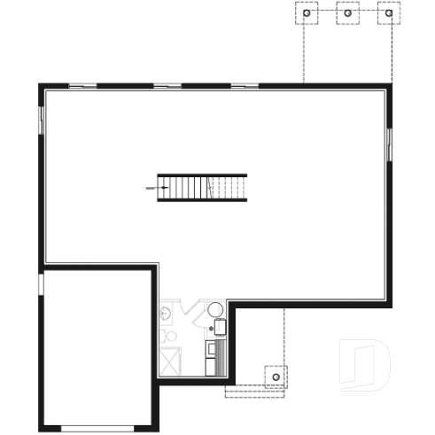
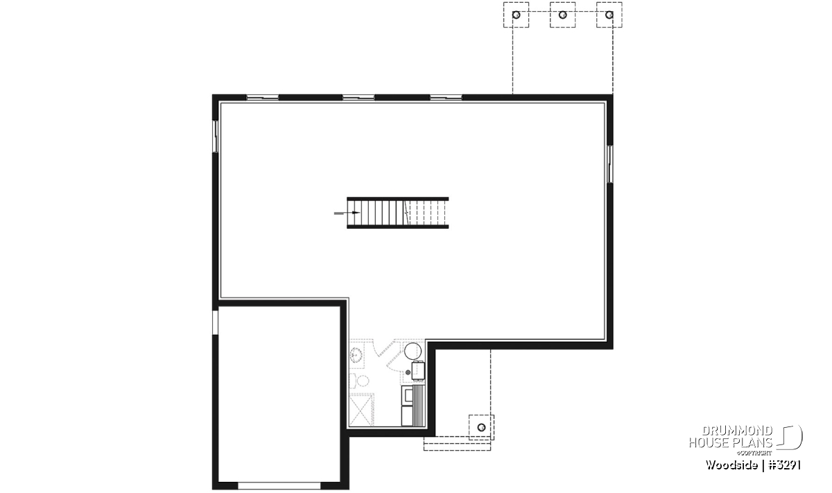
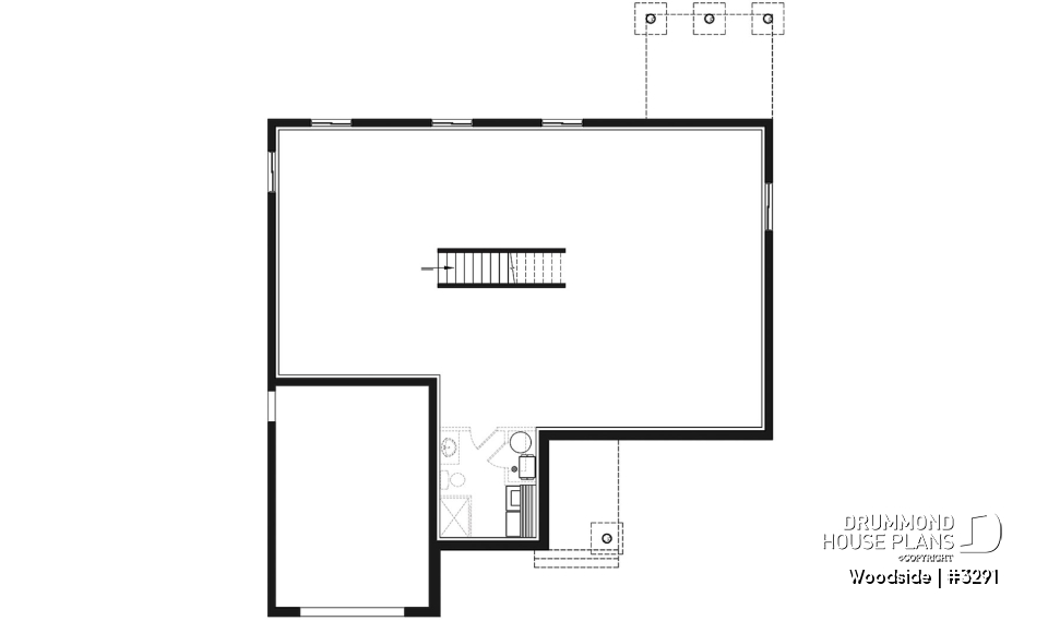
The main entrance is located near a coat closet and is in proximity to the single garage access.
The good sized kitchen offers a practical island that is centered and open to the dining area. In addition, you will enjoy the natural light provided but the two windows and triple patio door located on the back wall that also allows direct access outdoors.
The dining and living area provide open living space and a cathedral ceiling of more than 15 feet.
The main bedroom is of good size and includes 2 walk in style closets as well as access to a private bathroom with shower.
The second bedroom is strategically situated close to a full bathroom and also holds a walk in closet.
The office area is efficiently located near the main entrance of the house and could quite easily be converted to a 3rd bedroom should the need arise.
Last but not least, you will surely appreciate the single car garage with direct access to the house as well as the unfinished basement you can finish as you please.
Distinctive elements
One-story Northwest house plan.
Direct access to house from one-car garage.
Home office, flex room or bedroom # 3.
Master suite with walk-ins and private shower room.
Good size secondary bedroom with walk-in closet and located next to full bathroom.
House has a total of 2 full bathrooms.
Kitchen with island.
Open dining and living room concept, with cathedral ceiling.
One-car garage.
Laundry room located in daylight unfinished basement.
Plan feature(s)
Office / Study / Den, Lunch counter, Walk-in master bed., Cathedral ceiling, Island, Master suite on main
Plan architectural style(s)
. Mountain, . American, . Ranch, . Rustic, . Farmhouse, . Transitional, . Country, . Modern rustic, . Craftsman / Northwest
Previously Viewed Plans
Questions and comments
January 19
Sue briere
Love your plans esp Woodside. Do you have something a little smaller in sq ft 1250 mayb
January 21
Marie
Hello Ms. Briere!
Here are a few smaller home with similar features. If you find one you like and would like to add an ensuite (or else) we can easily adjust the plan to your requirements via our plan modification service.
Plan # 3292: drummondhouseplans.com/plan/oakland-craftsman-northwest-1003263
Plan #3286-V1: drummondhouseplans.com/plan/hygge-2-scandinavian-1003318
Plan 6102-V2: drummondhouseplans.com/plan/nordika-3-craftsman-northwest-1003317
Plan 3154-V1: drummondhouseplans.com/plan/aspen-creek-2-country-1003304
Plan #3153-V1: drummondhouseplans.com/plan/barrington-2-craftsman-northwest-1003276
Plan #3271: drummondhouseplans.com/plan/dahlia-craftsman-northwest-1002852
Plan #3992-V1: drummondhouseplans.com/plan/olympe-2-scandinavian-1003268
Plan 3288: drummondhouseplans.com/plan/urban-valley-transitional-1003216
Plan 3137-BHG: drummondhouseplans.com/plan/miranda-2-craftsman-northwest-1003185
Let us know if you have any question regarding the selection above or want some more proposals?
Regards,
Marie
DrummondHousePlans.com
Phone 1-800-567-5267 ext. 109
Email : [email protected]
Thank you for your comment! It must be approved before being put online, please allow a period of 24 hours.
Error with google reCaptcha! Try again
Here is a brief description of our different plan packages. Please select the plan package that suits your needs. You can change the package at the next step, if necessary.
PDF VERSION OF PLAN:
Complete digital version of plan (pdf format) sent by email (original plan format 18" x 24'' or 24" x 36'')
5 copies of plan + PDF:
Includes: 5 copies of plan, plan in PDF format (reduced size version), materials list.
Foundation type
Additional foundation types are available, a fee may apply. Please indicate your choice on the online order form, or to our customer service representative, when placing your house plan order.
If your desired foundation type is not available, please contact our customer service to receive your free plan modification quote.
Explanation of bonus space types
UNFINISHED BONUS ROOM
The bonus rooms are often planned above the garage and are accessible from the house. They are designed to be converted as an office, a laundry area, a bathroom, a library corner or even an additional bedroom for which homeowners must make sure to have a window that complies with current codes & standards.
STORAGE AREA
Often located above the garage, our storage areas are used only as storage and are usually accessible from the garage via a retractable staircase.
Do you like this plan but want it to be modified to suit your needs?
To add a garage, another bedroom, finish the basement or any other modification, click here and let us know about your desired changes and to get your free quote for the modification of your plan.
Conditions of use
Important copyright notice! Please take note of these copyright conditions before printing:
By printing this house plan, cottage or garage or the floorplan(s), you confirm being informed that every house plan on this website is the exclusive property of Drummond House
Plans and is protected by Canadian copyright law. You are aware that these prints cannot be used to build or even obtain a building permit. The graphic representations of these
models are offered by Drummond House Plans for the sole purpose of allowing you to notate modifications of a model and then take it to one of the Drummond House Plans Canadian dealers for
modification of the plan.
The purchase of a house plan, cottage or garage from Drummond House Plans is mandatory if you wish to build any of our models. The plan purchase allows you to build a single unit; you cannot resell or give your plan to anyone once the house, cottage or garage has been built. If you wish to build the same house, cottage or garage more than once, you need to obtain the licence to this effect. Please contact us for more details.
All plans from Drummond House Plans can only be modified by a licensed Drummond House Plan Canadian dealer. If any other business or individual with no affiliation to Drummond House Plans modifies a Drummond House Plan on your behalf, please ensure this business or individual has a licence to modify this specific plan or you will be subject to prosecution on the same level as the business or individual who modified or reproduced the plan.
For more details, do not hesitate to contact u by e-mail or by phone at 1-800-567-1413.
I agree to respect the conditions above to not reproduce, modify or build a model from Drummond House Plans without previously purchasing a complete house plan.










January 19
Sue briere
Love your plans esp Woodside. Do you have something a little smaller in sq ft 1250 mayb