front - BASE MODEL - 4-5 Bedroom barndominium house plan, 2-car garage, laundry and master suite on main floor - Cambridge

front - BASE MODEL

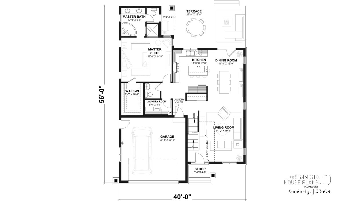
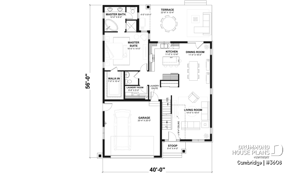
1st level - 4-5 Bedroom barndominium house plan, 2-car garage, laundry and master suite on main floor - Cambridge

1st level

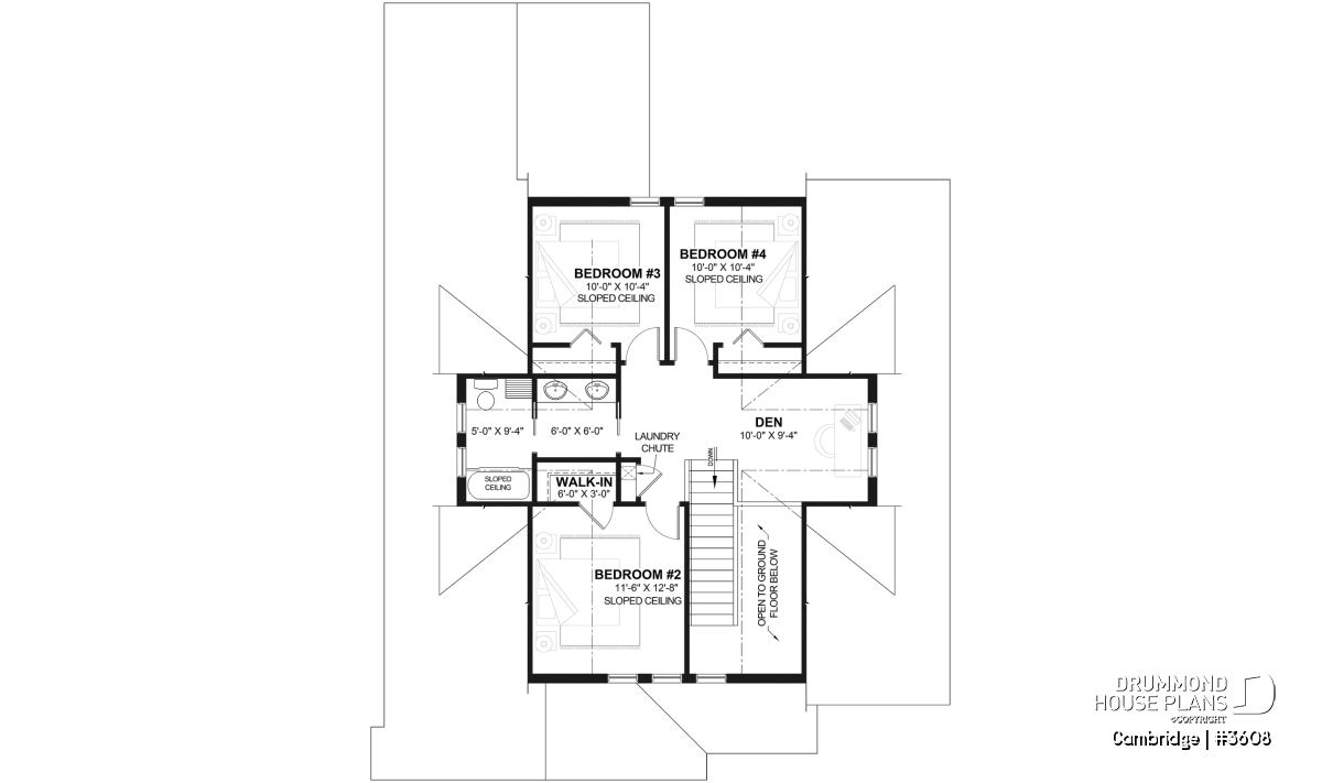
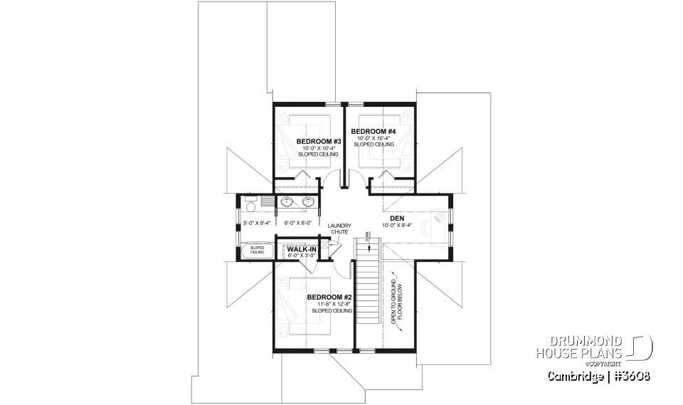
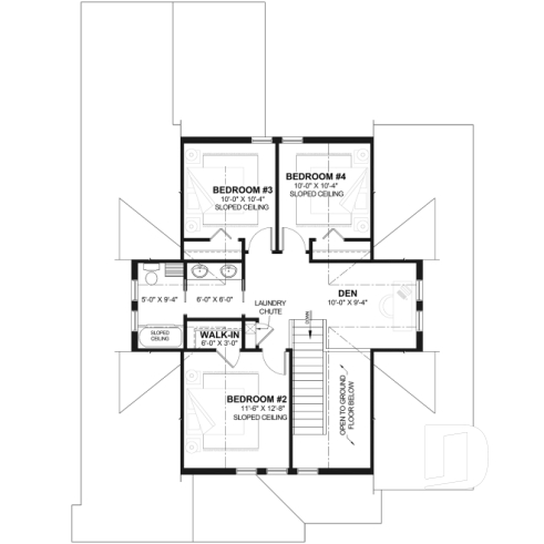
2nd level - 4-5 Bedroom barndominium house plan, 2-car garage, laundry and master suite on main floor - Cambridge

2nd level

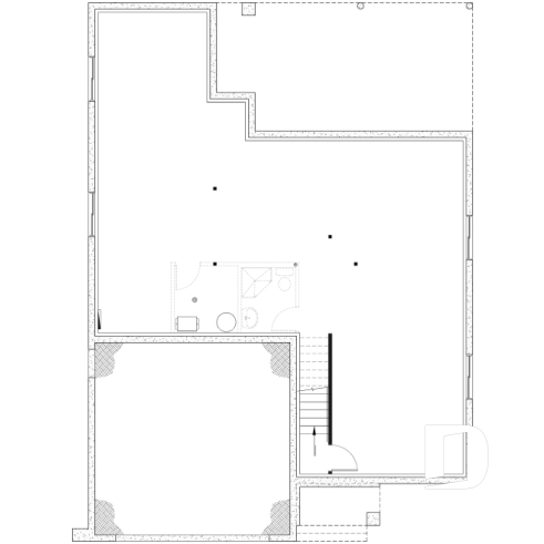
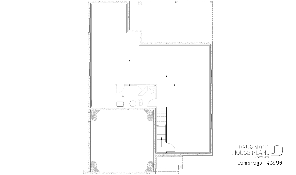
Unfinished basement - 4-5 Bedroom barndominium house plan, 2-car garage, laundry and master suite on main floor - Cambridge

Unfinished basement

rear elevation - Cambridge

rear elevation

Cambridge House plan 3608

4-5 Bedroom barndominium house plan, 2-car garage, laundry and master suite on main floor

Starting from

1740$

Technical details summary Plan #3608
Total living area 2141 sq.ft. Bedroom 4, 5
Full baths 2 Half baths 1
Foundation included Unfinished Basement Garage Two-car garage
Width 40'0" Depth 56'0"

Need help ?

Our experts are here to guide you to make your dream project come to life.

Contact us

Come see us

Visit one of our 30 regional offices.

Our offices

Need a home insurance ?

To get your price, it's just here

Get a quote Advertisement

Additional details

General specifications

Total living area
2141 sq.ft.
1st level
1352 sq.ft.
2nd level
789 sq.ft.
Unfinished basement
1352 sq.ft.
Width
40'0"
Depth
56'0"
Ridge height from top of foundation
25'1"
Exterior wall
2 X 6
Other available foundations (a fee may apply)
Floating Slab, Crawl space, Monolithic Slab
Builder price code
E

Rooms specifications

Bedroom(s)
4, 5
Full baths
2
Half baths
1
Garage type
Two-car garage (438 sq.ft.)
Covered porch area
380 sq.ft.

1st level

Rooms
Sizes
Ceiling
Kitchen
11'0" x 13'6"
~ 9'0"
Dining room
11'4" x 16'0"
~ 9'0"
Living room
14'0" x 19'4"
~ 9'0"
Closet
6'4" x 2'0"
~ 9'0"
Master suite
16'0" x 14'0"
~ 9'0"
Laundry room
8'6" x 5'0"
~ 9'0"
Garage
20'0" x 20'0"
~ 9'0"
Porch
8'4" x 4'0"
N/D
Porch
26'8" x 13'4"
N/D

2nd level

Rooms
Sizes
Ceiling
Reading/computer area
10'0" x 9'4"
~ 8'0"
Full bathroom
11'4" x 9'4"
~ 8'0"
Bedroom
11'6" x 12'8"
~ 8'0"
Bedroom
10'0" x 10'4"
~ 8'0"
Bedroom
10'0" x 10'4"
~ 8'0"
Linen
1'2" x 3'0"
~ 8'0"

Unfinished basement

4 to 5 Bedroom barndominium house plan with 2-car garage and 2.5 bathrooms

.

Distinctive elements

Ceiling at 9' throughout the first level and partially cathedral ceiling in the living room. Master suite provided on the first level with original bathroom and large walk-in closet. Kitchen with central island lunch-counter and large laundry room with integrated laundry chute. Three bedrooms on the second level in addition to a study area in the mezzanine above the stairway.

Plan feature(s)

Mezzanine, Master suite on main, Gound floor laundry room, Island, Walk-in master bed., Library, Separate bath and shower, Double sinks, Ceiling over 8', Open floor layout, Sloped ceiling, Sitting area, 2-Story foyer

Plan architectural style(s)

Modern farmhouse, American, Rustic, Country, Farmhouse, Mountain, A-Frame, Craftsman / Northwest

Similar plans
Logo Drummond House Plans image drummond house plans
The plan Cambridge is protected by the copyright law.

The illustrations shown may differ from the detailed construction plans you will receive, as plans are regularly updated to comply with current building codes.

Photos displayed on this page may reflect modifications made by homeowners and may vary from the original plan.

Learn more

A question or a comment on this plan ?

Contact information

Your request

Add your pictures or photos

To add one or more photos, click or drag your files into the area below. You may upload up to eight JPG or JPEG images. This step is optional.

Sorry, your browser does not support file uploads.