There are no shipping fees if you buy one of our 2 plan packages "PDF file format" or "5 sets of blueprints + PDF". Shipping charges may apply if you buy additional sets of blueprints.
House plan Kelowna 2 (2724-V1)
Country home plan with 4 to 5 bedrooms, garage, office, sheltered terrace and beautiful master suite
Other useful information on this plan
Kelowna 2 (2724-V1) – Rustic Country Home Plan with Home Office, Covered Terrace and Expansion Potential
The Kelowna 2 house plan (2724-V1) stands out for its rustic country charm, beautifully combining warmth, character, and contemporary comfort. Designed to meet the needs of today’s families, this model features an inviting architectural style and a thoughtfully planned interior layout that emphasizes both functionality and everyday comfort.
From the moment you step inside, the 9-foot ceilings throughout the main floor create a bright and spacious atmosphere. The single-car garage, conveniently connected to both the mudroom and walk-in pantry, simplifies daily routines and makes coming home with groceries effortless.
The main floor also includes a compact yet functional home office, designed to accommodate two workstations, making it ideal for remote work or study time. The living room, warm and welcoming, is highlighted by a central fireplace, creating the perfect setting for cozy family evenings.
At the heart of the home, the generous open-concept kitchen features a large island, a practical walk-in pantry, and a seamless connection to the dining area, encouraging shared moments and easy entertaining. Nearby, a convenient powder room for guests, discreetly located near the front entry, enhances main-floor comfort.
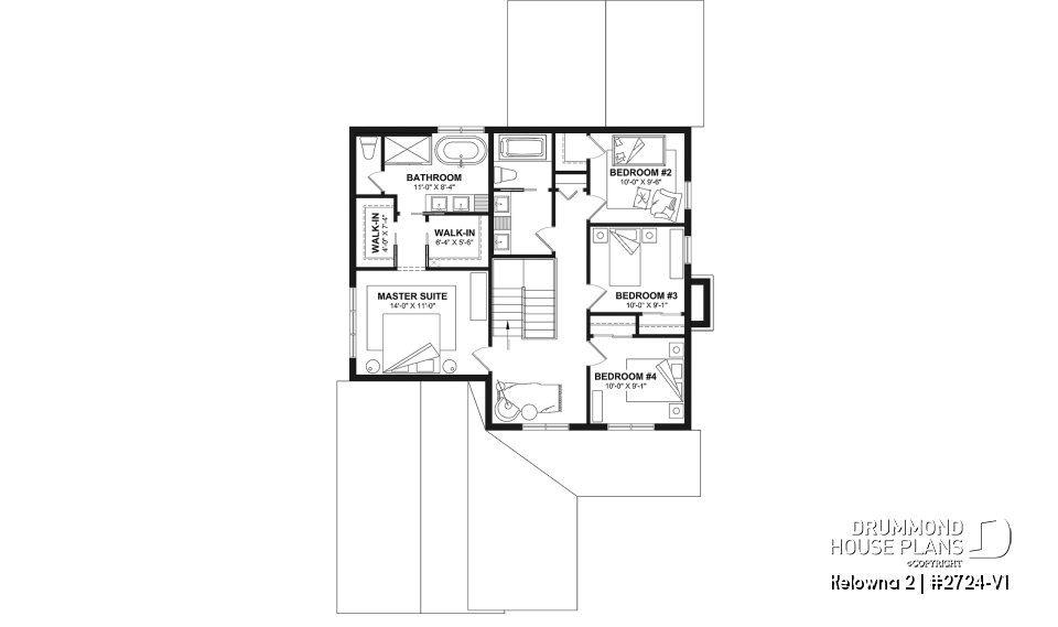
The spacious primary suite offers privacy and relaxation, with two walk-in closets and a full private ensuite bathroom. The well-designed laundry room adds another layer of practicality, featuring a laundry chute from one of the primary suite’s walk-in closets—a thoughtful detail for everyday living.
Upstairs, three additional bedrooms share a full bathroom, while a reading nook or boudoir provides a quiet retreat, perfect for relaxing, reading, or working in peace.
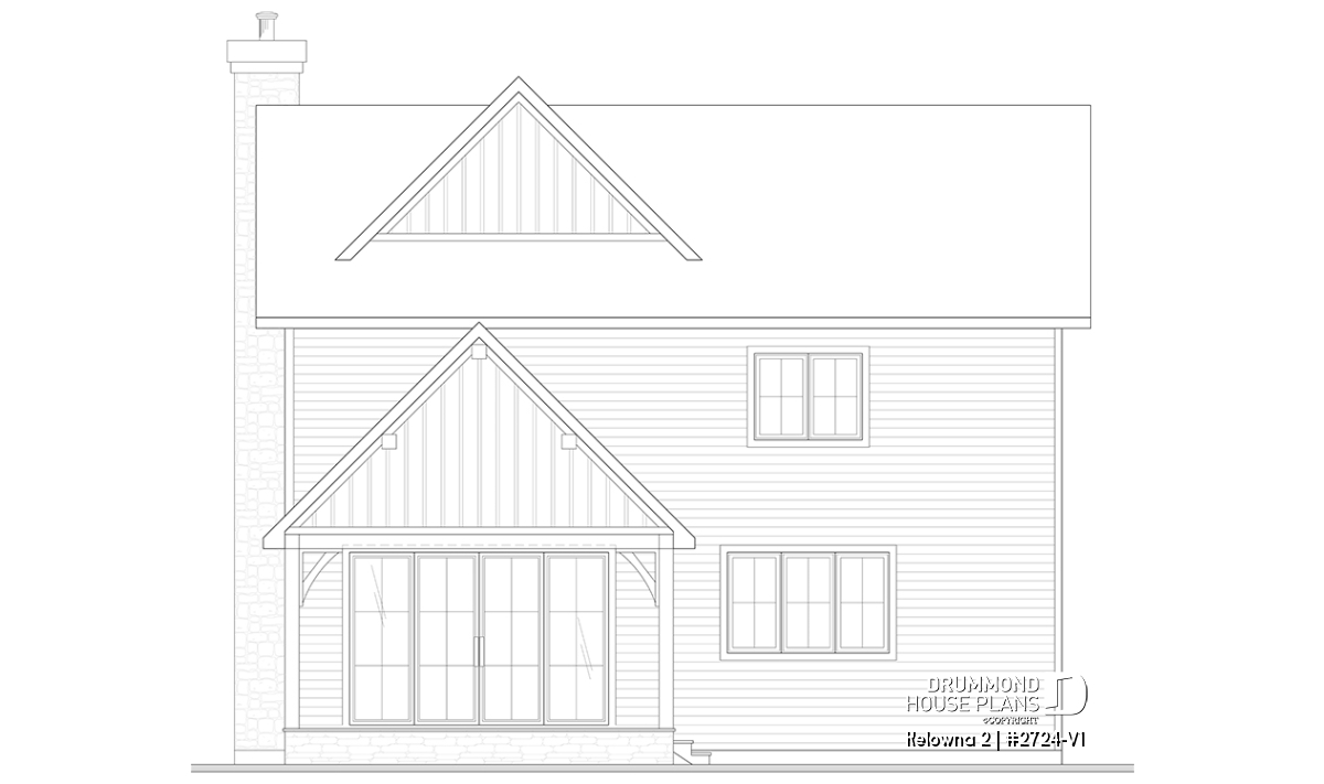
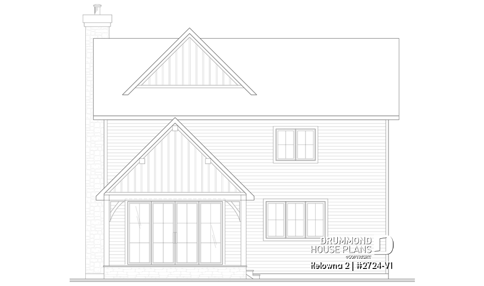
Outdoors, the covered rear terrace with a cathedral ceiling extends the living space and allows you to enjoy the outdoors comfortably throughout the seasons.
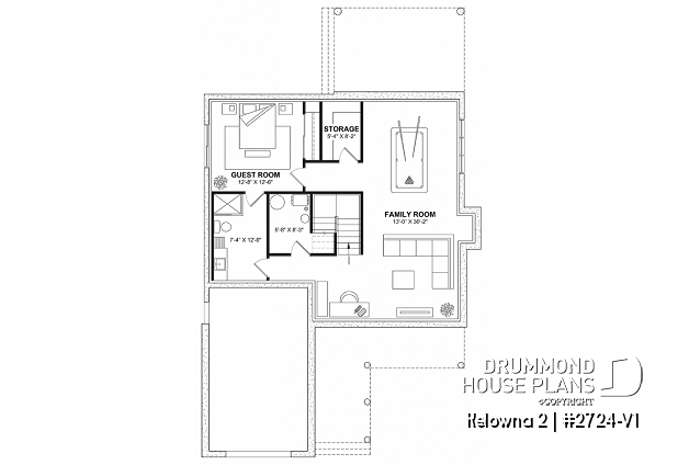
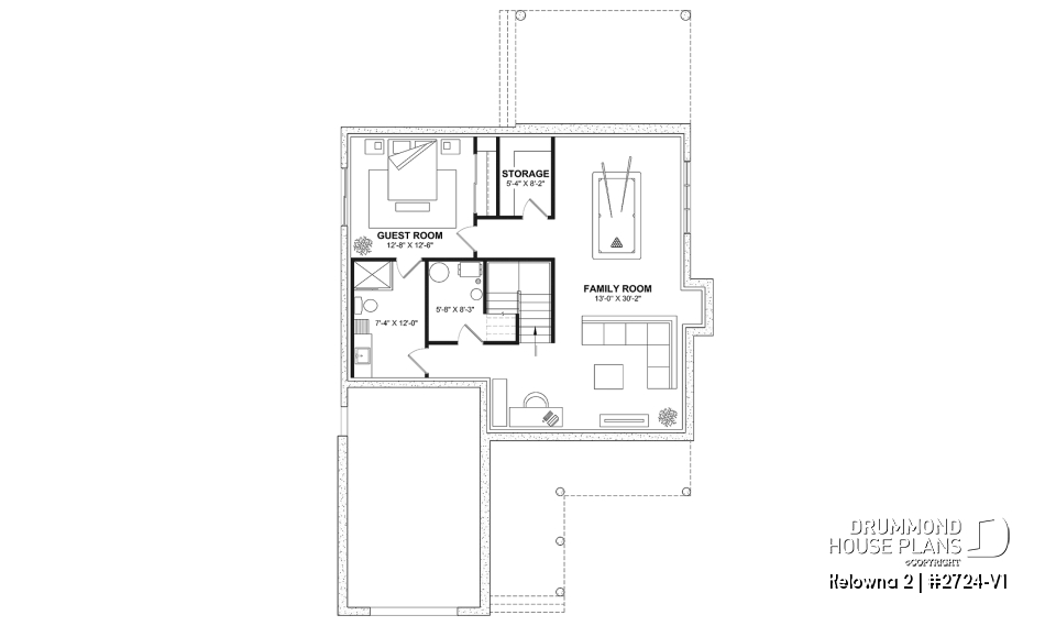
The unfinished basement, included in the base plan, offers excellent future development potential. *As an option, it can be finished to include a fifth bedroom with direct access to a shower room, as well as a large family room, ideal for entertaining guests or enjoying leisure time.
Versatile, warm, and designed to evolve with your lifestyle, the Kelowna 2 (2724-V1) is a home plan that blends timeless charm with modern living—today and for years to come.
---
*If you wish to purchase the finished basement plan, as presented on this plan page, please select this option in the shopping cart, in the "Selection of foundation type" section. If you do not select this option, you will receive the unfinished full basement option, at no extra charge.
Distinctive elements
Country rustic home with charming character, blending warmth and modern comfort.
9’ ceilings throughout the main floor, enhancing the sense of space and openness.
Single-car garage with direct access to the mudroom and walk-in pantry for everyday convenience.
Compact home office, designed to comfortably accommodate two workstations.
Inviting living room with a fireplace, perfect for cozy family evenings.
Spacious open kitchen, featuring a large island, walk-in pantry, and seamless connection to the dining area.
Well-planned laundry room with a laundry chute from one of the primary suite walk-in closets.
Convenient powder room for guests, located near the front entry.
Private primary suite offering two walk-in closets and a full ensuite bathroom.
Three additional bedrooms on the upper floor, sharing a full bathroom.
Upstairs reading nook or boudoir, ideal for a quiet retreat or flexible living space.
Covered rear terrace with cathedral ceiling, perfect for enjoying outdoor living in all seasons.
Unfinished basement included in the base plan, ready for future development.
---
*Optional finished basement:
Addition of a fifth bedroom.
Shower room.
Large family room, ideal for entertainment and relaxation.
---
*If you wish to purchase the finished basement plan, as presented on this plan page, please select this option in the shopping cart, in the "Selection of foundation type" section. If you do not select this option, you will receive the unfinished full basement option, at no extra charge.
Plan feature(s)
Office / Study / Den, Planning desk, Laundry chute, Warparound, Pantry, Guest suite, His/Hers walk-in, Master suite upstairs, Gound floor laundry room, Mud room, Fireplace, Island, Deck, Ceiling over 8', Separate bath and shower, Sitting area, Double sinks, Built-ins, Bench seat(s), Shelves, Open floor layout, Self-Build
Plan architectural style(s)
. Mountain, . Craftsman / Northwest, . Farmhouse, . Rustic, . Country
Similar plans
Previously Viewed Plans
Thank you for your comment! It must be approved before being put online, please allow a period of 24 hours.
Error with google reCaptcha! Try again
Here is a brief description of our different plan packages. Please select the plan package that suits your needs. You can change the package at the next step, if necessary.
PDF VERSION OF PLAN:
Complete digital version of plan (pdf format) sent by email (original plan format 18" x 24'' or 24" x 36'')
5 copies of plan + PDF:
Includes: 5 copies of plan, plan in PDF format (reduced size version), materials list.
Foundation type
Additional foundation types are available, a fee may apply. Please indicate your choice on the online order form, or to our customer service representative, when placing your house plan order.
If your desired foundation type is not available, please contact our customer service to receive your free plan modification quote.
Explanation of bonus space types
UNFINISHED BONUS ROOM
The bonus rooms are often planned above the garage and are accessible from the house. They are designed to be converted as an office, a laundry area, a bathroom, a library corner or even an additional bedroom for which homeowners must make sure to have a window that complies with current codes & standards.
STORAGE AREA
Often located above the garage, our storage areas are used only as storage and are usually accessible from the garage via a retractable staircase.
Do you like this plan but want it to be modified to suit your needs?
To add a garage, another bedroom, finish the basement or any other modification, click here and let us know about your desired changes and to get your free quote for the modification of your plan.
Conditions of use
Important copyright notice! Please take note of these copyright conditions before printing:
By printing this house plan, cottage or garage or the floorplan(s), you confirm being informed that every house plan on this website is the exclusive property of Drummond House
Plans and is protected by Canadian copyright law. You are aware that these prints cannot be used to build or even obtain a building permit. The graphic representations of these
models are offered by Drummond House Plans for the sole purpose of allowing you to notate modifications of a model and then take it to one of the Drummond House Plans Canadian dealers for
modification of the plan.
The purchase of a house plan, cottage or garage from Drummond House Plans is mandatory if you wish to build any of our models. The plan purchase allows you to build a single unit; you cannot resell or give your plan to anyone once the house, cottage or garage has been built. If you wish to build the same house, cottage or garage more than once, you need to obtain the licence to this effect. Please contact us for more details.
All plans from Drummond House Plans can only be modified by a licensed Drummond House Plan Canadian dealer. If any other business or individual with no affiliation to Drummond House Plans modifies a Drummond House Plan on your behalf, please ensure this business or individual has a licence to modify this specific plan or you will be subject to prosecution on the same level as the business or individual who modified or reproduced the plan.
For more details, do not hesitate to contact u by e-mail or by phone at 1-800-567-1413.
I agree to respect the conditions above to not reproduce, modify or build a model from Drummond House Plans without previously purchasing a complete house plan.




















