There are no shipping fees if you buy one of our 2 plan packages "PDF file format" or "5 sets of blueprints + PDF". Shipping charges may apply if you buy additional sets of blueprints.
House plan Aspen Creek (3154)
Rustic home design bungalow with 3 bedrooms on main floor, open floor plan concept, fireplace
Other useful information on this plan
New house plan with modern accents, 3 bedrooms & a two-sided fireplace!
New transitional style house plan, with a rustic look and warm colors, also incorporates elements borrowed from the Modern house style such as windows with dark moldings for example. This new Drummond House Plans, rustic modern home design, named Aspen Creek, or plan # 3154, will charm you and here’s why…
The entrance porch offers a wardrobe and is slightly set back from the living room, keeping the cold/hot away from the common areas, convenient during our winters/summers! The lounge (living room) and the dining room are in semi-open concept so that a central double-sided fireplace is located between the lounge and dining / kitchen area. The dining room offers a convenient patio door leading to the backyard. Moreover, the dining room is also open to the kitchen allowing a good circulation and communication between the occupants and the cook! The kitchen has a central island that can easily accommodate 3 guests.
The master bedroom offers a large walk-in closet, as well as a partial cathedral ceiling, in the window area. It is located immediately next to the full family bathroom. The latter offers a very efficient arrangement with separate shower and bath, toilet, vanity and small linen. A laundry area is provided on the ground floor but could easily be relocated to the basement according to your needs.
The two secondary bedrooms have a wardrobe each and receive natural light from a large window (each).
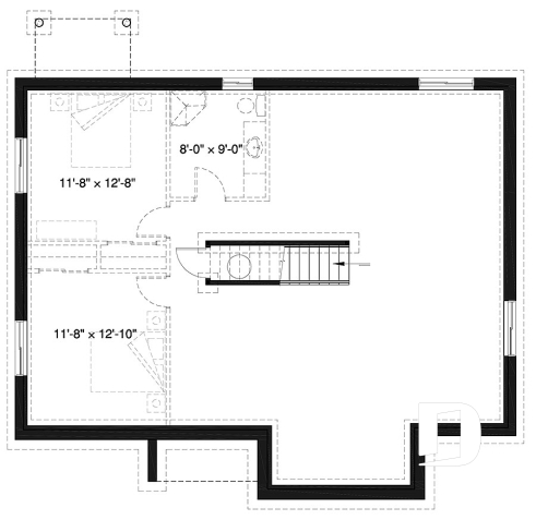
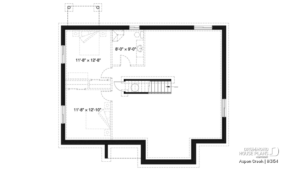
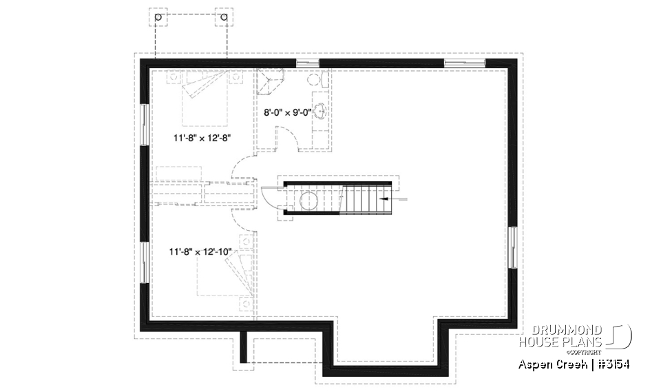
We thought of an *optional efficient basement layout for the future: two more bedrooms and a shower room. The proposal is not included in the plan that you will receive, please select the "finished foundation option" if you with to purchase this option.
It is possible to modify or adjust any of our plans on our website, whether it is a basement layout, enlarging the model, adding a single or double garage, everything is feasible! Simply contact us for details by phone: 1-800-567-5267 or by email: [email protected]
Distinctive elements
Transitional home with rustic country inspiration, featuring a stylish and on-trend design.
Welcoming entry with closed vestibule and closet for everyday organization.
Open-concept dining and living areas highlighted by a centrally located fireplace.
Functional kitchen with a central island, ideal for daily living and entertaining.
Primary bedroom with a spacious walk-in closet and partial cathedral ceiling near the windows, adding light and volume.
Two secondary bedrooms on the main floor, each with its own closet.
Full bathroom featuring a large shower and a separate bathtub for added comfort.
Convenient laundry area located on the main floor.
*Optional basement layout not included with the plan, featuring two additional bedrooms and a shower room.
Plan feature(s)
Fireplace, Gound floor laundry room, Walk-in master bed., Separate bath and shower, Island, Builder, Self-Build
Plan architectural style(s)
. Country, . Ranch, . American, . Rustic, . Craftsman / Northwest, . Transitional, . Traditional, . Modern rustic, . Mountain, Modern Craftsman, . Farmhouse
Similar plans
Previously Viewed Plans
Thank you for your comment! It must be approved before being put online, please allow a period of 24 hours.
Error with google reCaptcha! Try again
Here is a brief description of our different plan packages. Please select the plan package that suits your needs. You can change the package at the next step, if necessary.
PDF VERSION OF PLAN:
Complete digital version of plan (pdf format) sent by email (original plan format 18" x 24'' or 24" x 36'')
5 copies of plan + PDF:
Includes: 5 copies of plan, plan in PDF format (reduced size version), materials list.
Foundation type
Additional foundation types are available, a fee may apply. Please indicate your choice on the online order form, or to our customer service representative, when placing your house plan order.
If your desired foundation type is not available, please contact our customer service to receive your free plan modification quote.
Explanation of bonus space types
UNFINISHED BONUS ROOM
The bonus rooms are often planned above the garage and are accessible from the house. They are designed to be converted as an office, a laundry area, a bathroom, a library corner or even an additional bedroom for which homeowners must make sure to have a window that complies with current codes & standards.
STORAGE AREA
Often located above the garage, our storage areas are used only as storage and are usually accessible from the garage via a retractable staircase.
Do you like this plan but want it to be modified to suit your needs?
To add a garage, another bedroom, finish the basement or any other modification, click here and let us know about your desired changes and to get your free quote for the modification of your plan.
Conditions of use
Important copyright notice! Please take note of these copyright conditions before printing:
By printing this house plan, cottage or garage or the floorplan(s), you confirm being informed that every house plan on this website is the exclusive property of Drummond House
Plans and is protected by Canadian copyright law. You are aware that these prints cannot be used to build or even obtain a building permit. The graphic representations of these
models are offered by Drummond House Plans for the sole purpose of allowing you to notate modifications of a model and then take it to one of the Drummond House Plans Canadian dealers for
modification of the plan.
The purchase of a house plan, cottage or garage from Drummond House Plans is mandatory if you wish to build any of our models. The plan purchase allows you to build a single unit; you cannot resell or give your plan to anyone once the house, cottage or garage has been built. If you wish to build the same house, cottage or garage more than once, you need to obtain the licence to this effect. Please contact us for more details.
All plans from Drummond House Plans can only be modified by a licensed Drummond House Plan Canadian dealer. If any other business or individual with no affiliation to Drummond House Plans modifies a Drummond House Plan on your behalf, please ensure this business or individual has a licence to modify this specific plan or you will be subject to prosecution on the same level as the business or individual who modified or reproduced the plan.
For more details, do not hesitate to contact u by e-mail or by phone at 1-800-567-1413.
I agree to respect the conditions above to not reproduce, modify or build a model from Drummond House Plans without previously purchasing a complete house plan.









