There are no shipping fees if you buy one of our 2 plan packages "PDF file format" or "5 sets of blueprints + PDF". Shipping charges may apply if you buy additional sets of blueprints.
House plan Chai 2 (6104-V1)
2 bedroom affordable ranch style house plan with great kitchen et open floor plan concept
Other useful information on this plan
Compact 2 bedroom ranch style house plan with great kitchen!
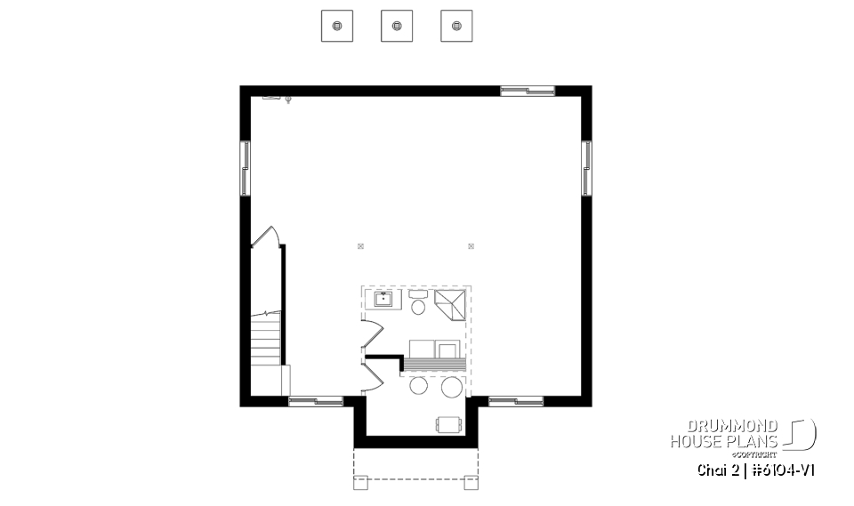
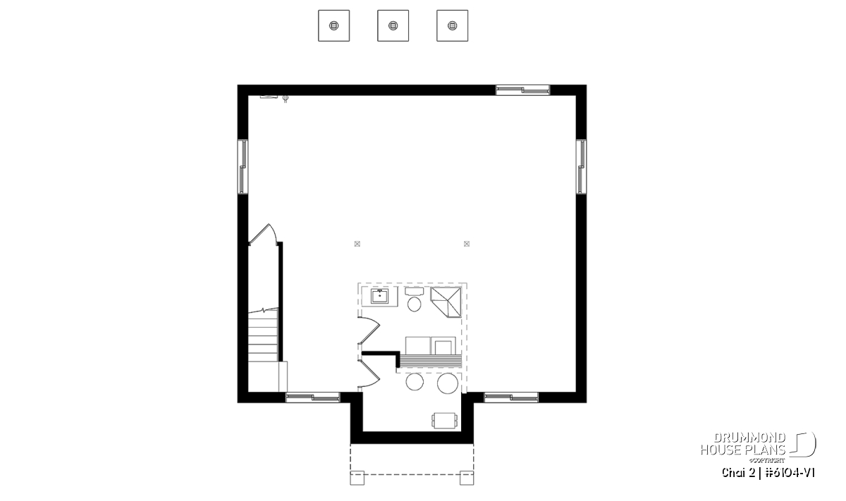
This bungalow, CHAI 2 (6104-V1), is a modern and rustic 1,102-square-foot house offering 2 bedrooms and 1 bathroom. The interior architecture has been designed to give an effect of space to this small plan. With 9’ ceilings throughout the main floor and the open layout, the challenge is successfully done.
The exterior siding is available in several color choices. In addition, the masonry at the entrance considerably favors the front of the house by giving a more chic effect. Several windows are also installed, offering light and thus complete the chic-modern style.
Entrance to the house is through the covered porch. A well-thought vestibule with two double wardrobes on each side and another single wardrobe offers all the necessary storage for everyday accessories and even more.
Just a little further on is the first bedroom. Perfect for a work home office or a children's room, it offers 2 windows and a simple wardrobe with a door.
Continuing on, there is the kitchen with a lunch counter that can easily accommodate 4 people, a double sink and dishwasher. A huge walk-in style pantry with windows, frees up the kitchen to, once again, offer another kind of enlargement effect. The kitchen overlooks the dining room, with a patio door to access the balcony, and the living room with two corner windows in addition to two additional others, a little further, in the space of the stairs to go down in the convertible basement. Interestingly, the stairs are at the back of the kitchen. They are almost completely concealed. Another great way not to feel like you're wasting space.
Opposite the stairs, you have the full bathroom with to a double sink with storage. Finally, the second bedroom, larger than the first, has two communicating double wardrobes. It sits at the back for added peace of mind.
This house, although small, cleverly satisfies several needs.
Distinctive elements
Small and affordable 2 bedroom modern rustic style house plan.
9' ceiling on main floor.
Entrance with 2 large coat closets.
2 bedrooms.
Large family bathroom with separate bath and shower stall.
Kitchen with counter and large pantry.
Unfinished daylight basement.
Plan feature(s)
Pantry, Lunch counter, Ceiling over 8', Open floor layout, Separate bath and shower, Double sinks, Builder, Self-Build
Plan architectural style(s)
. Craftsman / Northwest, . Contemporary, . American, . Ranch, . Transitional, . Country, . Modern rustic, . Mountain, . Farmhouse, Modern farmhouse
Similar plans
Previously Viewed Plans
Thank you for your comment! It must be approved before being put online, please allow a period of 24 hours.
Error with google reCaptcha! Try again
Here is a brief description of our different plan packages. Please select the plan package that suits your needs. You can change the package at the next step, if necessary.
PDF VERSION OF PLAN:
Complete digital version of plan (pdf format) sent by email (original plan format 18" x 24'' or 24" x 36'')
5 copies of plan + PDF:
Includes: 5 copies of plan, plan in PDF format (reduced size version), materials list.
Foundation type
Additional foundation types are available, a fee may apply. Please indicate your choice on the online order form, or to our customer service representative, when placing your house plan order.
If your desired foundation type is not available, please contact our customer service to receive your free plan modification quote.
Explanation of bonus space types
UNFINISHED BONUS ROOM
The bonus rooms are often planned above the garage and are accessible from the house. They are designed to be converted as an office, a laundry area, a bathroom, a library corner or even an additional bedroom for which homeowners must make sure to have a window that complies with current codes & standards.
STORAGE AREA
Often located above the garage, our storage areas are used only as storage and are usually accessible from the garage via a retractable staircase.
Do you like this plan but want it to be modified to suit your needs?
To add a garage, another bedroom, finish the basement or any other modification, click here and let us know about your desired changes and to get your free quote for the modification of your plan.
Conditions of use
Important copyright notice! Please take note of these copyright conditions before printing:
By printing this house plan, cottage or garage or the floorplan(s), you confirm being informed that every house plan on this website is the exclusive property of Drummond House
Plans and is protected by Canadian copyright law. You are aware that these prints cannot be used to build or even obtain a building permit. The graphic representations of these
models are offered by Drummond House Plans for the sole purpose of allowing you to notate modifications of a model and then take it to one of the Drummond House Plans Canadian dealers for
modification of the plan.
The purchase of a house plan, cottage or garage from Drummond House Plans is mandatory if you wish to build any of our models. The plan purchase allows you to build a single unit; you cannot resell or give your plan to anyone once the house, cottage or garage has been built. If you wish to build the same house, cottage or garage more than once, you need to obtain the licence to this effect. Please contact us for more details.
All plans from Drummond House Plans can only be modified by a licensed Drummond House Plan Canadian dealer. If any other business or individual with no affiliation to Drummond House Plans modifies a Drummond House Plan on your behalf, please ensure this business or individual has a licence to modify this specific plan or you will be subject to prosecution on the same level as the business or individual who modified or reproduced the plan.
For more details, do not hesitate to contact u by e-mail or by phone at 1-800-567-1413.
I agree to respect the conditions above to not reproduce, modify or build a model from Drummond House Plans without previously purchasing a complete house plan.









