There are no shipping fees if you buy one of our 2 plan packages "PDF file format" or "5 sets of blueprints + PDF". Shipping charges may apply if you buy additional sets of blueprints.
House plan Auburn (6101)
Charming 3 bedroom Modern Rustic home plan, optional finished basement, home theater and large covered deck
Other useful information on this plan
Warm and Timeless Single-Story Home with Open-Concept Living and Cathedral-Ceiling Covered Terrace – A Charming, Family-Friendly Home Design
This warm and inviting single-story home instantly captures the eye with its timeless design and beautifully selected materials. Vertical siding, brick accents, and elegant wood gables create a chic modern-farmhouse look, while the covered front porch offers year-round protection and a welcoming first impression.
Inside, the entryway is both stylish and functional, featuring a built-in mudroom with shelving and a convenient bench, plus an enclosed storage area with a sliding barn-style door. At the front of the home, two bedrooms and a full bathroom provide comfort and privacy. The main bathroom includes a separate tub and shower, a double vanity, and even a built-in laundry chute—a thoughtful touch families truly appreciate. The primary bedroom stands out with abundant natural light from three well-placed windows and a spacious walk-in closet.
The heart of the home unfolds into a bright open-concept living space where the kitchen, dining room, and great room flow beautifully together. The large kitchen island is perfect for gatherings, while the walk-in pantry offers generous storage for busy families. A stunning double-sided central fireplace enhances both the dining area and the living room, becoming a defining architectural feature that adds warmth and character.
From the dining room, large doors open onto one of the home's most impressive highlights: a covered rear terrace with a breathtaking cathedral ceiling. This outdoor living area creates a seamless extension of the home's interior and is perfect for relaxed evenings, summer meals, or cozy fall afternoons.
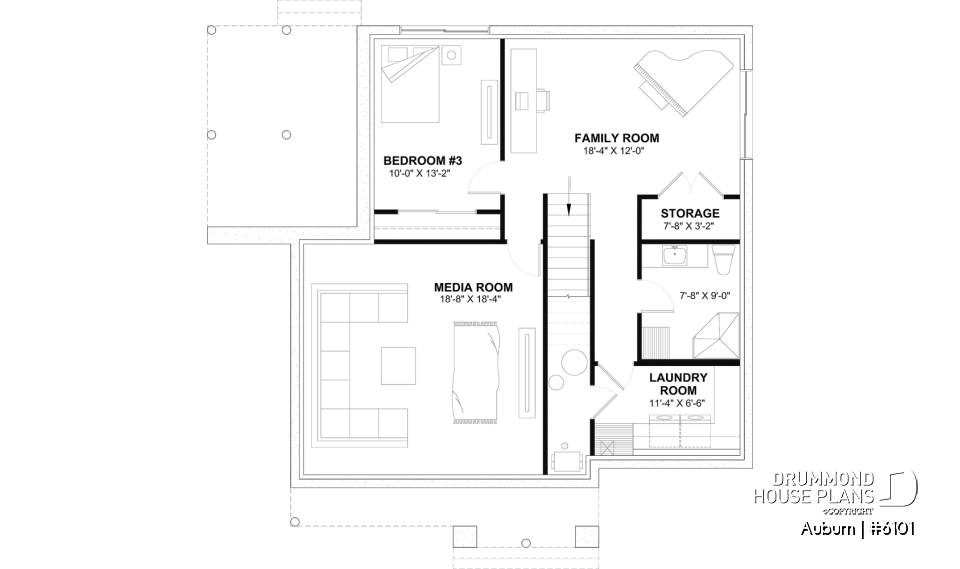
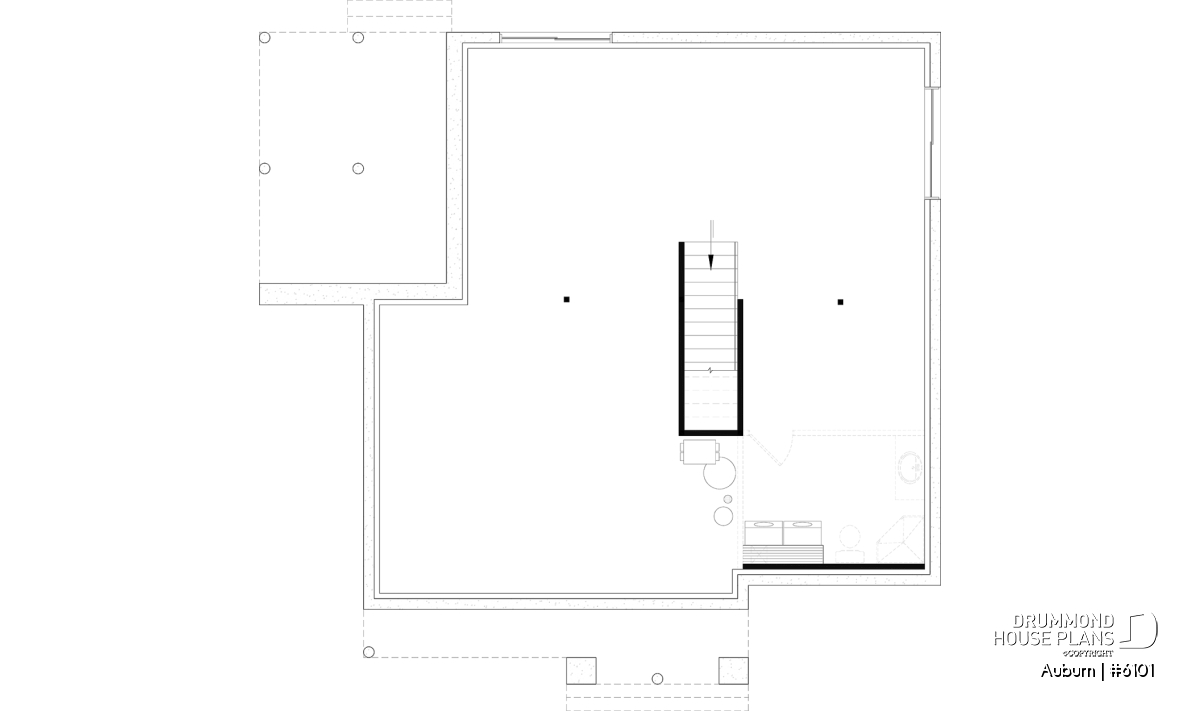
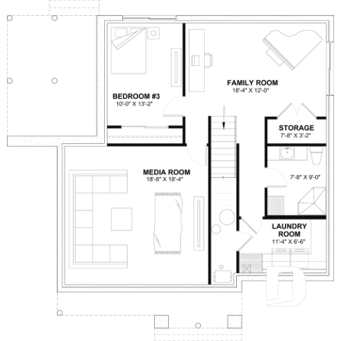
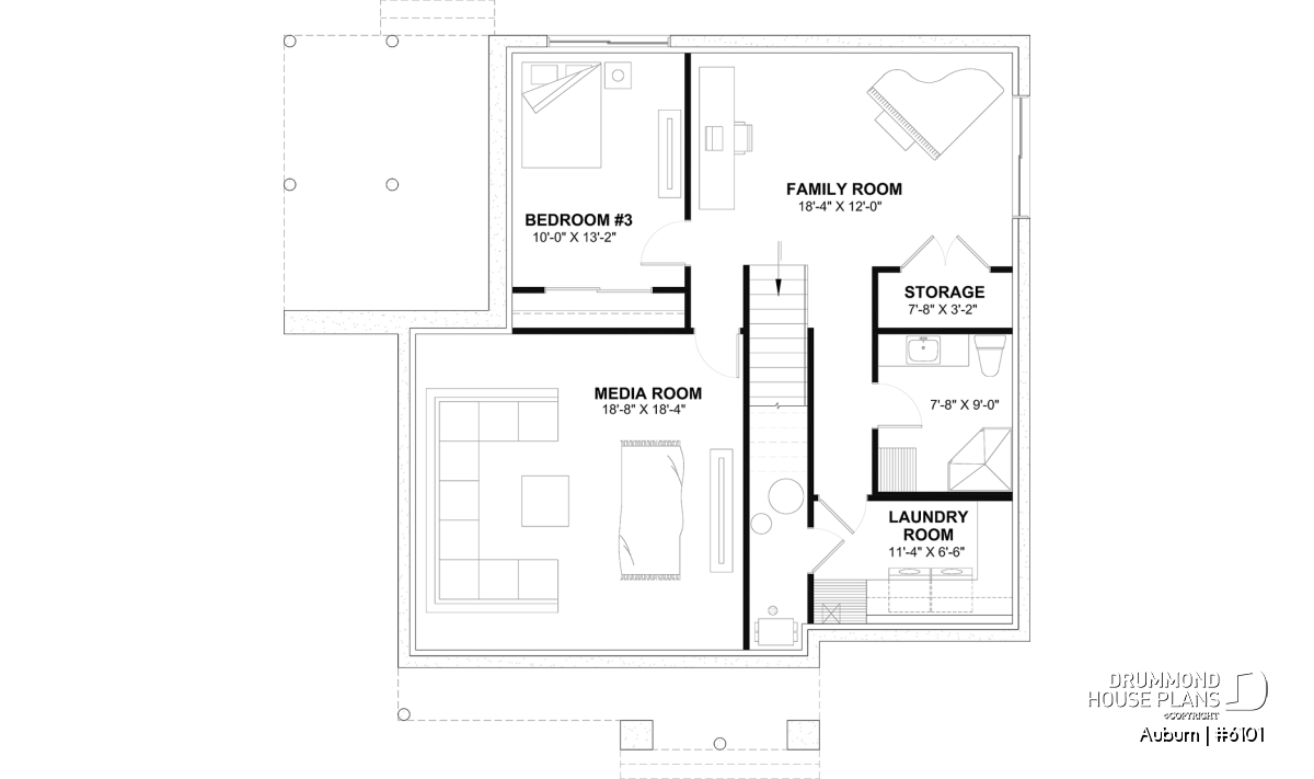
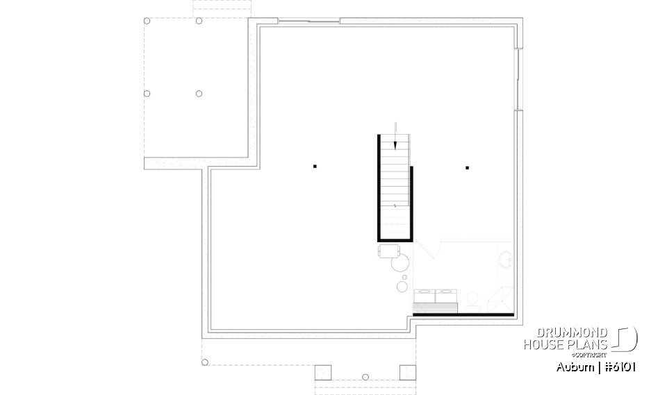
The unfinished basement offers tremendous potential to tailor the space to your lifestyle. In its fully finished version, it includes a spacious family room, an impressive 18' x 18' home theater, a third bedroom, and a second bathroom with a corner shower. A full laundry room with a countertop workspace and a laundry chute from the main floor completes this level, adding practicality and convenience.
This thoughtfully designed home blends charm, warmth, functionality, and modern farmhouse appeal. It’s a plan crafted for families who want a welcoming and flexible space that adapts beautifully to every stage of life.
Distinctive elements
Warm and inviting single-story home designed with timeless, carefully selected materials.
Beautiful open-concept layout facing the rear yard, maximizing natural light and outdoor views.
Covered front porch offering protection from the elements and a welcoming first impression.
Functional front entry with a built-in mudroom, complete with shelving and a convenient bench.
Spacious kitchen featuring a central island and large pantry—perfect for cooking and entertaining.
Dining area fully open to both the kitchen and the living room for seamless flow.
Central double-sided fireplace, adding warmth and ambiance to two rooms at once.
Main-floor primary bedroom with a walk-in closet.
Full bathroom with separate tub and shower, plus a double vanity for added comfort.
Covered rear terrace with a cathedral ceiling, ideal for outdoor dining or relaxing year-round.
*Unfinished basement ready to be customized to your needs.
---
*Optional Finished Basement
Adds a third bedroom, a spacious family room, and a home theater.
Dedicated laundry room with a convenient laundry chute from the main floor.
Additional shower room for flexibility and comfort.
Plan feature(s)
Laundry chute, Deck, Mud room, Walk-in master bed., Pantry, Island, Open floor layout, Fireplace, Media Room, Planning desk, Bench seat(s), Shelves, Separate bath and shower, Double sinks
Plan architectural style(s)
. Craftsman / Northwest, . American, . Ranch, . Rustic, . Traditional, . Cottage, chalet, cabin, . Country, . Vacation and waterfront, . Modern / Design, . Modern rustic
Similar plans
Previously Viewed Plans
Thank you for your comment! It must be approved before being put online, please allow a period of 24 hours.
Error with google reCaptcha! Try again
Here is a brief description of our different plan packages. Please select the plan package that suits your needs. You can change the package at the next step, if necessary.
PDF VERSION OF PLAN:
Complete digital version of plan (pdf format) sent by email (original plan format 18" x 24'' or 24" x 36'')
5 copies of plan + PDF:
Includes: 5 copies of plan, plan in PDF format (reduced size version), materials list.
Foundation type
Additional foundation types are available, a fee may apply. Please indicate your choice on the online order form, or to our customer service representative, when placing your house plan order.
If your desired foundation type is not available, please contact our customer service to receive your free plan modification quote.
Explanation of bonus space types
UNFINISHED BONUS ROOM
The bonus rooms are often planned above the garage and are accessible from the house. They are designed to be converted as an office, a laundry area, a bathroom, a library corner or even an additional bedroom for which homeowners must make sure to have a window that complies with current codes & standards.
STORAGE AREA
Often located above the garage, our storage areas are used only as storage and are usually accessible from the garage via a retractable staircase.
Do you like this plan but want it to be modified to suit your needs?
To add a garage, another bedroom, finish the basement or any other modification, click here and let us know about your desired changes and to get your free quote for the modification of your plan.
Conditions of use
Important copyright notice! Please take note of these copyright conditions before printing:
By printing this house plan, cottage or garage or the floorplan(s), you confirm being informed that every house plan on this website is the exclusive property of Drummond House
Plans and is protected by Canadian copyright law. You are aware that these prints cannot be used to build or even obtain a building permit. The graphic representations of these
models are offered by Drummond House Plans for the sole purpose of allowing you to notate modifications of a model and then take it to one of the Drummond House Plans Canadian dealers for
modification of the plan.
The purchase of a house plan, cottage or garage from Drummond House Plans is mandatory if you wish to build any of our models. The plan purchase allows you to build a single unit; you cannot resell or give your plan to anyone once the house, cottage or garage has been built. If you wish to build the same house, cottage or garage more than once, you need to obtain the licence to this effect. Please contact us for more details.
All plans from Drummond House Plans can only be modified by a licensed Drummond House Plan Canadian dealer. If any other business or individual with no affiliation to Drummond House Plans modifies a Drummond House Plan on your behalf, please ensure this business or individual has a licence to modify this specific plan or you will be subject to prosecution on the same level as the business or individual who modified or reproduced the plan.
For more details, do not hesitate to contact u by e-mail or by phone at 1-800-567-1413.
I agree to respect the conditions above to not reproduce, modify or build a model from Drummond House Plans without previously purchasing a complete house plan.




















