There are no shipping fees if you buy one of our 2 plan packages "PDF file format" or "5 sets of blueprints + PDF". Shipping charges may apply if you buy additional sets of blueprints.
                                                                                                                                                                                                                                                                                                                                                                                                                                                                                                                                                                                                                                                                                                                                                                          House plan Bolton  (6109)                
                                  
              
              Budget friendly floor plans with 3 bedrooms in daylight basement and family space on main floor
Other useful information on this plan
House with a look that is both Farmhouse and modern cubic, and offering lots of natural light!
The BOLTON house plan (# 6109) offers 2080 square feet thoughtfully laid out on the main floor and basement. Indeed, this magnificent model, both Farmhouse and modern cubic style, offers an original floor maximizing space while remaining affordable. Discover below this beautiful single-storey plan with 3 bedrooms on the same floor, 2.5 bathrooms and a garage.
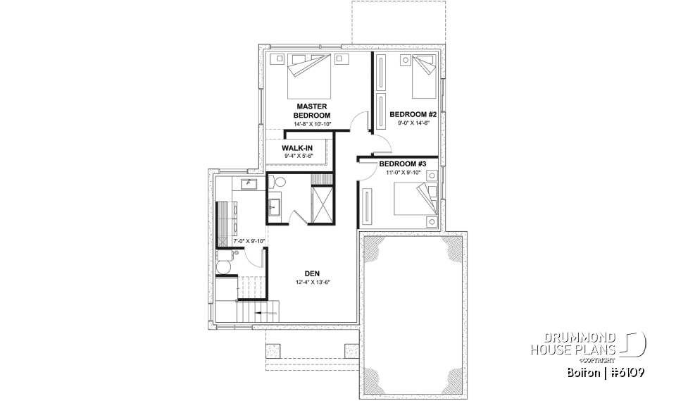
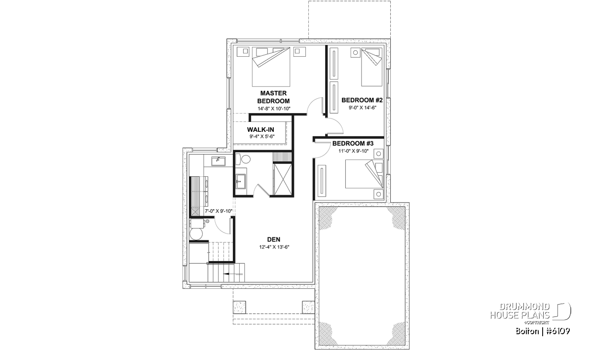
It should be noted that with the exception of the living room and the dining room, all the ceilings of the basement and the ground floor are at a height of 9 feet, which gives a nice amplitude to the different rooms. The bright daylight finished basement includes the parents' bedroom with large walk-in closet, as well as 2 secondary bedrooms. In addition, a shower room and a laundry room with laundry chute, as well as a small living room (or games room) complete the layout of this original and efficient floor.
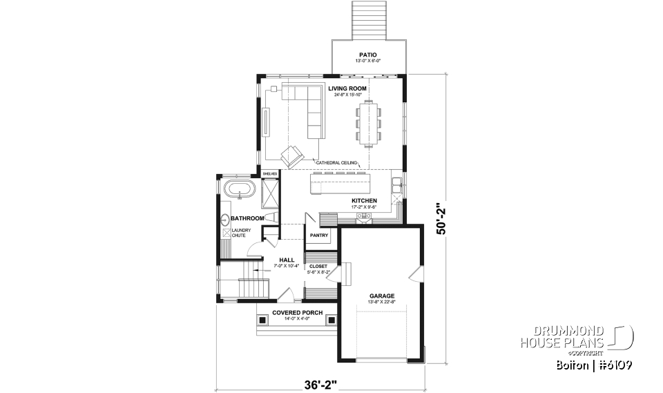
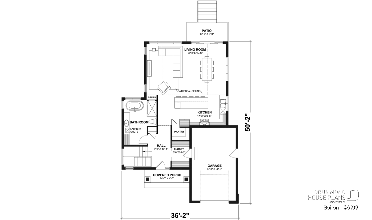
On the main upper floor, you will find a large mudroom between the main entrance and the garage. Then 2nd full bathroom with separate bath and shower, as well as laundry chute. The cathedral ceiling in the living room and dining room offers an imposing fenestration allowing a panoramic view and lots of natural light in this area. The kitchen is of good size and includes a pantry and a large island that can accommodate at least 5 guests.
The BOLTON house plan offers a different and original floor plan layout that will appeal to families looking for an efficient house with lots of light!
Distinctive elements
Modern farmhouse house plan maximizing square footage.
All the ceilings are 9 'both on the ground floor and upstairs except for cathedral ceiling in dining and living room. 
Kitchen area, dining room and living room are on the ground floor.
The 3 bedrooms and laundry room are in the daylight basement.
A large mudroom at the entrance. 
2 full bathrooms. 
Kitchen with large island and pantry. 
Open concept and cathedral ceiling at the back of the house.
Parents bedroom with walk-in closet.
Laundry room with laundry chute.
Small living room or games room.
Garage a car.
Plan feature(s)
Ceiling over 8', Cathedral ceiling, Panoramic view, Mud room, Separate bath and shower, Pantry, Island, Laundry chute, Walk-in master bed., Game room
Plan architectural style(s)
. Scandinavian, Modern Craftsman, Modern farmhouse, . Transitional, . Modern / Design, . Vacation and waterfront, . Contemporary, . Mountain, . Modern rustic
Similar plans
Previously Viewed Plans
Thank you for your comment! It must be approved before being put online, please allow a period of 24 hours.
Error with google reCaptcha! Try again
Here is a brief description of our different plan packages. Please select the plan package that suits your needs. You can change the package at the next step, if necessary.
PDF VERSION OF PLAN:
Complete digital version of plan (pdf format) sent by email (original plan format 18" x 24'' or 24" x 36'')
5 copies of plan + PDF:
Includes: 5 copies of plan, plan in PDF format (reduced size version), materials list.
Foundation type
Additional foundation types are available, a fee may apply. Please indicate your choice on the online order form, or to our customer service representative, when placing your house plan order.
If your desired foundation type is not available, please contact our customer service to receive your free plan modification quote.
Explanation of bonus space types
UNFINISHED BONUS ROOM
The bonus rooms are often planned above the garage and are accessible from the house. They are designed to be converted as an office, a laundry area, a bathroom, a library corner or even an additional bedroom for which homeowners must make sure to have a window that complies with current codes & standards.
STORAGE AREA
Often located above the garage, our storage areas are used only as storage and are usually accessible from the garage via a retractable staircase.
Do you like this plan but want it to be modified to suit your needs?
To add a garage, another bedroom, finish the basement or any other modification, click here and let us know about your desired changes and to get your free quote for the modification of your plan.
Conditions of use
Important copyright notice! Please take note of these copyright conditions before printing:
        By printing this house plan, cottage or garage or the floorplan(s), you confirm being informed that every house plan on this website is the exclusive property of Drummond House
          Plans and is protected by Canadian copyright law. You are aware that these prints cannot be used to build or even obtain a building permit. The graphic representations of these
        models are offered by Drummond House Plans for the sole purpose of allowing you to notate modifications of a model and then take it to one of the Drummond House Plans Canadian dealers for
        modification of the plan.
The purchase of a house plan, cottage or garage from Drummond House Plans is mandatory if you wish to build any of our models. The plan purchase allows you to build a single unit; you cannot resell or give your plan to anyone once the house, cottage or garage has been built. If you wish to build the same house, cottage or garage more than once, you need to obtain the licence to this effect. Please contact us for more details.
All plans from Drummond House Plans can only be modified by a licensed Drummond House Plan Canadian dealer. If any other business or individual with no affiliation to Drummond House Plans modifies a Drummond House Plan on your behalf, please ensure this business or individual has a licence to modify this specific plan or you will be subject to prosecution on the same level as the business or individual who modified or reproduced the plan.
For more details, do not hesitate to contact u by e-mail or by phone at 1-800-567-1413.
I agree to respect the conditions above to not reproduce, modify or build a model from Drummond House Plans without previously purchasing a complete house plan.







 
                           
                           
                           
                           
                          

 
                             
                            








 
                                   
                                   
                                   
                                   
                                   
                                   
                                   
                                   
                                   
                         
                         
                         
                         
                         
                                           
                         
                         
                         
                         
                         
                         
                         
                         
                         
                         
               
               
               
               
               
               
               
               
              