There are no shipping fees if you buy one of our 2 plan packages "PDF file format" or "5 sets of blueprints + PDF". Shipping charges may apply if you buy additional sets of blueprints.
House plan Camille (1704-V1)
Mid-Century Modern House Plan, 9' ceiling, Open Concept, Kitchen with Pantry
Other useful information on this plan
Camille House Plan (#1704-V1) – Mid-Century Modern Design, Bright and Flexible Living
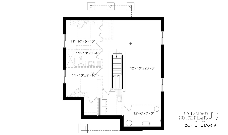
The Camille house plan (#1704-V1) stands out with its mid-century modern style, offering clean lines, timeless appeal and a layout perfectly suited to today’s lifestyle. Designed to deliver comfort from day one, this home features 1,178 sq. ft. on the main floor, with an equally sized basement, providing excellent potential for future expansion.
From the moment you step inside, the thoughtful layout becomes evident. A large entry closet enhances daily organization and creates a smooth transition between the outdoors and the main living space. Nine-foot ceilings throughout the main floor enhance the sense of openness and contribute to a bright, welcoming atmosphere.
The main living area is designed with both comfort and connection in mind. The well-proportioned kitchen, complete with a spacious lunch counter, naturally becomes the heart of the home—ideal for quick meals, entertaining or everyday gatherings. A walk-in pantry adds generous storage while keeping the kitchen organized and clutter-free.
Open to the living room, the dining area benefits from abundant natural light thanks to generous window placement. This open-concept layout promotes fluid circulation and creates an inviting environment for family life and entertaining.
The primary bedroom offers a comfortable retreat, featuring a walk-in closet that provides ample storage while maintaining a clean, uncluttered feel. A secondary bedroom adds versatility and can easily function as a home office, nursery or guest room, adapting to your changing needs over time.
The basement, currently finished with a functional laundry area, is a blank canvas ready for customization. With its full 1,178 sq. ft. footprint, it can accommodate additional bedrooms, a family room, a home office or any combination of spaces tailored to your lifestyle.
The Camille plan (#1704-V1) is a smart, light-filled and future-ready home design—ideal for homeowners seeking a well-planned residence that evolves seamlessly with their needs.
Distinctive elements
Mid-century modern home with a clean, timeless design.
9-foot ceilings throughout the main floor, creating a bright and spacious feel.
Functional entryway featuring a large closet for convenient everyday storage.
Spacious primary bedroom with a walk-in closet for optimal comfort and organization.
Versatile secondary bedroom, ideal as a home office, child’s bedroom or nursery.
Generously sized kitchen with a large breakfast counter designed for gathering and casual dining.
Walk-in pantry providing organized and easily accessible storage.
Bright dining area with abundant windows, open to the living room.
Fluid open-concept living space, designed to encourage connection and daily living.
Partially finished basement, currently including a functional laundry area.
Future basement development potential to add bedrooms, a family room or flexible living spaces to suit your needs.
Plan feature(s)
Pantry, Lunch counter, Open floor layout, Ceiling over 8', Walk-in master bed., Mud room, Office / Study / Den, Separate bath and shower
Plan architectural style(s)
. Mid-century, . Ranch, . Rustic, . Modern / Design, . Modern rustic, . Contemporary
Similar plans
Previously Viewed Plans
Thank you for your comment! It must be approved before being put online, please allow a period of 24 hours.
Error with google reCaptcha! Try again
Here is a brief description of our different plan packages. Please select the plan package that suits your needs. You can change the package at the next step, if necessary.
PDF VERSION OF PLAN:
Complete digital version of plan (pdf format) sent by email (original plan format 18" x 24'' or 24" x 36'')
5 copies of plan + PDF:
Includes: 5 copies of plan, plan in PDF format (reduced size version), materials list.
Foundation type
Additional foundation types are available, a fee may apply. Please indicate your choice on the online order form, or to our customer service representative, when placing your house plan order.
If your desired foundation type is not available, please contact our customer service to receive your free plan modification quote.
Explanation of bonus space types
UNFINISHED BONUS ROOM
The bonus rooms are often planned above the garage and are accessible from the house. They are designed to be converted as an office, a laundry area, a bathroom, a library corner or even an additional bedroom for which homeowners must make sure to have a window that complies with current codes & standards.
STORAGE AREA
Often located above the garage, our storage areas are used only as storage and are usually accessible from the garage via a retractable staircase.
Do you like this plan but want it to be modified to suit your needs?
To add a garage, another bedroom, finish the basement or any other modification, click here and let us know about your desired changes and to get your free quote for the modification of your plan.
Conditions of use
Important copyright notice! Please take note of these copyright conditions before printing:
By printing this house plan, cottage or garage or the floorplan(s), you confirm being informed that every house plan on this website is the exclusive property of Drummond House
Plans and is protected by Canadian copyright law. You are aware that these prints cannot be used to build or even obtain a building permit. The graphic representations of these
models are offered by Drummond House Plans for the sole purpose of allowing you to notate modifications of a model and then take it to one of the Drummond House Plans Canadian dealers for
modification of the plan.
The purchase of a house plan, cottage or garage from Drummond House Plans is mandatory if you wish to build any of our models. The plan purchase allows you to build a single unit; you cannot resell or give your plan to anyone once the house, cottage or garage has been built. If you wish to build the same house, cottage or garage more than once, you need to obtain the licence to this effect. Please contact us for more details.
All plans from Drummond House Plans can only be modified by a licensed Drummond House Plan Canadian dealer. If any other business or individual with no affiliation to Drummond House Plans modifies a Drummond House Plan on your behalf, please ensure this business or individual has a licence to modify this specific plan or you will be subject to prosecution on the same level as the business or individual who modified or reproduced the plan.
For more details, do not hesitate to contact u by e-mail or by phone at 1-800-567-1413.
I agree to respect the conditions above to not reproduce, modify or build a model from Drummond House Plans without previously purchasing a complete house plan.




























