There are no shipping fees if you buy one of our 2 plan packages "PDF file format" or "5 sets of blueprints + PDF". Shipping charges may apply if you buy additional sets of blueprints.
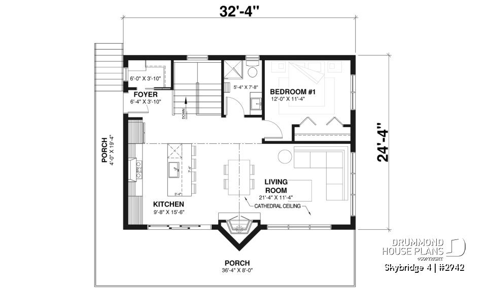
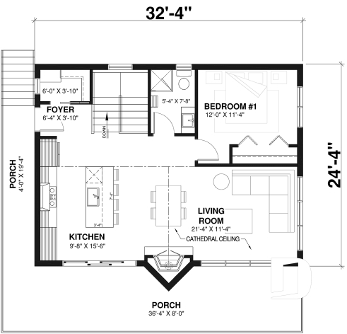
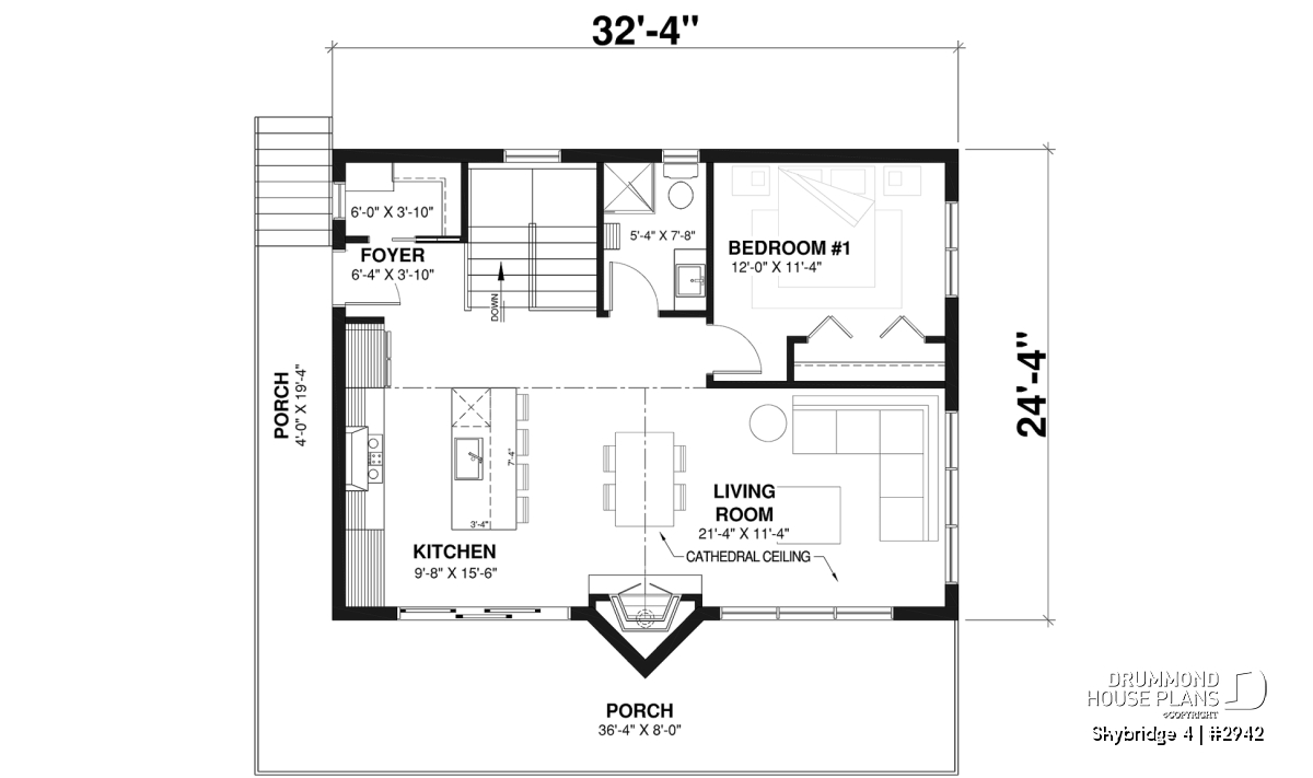
House plan Skybridge 4 (2942)
Panoramic view scandinavian inspired cottage design, ideal ski chalet with large fireplace, 1 to 3 bedrooms
Other useful information on this plan
Panoramic view rustic cottage design, ideal ski chalet with large fireplace and 1 to 3 bedrooms
.
Distinctive elements
Abundant and special fenestration, wraparound balcony, centralized fireplace, special ceiling treatments.
Plan feature(s)
Fireplace, Access to basement from exterior, Open floor layout, Warparound, Panoramic view, Cathedral ceiling, Wood stove, Game room, Mud room
Plan architectural style(s)
. Cottage, chalet, cabin, . Vacation and waterfront, . Ski chalets, . Rustic, . A-Frame, . Scandinavian, . Mountain
Similar plans
Previously Viewed Plans
Questions and comments
February 03
Renee Blei
Do you have any other pictures of this house as a finished product? Interior and exterior, 1st floor and basement floor? I've bought this plan and would like to see some pictures. Starting to build in a few weeks.
February 03
Customer service
Good day Ms. Blei and thank you for choosing Drummond House Plans
Since we do no actual construction, the only pictures that we have are those which our clients have shared with us and they appear on this page.
Perhaps we will be fortunate enough to obtain pictures of your home once it is complete!
Please let me know if I can further assist you
Regards
Deb
January 16
travis
What kind of siding is used in the pictures?
January 16
Customer service
Good day Mr. Duhamel and thank you for your interest in this plan.
Vertically installed vinyl siding is used in the illustration of this model.
Please let me know if you have any other questions or comments.
Regards
Deborah
Thank you for your comment! It must be approved before being put online, please allow a period of 24 hours.
Error with google reCaptcha! Try again
Here is a brief description of our different plan packages. Please select the plan package that suits your needs. You can change the package at the next step, if necessary.
PDF VERSION OF PLAN:
Complete digital version of plan (pdf format) sent by email (original plan format 18" x 24'' or 24" x 36'')
5 copies of plan + PDF:
Includes: 5 copies of plan, plan in PDF format (reduced size version), materials list.
Foundation type
Additional foundation types are available, a fee may apply. Please indicate your choice on the online order form, or to our customer service representative, when placing your house plan order.
If your desired foundation type is not available, please contact our customer service to receive your free plan modification quote.
Explanation of bonus space types
UNFINISHED BONUS ROOM
The bonus rooms are often planned above the garage and are accessible from the house. They are designed to be converted as an office, a laundry area, a bathroom, a library corner or even an additional bedroom for which homeowners must make sure to have a window that complies with current codes & standards.
STORAGE AREA
Often located above the garage, our storage areas are used only as storage and are usually accessible from the garage via a retractable staircase.
Do you like this plan but want it to be modified to suit your needs?
To add a garage, another bedroom, finish the basement or any other modification, click here and let us know about your desired changes and to get your free quote for the modification of your plan.
Conditions of use
Important copyright notice! Please take note of these copyright conditions before printing:
By printing this house plan, cottage or garage or the floorplan(s), you confirm being informed that every house plan on this website is the exclusive property of Drummond House
Plans and is protected by Canadian copyright law. You are aware that these prints cannot be used to build or even obtain a building permit. The graphic representations of these
models are offered by Drummond House Plans for the sole purpose of allowing you to notate modifications of a model and then take it to one of the Drummond House Plans Canadian dealers for
modification of the plan.
The purchase of a house plan, cottage or garage from Drummond House Plans is mandatory if you wish to build any of our models. The plan purchase allows you to build a single unit; you cannot resell or give your plan to anyone once the house, cottage or garage has been built. If you wish to build the same house, cottage or garage more than once, you need to obtain the licence to this effect. Please contact us for more details.
All plans from Drummond House Plans can only be modified by a licensed Drummond House Plan Canadian dealer. If any other business or individual with no affiliation to Drummond House Plans modifies a Drummond House Plan on your behalf, please ensure this business or individual has a licence to modify this specific plan or you will be subject to prosecution on the same level as the business or individual who modified or reproduced the plan.
For more details, do not hesitate to contact u by e-mail or by phone at 1-800-567-1413.
I agree to respect the conditions above to not reproduce, modify or build a model from Drummond House Plans without previously purchasing a complete house plan.












February 03
Renee Blei
Do you have any other pictures of this house as a finished product? Interior and exterior, 1st floor and basement floor? I've bought this plan and would like to see some pictures. Starting to build in a few weeks.