There are no shipping fees if you buy one of our 2 plan packages "PDF file format" or "5 sets of blueprints + PDF". Shipping charges may apply if you buy additional sets of blueprints.
                                                                                                                                                                                                                                                                                                                                                                                                                                                                                                                                                                                                                                                                                                                                                                          House plan Charlie  (3634)                
                                  
              
              Farmhouse Home Plan featuring 3 bedrooms, 2.5 bathrooms, garage with workshop area, and a covered terrace
Other useful information on this plan
Farmhouse style home with 3 beds, home office and a garage.
Discover this Farmhouse home that elegantly brings together the most beloved features of our favorite models. Designed to combine warmth, comfort, and functionality, it is perfect for families as well as anyone dreaming of a bright, welcoming space where every detail has been thoughtfully crafted for everyday living.
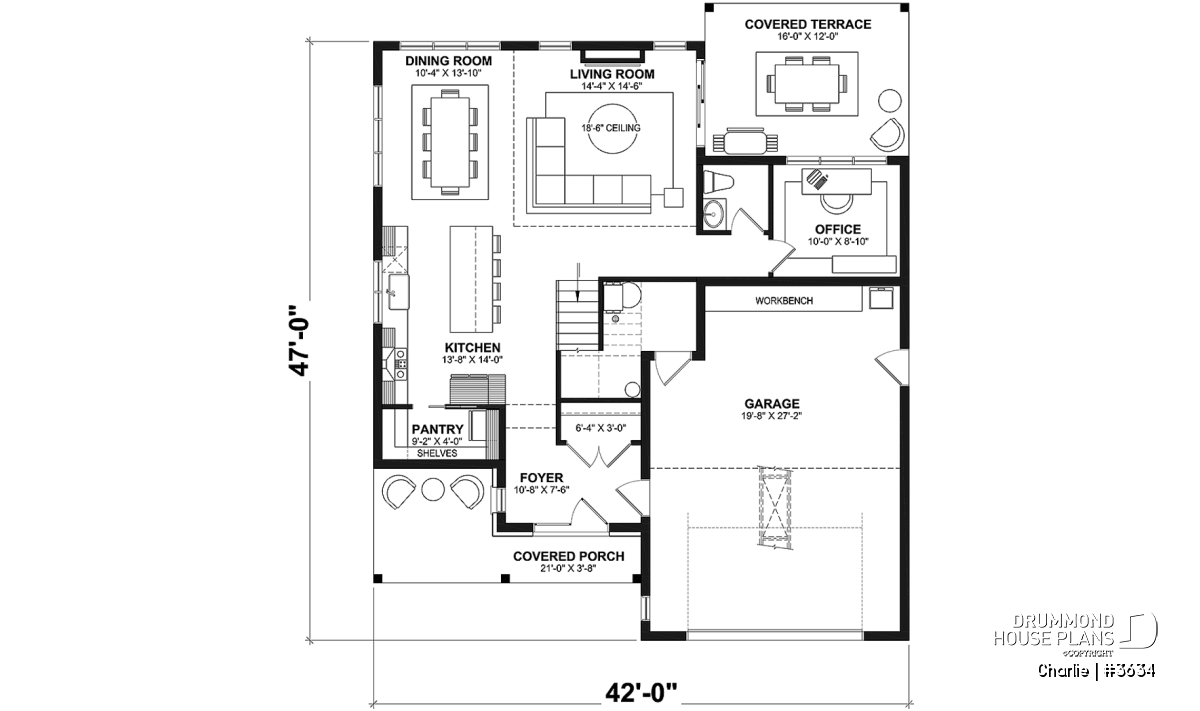
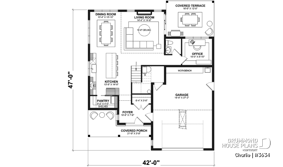
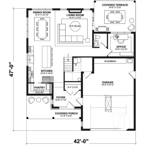
From the moment you step inside, you’ll be charmed by the spacious entryway featuring a large coat closet, perfect for keeping coats and shoes organized while maintaining an open, airy feel. The inviting kitchen with a pantry seamlessly flows into the dining room and living area, creating a warm, friendly ambiance ideal for family moments or entertaining friends.
The 9' ceilings on the main floor and 18'6'' ceilings in the living room give the home an impressive sense of volume, while abundant natural light floods the entire rear of the house, turning each day into a bright and inspiring experience.
For remote work or quiet moments, a cozy office provides a dedicated and comfortable space. Guests will appreciate the discreet powder room, conveniently located near the main living areas. Outside, a large 16' x 12' covered terrace with 9' ceiling extends the living space into the backyard—perfect for summer meals or simply relaxing in the shade.
Upstairs, an elegant mezzanine overlooks the living room, adding both style and a sense of openness. The primary suite, a true retreat, features a generous walk-in closet and a private bathroom with a relaxing tub and a large separate shower. A practical second-floor laundry room simplifies daily routines. Two secondary bedrooms share a shower room and a cozy small lounge, ideal for kids or as a quiet reading nook.
On the practical side, the home includes additional storage above the garage, accessible by hatch, and a spacious garage with room for a workshop or gardening area. Finally, this plan adapts to your needs with multiple foundation options available.
Blending timeless charm, modern comfort, and family-friendly functionality, this Farmhouse home is an invitation to enjoy every moment at home.
Distinctive elements
Farmhouse home bringing together the best features of our most popular models.
Spacious entryway with a large coat closet for optimal storage.
Kitchen with pantry, open to the dining room and living room for a warm, inviting atmosphere.
9' ceilings on the main floor and 18'6'' in the living room, creating an impressive sense of space.
Abundant natural light floods the entire rear of the home.
Cozy office, perfect for remote work or reading.
Convenient powder room for guests.
Large 16' x 12' covered terrace with a 9' ceiling, perfect for enjoying the outdoors.
Mezzanine upstairs offering an impressive view over the living room.
Generous primary suite with walk-in closet and private bathroom featuring a tub and large separate shower.
Second-floor laundry room, designed to simplify everyday life.
Two secondary bedrooms share a shower room and a welcoming small lounge.
Additional storage above the garage, accessible via hatch.
Spacious garage, with room for a gardening or workshop area.
Various foundation options available for this plan.
Plan feature(s)
Office / Study / Den, Split bedrooms, Second floor laundry room, Master suite upstairs, Deck, Panoramic view, Ceiling over 8', Cathedral ceiling, Pantry, Island, Open floor layout, Separate bath and shower, Mezzanine
Plan architectural style(s)
. Farmhouse, . American, Modern farmhouse, . Traditional, . Transitional, . Country
Similar plans
Previously Viewed Plans
Thank you for your comment! It must be approved before being put online, please allow a period of 24 hours.
Error with google reCaptcha! Try again
Here is a brief description of our different plan packages. Please select the plan package that suits your needs. You can change the package at the next step, if necessary.
PDF VERSION OF PLAN:
Complete digital version of plan (pdf format) sent by email (original plan format 18" x 24'' or 24" x 36'')
5 copies of plan + PDF:
Includes: 5 copies of plan, plan in PDF format (reduced size version), materials list.
Foundation type
Additional foundation types are available, a fee may apply. Please indicate your choice on the online order form, or to our customer service representative, when placing your house plan order.
If your desired foundation type is not available, please contact our customer service to receive your free plan modification quote.
Explanation of bonus space types
UNFINISHED BONUS ROOM
The bonus rooms are often planned above the garage and are accessible from the house. They are designed to be converted as an office, a laundry area, a bathroom, a library corner or even an additional bedroom for which homeowners must make sure to have a window that complies with current codes & standards.
STORAGE AREA
Often located above the garage, our storage areas are used only as storage and are usually accessible from the garage via a retractable staircase.
Do you like this plan but want it to be modified to suit your needs?
To add a garage, another bedroom, finish the basement or any other modification, click here and let us know about your desired changes and to get your free quote for the modification of your plan.
Conditions of use
Important copyright notice! Please take note of these copyright conditions before printing:
        By printing this house plan, cottage or garage or the floorplan(s), you confirm being informed that every house plan on this website is the exclusive property of Drummond House
          Plans and is protected by Canadian copyright law. You are aware that these prints cannot be used to build or even obtain a building permit. The graphic representations of these
        models are offered by Drummond House Plans for the sole purpose of allowing you to notate modifications of a model and then take it to one of the Drummond House Plans Canadian dealers for
        modification of the plan.
The purchase of a house plan, cottage or garage from Drummond House Plans is mandatory if you wish to build any of our models. The plan purchase allows you to build a single unit; you cannot resell or give your plan to anyone once the house, cottage or garage has been built. If you wish to build the same house, cottage or garage more than once, you need to obtain the licence to this effect. Please contact us for more details.
All plans from Drummond House Plans can only be modified by a licensed Drummond House Plan Canadian dealer. If any other business or individual with no affiliation to Drummond House Plans modifies a Drummond House Plan on your behalf, please ensure this business or individual has a licence to modify this specific plan or you will be subject to prosecution on the same level as the business or individual who modified or reproduced the plan.
For more details, do not hesitate to contact u by e-mail or by phone at 1-800-567-1413.
I agree to respect the conditions above to not reproduce, modify or build a model from Drummond House Plans without previously purchasing a complete house plan.









                          
                          
                          
                          
                          
                          
                          

                            
                            







                                  
                                  
                                  
                                  
                                  
                                  
                                  
                                  

