There are no shipping fees if you buy one of our 2 plan packages "PDF file format" or "5 sets of blueprints + PDF". Shipping charges may apply if you buy additional sets of blueprints.
House plan Sunny Haven (3615)
Modern Craftsman house plan, 3 bedrooms, home office, 2.5 baths, garage, large covered terrace
Other useful information on this plan
Modern Craftsman home plan with 3 bedrooms, including a stunning master suite and large covered terrace!
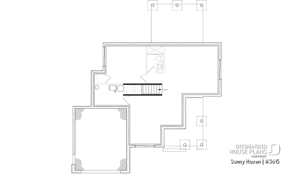
Magnificent Modern Craftsman home “Sunny Haven” (plan #3615) offering 1840 sq.ft. on 2 floors, plus a 912 sq.ft.unfinished basement.
On the ground floor, directly at the entrance, there is an office (or bedrooms # 4) adjacent to a mud room (walk-in closet). All the ceilings of the ground floor are at 9 'which gives a nice amplitude to the rooms.
The kitchen brings together the elements sought such as a large pantry, an island with sink and enough space for an integrated wine cellar. The latter is open to the dining room and the living room. The living room receives lots of natural light and a fireplace is installed, well centered on the wall and visible from the kitchen and dining room.
A bathroom set back from the kitchen and a laundry room complete the first floor.
Upstairs are the parents' suite (master suite) including a large walk-in closet and a full bathroom with separate bath and shower. In addition, the master suite has a cathedral ceiling.
Also upstairs, there is a large shower room shared by the two secondary bedrooms, as well as a practical laundry chute in the hallway, accessible by all members of the family.
The basement is to be finished. Other types of foundations are available, and in addition, it is possible to make modifications to this plan. Simply contact our customer service.
Distinctive elements
Superb Modern Farmhouse home plan.
Large sheltered terrace at the back.
Home office.
Large mudroom at the entrance.
Ceiling at 9 'on the ground floor and 8' on the first floor, except for the parents' suite which has a cathedral ceiling.
Large pantry and kitchen island.
Laundry room on the ground floor with laundry chute.
Sheltered terrace at the back and beautiful front porch.
Parents' suite with cathedral ceiling, private bathroom, and walk-in closet.
Laundry chute in the upstairs corridor for ease of access by all family members.
Basement to be finished according to your future needs. Other foundation options are available.
Plan feature(s)
Open floor layout, Separate bath and shower, Bench seat(s), Office / Study / Den, Fireplace, Warparound, Pantry, Island, Ceiling over 8', Cathedral ceiling, Gound floor laundry room, Master suite upstairs, Deck, Mud room, Panoramic view, Walk-in master bed., Wine cellar
Plan architectural style(s)
Modern farmhouse, . Mountain, . American, . Craftsman / Northwest, . Transitional, . Country, . Modern rustic, . Farmhouse, Modern Craftsman
Similar plans
Previously Viewed Plans
Thank you for your comment! It must be approved before being put online, please allow a period of 24 hours.
Error with google reCaptcha! Try again
Here is a brief description of our different plan packages. Please select the plan package that suits your needs. You can change the package at the next step, if necessary.
PDF VERSION OF PLAN:
Complete digital version of plan (pdf format) sent by email (original plan format 18" x 24'' or 24" x 36'')
5 copies of plan + PDF:
Includes: 5 copies of plan, plan in PDF format (reduced size version), materials list.
Foundation type
Additional foundation types are available, a fee may apply. Please indicate your choice on the online order form, or to our customer service representative, when placing your house plan order.
If your desired foundation type is not available, please contact our customer service to receive your free plan modification quote.
Explanation of bonus space types
UNFINISHED BONUS ROOM
The bonus rooms are often planned above the garage and are accessible from the house. They are designed to be converted as an office, a laundry area, a bathroom, a library corner or even an additional bedroom for which homeowners must make sure to have a window that complies with current codes & standards.
STORAGE AREA
Often located above the garage, our storage areas are used only as storage and are usually accessible from the garage via a retractable staircase.
Do you like this plan but want it to be modified to suit your needs?
To add a garage, another bedroom, finish the basement or any other modification, click here and let us know about your desired changes and to get your free quote for the modification of your plan.
Conditions of use
Important copyright notice! Please take note of these copyright conditions before printing:
By printing this house plan, cottage or garage or the floorplan(s), you confirm being informed that every house plan on this website is the exclusive property of Drummond House
Plans and is protected by Canadian copyright law. You are aware that these prints cannot be used to build or even obtain a building permit. The graphic representations of these
models are offered by Drummond House Plans for the sole purpose of allowing you to notate modifications of a model and then take it to one of the Drummond House Plans Canadian dealers for
modification of the plan.
The purchase of a house plan, cottage or garage from Drummond House Plans is mandatory if you wish to build any of our models. The plan purchase allows you to build a single unit; you cannot resell or give your plan to anyone once the house, cottage or garage has been built. If you wish to build the same house, cottage or garage more than once, you need to obtain the licence to this effect. Please contact us for more details.
All plans from Drummond House Plans can only be modified by a licensed Drummond House Plan Canadian dealer. If any other business or individual with no affiliation to Drummond House Plans modifies a Drummond House Plan on your behalf, please ensure this business or individual has a licence to modify this specific plan or you will be subject to prosecution on the same level as the business or individual who modified or reproduced the plan.
For more details, do not hesitate to contact u by e-mail or by phone at 1-800-567-1413.
I agree to respect the conditions above to not reproduce, modify or build a model from Drummond House Plans without previously purchasing a complete house plan.
























