There are no shipping fees if you buy one of our 2 plan packages "PDF file format" or "5 sets of blueprints + PDF". Shipping charges may apply if you buy additional sets of blueprints.
House plan Azalea (3723-DJG)
3 to 4 bedroom Modern Scandinavian house, master w/ private balcony, covered deck, den on main floor
Virtual visit
Other useful information on this plan
Scandinavian-Style House Plan with 3 to 4 Bedrooms, Home Office, and Garage – The Azalea Model
Just like the plant that inspired its name, the Azalea house plan embodies a perfect balance of beauty, wellness, and functionality. Known for its elegant appearance and natural air-purifying qualities, the azalea reflects the same dual purpose found in this thoughtfully designed Scandinavian-inspired contemporary home—where refined design meets eco-conscious living and everyday comfort.
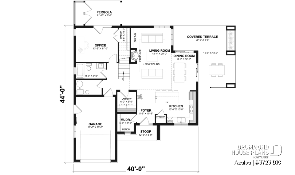
Featuring natural stone and wood accents, the Azalea offers a warm, modern exterior that feels both inviting and timeless—ideal for today’s families. Designed to take full advantage of a southwest orientation, the plan maximizes natural solar gains, and can be mirrored or adjusted to suit your lot’s orientation. The stone fireplace, strategically positioned, helps store passive solar heat, while wide roof overhangs block excessive summer sun yet allow warming winter rays inside. With 6/12 roof pitches—perfect for solar panel installation—and a generous roof surface, the design supports the potential use of solar energy for both the water heater and home heating system.
Originally conceived with a slab-on-grade foundation and radiant floor heating, the Azalea can also accommodate a central HVAC system, enhanced by solar energy and a smart thermostat—now more affordable than ever. An optional basement foundation is also available and can be selected at checkout for added flexibility.
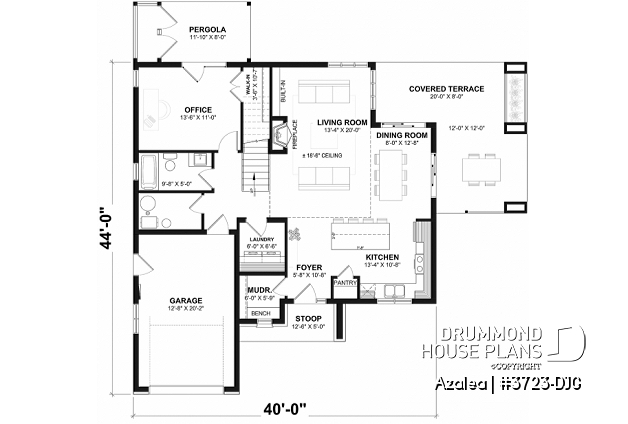
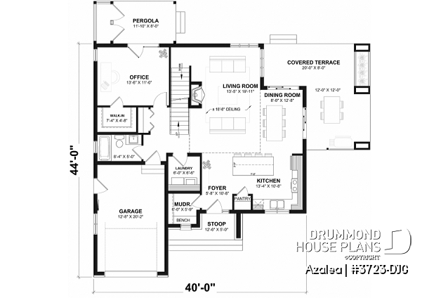
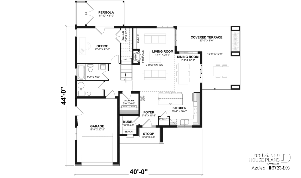
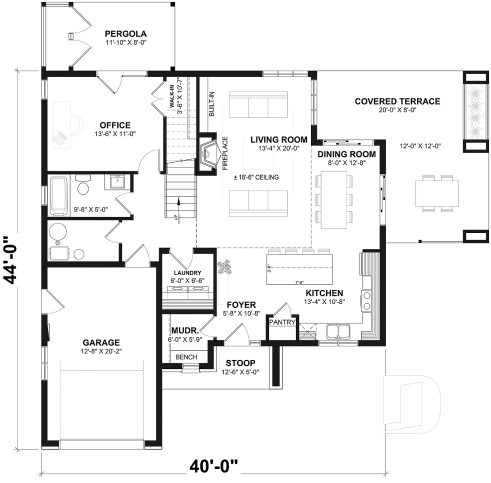
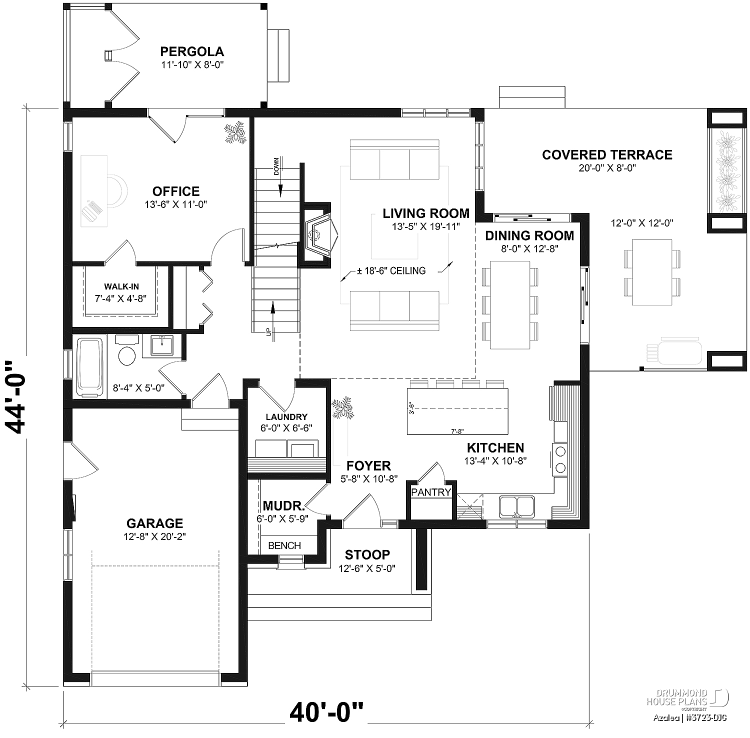
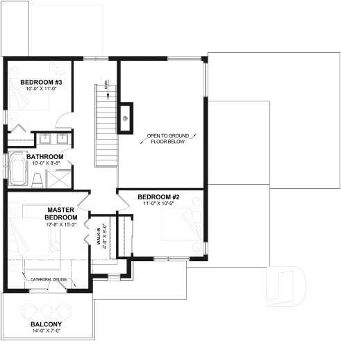
Inside, comfort is immediately apparent. A cathedral ceiling in the main-level living room promotes natural air circulation while filling the open spaces with abundant daylight. The sleek, modern kitchen, complete with a large island and walk-in pantry, opens to the dining area, which flows seamlessly onto a spacious covered deck. This outdoor space is ideal for a BBQ area, a large dining table, and even a multi-purpose screened enclosure.
A flex room located next to a full bathroom can serve as a home office, playroom, or fourth bedroom, making the layout highly adaptable. The garage entry, conveniently located near the laundry and mechanical room, offers discreet and practical access to the home.
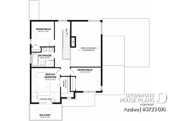
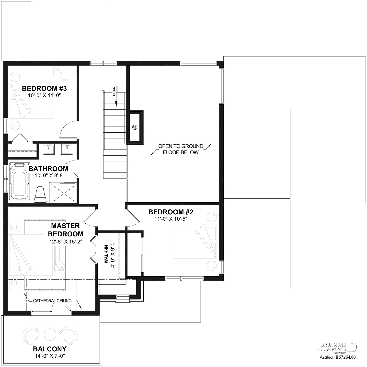
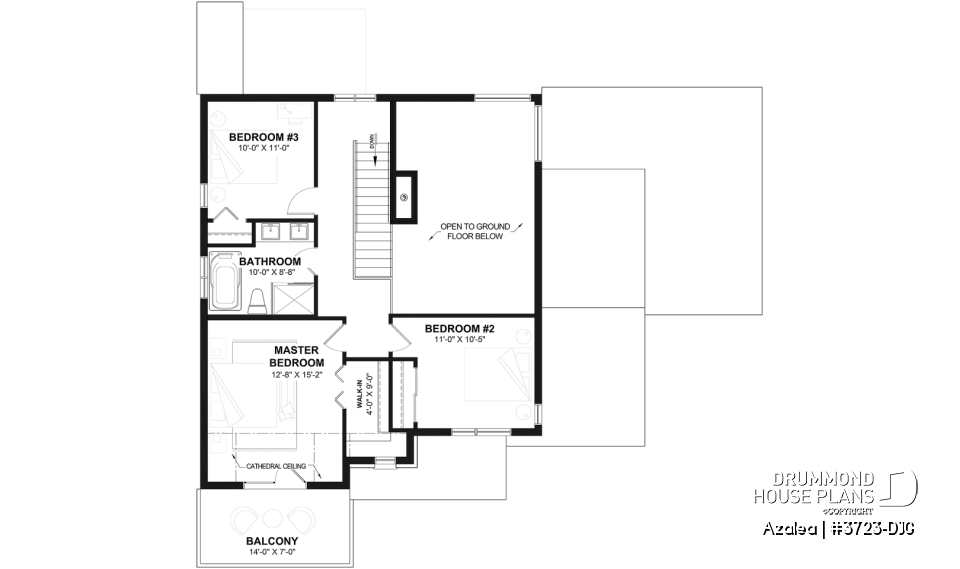
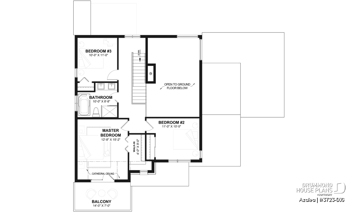
Upstairs, the primary suite features a large walk-in closet, a private balcony, and direct access to a spacious family bathroom with a separate tub and shower and a double vanity. Well-sized secondary bedrooms provide comfort for the whole family, while a mezzanine overlooking the living room maintains a strong visual connection between levels.
Outside, the Azalea continues its eco-friendly approach with options for a screened garden area, rainwater collection, or even an urban chicken coop (where permitted). A pergola structure can support climbing vines or flowering plants, and a kitchen-adjacent vegetable and herb garden encourages sustainable living. The large covered deck, designed for comfort in sun or rain, becomes a true extension of the indoor living space.
The Azalea is more than just a house plan—it’s a bright, healthy, and sustainable lifestyle, thoughtfully designed for today and built for the future.
Distinctive elements
This house was designed to maximize solar energy.
The roof has a 6/12 slope, which is the ideal inclination for the installation of solar panels on the roof.
Practical coat closet located near front entrace.
Kitchen with large island, pantry and open plan with the rest of the family areas.
Access to a large covered terrace, near the dining room, with space for a small herb garden.
Family room with fireplace on 2 floors and cathedral ceiling.
Flex room (bedroom # 4, home office or playroom) with access to a pergola and small 3-season greenhouse.
A full bathroom is located near the flex room.
Convenient access from the garage located near the laundry room and the kitchen.
Mezzanine overlooking the living room.
Master bedroom with large walk-in closet and private balcony.
Two secondary bedrooms of good sizes.
A large family bathroom combining a double vanity and a separate bath & shower.
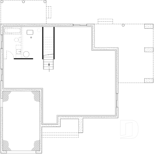
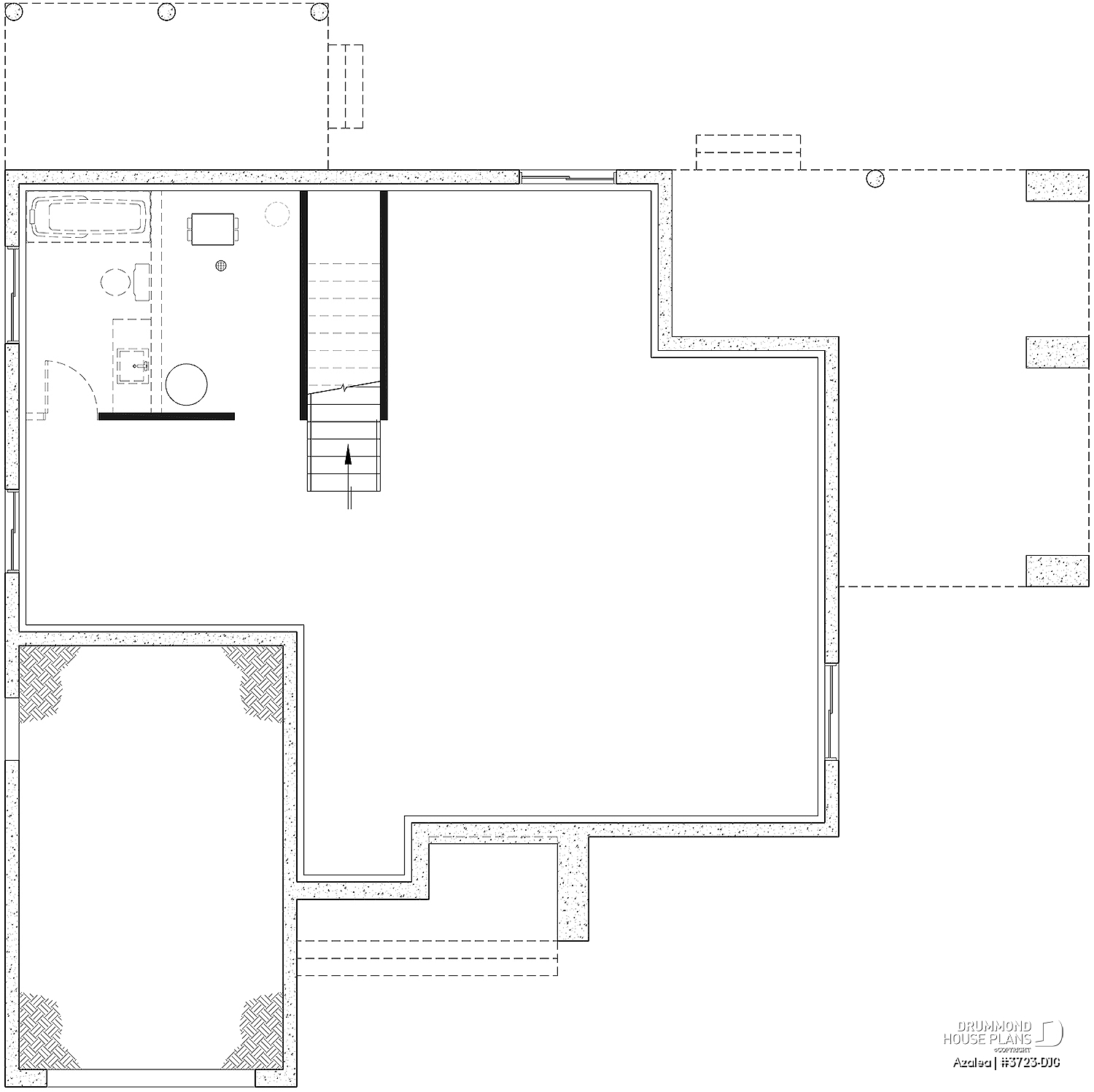
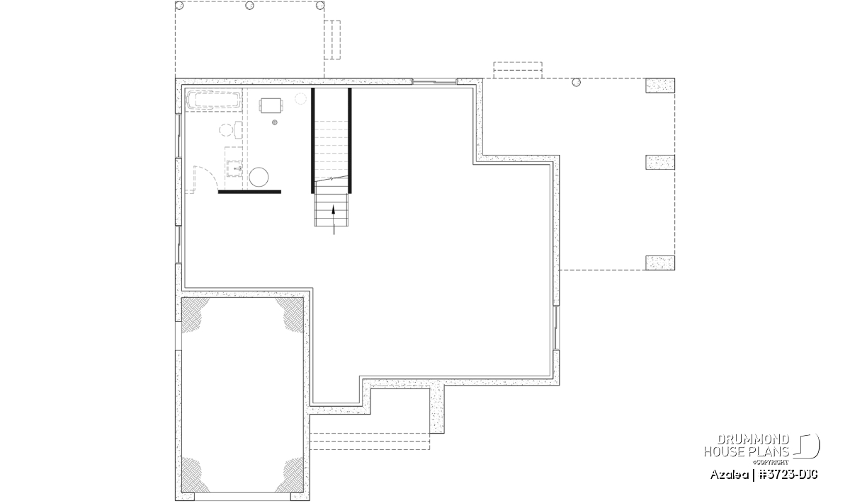
This house features a *slab foundation, Many other foundation options are available.
---
*Unfinished Basement (optional $):
If you wish to purchase the unfinished basement plan option ($), please select this option in the shopping cart, in the "Select your foundation" section. If you do not select this option, you will receive a floating slab as your foundation, at no extra cost.
Plan feature(s)
Gound floor laundry room, Lunch counter, Mezzanine, Open floor layout, Ceiling over 8', Deck, Double sinks, Separate bath and shower, Sunroom, Balcony 2nd floor, Walk-in master bed., Office / Study / Den, Island, Pantry, Fireplace
Plan architectural style(s)
. Scandinavian, . Modern / Design, . Modern rustic, . Vacation and waterfront, . European, . Transitional, . English, . Contemporary
Similar plans
Previously Viewed Plans
Thank you for your comment! It must be approved before being put online, please allow a period of 24 hours.
Error with google reCaptcha! Try again
Here is a brief description of our different plan packages. Please select the plan package that suits your needs. You can change the package at the next step, if necessary.
PDF VERSION OF PLAN:
Complete digital version of plan (pdf format) sent by email (original plan format 18" x 24'' or 24" x 36'')
5 copies of plan + PDF:
Includes: 5 copies of plan, plan in PDF format (reduced size version), materials list.
Foundation type
Additional foundation types are available, a fee may apply. Please indicate your choice on the online order form, or to our customer service representative, when placing your house plan order.
If your desired foundation type is not available, please contact our customer service to receive your free plan modification quote.
Explanation of bonus space types
UNFINISHED BONUS ROOM
The bonus rooms are often planned above the garage and are accessible from the house. They are designed to be converted as an office, a laundry area, a bathroom, a library corner or even an additional bedroom for which homeowners must make sure to have a window that complies with current codes & standards.
STORAGE AREA
Often located above the garage, our storage areas are used only as storage and are usually accessible from the garage via a retractable staircase.
Do you like this plan but want it to be modified to suit your needs?
To add a garage, another bedroom, finish the basement or any other modification, click here and let us know about your desired changes and to get your free quote for the modification of your plan.
Conditions of use
Important copyright notice! Please take note of these copyright conditions before printing:
By printing this house plan, cottage or garage or the floorplan(s), you confirm being informed that every house plan on this website is the exclusive property of Drummond House
Plans and is protected by Canadian copyright law. You are aware that these prints cannot be used to build or even obtain a building permit. The graphic representations of these
models are offered by Drummond House Plans for the sole purpose of allowing you to notate modifications of a model and then take it to one of the Drummond House Plans Canadian dealers for
modification of the plan.
The purchase of a house plan, cottage or garage from Drummond House Plans is mandatory if you wish to build any of our models. The plan purchase allows you to build a single unit; you cannot resell or give your plan to anyone once the house, cottage or garage has been built. If you wish to build the same house, cottage or garage more than once, you need to obtain the licence to this effect. Please contact us for more details.
All plans from Drummond House Plans can only be modified by a licensed Drummond House Plan Canadian dealer. If any other business or individual with no affiliation to Drummond House Plans modifies a Drummond House Plan on your behalf, please ensure this business or individual has a licence to modify this specific plan or you will be subject to prosecution on the same level as the business or individual who modified or reproduced the plan.
For more details, do not hesitate to contact u by e-mail or by phone at 1-800-567-1413.
I agree to respect the conditions above to not reproduce, modify or build a model from Drummond House Plans without previously purchasing a complete house plan.




































