There are no shipping fees if you buy one of our 2 plan packages "PDF file format" or "5 sets of blueprints + PDF". Shipping charges may apply if you buy additional sets of blueprints.
House plan Oslo (3891)
Reverse living Scandinavian style house plan, large deck, home office, open floor plan concept
Virtual visit
Other useful information on this plan
Superb Scandinavian-inspired two-story house with reverse floor plan!
Modern Rustic house plan, Scandinavian-style inspired, new plan no. 3891 also called Oslo by Drummond House Plans, suggests a happy marriage of noble materials, rustic and warm at the same time. The featured item of this beautiful house is undoubtedly the generous terrace, partially sheltered upstairs, which provides an outdoor fireplace. This home design with garage will be perfect for a construction on a plot offering a panoramic view (lakefront), a mountain or a picturesque country landscape.
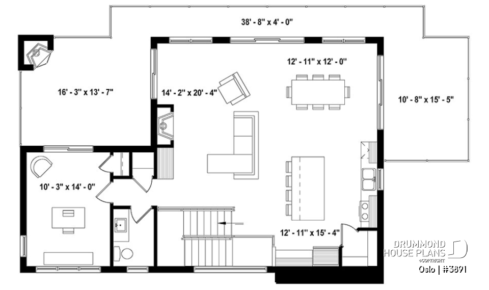
Unlike the vast majority of floor plan layouts, the two-storey Scandinavian model Oslo (plan # 3891) offers the bedrooms on the ground floor and common rooms on the second floor. The good size master suite has a walk-in closet and a full bathroom. In the latter, two sinks, a shower and a separate bath are provided. In addition, the master bedroom has patio doors that provide access to a small sheltered balcony. The two secondary bedrooms share a shower room. A laundry room and access to the garage complete this first floor.
Upstairs, there is a home office. However, it could easily be converted into a game room, a home gym or an extra bedroom, depending on the needs of the occupants. A powder room (toilet and sink) is adjacent to the office and located in front of a storage closet.
The family area receives plenty of natural light through abundant fenestration as well as double and triple patio doors. The kitchen offers an island that comfortably accommodates 4 occupants. A practical pantry is also conveniently located in the corner near the kitchen. A fireplace is located in the center of the living room, also visible from the dining room as well as from the kitchen.
A huge terrace is accessible from the office, as well as from the living room and the dining room. A large area of the terrace is covered with a roof and offers a fireplace. Another area of the terrace is located near the kitchen, allowing easy development of a dining area outside and close to amenities.
You like this house but would like a different interior or convert the one-car garage to a two or even a three-car garage? No matter what changes, our team of experts can design the plan that will fit your budget and your needs. Contact us to get your free plan modification estimate: 1-800-567-5267
Distinctive elements
Modern Rustic house plan with reverse floor plans.
Extra large terrace on second floor with outdoor fireplace and partially covered.
Bedrooms, laundry room and shower room on lower floor, above ground.
Master suite with private bathroom and outdoor covered balcony and walk-in closet.
Laundry room near bedrooms.
Home office or game room or bedroom # 4.
Large kitchen with kitchen island and pantry.
Open floor plan concept kitchen, dining and living room.
Living room with fireplace.
Plan feature(s)
Fireplace, Deck, Basement access from garage, Gound floor laundry room, Office / Study / Den, Pantry, Inverted living, Open floor layout, Master suite on main, 2-Story foyer, Separate bath and shower, Double sinks, Walk-in master bed.
Plan architectural style(s)
. Scandinavian, . Cottage, chalet, cabin, . Transitional, . Vacation and waterfront, . Modern rustic, . Contemporary, . Rustic, . Ski chalets, . Modern / Design, . Country
Similar plans
Previously Viewed Plans
Thank you for your comment! It must be approved before being put online, please allow a period of 24 hours.
Error with google reCaptcha! Try again
Here is a brief description of our different plan packages. Please select the plan package that suits your needs. You can change the package at the next step, if necessary.
PDF VERSION OF PLAN:
Complete digital version of plan (pdf format) sent by email (original plan format 18" x 24'' or 24" x 36'')
5 copies of plan + PDF:
Includes: 5 copies of plan, plan in PDF format (reduced size version), materials list.
Foundation type
Additional foundation types are available, a fee may apply. Please indicate your choice on the online order form, or to our customer service representative, when placing your house plan order.
If your desired foundation type is not available, please contact our customer service to receive your free plan modification quote.
Explanation of bonus space types
UNFINISHED BONUS ROOM
The bonus rooms are often planned above the garage and are accessible from the house. They are designed to be converted as an office, a laundry area, a bathroom, a library corner or even an additional bedroom for which homeowners must make sure to have a window that complies with current codes & standards.
STORAGE AREA
Often located above the garage, our storage areas are used only as storage and are usually accessible from the garage via a retractable staircase.
Do you like this plan but want it to be modified to suit your needs?
To add a garage, another bedroom, finish the basement or any other modification, click here and let us know about your desired changes and to get your free quote for the modification of your plan.
Conditions of use
Important copyright notice! Please take note of these copyright conditions before printing:
By printing this house plan, cottage or garage or the floorplan(s), you confirm being informed that every house plan on this website is the exclusive property of Drummond House
Plans and is protected by Canadian copyright law. You are aware that these prints cannot be used to build or even obtain a building permit. The graphic representations of these
models are offered by Drummond House Plans for the sole purpose of allowing you to notate modifications of a model and then take it to one of the Drummond House Plans Canadian dealers for
modification of the plan.
The purchase of a house plan, cottage or garage from Drummond House Plans is mandatory if you wish to build any of our models. The plan purchase allows you to build a single unit; you cannot resell or give your plan to anyone once the house, cottage or garage has been built. If you wish to build the same house, cottage or garage more than once, you need to obtain the licence to this effect. Please contact us for more details.
All plans from Drummond House Plans can only be modified by a licensed Drummond House Plan Canadian dealer. If any other business or individual with no affiliation to Drummond House Plans modifies a Drummond House Plan on your behalf, please ensure this business or individual has a licence to modify this specific plan or you will be subject to prosecution on the same level as the business or individual who modified or reproduced the plan.
For more details, do not hesitate to contact u by e-mail or by phone at 1-800-567-1413.
I agree to respect the conditions above to not reproduce, modify or build a model from Drummond House Plans without previously purchasing a complete house plan.

















