There are no shipping fees if you buy one of our 2 plan packages "PDF file format" or "5 sets of blueprints + PDF". Shipping charges may apply if you buy additional sets of blueprints.
House plan Chardonnay 2 (6108-V1)
One-storey scandinavian house plan with 2 to 3 bedrooms and garage, 9' ceiling, pantry, mudroom
Virtual visit
Other useful information on this plan
2 bedroom single storey hous plan with home office and spacious garage
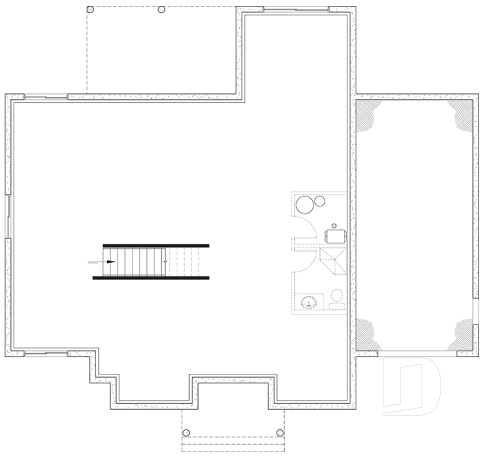
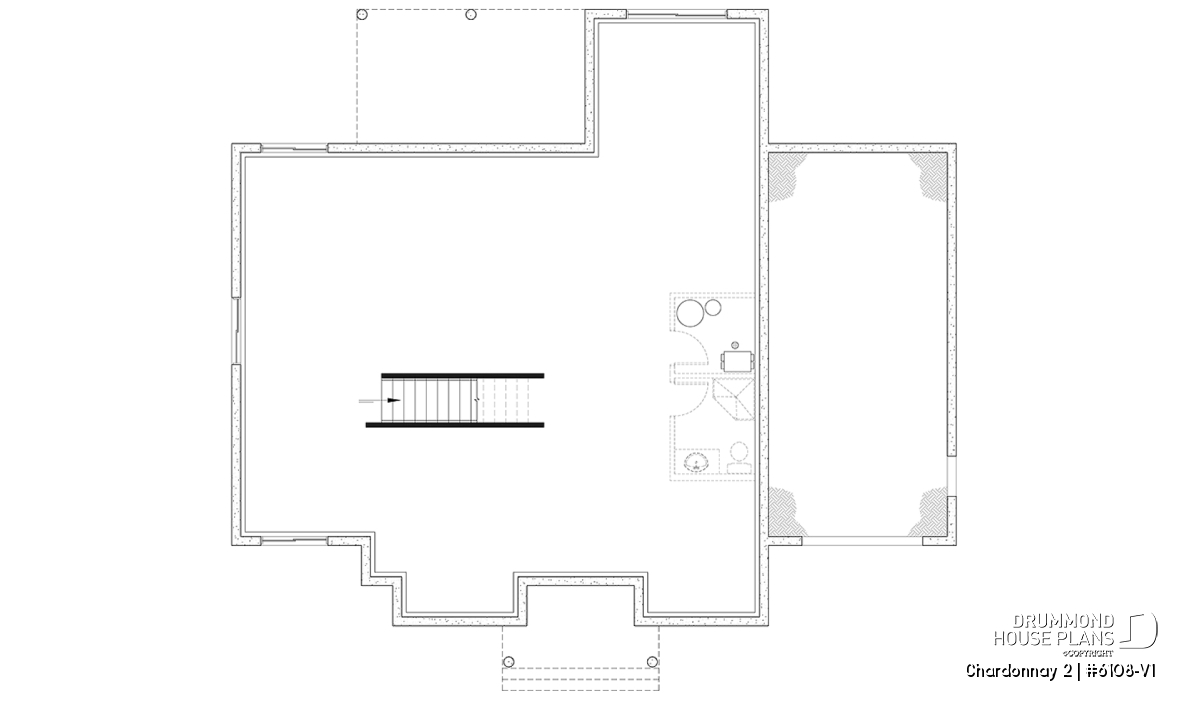
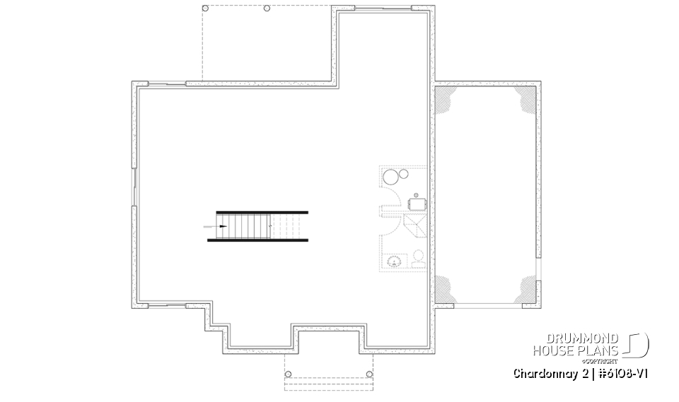
House plan Chardonnay 2 (# 6108-V1) offers 1,487 sq.ft. on a single floor. This modern Scandinavian-style single-storey plan with garage offers a sleek look while maximizing interior and exterior spaces, such as the front balcony and the rear terrace, both of which are covered.
An office (or bedroom # 3) is located to the right / very close to the main entrance, allowing separation between the workspace and the rest of the house. Note that all ceilings are 9 'and there is a cathedral ceiling in the living room.
The mudroom and the laundry room, with sink area, are communicating. Access to the garage is also in this area as well as a door to the pantry. Very practical aspect for moving grocery bags from the garage to the kitchen directly!
Then the parents' suite and another bedroom are in the left section of the house. The parents' bedroom has a large walk-in closet and private access to the family bathroom. The bathroom has a separate bath and shower.
The kitchen has a pantry which also offers access to the garage, as previously mentioned. In addition, an imposing island that can easily accommodate 4 guests is located in the kitchen. This room is open to both the living room and the dining room. The living room has a cathedral ceiling in addition to a fireplace and built-in furniture. The dining room receives beautiful natural light through patio doors and windows on the other 2 sections of the wall.
This magnificent house also offers a garage with workshop area, as well as a basement to be finished according to your family needs, but note that other types of foundations are also available. This plan is also available without a garage, see the Chardonnay plan (# 6108) which offers a garage in addition to some interior modifications.
Distinctive elements
Modern Scandinavian 2 bedrooms house plan.
Cathedral ceiling in living room, and 9' ceiling elsewhere.
Covered front porch.
Den near home entrance (or bedroom #3).
Connecting mudroom and laundry room.
Kitchen with large island and pantry.
Fireplace in living room.
Bright dining room.
Master suite with walk-in closet.
Great rear covered terrace.
Plan feature(s)
Cathedral ceiling, Gound floor laundry room, Master suite on main, Mud room, Built-ins, Deck, Oversized garage, Pantry, Island, His/Hers walk-in, Ceiling over 8', Office / Study / Den, Separate bath and shower, Fireplace, Open floor layout
Plan architectural style(s)
. Scandinavian, . Transitional, . Modern / Design, . Modern rustic, . Contemporary, . L-Shaped, Modern Craftsman, . Ranch
Similar plans
Previously Viewed Plans
Thank you for your comment! It must be approved before being put online, please allow a period of 24 hours.
Error with google reCaptcha! Try again
Here is a brief description of our different plan packages. Please select the plan package that suits your needs. You can change the package at the next step, if necessary.
PDF VERSION OF PLAN:
Complete digital version of plan (pdf format) sent by email (original plan format 18" x 24'' or 24" x 36'')
5 copies of plan + PDF:
Includes: 5 copies of plan, plan in PDF format (reduced size version), materials list.
Foundation type
Additional foundation types are available, a fee may apply. Please indicate your choice on the online order form, or to our customer service representative, when placing your house plan order.
If your desired foundation type is not available, please contact our customer service to receive your free plan modification quote.
Explanation of bonus space types
UNFINISHED BONUS ROOM
The bonus rooms are often planned above the garage and are accessible from the house. They are designed to be converted as an office, a laundry area, a bathroom, a library corner or even an additional bedroom for which homeowners must make sure to have a window that complies with current codes & standards.
STORAGE AREA
Often located above the garage, our storage areas are used only as storage and are usually accessible from the garage via a retractable staircase.
Do you like this plan but want it to be modified to suit your needs?
To add a garage, another bedroom, finish the basement or any other modification, click here and let us know about your desired changes and to get your free quote for the modification of your plan.
Conditions of use
Important copyright notice! Please take note of these copyright conditions before printing:
By printing this house plan, cottage or garage or the floorplan(s), you confirm being informed that every house plan on this website is the exclusive property of Drummond House
Plans and is protected by Canadian copyright law. You are aware that these prints cannot be used to build or even obtain a building permit. The graphic representations of these
models are offered by Drummond House Plans for the sole purpose of allowing you to notate modifications of a model and then take it to one of the Drummond House Plans Canadian dealers for
modification of the plan.
The purchase of a house plan, cottage or garage from Drummond House Plans is mandatory if you wish to build any of our models. The plan purchase allows you to build a single unit; you cannot resell or give your plan to anyone once the house, cottage or garage has been built. If you wish to build the same house, cottage or garage more than once, you need to obtain the licence to this effect. Please contact us for more details.
All plans from Drummond House Plans can only be modified by a licensed Drummond House Plan Canadian dealer. If any other business or individual with no affiliation to Drummond House Plans modifies a Drummond House Plan on your behalf, please ensure this business or individual has a licence to modify this specific plan or you will be subject to prosecution on the same level as the business or individual who modified or reproduced the plan.
For more details, do not hesitate to contact u by e-mail or by phone at 1-800-567-1413.
I agree to respect the conditions above to not reproduce, modify or build a model from Drummond House Plans without previously purchasing a complete house plan.

































