There are no shipping fees if you buy one of our 2 plan packages "PDF file format" or "5 sets of blueprints + PDF". Shipping charges may apply if you buy additional sets of blueprints.
House plan Olympe 3 (3992-V2)
3 bedroom small modern Farmhouse home plan, garage, cathedral ceiling, large covered deck, open living concept
Other useful information on this plan
Small 3 bedroom farmhouse home plan with garage
Check out this superb new one-story home with garage and three bedrooms. This is another great addition to our collection and is ideal for lake fronts or mountain sides. Olympe 3 (plan 3993-V2) is a version of our plan 3992 with a garage addition as well as 3 bedrooms instead of 2, and had the same cottage type feel that was so appreciated from plan 3992.
In addition to its trendiness, this home is sure to fill you with a warm feeling and stands out quite brilliantly from other 1-story homes. Of Scandinavian inspiration, it also offers a surprising dining room and the triple window patio door will be sure to inspire nature lovers of all types as well as families.
This plan also features 3 full sized bedrooms, one of which is the main bedroom with a big walk in closet. Inside, you will note the simple and pure contemporary style look. That being said, Tesla solar tiles would be a great addition! You may consult the most recent information in regards to Tesla tiles here.
The home entrance offers a very practical and big closet, great for storage. The living room, kitchen and dining room form a spectacular open concept thanks to the cathedral ceilings of 16’ in height. The exposed decorative beams add even more style to this grand space that also leads directly to the covered exterior terrace and exterior kitchen via the three window patio door.
Being completely covered, the terrace is without a doubt ideal for great gatherings with friends and family, especially during the warmer seasons rain or shine!
This home’s exquisite triple window patio door will bring much natural light to the kitchen and dining room. Unquestionably having all the charms a cottage style home has to offer, this 4-season dwelling is the ideal choice for all those dreaming of a warm and cosiness.
The full bathroom with separate shower is located close to the master bedroom where you also have a private access outdoors to the terrace. Whether you are wishing to spend a warm and comfy winter season close to the fireplace, or an exciting summer out on the covered terrace look no more, this house plan is for you!
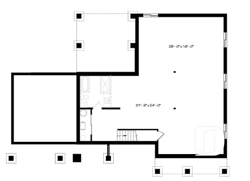
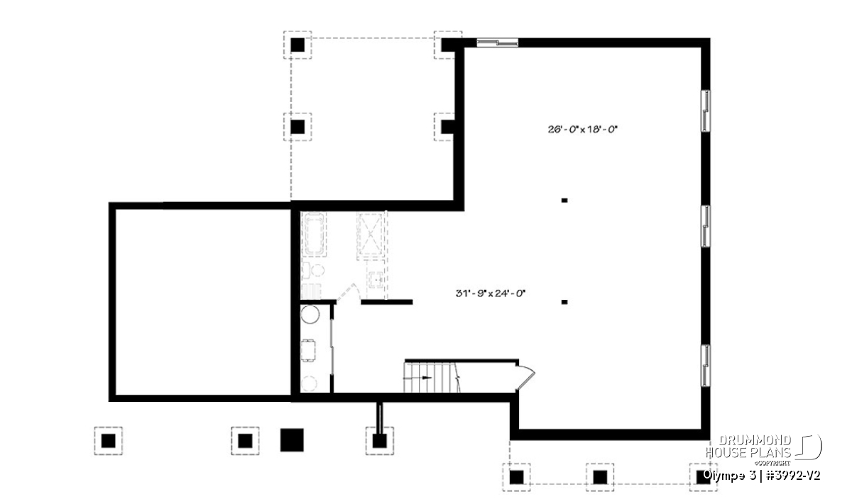
An unfinished basement can also be later completed as your family needs evolve.
---
IMPORTANT:
This house plan is part of a 3 house plan collection. Here are the distinctive features for each of them:
Plan # 3992: base model with 1212 heated square feet, no garage, laundry located in unfinished basement.
Plan # 3992-V1: exact same floor plan as base model # 3992, but with garage.
Plan # 3992-V2: enlarged floor plans to 1604 heated square feet, with garage and laundry located on main floor (not in basement like the two other versions).
Distinctive elements
One-story house with 3 bedrooms and garage.
Scandinavian inspiration.
9’ ceilings throughout the main floor with the exception of the living room which has cathedral ceilings and exposed decorative beams.
Master bedroom with spacious walk in closet and direct access to exterior terrace.
Two good sized secondary bedrooms.
An imposing fireplace in the family room.
Good sized central island in the kitchen with lots of natural light.
Laundry room situated near the bedrooms.
Covered terrace allowing for an organized exterior kitchen.
Garage with direct access to the house.
Unfinished basement that can be subsequently finished according to the family’s needs.
Plan feature(s)
Gound floor laundry room, Lunch counter, Panoramic view, Fireplace, Built-ins, Open floor layout, Cathedral ceiling, Plafond avec fausses poutres, Deck, Outdoor kitchen
Plan architectural style(s)
. Craftsman / Northwest, . Transitional, . Modern rustic, . Ranch, . Rustic, . Farmhouse, . Mountain, . Country, . Scandinavian, . L-Shaped, Modern farmhouse
Similar plans
Previously Viewed Plans
Thank you for your comment! It must be approved before being put online, please allow a period of 24 hours.
Error with google reCaptcha! Try again
Here is a brief description of our different plan packages. Please select the plan package that suits your needs. You can change the package at the next step, if necessary.
PDF VERSION OF PLAN:
Complete digital version of plan (pdf format) sent by email (original plan format 18" x 24'' or 24" x 36'')
5 copies of plan + PDF:
Includes: 5 copies of plan, plan in PDF format (reduced size version), materials list.
Foundation type
Additional foundation types are available, a fee may apply. Please indicate your choice on the online order form, or to our customer service representative, when placing your house plan order.
If your desired foundation type is not available, please contact our customer service to receive your free plan modification quote.
Explanation of bonus space types
UNFINISHED BONUS ROOM
The bonus rooms are often planned above the garage and are accessible from the house. They are designed to be converted as an office, a laundry area, a bathroom, a library corner or even an additional bedroom for which homeowners must make sure to have a window that complies with current codes & standards.
STORAGE AREA
Often located above the garage, our storage areas are used only as storage and are usually accessible from the garage via a retractable staircase.
Do you like this plan but want it to be modified to suit your needs?
To add a garage, another bedroom, finish the basement or any other modification, click here and let us know about your desired changes and to get your free quote for the modification of your plan.
Conditions of use
Important copyright notice! Please take note of these copyright conditions before printing:
By printing this house plan, cottage or garage or the floorplan(s), you confirm being informed that every house plan on this website is the exclusive property of Drummond House
Plans and is protected by Canadian copyright law. You are aware that these prints cannot be used to build or even obtain a building permit. The graphic representations of these
models are offered by Drummond House Plans for the sole purpose of allowing you to notate modifications of a model and then take it to one of the Drummond House Plans Canadian dealers for
modification of the plan.
The purchase of a house plan, cottage or garage from Drummond House Plans is mandatory if you wish to build any of our models. The plan purchase allows you to build a single unit; you cannot resell or give your plan to anyone once the house, cottage or garage has been built. If you wish to build the same house, cottage or garage more than once, you need to obtain the licence to this effect. Please contact us for more details.
All plans from Drummond House Plans can only be modified by a licensed Drummond House Plan Canadian dealer. If any other business or individual with no affiliation to Drummond House Plans modifies a Drummond House Plan on your behalf, please ensure this business or individual has a licence to modify this specific plan or you will be subject to prosecution on the same level as the business or individual who modified or reproduced the plan.
For more details, do not hesitate to contact u by e-mail or by phone at 1-800-567-1413.
I agree to respect the conditions above to not reproduce, modify or build a model from Drummond House Plans without previously purchasing a complete house plan.












