There are no shipping fees if you buy one of our 2 plan packages "PDF file format" or "5 sets of blueprints + PDF". Shipping charges may apply if you buy additional sets of blueprints.
House plan Nordika 4 (6102-V3)
Nordic Craftsman Home Plan – 3 Bedrooms on One Level, Perfect for Families
Other useful information on this plan
Nordic Craftsman Home Plan – 3 Bedrooms on One Level, Perfect for Families
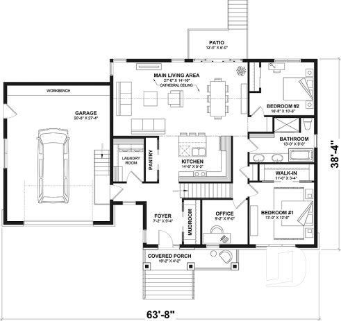
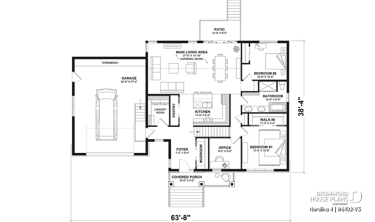
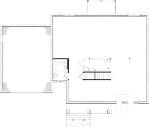
Discover this stunning Nordic Craftsman–style home plan, thoughtfully designed to meet the needs of today’s families while offering a warm and refined setting. With three bedrooms located on the same level, it makes everyday life easier and keeps parents and children close. This practical, family-friendly layout ensures comfort and security, especially for households who want everything within reach.
From the very first glance, you’re welcomed by the covered front porch, perfect for relaxing outdoors and enjoying the seasons in comfort. Inside, the main floor features 9-foot ceilings throughout, creating an airy sense of space and light. The dining area and living room are crowned with a cathedral ceiling, adding dramatic volume and an open, inviting atmosphere that encourages family time and entertaining.
At the heart of the home, the spacious kitchen includes a walk-in pantry for optimal storage and a large island that’s perfect for prepping meals or gathering with family and friends. The primary bedroom also features its own walk-in closet, adding a touch of luxury and everyday practicality.
The large family bathroom is designed with busy mornings in mind, offering double vanities, a separate bathtub, and a stand-alone shower, so everyone has space and privacy. A generous main-floor laundry room makes household chores simple and efficient.
The double garage offers direct access into the home—ideal for unloading groceries or bringing children inside without braving the weather. A dedicated workbench area in the garage provides a convenient spot for DIY projects, repairs, or organizing sports equipment.
This plan perfectly combines Nordic aesthetics with Craftsman charm. Its harmonious design, bright open spaces, and practical layout make it an excellent choice for families seeking comfort, functionality, and timeless style. It’s a home where every family member can thrive and create lasting memories.
Distinctive elements
Superb Nordic Craftsman style house plan.
Ground floor plan with 3 bedrooms on the same level.
One-storey home plan with two-car garage.
9 foot ceiling throughout on the ground floor, and cathedral ceiling in the dining room / living room.
Large kitchen with walk-in pantry.
Walk-in closet in the master bedroom.
Large family bathroom with 2 sinks and separate bath and shower.
Large laundry room on the ground floor.
Direct access to the house via the garage.
Sheltered front balcony.
Plan feature(s)
Island, Mud room, Gound floor laundry room, Walk-in master bed., Office / Study / Den, Pantry, Cathedral ceiling
Plan architectural style(s)
. Craftsman / Northwest, . Mountain, . Farmhouse, . Ranch, . Rustic, . Transitional, . Country, . Modern rustic
Similar plans
Previously Viewed Plans
Questions and comments
January 22
MIKE WURTH
This is a perfect floor plan for my land. Since this will be my retirement home and want it to fit with limited steps both for the front porch and rear patio deck. Only need half of the front porch. Lower full basement without the current windows. Do not need the garage portion as already have a separate 30 x 40 bldg. The only change for the interior will be to add a full bathroom by squaring out the foundation across the laundry room.
January 22
Marie
Good afternoon Mr. Wurth,
Please fill up this form, including the above details and also anything else you would like to add/remove from plan 6102-V3.
Upon reception, we will provide you with a FREE plan modification estimate.
drummondhouseplans.com/plan-modification-request-form/1003319
Thanks and we'll wait for your form!
DrummondHousePlans.com
Phone: 1-800-567-5267 ext.109
[email protected]
Thank you for your comment! It must be approved before being put online, please allow a period of 24 hours.
Error with google reCaptcha! Try again
Here is a brief description of our different plan packages. Please select the plan package that suits your needs. You can change the package at the next step, if necessary.
PDF VERSION OF PLAN:
Complete digital version of plan (pdf format) sent by email (original plan format 18" x 24'' or 24" x 36'')
5 copies of plan + PDF:
Includes: 5 copies of plan, plan in PDF format (reduced size version), materials list.
Foundation type
Additional foundation types are available, a fee may apply. Please indicate your choice on the online order form, or to our customer service representative, when placing your house plan order.
If your desired foundation type is not available, please contact our customer service to receive your free plan modification quote.
Explanation of bonus space types
UNFINISHED BONUS ROOM
The bonus rooms are often planned above the garage and are accessible from the house. They are designed to be converted as an office, a laundry area, a bathroom, a library corner or even an additional bedroom for which homeowners must make sure to have a window that complies with current codes & standards.
STORAGE AREA
Often located above the garage, our storage areas are used only as storage and are usually accessible from the garage via a retractable staircase.
Do you like this plan but want it to be modified to suit your needs?
To add a garage, another bedroom, finish the basement or any other modification, click here and let us know about your desired changes and to get your free quote for the modification of your plan.
Conditions of use
Important copyright notice! Please take note of these copyright conditions before printing:
By printing this house plan, cottage or garage or the floorplan(s), you confirm being informed that every house plan on this website is the exclusive property of Drummond House
Plans and is protected by Canadian copyright law. You are aware that these prints cannot be used to build or even obtain a building permit. The graphic representations of these
models are offered by Drummond House Plans for the sole purpose of allowing you to notate modifications of a model and then take it to one of the Drummond House Plans Canadian dealers for
modification of the plan.
The purchase of a house plan, cottage or garage from Drummond House Plans is mandatory if you wish to build any of our models. The plan purchase allows you to build a single unit; you cannot resell or give your plan to anyone once the house, cottage or garage has been built. If you wish to build the same house, cottage or garage more than once, you need to obtain the licence to this effect. Please contact us for more details.
All plans from Drummond House Plans can only be modified by a licensed Drummond House Plan Canadian dealer. If any other business or individual with no affiliation to Drummond House Plans modifies a Drummond House Plan on your behalf, please ensure this business or individual has a licence to modify this specific plan or you will be subject to prosecution on the same level as the business or individual who modified or reproduced the plan.
For more details, do not hesitate to contact u by e-mail or by phone at 1-800-567-1413.
I agree to respect the conditions above to not reproduce, modify or build a model from Drummond House Plans without previously purchasing a complete house plan.















January 22
MIKE WURTH
This is a perfect floor plan for my land. Since this will be my retirement home and want it to fit with limited steps both for the front porch and rear patio deck. Only need half of the front porch. Lower full basement without the current windows. Do not need the garage portion as already have a separate 30 x 40 bldg. The only change for the interior will be to add a full bathroom by squaring out the foundation across the laundry room.