There are no shipping fees if you buy one of our 2 plan packages "PDF file format" or "5 sets of blueprints + PDF". Shipping charges may apply if you buy additional sets of blueprints.
House plan Wellington (3146)
Modern Craftsman style 2 to 4 bedroom home with living & family rooms, ideal home for big family
Other useful information on this plan
Lovely farmhouse with finished basement — offering a total of 4 bedrooms!
Discover the WELLINGTON house plan (Plan #3146): a stunning country-style home that beautifully blends rustic charm with modern convenience. The house stands as an excellent choice for people who want peaceful family life or who need a comfortable and serene environment with a warm atmosphere.
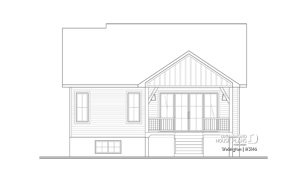
As you enter the house you will be drawn to the covered front porch where you can start your day with coffee or unwind at night. The sheltered rear terrace provides a comfortable outdoor space which you can enjoy during any time of the year.
The practical front entryway of this home includes both a built-in bench and intelligent storage options which help maintain organized coats and shoes and bags. The primary bedroom presents a peaceful design which includes a spacious walk-in closet that provides ample storage without losing its stylish appearance.
The main-floor family bathroom stands out as a key feature of this home with double sinks, a comfortable bathtub, a modern separate shower and a built-in laundry chute that connects directly to the laundry room in the basement — a small yet helpful detail that enhances daily routines.
The welcoming kitchen has a well-designed pantry that makes it perfect for home cooks who want everything they need at hand. The living area receives abundant natural light from large rear-facing windows which produce a bright space while showing beautiful outdoor views.
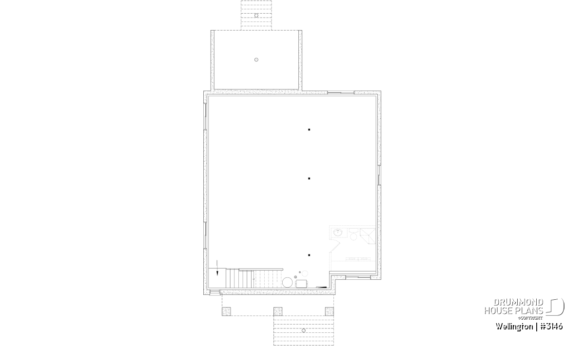
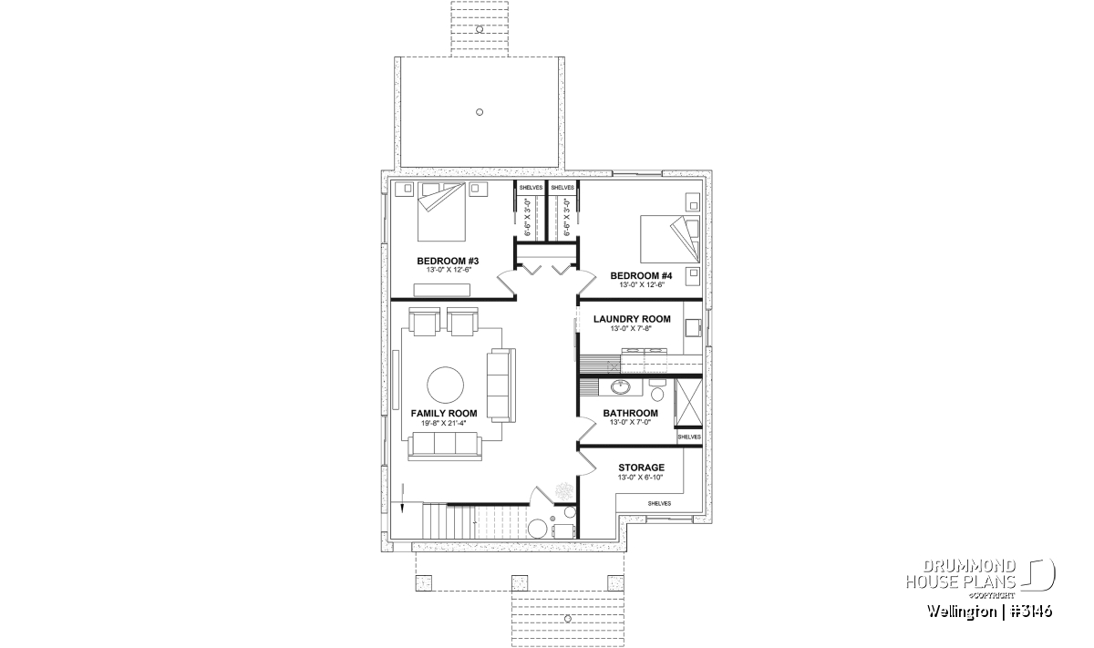
Additionally the *optional finished basement provides two extra bedrooms and a full shower room which increases the total to four bedrooms and two bathrooms. The adaptable space works best for families who need extra space for both visiting visitors and home office setups.
A true dream home, full of charm and functionality — ready to welcome you!
---
*If you wish to purchase the finished basement plan, as presented on this plan page, please select this option in the shopping cart, in the "Selection of foundation type" section. If you do not select this option, you will receive the unfinished full basement option, at no extra charge.
Distinctive elements
A country-style home with a covered porch at the front and a protected patio at the back allows outdoor enjoyment during any time of year.
A practical mudroom with built-in bench and storage features at the entryway. The primary bedroom features a walk-in closet which provides efficient storage organization.
The main-floor family bathroom features double sinks together with a bathtub and separate shower and a laundry chute that connects directly to the basement laundry room.
The kitchen features a well-planned pantry which allows easy access to all storage needs. The living areas at the back of the house receive abundant natural light through large windows which creates a warm and inviting atmosphere throughout the space.
---
*Finished basement (optional $):
2 additional bedrooms and a shower room in the basement, for a total of 4 bedrooms and 2 bathrooms.
---
*If you wish to purchase the finished basement plan, as presented on this plan page, please select this option in the shopping cart, in the "Selection of foundation type" section. If you do not select this option, you will receive the unfinished full basement option, at no extra charge.
Plan feature(s)
Open floor layout, Laundry chute, Pantry, Island, Master suite on main, Walk-in master bed., Separate bath and shower, Double sinks, Mud room, Shelves, Deck, Ceiling over 8', Builder
Plan architectural style(s)
Modern farmhouse, Modern Craftsman, . Transitional, . Farmhouse, . Country, . Ranch
Similar plans
Previously Viewed Plans
Thank you for your comment! It must be approved before being put online, please allow a period of 24 hours.
Error with google reCaptcha! Try again
Here is a brief description of our different plan packages. Please select the plan package that suits your needs. You can change the package at the next step, if necessary.
PDF VERSION OF PLAN:
Complete digital version of plan (pdf format) sent by email (original plan format 18" x 24'' or 24" x 36'')
5 copies of plan + PDF:
Includes: 5 copies of plan, plan in PDF format (reduced size version), materials list.
Foundation type
Additional foundation types are available, a fee may apply. Please indicate your choice on the online order form, or to our customer service representative, when placing your house plan order.
If your desired foundation type is not available, please contact our customer service to receive your free plan modification quote.
Explanation of bonus space types
UNFINISHED BONUS ROOM
The bonus rooms are often planned above the garage and are accessible from the house. They are designed to be converted as an office, a laundry area, a bathroom, a library corner or even an additional bedroom for which homeowners must make sure to have a window that complies with current codes & standards.
STORAGE AREA
Often located above the garage, our storage areas are used only as storage and are usually accessible from the garage via a retractable staircase.
Do you like this plan but want it to be modified to suit your needs?
To add a garage, another bedroom, finish the basement or any other modification, click here and let us know about your desired changes and to get your free quote for the modification of your plan.
Conditions of use
Important copyright notice! Please take note of these copyright conditions before printing:
By printing this house plan, cottage or garage or the floorplan(s), you confirm being informed that every house plan on this website is the exclusive property of Drummond House
Plans and is protected by Canadian copyright law. You are aware that these prints cannot be used to build or even obtain a building permit. The graphic representations of these
models are offered by Drummond House Plans for the sole purpose of allowing you to notate modifications of a model and then take it to one of the Drummond House Plans Canadian dealers for
modification of the plan.
The purchase of a house plan, cottage or garage from Drummond House Plans is mandatory if you wish to build any of our models. The plan purchase allows you to build a single unit; you cannot resell or give your plan to anyone once the house, cottage or garage has been built. If you wish to build the same house, cottage or garage more than once, you need to obtain the licence to this effect. Please contact us for more details.
All plans from Drummond House Plans can only be modified by a licensed Drummond House Plan Canadian dealer. If any other business or individual with no affiliation to Drummond House Plans modifies a Drummond House Plan on your behalf, please ensure this business or individual has a licence to modify this specific plan or you will be subject to prosecution on the same level as the business or individual who modified or reproduced the plan.
For more details, do not hesitate to contact u by e-mail or by phone at 1-800-567-1413.
I agree to respect the conditions above to not reproduce, modify or build a model from Drummond House Plans without previously purchasing a complete house plan.
























