There are no shipping fees if you buy one of our 2 plan packages "PDF file format" or "5 sets of blueprints + PDF". Shipping charges may apply if you buy additional sets of blueprints.
House plan Hubert (3142)
Bright Classic Bungalow with Cathedral Ceilings, 2 to 5 Bedrooms, Fireplace, and Main Floor Primary Suite
Other useful information on this plan
Classic and Bright Bungalow Plan with Cathedral Ceilings, Fireplace, and Main-Floor Primary Suite
This beautiful classic-style bungalow combines timeless elegance, everyday comfort, and a well-thought-out floor plan designed for modern family living. Its refined architectural lines, bright interiors, and inviting spaces make it a home that is as practical as it is welcoming.
From the moment you arrive, the covered front porch sets the tone with its simple yet elegant charm, providing both shelter and curb appeal. Inside, the spacious entryway includes a built-in bench and two convenient closets, offering plenty of storage for coats, shoes, and accessories.
At the heart of the home lies a bright open-concept living area that seamlessly connects the kitchen, dining room, and living room — perfect for gatherings and family time. The kitchen stands out with its large central island and practical walk-in pantry, offering generous workspace and easy organization for home chefs and entertainers alike.
The 9-foot ceilings throughout the main level create a spacious and airy feel, while the cathedral ceiling in the dining and living areas adds a striking architectural touch. A cozy fireplace enhances the atmosphere, making this the perfect space to relax and enjoy the beauty of everyday life.
The primary suite on the main floor is designed for privacy and comfort, featuring a private bathroom and a walk-in closet. The main-floor laundry room adds convenience, making daily routines easier and more efficient. A flexible home office, which can easily be converted into a third bedroom, provides additional versatility for growing families or guests.
With 2 to 3 bedrooms and 2 full bathrooms on the main level, this home offers the ideal balance of comfort and functionality for all lifestyles.
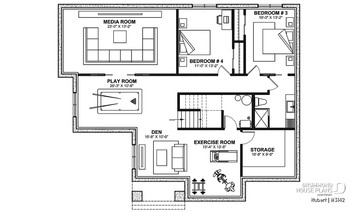
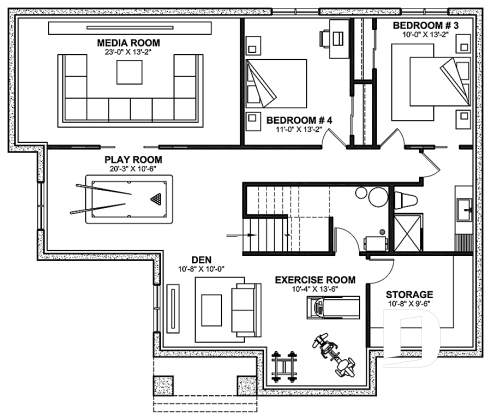
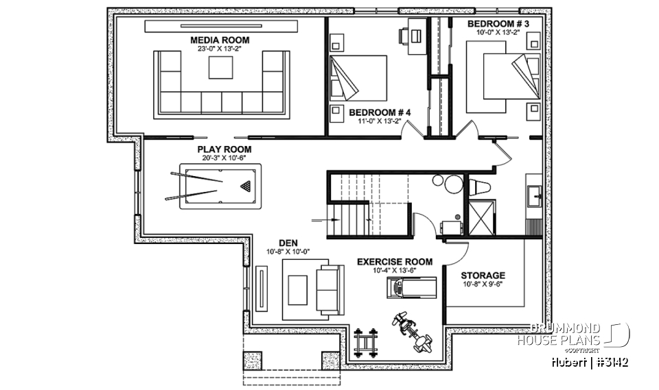
The unfinished basement provides endless possibilities for customization, whether for additional living space, hobbies, or storage. For those seeking more, the *finished basement option ($) includes two additional bedrooms, a modern shower room, a home theater, a game room, a small lounge, an exercise room, and generous storage space.
Elegant, flexible, and filled with natural light, this classic bungalow plan perfectly blends traditional style with modern living. It’s a home designed to evolve with your needs — comfortable, timeless, and built for lasting memories.
---
*If you wish to purchase the finished basement plan, please select this option in the shopping cart, in the "Selection of foundation type" section. If you do not select this option, you will receive the unfinished full basement option, at no extra charge.
Distinctive elements
Beautiful and versatile bungalow with a timeless classic design.
Covered front porch adding charm and protection from the elements.
Practical entrance with a built-in bench and two spacious closets.
Open-concept layout connecting the kitchen, dining room, and living area for a welcoming feel.
Abundant windows at the rear of the home allowing for exceptional natural light.
Modern kitchen with a large central island and pantry, perfect for cooking and entertaining.
Dining and living areas enhanced by a cathedral ceiling and a cozy fireplace, with 9-foot ceilings throughout the rest of the main floor.
Primary suite on the main level with private bathroom and walk-in closet.
Convenient main-floor laundry room for everyday comfort.
Home office that can easily be converted into bedroom #3 if needed.
Layout offering 2 to 3 bedrooms and 2 full bathrooms on the main floor.
Unfinished basement included.
---
Finished Basement (optional $):
Two additional comfortable bedrooms.
Modern and functional shower room.
Home theater room for movie nights with family and friends.
Bright and inviting game room plus a cozy sitting area.
Exercise room and additional storage space.
---
*If you wish to purchase the finished basement plan, please select this option in the shopping cart, in the "Selection of foundation type" section. If you do not select this option, you will receive the unfinished full basement option, at no extra charge.
Plan feature(s)
Gound floor laundry room, Master suite on main, Office / Study / Den, Game room, Open floor layout, Cathedral ceiling, Bench seat(s), Pantry, Fireplace, Double sinks, Separate bath and shower, Walk-in master bed., Media Room, Ceiling over 8', Sliding barn door(s), Self-Build
Plan architectural style(s)
Modern farmhouse, Modern Craftsman, . Farmhouse, . Transitional, . Country, . Modern rustic, . Ranch, . Traditional, . Vacation and waterfront, Classic
Similar plans
Previously Viewed Plans
Thank you for your comment! It must be approved before being put online, please allow a period of 24 hours.
Error with google reCaptcha! Try again
Here is a brief description of our different plan packages. Please select the plan package that suits your needs. You can change the package at the next step, if necessary.
PDF VERSION OF PLAN:
Complete digital version of plan (pdf format) sent by email (original plan format 18" x 24'' or 24" x 36'')
5 copies of plan + PDF:
Includes: 5 copies of plan, plan in PDF format (reduced size version), materials list.
Foundation type
Additional foundation types are available, a fee may apply. Please indicate your choice on the online order form, or to our customer service representative, when placing your house plan order.
If your desired foundation type is not available, please contact our customer service to receive your free plan modification quote.
Explanation of bonus space types
UNFINISHED BONUS ROOM
The bonus rooms are often planned above the garage and are accessible from the house. They are designed to be converted as an office, a laundry area, a bathroom, a library corner or even an additional bedroom for which homeowners must make sure to have a window that complies with current codes & standards.
STORAGE AREA
Often located above the garage, our storage areas are used only as storage and are usually accessible from the garage via a retractable staircase.
Do you like this plan but want it to be modified to suit your needs?
To add a garage, another bedroom, finish the basement or any other modification, click here and let us know about your desired changes and to get your free quote for the modification of your plan.
Conditions of use
Important copyright notice! Please take note of these copyright conditions before printing:
By printing this house plan, cottage or garage or the floorplan(s), you confirm being informed that every house plan on this website is the exclusive property of Drummond House
Plans and is protected by Canadian copyright law. You are aware that these prints cannot be used to build or even obtain a building permit. The graphic representations of these
models are offered by Drummond House Plans for the sole purpose of allowing you to notate modifications of a model and then take it to one of the Drummond House Plans Canadian dealers for
modification of the plan.
The purchase of a house plan, cottage or garage from Drummond House Plans is mandatory if you wish to build any of our models. The plan purchase allows you to build a single unit; you cannot resell or give your plan to anyone once the house, cottage or garage has been built. If you wish to build the same house, cottage or garage more than once, you need to obtain the licence to this effect. Please contact us for more details.
All plans from Drummond House Plans can only be modified by a licensed Drummond House Plan Canadian dealer. If any other business or individual with no affiliation to Drummond House Plans modifies a Drummond House Plan on your behalf, please ensure this business or individual has a licence to modify this specific plan or you will be subject to prosecution on the same level as the business or individual who modified or reproduced the plan.
For more details, do not hesitate to contact u by e-mail or by phone at 1-800-567-1413.
I agree to respect the conditions above to not reproduce, modify or build a model from Drummond House Plans without previously purchasing a complete house plan.
































