There are no shipping fees if you buy one of our 2 plan packages "PDF file format" or "5 sets of blueprints + PDF". Shipping charges may apply if you buy additional sets of blueprints.
House plan Hubert 2 (3142-V1)
Classic bright bungalow house plan with fireplace, covered terrace, and 2 to 5 flexible bedrooms!
Other useful information on this plan
Bright Classic Bungalow Plan with Fireplace, Covered Terrace, and 2 to 5 Versatile Bedrooms
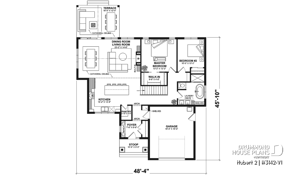
This stunning classic-style bungalow offers a perfect balance of timeless charm, comfort, and functionality. A smaller version of the HUBERT plan (#3142), this model has been thoughtfully redesigned to include an attached garage while maintaining the elegance and efficiency that make it so appealing.
From the moment you arrive, this home impresses with its smart and welcoming layout. Both the front entry and the garage entrance feature a built-in bench and double closets, ensuring practical organization for daily life. A graceful arched opening connects the entry to the kitchen, adding a touch of character and architectural flow.
The open-concept main living area combines the kitchen, dining room, and living room in a bright, inviting atmosphere. The kitchen features a large central island and a spacious pantry, providing ample workspace for cooking and entertaining. The living room, enhanced by a cozy fireplace and built-in cabinetry, becomes the perfect space to unwind or host family gatherings.
Nine-foot ceilings throughout the main floor create a sense of openness and comfort, while cathedral ceilings in the dining and living areas add height, light, and elegance to the heart of the home.
The primary suite offers a private and relaxing retreat, complete with a large walk-in closet and a well-appointed ensuite bathroom featuring a laundry chute, separate tub and shower, and double sinks. The flexible layout allows for 4 bedrooms plus an office, or up to 5 bedrooms, making this plan ideal for growing families or multi-purpose living.
At the back, a beautiful covered terrace of 192 sq.ft. extends the living space outdoors, providing the perfect setting for an outdoor dining area and lounge.
The unfinished basement offers great potential for customization, whether you envision a hobby area or additional living space. The finished *basement option ($) includes 2 more bedrooms, a versatile office (or bedroom #5), a spacious family room, a modern shower room, a dedicated laundry area, and ample storage.
Versatile, elegant, and designed for modern comfort, this classic bungalow plan is perfectly suited for both small and large families. It combines refined architecture, efficient design, and warm, livable spaces, a timeless home that grows with you.
---
*If you wish to purchase the finished basement plan, please select this option in the shopping cart, in the "Selection of foundation type" section. If you do not select this option, you will receive the unfinished full basement option, at no extra charge.
Distinctive elements
Stunning classic-style bungalow with timeless charm.
A smaller version of the HUBERT plan (#3142), now featuring an added garage for greater convenience.
Front entry and garage access both include a practical built-in bench and a spacious closet.
Elegant transition between the entryway and kitchen through two partial walls with a decorative arch.
Flexible layout offering the option of 4 bedrooms plus an office, or 5 bedrooms in total.
Generous primary bedroom with a large walk-in closet for optimal storage.
Well-appointed bathroom with a laundry chute, separate tub and shower, and double sinks.
Bright open-concept layout combining the kitchen, dining area, and living room in a welcoming flow.
9-foot ceilings throughout the main level, with cathedral ceilings in the dining and living areas.
Functional kitchen with a central island and a walk-in pantry, perfect for everyday living and entertaining.
Inviting living room with a fireplace and built-in cabinetry, ideal for relaxing in comfort.
Beautiful covered rear terrace of 192 sq.ft., perfect for setting up both a lounge and outdoor dining space.
Attached garage providing everyday practicality and easy access.
Unfinished basement. Other foundation options available.
---
*Finished Basement (optional $):
Two additional comfortable bedrooms.
Versatile office (or bedroom #5).
Spacious family room ideal for entertaining or relaxing.
Modern shower room and separate laundry area.
Ample storage space for added convenience.
---
*If you wish to purchase the finished basement plan, please select this option in the shopping cart, in the "Selection of foundation type" section. If you do not select this option, you will receive the unfinished full basement option, at no extra charge.
Plan feature(s)
Cathedral ceiling, Laundry chute, Deck, Shelves, Island, Ceiling over 8', Game room, Office / Study / Den, Bench seat(s), Pantry, Separate bath and shower, Double sinks, Built-ins, Fireplace, Walk-in master bed., Arch
Plan architectural style(s)
Classic, . European, . Ranch, French Country, Modern French Country, . Country, Trending, Modern farmhouse, . Traditional
Similar plans
Previously Viewed Plans
Thank you for your comment! It must be approved before being put online, please allow a period of 24 hours.
Error with google reCaptcha! Try again
Here is a brief description of our different plan packages. Please select the plan package that suits your needs. You can change the package at the next step, if necessary.
PDF VERSION OF PLAN:
Complete digital version of plan (pdf format) sent by email (original plan format 18" x 24'' or 24" x 36'')
5 copies of plan + PDF:
Includes: 5 copies of plan, plan in PDF format (reduced size version), materials list.
Foundation type
Additional foundation types are available, a fee may apply. Please indicate your choice on the online order form, or to our customer service representative, when placing your house plan order.
If your desired foundation type is not available, please contact our customer service to receive your free plan modification quote.
Explanation of bonus space types
UNFINISHED BONUS ROOM
The bonus rooms are often planned above the garage and are accessible from the house. They are designed to be converted as an office, a laundry area, a bathroom, a library corner or even an additional bedroom for which homeowners must make sure to have a window that complies with current codes & standards.
STORAGE AREA
Often located above the garage, our storage areas are used only as storage and are usually accessible from the garage via a retractable staircase.
Do you like this plan but want it to be modified to suit your needs?
To add a garage, another bedroom, finish the basement or any other modification, click here and let us know about your desired changes and to get your free quote for the modification of your plan.
Conditions of use
Important copyright notice! Please take note of these copyright conditions before printing:
By printing this house plan, cottage or garage or the floorplan(s), you confirm being informed that every house plan on this website is the exclusive property of Drummond House
Plans and is protected by Canadian copyright law. You are aware that these prints cannot be used to build or even obtain a building permit. The graphic representations of these
models are offered by Drummond House Plans for the sole purpose of allowing you to notate modifications of a model and then take it to one of the Drummond House Plans Canadian dealers for
modification of the plan.
The purchase of a house plan, cottage or garage from Drummond House Plans is mandatory if you wish to build any of our models. The plan purchase allows you to build a single unit; you cannot resell or give your plan to anyone once the house, cottage or garage has been built. If you wish to build the same house, cottage or garage more than once, you need to obtain the licence to this effect. Please contact us for more details.
All plans from Drummond House Plans can only be modified by a licensed Drummond House Plan Canadian dealer. If any other business or individual with no affiliation to Drummond House Plans modifies a Drummond House Plan on your behalf, please ensure this business or individual has a licence to modify this specific plan or you will be subject to prosecution on the same level as the business or individual who modified or reproduced the plan.
For more details, do not hesitate to contact u by e-mail or by phone at 1-800-567-1413.
I agree to respect the conditions above to not reproduce, modify or build a model from Drummond House Plans without previously purchasing a complete house plan.













