There are no shipping fees if you buy one of our 2 plan packages "PDF file format" or "5 sets of blueprints + PDF". Shipping charges may apply if you buy additional sets of blueprints.
House plan Newland (3326)
Small split level home, 1 to 3 beds, optional finished basement ($), 2 family rooms, wood burning stove, gym
Other useful information on this plan
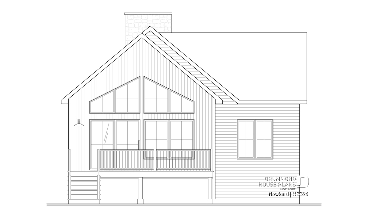
Incredible brightness for this small modern split-level farmhouse home!
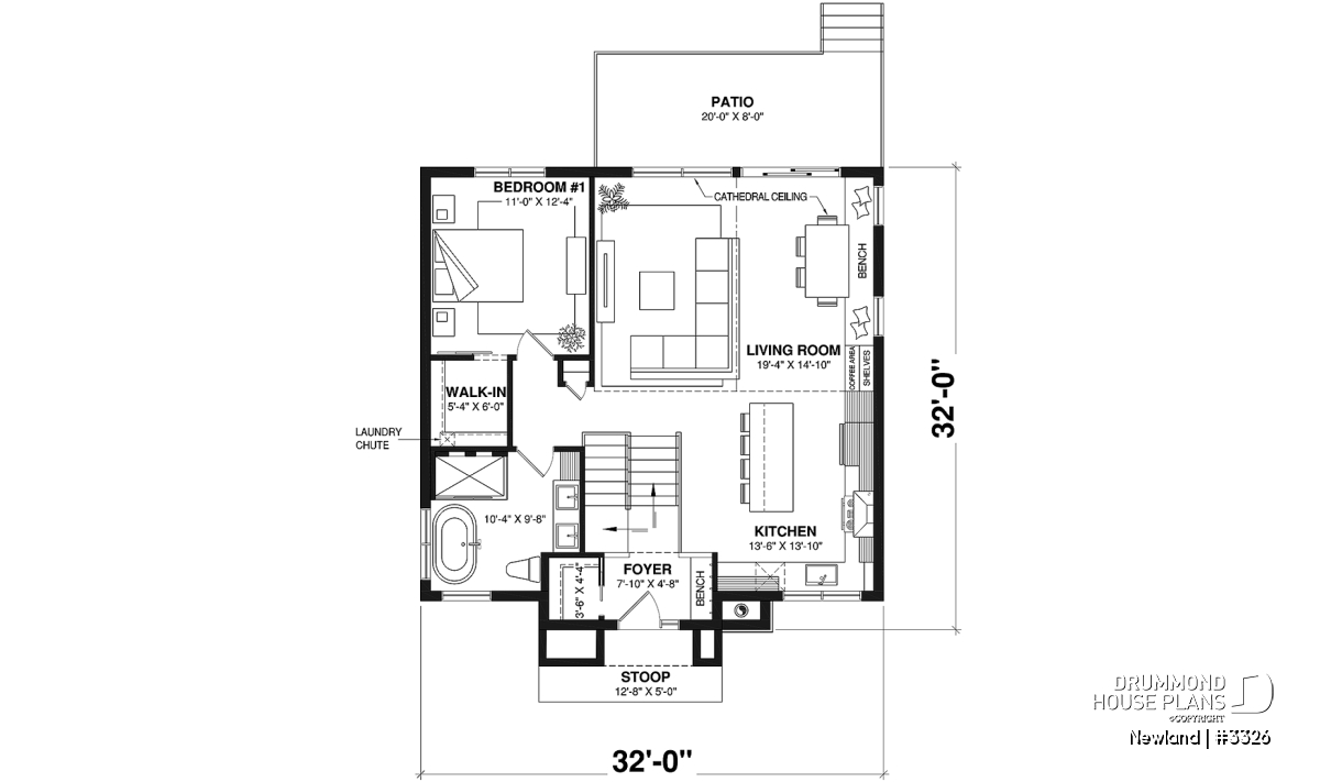
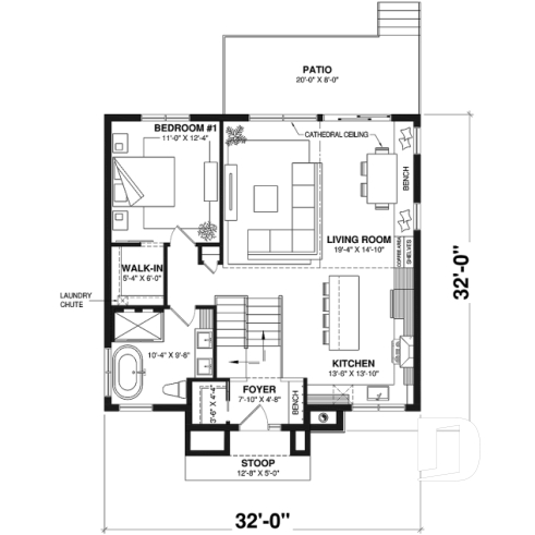
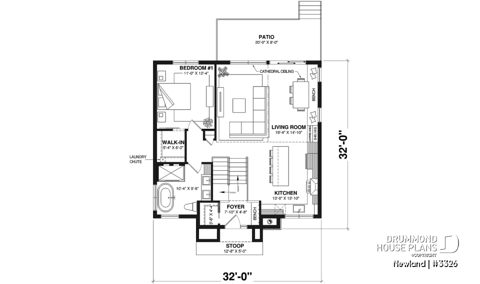
The NEWLAND house plan (plan #3326) offers 1970 sq.ft. arranged on two floors. At a first glance, this plan offers simple lines and architecture, the presence of stone on the facade as well as wood at the exterior front entrance will charm more than one! And what about the back of the house... WOW!!! So let's go in...
The front split entrance is open to 12' of ceiling and includes a walk-in closet as well as a practical bench, ideal for putting on your shoes or putting your shopping when you return from doing errands. Then, after taking the flight of stairs to the main floor, you are greeted by an open concept space including the kitchen, the living room and the dining area. Although the house is compact in size, the cathedral ceiling in the living room area and the 9' ceiling on the remaining main floor will give you a feeling of spaciousness. A nice "coffee bar" corner is provided between the kitchen and the dining room. The latter, although compact, offers enough space to accommodate 6 people thanks to its bench seat which gives a great style to this area!
The parents' bedroom is also located on the main floor and offers a walk-in closet in which we have integrated a laundry chute directed in the basement to save you a few steps. A complete bathroom, near the master bedroom, offers a large shower and a separate bath, as well as two sinks and storage.
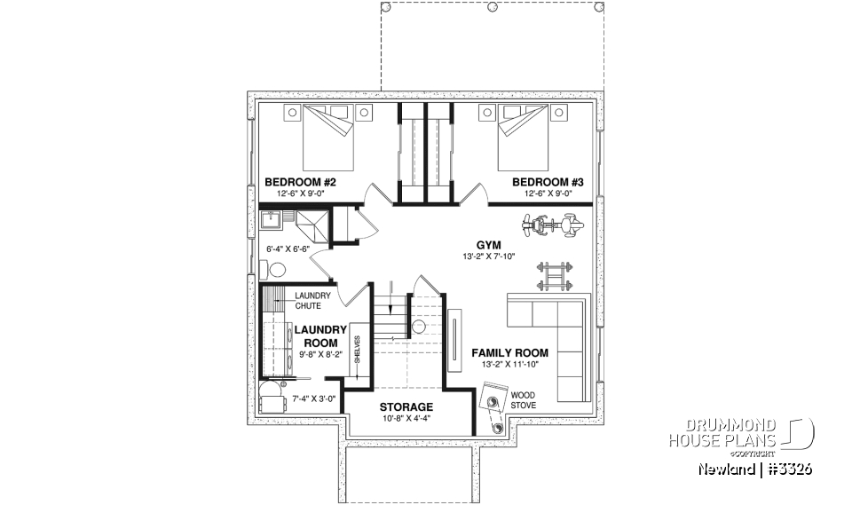
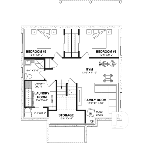
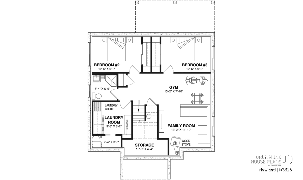
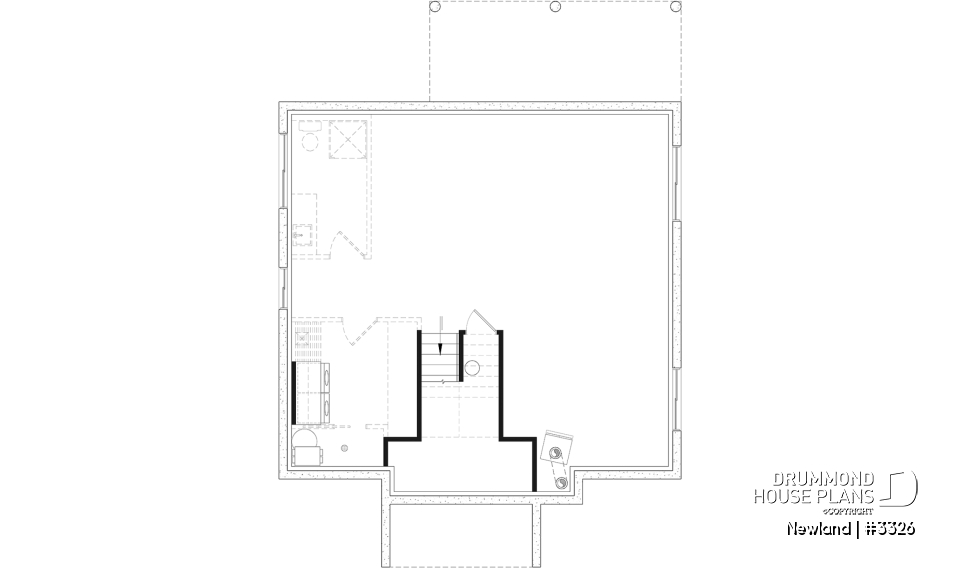
Optional finished daylight basement ($):
In the daylight basement there is a family room, where the cold evenings will be more appreciated thanks to the wood stove that is installed there, nothing less! Then, two secondary bedrooms whose vocation may vary according to your needs, share a shower room. A flexible space is also provided either to install some training accessories or an office area, your choice. The laundry room and a storage area (low ceiling) complete this level that will delight your children, young or old!
*If you wish to purchase the finished basement plan, please select this option in the shopping cart, in the "Selection of foundation type" section. If you do not select this option, you will receive the unfinished full basement option, at no extra charge.
An interesting price and timeless style for this wonderful and beautifully appointed modern farmhouse!!
Distinctive elements
Modern farmhouse style home, ideal as a first home.
Maximized square feet both on the daylight basement and upstairs.
Interesting construction cost considering what this house has to offer.
Entrance with small walk-in closet and bench.
Kitchen with island and open to the living room.
Coffee corner set up between the kitchen and the dining room.
The master bedroom has a walk-in closet with a laundry chute leading to the laundry room, downstairs.
A large bathroom on the ground floor offers a storage cabinet, a separate bath and shower as well as 2 sinks.
Optional finished daylight basement ($):
A wood stove is installed in the basement, in the family room.
The area between the family room and bedroom #3 in the basement can be used as a small gym, office area or games room.
*If you wish to purchase the finished basement plan, please select this option in the shopping cart, in the "Selection of foundation type" section. If you do not select this option, you will receive the unfinished full basement option, at no extra charge.
Plan feature(s)
Panoramic view, Cathedral ceiling, Coffee bar, Open floor layout, Bench seat(s), Separate bath and shower, Double sinks, Walk-in master bed., Laundry chute, Shelves, Wood stove, Self-Build
Plan architectural style(s)
Modern farmhouse, . Transitional, . Country, . Farmhouse, Trending
Similar plans
Previously Viewed Plans
Thank you for your comment! It must be approved before being put online, please allow a period of 24 hours.
Error with google reCaptcha! Try again
Here is a brief description of our different plan packages. Please select the plan package that suits your needs. You can change the package at the next step, if necessary.
PDF VERSION OF PLAN:
Complete digital version of plan (pdf format) sent by email (original plan format 18" x 24'' or 24" x 36'')
5 copies of plan + PDF:
Includes: 5 copies of plan, plan in PDF format (reduced size version), materials list.
Foundation type
Additional foundation types are available, a fee may apply. Please indicate your choice on the online order form, or to our customer service representative, when placing your house plan order.
If your desired foundation type is not available, please contact our customer service to receive your free plan modification quote.
Explanation of bonus space types
UNFINISHED BONUS ROOM
The bonus rooms are often planned above the garage and are accessible from the house. They are designed to be converted as an office, a laundry area, a bathroom, a library corner or even an additional bedroom for which homeowners must make sure to have a window that complies with current codes & standards.
STORAGE AREA
Often located above the garage, our storage areas are used only as storage and are usually accessible from the garage via a retractable staircase.
Do you like this plan but want it to be modified to suit your needs?
To add a garage, another bedroom, finish the basement or any other modification, click here and let us know about your desired changes and to get your free quote for the modification of your plan.
Conditions of use
Important copyright notice! Please take note of these copyright conditions before printing:
By printing this house plan, cottage or garage or the floorplan(s), you confirm being informed that every house plan on this website is the exclusive property of Drummond House
Plans and is protected by Canadian copyright law. You are aware that these prints cannot be used to build or even obtain a building permit. The graphic representations of these
models are offered by Drummond House Plans for the sole purpose of allowing you to notate modifications of a model and then take it to one of the Drummond House Plans Canadian dealers for
modification of the plan.
The purchase of a house plan, cottage or garage from Drummond House Plans is mandatory if you wish to build any of our models. The plan purchase allows you to build a single unit; you cannot resell or give your plan to anyone once the house, cottage or garage has been built. If you wish to build the same house, cottage or garage more than once, you need to obtain the licence to this effect. Please contact us for more details.
All plans from Drummond House Plans can only be modified by a licensed Drummond House Plan Canadian dealer. If any other business or individual with no affiliation to Drummond House Plans modifies a Drummond House Plan on your behalf, please ensure this business or individual has a licence to modify this specific plan or you will be subject to prosecution on the same level as the business or individual who modified or reproduced the plan.
For more details, do not hesitate to contact u by e-mail or by phone at 1-800-567-1413.
I agree to respect the conditions above to not reproduce, modify or build a model from Drummond House Plans without previously purchasing a complete house plan.








































