There are no shipping fees if you buy one of our 2 plan packages "PDF file format" or "5 sets of blueprints + PDF". Shipping charges may apply if you buy additional sets of blueprints.
House plan Riverland (6115)
Modern Farmhouse Home Plan – Covered Porches, 1 to 3 Bedrooms, and Inviting Family Living Spaces
Other useful information on this plan
Country Style House Plan with Covered Porches, 1 to 3 Bedrooms, and Warm Family Living Spaces
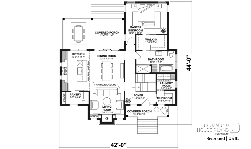
This charming country style house plan combines timeless curb appeal with a well-thought-out layout designed for modern families. Featuring covered front and rear porches, it allows you to enjoy outdoor living in every season—whether it’s sipping morning coffee in the sunshine or hosting dinner on a rainy summer evening. With its rustic charm, bright interiors, and practical design, this home is as welcoming as it is functional.
From the moment you step inside, a practical mudroom keeps things organized, while the separate laundry room nearby makes everyday life easier. At the heart of the home, the open-concept kitchen is perfect for both family meals and entertaining. It offers a spacious central island and a well-sized pantry, ensuring both functionality and plenty of storage.
The dining area shines with natural light thanks to large patio doors that open directly onto the expansive covered rear porch, creating a seamless connection between indoors and outdoors. The front living room adds warmth and character with its cozy fireplace flanked by built-in benches on each side. To enhance the feeling of space, cathedral ceilings in the dining and living rooms make the area bright and airy, while 9-foot ceilings throughout the rest of the main floor add elegance.
The primary bedroom suite is a true retreat, featuring a walk-in closet and direct access to the spacious main bathroom, offering both privacy and comfort. The unfinished basement provides complete flexibility, allowing you to customize the space to suit your future needs—whether you dream of a playroom, home gym, or extra storage.
Optional Finished Basement ($):
For families needing more room, the optional finished basement expands the home with two additional bedrooms, perfect for teenagers or guests. A large family room with space for a pool table becomes the ideal gathering spot for movie nights or entertaining. This level also includes a full bathroom, a storage room with shelving, and a separate mechanical room, ensuring convenience and organization.
Blending country charm, modern comfort, and flexible living spaces, this 1 to 3-bedroom home plan with garage and optional finished basement is an excellent choice for growing families or anyone seeking a warm, functional, and welcoming home.
Distinctive elements
Country house with sheltered front and rear balconies.
Fully finished basement.
Total of 3 bedrooms including 2 in the daylignt basement.
Mudroom with nearby laundry room.
Kitchen with good sized pantry.
Front living room with fireplace and small bench seat on each side.
Cathedral ceiling in the dining room and in the living room and 9' ceiling everywhere else on the ground floor.
Family room planned in the basement.
Plan feature(s)
Master suite on main, Cathedral ceiling, Gound floor laundry room, Walk-in master bed., Pantry, Fireplace, Mud room, Bench seat(s), Deck, Separate bath and shower, Open floor layout
Similar plans
Previously Viewed Plans
Thank you for your comment! It must be approved before being put online, please allow a period of 24 hours.
Error with google reCaptcha! Try again
Here is a brief description of our different plan packages. Please select the plan package that suits your needs. You can change the package at the next step, if necessary.
PDF VERSION OF PLAN:
Complete digital version of plan (pdf format) sent by email (original plan format 18" x 24'' or 24" x 36'')
5 copies of plan + PDF:
Includes: 5 copies of plan, plan in PDF format (reduced size version), materials list.
Foundation type
Additional foundation types are available, a fee may apply. Please indicate your choice on the online order form, or to our customer service representative, when placing your house plan order.
If your desired foundation type is not available, please contact our customer service to receive your free plan modification quote.
Explanation of bonus space types
UNFINISHED BONUS ROOM
The bonus rooms are often planned above the garage and are accessible from the house. They are designed to be converted as an office, a laundry area, a bathroom, a library corner or even an additional bedroom for which homeowners must make sure to have a window that complies with current codes & standards.
STORAGE AREA
Often located above the garage, our storage areas are used only as storage and are usually accessible from the garage via a retractable staircase.
Do you like this plan but want it to be modified to suit your needs?
To add a garage, another bedroom, finish the basement or any other modification, click here and let us know about your desired changes and to get your free quote for the modification of your plan.
Conditions of use
Important copyright notice! Please take note of these copyright conditions before printing:
By printing this house plan, cottage or garage or the floorplan(s), you confirm being informed that every house plan on this website is the exclusive property of Drummond House
Plans and is protected by Canadian copyright law. You are aware that these prints cannot be used to build or even obtain a building permit. The graphic representations of these
models are offered by Drummond House Plans for the sole purpose of allowing you to notate modifications of a model and then take it to one of the Drummond House Plans Canadian dealers for
modification of the plan.
The purchase of a house plan, cottage or garage from Drummond House Plans is mandatory if you wish to build any of our models. The plan purchase allows you to build a single unit; you cannot resell or give your plan to anyone once the house, cottage or garage has been built. If you wish to build the same house, cottage or garage more than once, you need to obtain the licence to this effect. Please contact us for more details.
All plans from Drummond House Plans can only be modified by a licensed Drummond House Plan Canadian dealer. If any other business or individual with no affiliation to Drummond House Plans modifies a Drummond House Plan on your behalf, please ensure this business or individual has a licence to modify this specific plan or you will be subject to prosecution on the same level as the business or individual who modified or reproduced the plan.
For more details, do not hesitate to contact u by e-mail or by phone at 1-800-567-1413.
I agree to respect the conditions above to not reproduce, modify or build a model from Drummond House Plans without previously purchasing a complete house plan.























