There are no shipping fees if you buy one of our 2 plan packages "PDF file format" or "5 sets of blueprints + PDF". Shipping charges may apply if you buy additional sets of blueprints.
                                                                                                                                                                                                                                                                                                                                                                                                                                                                                                                                                                                                                                                                                                                                                                          House plan Olympe  (3992)                
                                      
                                  
              
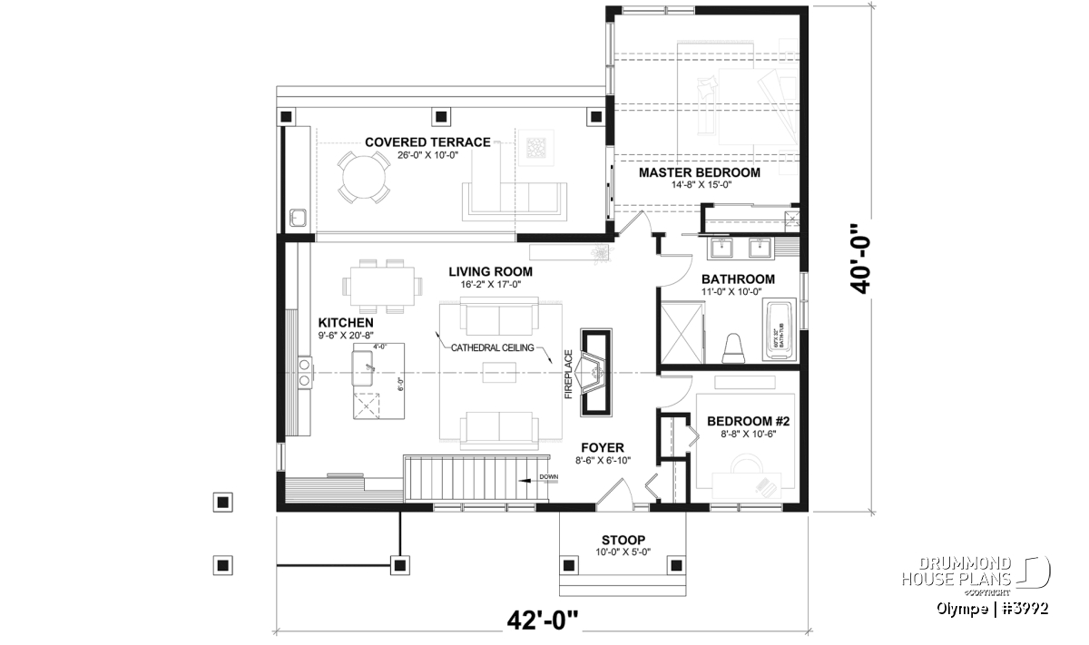
              Farmhouse style house plan, cathedral ceiling w/exposed wood beams, open floor plan, outdoor kitchen
Virtual visit
Other useful information on this plan
Modern Scandinavian Ranch House Plan OLYMPE (#3992) with Cathedral Ceiling, Covered Terrace and 3 Bedrooms
The OLYMPE house plan (#3992) captures attention at first glance with its Scandinavian-inspired design—elegant, timeless, and inviting. Whether nestled by a serene lake or at the base of a ski mountain, this single-story home instantly evokes the cozy charm of a beloved chalet, perfect year-round.
Its clean, contemporary façade highlights Nordic simplicity, allowing the natural materials and volumes to shine. Thoughtfully designed, this model stands apart from traditional ranch-style homes thanks to its large integrated garage door, providing direct access to both the family room and the terrace. Crafted for nature lovers, the OLYMPE plan combines modern style, comfort, and warmth, while also being easily adaptable for solar panels—an ideal option for eco-minded living.
Step inside and prepare to be impressed. The living room, kitchen, and dining area flow together in a spectacular open space, filled with natural light from oversized windows and soaring 12-foot cathedral ceilings. Exposed wooden beams add rustic character and warmth, while a garage door opens seamlessly onto the expansive covered terrace. Here you’ll find an outdoor kitchen and lounge area—perfect for family meals, summer gatherings, or cozy evenings with friends. Covered and sheltered, this terrace becomes the heart of the home in every season.
The primary suite is a private retreat, featuring direct access to the terrace and a stylish, well-appointed bathroom with a separate shower and bathtub. With its central fireplace for winter evenings and its spacious terrace for summer living, the OLYMPE plan offers the best of both worlds: comfort, elegance, and inspiration.
---
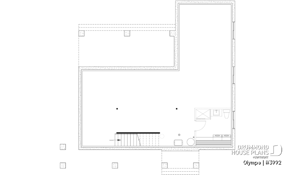
*Optional Finished Basement ($):
Two bright and comfortable secondary bedrooms—perfect for kids, guests, or even a home office.
A spacious family room or game room, ideal for relaxing, movie nights, or indoor play.
A full bathroom and functional laundry room, complete with a smart laundry chute connected directly to the main-floor primary bedroom, making daily tasks easier than ever.
*If you wish to purchase the plan with the finished basement as shown on this page, please select this option in the shopping cart under “Select Your Foundation.” If you do not select this option, you will automatically receive the unfinished basement at no additional cost.
---
IMPORTANT:
This house plan is part of a 3 house plan collection.  Here are the distinctive features for each of them:
Plan # 3992: base model with 1212 heated square feet, no garage, laundry located in unfinished basement (OPTIONAL FINISHED BASEMENT PLAN OFFERED AT EXTRA COSTS)..
Plan # 3992-V1: exact same floor plan as base model # 3992, but with garage.
Plan # 3992-V2: enlarged floor plans to 1604 heated square feet, with garage and laundry located on main floor (not in basement like the two other versions).
Distinctive elements
Rustic Bungalow-Style Chalet Home.
Garage door designed to provide access to the large covered terrace.
Outdoor kitchen and lounge area set up on the terrace.
Cathedral ceiling approx. 16' (max) in the living room, kitchen, and dining area, with exposed wood beams for a rustic look.
9' ceilings in the bedrooms and bathroom.
Living room with fireplace.
Large kitchen island.
Primary bedroom with private access to the rear terrace and bathroom.
Full bathroom with bathtub and large separate shower.
Unfinished basement.
---
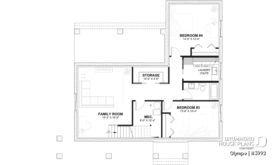
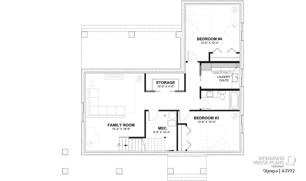
*Finished Basement (optional $):
2 secondary bedrooms.
Family room or playroom.
Bathroom and laundry room with a convenient laundry chute from the main-floor primary bedroom.
---
*If you wish to purchase the plan with the finished basement as shown on this plan’s page, please select this option in the shopping cart under the “Select Your Foundation” section. If you do not select this option, you will receive the unfinished basement at no additional cost.
Plan feature(s)
Panoramic view, Fireplace, Island, Open floor layout, Cathedral ceiling, Narrow lot, Deck, Laundry chute, Ceiling over 8'
Plan architectural style(s)
. Scandinavian, . Modern / Design, . Modern rustic, . Country, . Contemporary, . Vacation and waterfront, . Transitional, . Cottage, chalet, cabin, . Craftsman / Northwest, . Cape Cod, . L-Shaped, . Farmhouse, Modern farmhouse
Similar plans
Previously Viewed Plans
Thank you for your comment! It must be approved before being put online, please allow a period of 24 hours.
Error with google reCaptcha! Try again
Here is a brief description of our different plan packages. Please select the plan package that suits your needs. You can change the package at the next step, if necessary.
PDF VERSION OF PLAN:
Complete digital version of plan (pdf format) sent by email (original plan format 18" x 24'' or 24" x 36'')
5 copies of plan + PDF:
Includes: 5 copies of plan, plan in PDF format (reduced size version), materials list.
Foundation type
Additional foundation types are available, a fee may apply. Please indicate your choice on the online order form, or to our customer service representative, when placing your house plan order.
If your desired foundation type is not available, please contact our customer service to receive your free plan modification quote.
Explanation of bonus space types
UNFINISHED BONUS ROOM
The bonus rooms are often planned above the garage and are accessible from the house. They are designed to be converted as an office, a laundry area, a bathroom, a library corner or even an additional bedroom for which homeowners must make sure to have a window that complies with current codes & standards.
STORAGE AREA
Often located above the garage, our storage areas are used only as storage and are usually accessible from the garage via a retractable staircase.
Do you like this plan but want it to be modified to suit your needs?
To add a garage, another bedroom, finish the basement or any other modification, click here and let us know about your desired changes and to get your free quote for the modification of your plan.
Conditions of use
Important copyright notice! Please take note of these copyright conditions before printing:
        By printing this house plan, cottage or garage or the floorplan(s), you confirm being informed that every house plan on this website is the exclusive property of Drummond House
          Plans and is protected by Canadian copyright law. You are aware that these prints cannot be used to build or even obtain a building permit. The graphic representations of these
        models are offered by Drummond House Plans for the sole purpose of allowing you to notate modifications of a model and then take it to one of the Drummond House Plans Canadian dealers for
        modification of the plan.
The purchase of a house plan, cottage or garage from Drummond House Plans is mandatory if you wish to build any of our models. The plan purchase allows you to build a single unit; you cannot resell or give your plan to anyone once the house, cottage or garage has been built. If you wish to build the same house, cottage or garage more than once, you need to obtain the licence to this effect. Please contact us for more details.
All plans from Drummond House Plans can only be modified by a licensed Drummond House Plan Canadian dealer. If any other business or individual with no affiliation to Drummond House Plans modifies a Drummond House Plan on your behalf, please ensure this business or individual has a licence to modify this specific plan or you will be subject to prosecution on the same level as the business or individual who modified or reproduced the plan.
For more details, do not hesitate to contact u by e-mail or by phone at 1-800-567-1413.
I agree to respect the conditions above to not reproduce, modify or build a model from Drummond House Plans without previously purchasing a complete house plan.









 
                           
                           
                           
                           
                           
                           
                          


 
                             
                             
                            




















 
                                   
                                   
                                   
                                   
                                   
                                   
                                   
                                   
                                   
                                   
                                   
                                   
                                   
                                   
                                   
                                   
                                   
                                   
                                   
                                   
                                  
 
                               
                         
                         
                         
                         
                         
                         
                         
                         
                         
                         
                         
                         
                         
                         
                         
                         
                         
                         
                         
                         
                         
                         
                         
                         
                         
                         
                         
                         
                         
                         
                         
                         
                         
                         
                         
               
               
               
               
               
               
               
               
              