There are no shipping fees if you buy one of our 2 plan packages "PDF file format" or "5 sets of blueprints + PDF". Shipping charges may apply if you buy additional sets of blueprints.
House plan Miranda 5 (3137-V3)
Smart & affordable 3 bedroom bungalow house plan, optional finished basement includes 2 more bedrooms
Other useful information on this plan
Miranda 5 (#3137-V3) – Budget-Friendly Ranch Home Plan with 3 to 5 Bedrooms
The single-storey house plan no. 3137-V3, also known as Miranda 5, immediately stands out for its affordable cost, highly sought-after modern rustic style, and functional layout featuring three bedrooms on the same level. It is a particularly popular choice among young families looking for a practical, welcoming, and adaptable home—without compromising on design.
This model is part of an exclusive collection of five house plans offering various interior layouts, with or without a garage, to suit different budgets and lifestyles. To explore the full series, simply type “3137” into the search bar on our website and easily compare the available variations.
The exterior architecture features a clean Nordic-inspired aesthetic, enhanced by a well-balanced mix of gray siding, stone accents, and black details, creating a look that is both contemporary and timeless. The covered front porch adds a warm, inviting touch while providing appreciated protection from the elements year-round.
Inside, the layout has been carefully designed to maximize space and encourage togetherness. From the moment you enter, a well-sized coat closet offers generous storage. The main living area unfolds into a fully open-concept design, bringing together the kitchen, dining area, and living room. The functional kitchen, equipped with a central lunch-style island, provides both a practical work surface and a natural gathering space, while still allowing ample room for a generously sized family dining table.
The primary bedroom, comfortable and well proportioned, includes two closets, while the two secondary bedrooms, a full bathroom, and a linen closet complete the thoughtfully planned main floor.
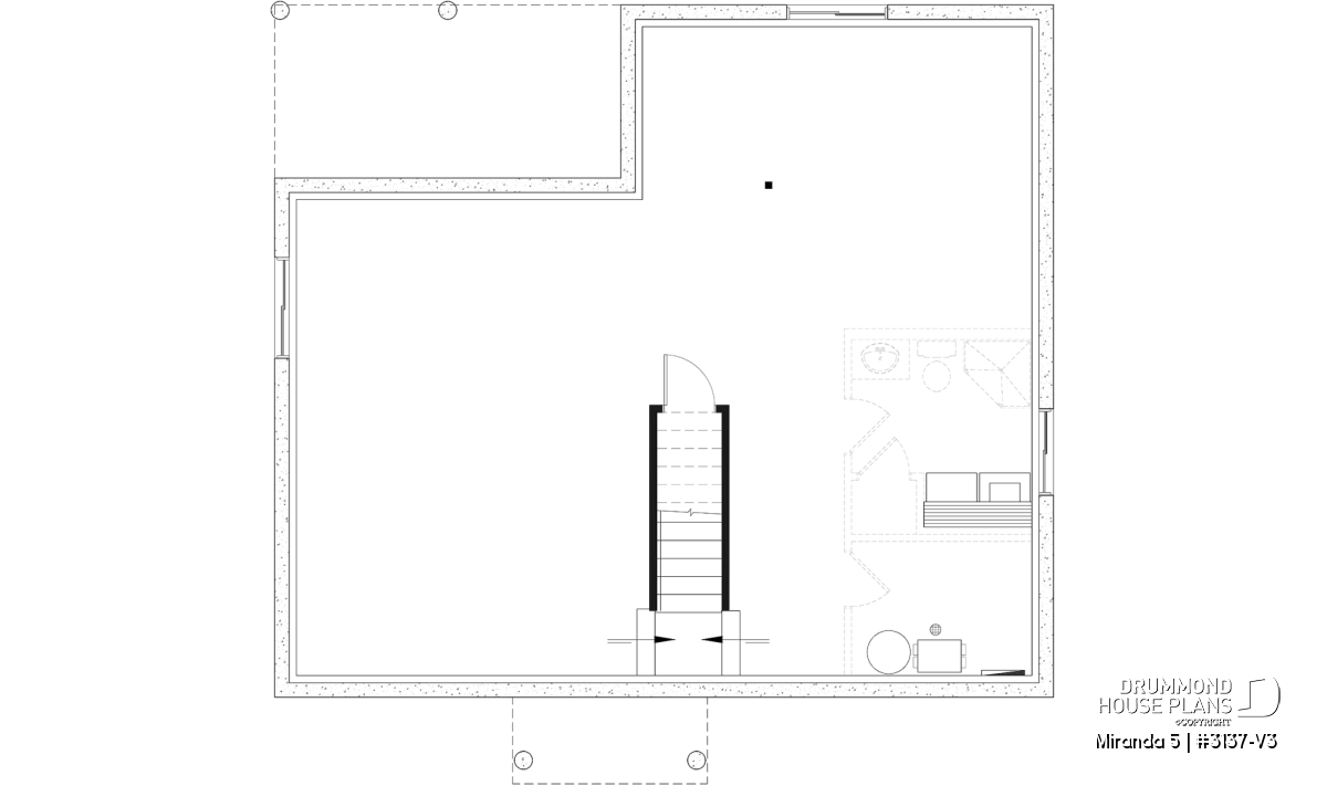
The unfinished basement, included in the base plan, offers excellent flexibility for future development.
*An optional layout allows for the addition of two more bedrooms, bringing the total to five bedrooms, along with a second bathroom, a family room or game room, built-in storage, and a functional laundry room—an ideal solution to accommodate your family’s evolving needs.
Affordable, well designed, and distinctly modern, the Miranda 5 (#3137-V3) is a single-storey home plan that combines simple construction, everyday comfort, and long-term potential.
---
*If you wish to purchase the finished basement plan, as presented on this plan page, please select this option in the shopping cart, in the "Selection of foundation type" section. If you do not select this option, you will receive the unfinished full basement option, at no extra charge.
Distinctive elements
Affordable single-storey Nordic-style home plan, featuring clean lines and a timeless look.
Simple, efficient construction, ideal for owner-builders and cost-conscious projects.
Covered front porch, providing protection from the elements year-round.
Functional front entry with a well-sized coat closet.
Open-concept living area combining the kitchen, dining space, and living room.
Smooth, flowing layout designed for easy interaction and everyday comfort.
Practical kitchen with a central island, offering both workspace and gathering space.
Three bedrooms located on the main floor, a convenient layout for young families.
Comfortable primary bedroom featuring two closets for added storage.
Unfinished basement included in the base plan, allowing flexibility for future needs.
---
*Optional basement layout proposal:
Option to add two additional bedrooms (for a total of 5 bedrooms).
Full bathroom.
Family room or game room, perfect for relaxing or entertaining.
Built-in storage and a dedicated laundry room.
---
*If you wish to purchase the finished basement plan, as presented on this plan page, please select this option in the shopping cart, in the "Selection of foundation type" section. If you do not select this option, you will receive the unfinished full basement option, at no extra charge.
Plan feature(s)
Island, Open floor layout, Mud room, Builder, Self-Build, Game room
Plan architectural style(s)
. Country, . Ranch, . Traditional, . Craftsman / Northwest, . American, . Farmhouse
Similar plans
Previously Viewed Plans
Thank you for your comment! It must be approved before being put online, please allow a period of 24 hours.
Error with google reCaptcha! Try again
Here is a brief description of our different plan packages. Please select the plan package that suits your needs. You can change the package at the next step, if necessary.
PDF VERSION OF PLAN:
Complete digital version of plan (pdf format) sent by email (original plan format 18" x 24'' or 24" x 36'')
5 copies of plan + PDF:
Includes: 5 copies of plan, plan in PDF format (reduced size version), materials list.
Foundation type
Additional foundation types are available, a fee may apply. Please indicate your choice on the online order form, or to our customer service representative, when placing your house plan order.
If your desired foundation type is not available, please contact our customer service to receive your free plan modification quote.
Explanation of bonus space types
UNFINISHED BONUS ROOM
The bonus rooms are often planned above the garage and are accessible from the house. They are designed to be converted as an office, a laundry area, a bathroom, a library corner or even an additional bedroom for which homeowners must make sure to have a window that complies with current codes & standards.
STORAGE AREA
Often located above the garage, our storage areas are used only as storage and are usually accessible from the garage via a retractable staircase.
Do you like this plan but want it to be modified to suit your needs?
To add a garage, another bedroom, finish the basement or any other modification, click here and let us know about your desired changes and to get your free quote for the modification of your plan.
Conditions of use
Important copyright notice! Please take note of these copyright conditions before printing:
By printing this house plan, cottage or garage or the floorplan(s), you confirm being informed that every house plan on this website is the exclusive property of Drummond House
Plans and is protected by Canadian copyright law. You are aware that these prints cannot be used to build or even obtain a building permit. The graphic representations of these
models are offered by Drummond House Plans for the sole purpose of allowing you to notate modifications of a model and then take it to one of the Drummond House Plans Canadian dealers for
modification of the plan.
The purchase of a house plan, cottage or garage from Drummond House Plans is mandatory if you wish to build any of our models. The plan purchase allows you to build a single unit; you cannot resell or give your plan to anyone once the house, cottage or garage has been built. If you wish to build the same house, cottage or garage more than once, you need to obtain the licence to this effect. Please contact us for more details.
All plans from Drummond House Plans can only be modified by a licensed Drummond House Plan Canadian dealer. If any other business or individual with no affiliation to Drummond House Plans modifies a Drummond House Plan on your behalf, please ensure this business or individual has a licence to modify this specific plan or you will be subject to prosecution on the same level as the business or individual who modified or reproduced the plan.
For more details, do not hesitate to contact u by e-mail or by phone at 1-800-567-1413.
I agree to respect the conditions above to not reproduce, modify or build a model from Drummond House Plans without previously purchasing a complete house plan.























