There are no shipping fees if you buy one of our 2 plan packages "PDF file format" or "5 sets of blueprints + PDF". Shipping charges may apply if you buy additional sets of blueprints.
House plan Kimiko (6105)
Economical 2 to 4 bedroom country farmhouse bungalow, open space, finished daylight basement (optional $)
Other useful information on this plan
Charming Country-Style Home with 2 to 4 Bedrooms — Affordable, Bright, and Easy to Build
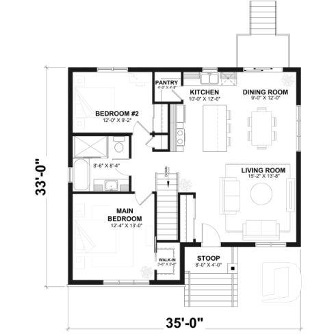
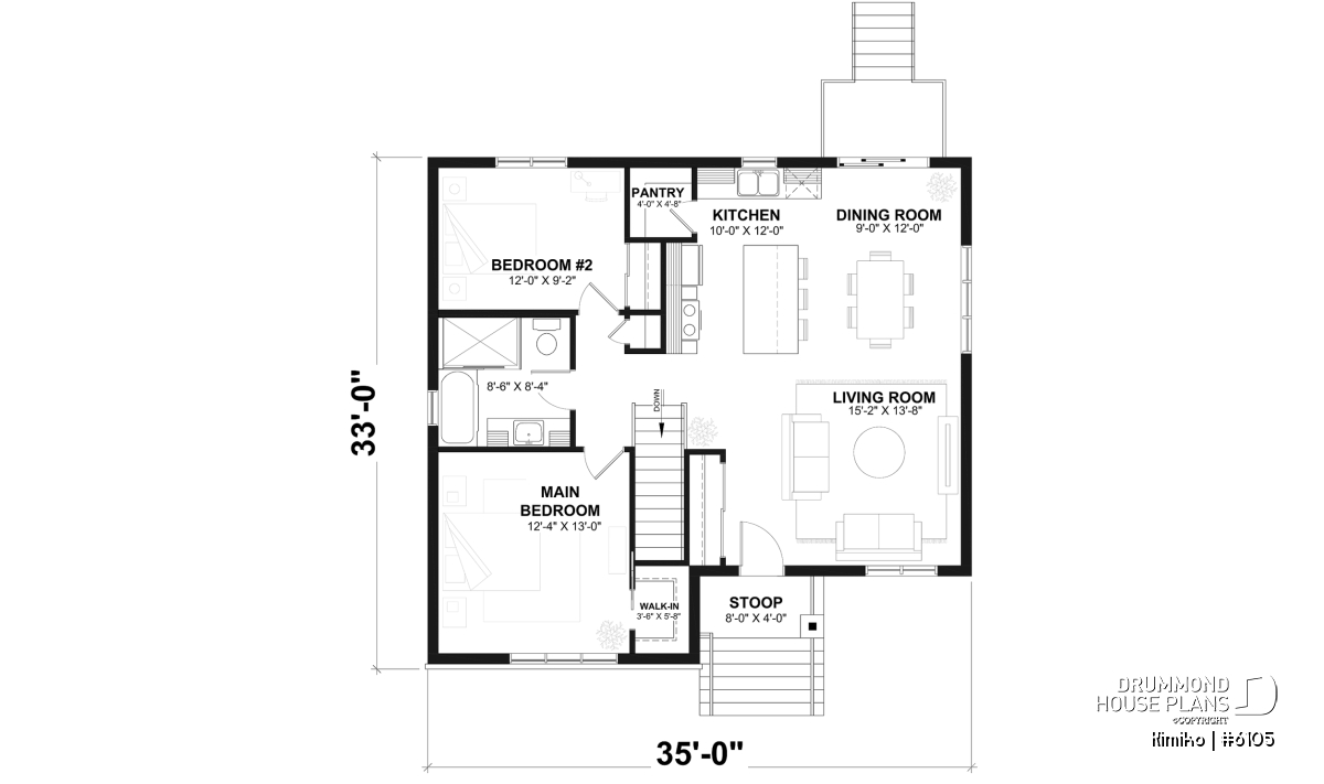
Dreaming of a simple, cozy, and budget-friendly home without sacrificing comfort? This lovely country-style bungalow is both affordable and easy to build, with everything you need to feel right at home. With 1,050 sq. ft. of well-planned space, it offers an optimized layout that’s ideal for a small family, a couple, or even a four-season cottage project.
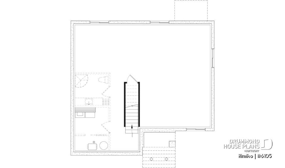
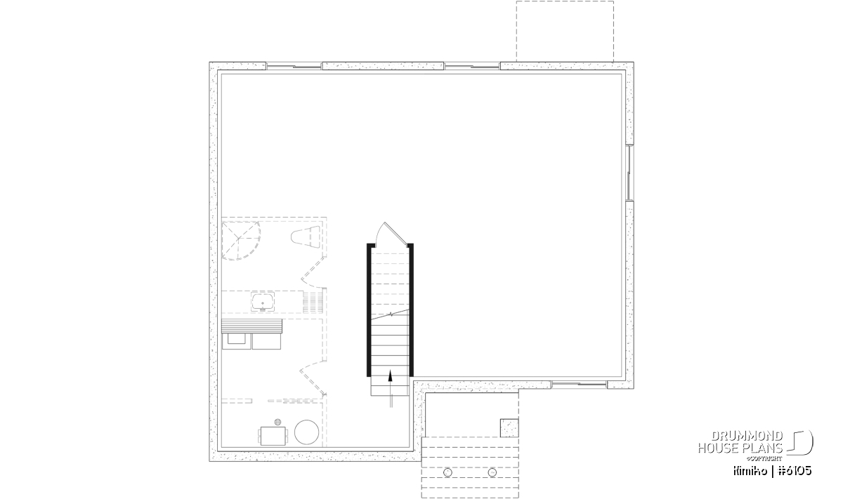
Designed with a daylight foundation, this plan allows for a bright basement thanks to the large windows made possible by this setup — a fantastic feature if you're considering adding more living space downstairs.
As you enter, a spacious entry closet welcomes you and opens directly into a friendly open-concept living area. The living room, kitchen, and dining area share one bright, cozy space that feels both functional and inviting. The kitchen includes a large central island, perfect for family meals or entertaining, and a generously sized pantry for everyday convenience.
The main floor features two comfortable bedrooms, including a primary bedroom with a walk-in closet and a large window that fills the room with soft morning light. The bathroom, while compact, is smartly designed and highly functional — its modest size allows for more room in the living areas.
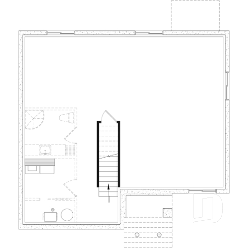
*Optional Finished Basement ($):
The laundry room is conveniently located beside the mechanical room. The rest of the basement is yours to customize: think 2 or 3 additional bedrooms, a spacious family room, a home office, or even a playroom for the kids.
This plan offers a flexible, accessible, and naturally bright home, perfect for those who want to live simply, comfortably, and in a space that reflects their lifestyle.
A true favorite for fans of smart, thoughtful design!!
---
*If you wish to purchase the finished basement plan, as presented on this plan page, please select this option in the shopping cart, in the "Selection of foundation type" section. If you do not select this option, you will receive the unfinished full basement option, at no extra charge.
Distinctive elements
Farmhouse-Style Bungalow with Daylight Foundation for a Naturally Bright Basement
Welcoming entrance with a large, practical closet.
Open-concept living area combining the kitchen, dining room, and living room.
Inviting kitchen with a central island and well-designed pantry.
Generous windows for a bright and airy interior.
Two comfortable, well-sized bedrooms.
Primary bedroom with a spacious walk-in closet.
Bathroom with separate tub and shower for added comfort.
Linen closet conveniently located near the bedrooms and bathroom.
*Finished Basement (optional $):
Two additional spacious bedrooms.
Family room or play area, adaptable to your needs.
Functional and convenient bathroom.
Laundry room with storage space.
A warm, bright, and flexible layout — perfect for family living.
---
*If you wish to purchase the finished basement plan, as presented on this plan page, please select this option in the shopping cart, in the "Selection of foundation type" section. If you do not select this option, you will receive the unfinished full basement option, at no extra charge.
Plan feature(s)
Split bedrooms, Pantry, Ceiling over 8', Walk-in master bed., Open floor layout, Separate bath and shower, Double sinks, Builder, Self-Build
Plan architectural style(s)
. Country, . Craftsman / Northwest, . Farmhouse, . Transitional, . Modern rustic, . Ranch, . American, Modern Craftsman
Previously Viewed Plans
Thank you for your comment! It must be approved before being put online, please allow a period of 24 hours.
Error with google reCaptcha! Try again
Here is a brief description of our different plan packages. Please select the plan package that suits your needs. You can change the package at the next step, if necessary.
PDF VERSION OF PLAN:
Complete digital version of plan (pdf format) sent by email (original plan format 18" x 24'' or 24" x 36'')
5 copies of plan + PDF:
Includes: 5 copies of plan, plan in PDF format (reduced size version), materials list.
Foundation type
Additional foundation types are available, a fee may apply. Please indicate your choice on the online order form, or to our customer service representative, when placing your house plan order.
If your desired foundation type is not available, please contact our customer service to receive your free plan modification quote.
Explanation of bonus space types
UNFINISHED BONUS ROOM
The bonus rooms are often planned above the garage and are accessible from the house. They are designed to be converted as an office, a laundry area, a bathroom, a library corner or even an additional bedroom for which homeowners must make sure to have a window that complies with current codes & standards.
STORAGE AREA
Often located above the garage, our storage areas are used only as storage and are usually accessible from the garage via a retractable staircase.
Do you like this plan but want it to be modified to suit your needs?
To add a garage, another bedroom, finish the basement or any other modification, click here and let us know about your desired changes and to get your free quote for the modification of your plan.
Conditions of use
Important copyright notice! Please take note of these copyright conditions before printing:
By printing this house plan, cottage or garage or the floorplan(s), you confirm being informed that every house plan on this website is the exclusive property of Drummond House
Plans and is protected by Canadian copyright law. You are aware that these prints cannot be used to build or even obtain a building permit. The graphic representations of these
models are offered by Drummond House Plans for the sole purpose of allowing you to notate modifications of a model and then take it to one of the Drummond House Plans Canadian dealers for
modification of the plan.
The purchase of a house plan, cottage or garage from Drummond House Plans is mandatory if you wish to build any of our models. The plan purchase allows you to build a single unit; you cannot resell or give your plan to anyone once the house, cottage or garage has been built. If you wish to build the same house, cottage or garage more than once, you need to obtain the licence to this effect. Please contact us for more details.
All plans from Drummond House Plans can only be modified by a licensed Drummond House Plan Canadian dealer. If any other business or individual with no affiliation to Drummond House Plans modifies a Drummond House Plan on your behalf, please ensure this business or individual has a licence to modify this specific plan or you will be subject to prosecution on the same level as the business or individual who modified or reproduced the plan.
For more details, do not hesitate to contact u by e-mail or by phone at 1-800-567-1413.
I agree to respect the conditions above to not reproduce, modify or build a model from Drummond House Plans without previously purchasing a complete house plan.























