There are no shipping fees if you buy one of our 2 plan packages "PDF file format" or "5 sets of blueprints + PDF". Shipping charges may apply if you buy additional sets of blueprints.
House plan Barrington (3153)
Modern ranch house plan, 2 to 4 bedrooms, optional finished basement ($), open floor plan, fireplace
Other useful information on this plan
Modern Rustic Home Plan with Exposed Beams – A Contemporary Style That’s Sure to Please!
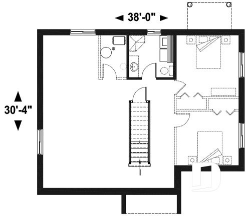
It’s hard not to fall in love with this transitional-style home, blending the charm of the countryside and rustic warmth with the sleek lines of modern design. With its striking wood beams on the façade and dark-trimmed windows inspired by contemporary trends, this home radiates curb appeal. The Barrington model (Plan #3153) was thoughtfully designed by the creative team at Drummond House Plans, where design innovation is always front and center.
The covered entrance welcomes guests with a portico and large closet, cleverly tucked back from the living room to keep chilly drafts away from the main living areas—a detail you’ll truly appreciate during those long northern winters!
Inside, the main living space boasts an open and airy layout, where the living room and dining area sit side by side, sharing the cozy ambiance of a central fireplace and the drama of a cathedral ceiling. The dining area opens directly to the backyard through a convenient patio door, ideal for summer meals and sunny weekend gatherings. Connected to a friendly and functional kitchen, the space allows for easy flow and great interaction between guests and the cook. The kitchen also features a 3' x 4'6" island, perfectly sized to seat three or four comfortably.
The primary bedroom is filled with natural light and offers two closets for optimal storage. Located just steps away from the main bathroom, which is cleverly laid out with a spacious glass shower, a freestanding tub, toilet, and ample linen storage.
The secondary bedroom includes a generously sized walk-in closet, making it practical for everyday living. Depending on your needs, this versatile space can easily be used as a home office, craft room, or a welcoming guest bedroom. And for even more space, additional bedrooms can be finished in the basement (*optional $)—giving you the freedom to truly customize your dream home!
*Finished basement (optional $):
2 bedrooms and shower room.
*If you wish to purchase the finished basement plan, please select this option in the shopping cart, in the "Selection of foundation type" section. If you do not select this option, you will receive the unfinished full basement option, at no extra charge.
Please note that many foundation options are available for our plans, contact us for more details.
It is possible to modify or adjust any of our plans on our website, whether it is a basement layout, enlarging the model, adding a single or double garage, everything is feasible! Simply contact us for details by phone: 1-800-567-5267 or by email: [email protected]
Distinctive elements
Craftsman inspired, new rustic modern house plan.
Partial cathedral ceiling on dining room and living room.
Entrance with coat closet.
Open dining and living concept, sharing a wall centered fireplace.
Open dining and kitchen concept with kitchen island.
Master bedroom with 2 closets and located next to full family bathroom. This bedroom also has a partial high ceiling 11'10''.
Full bathroom including separate shower and bathtub, and a large linen closet.
Secondary bedroom with walk-in closet.
*Finished basement (optional $):
2 bedrooms and shower room.
*If you wish to purchase the finished basement plan, please select this option in the shopping cart, in the "Selection of foundation type" section. If you do not select this option, you will receive the unfinished full basement option, at no extra charge.
Plan feature(s)
Fireplace, Island, Open floor layout, Cathedral ceiling, Separate bath and shower, Entrance hall, Builder, Self-Build
Plan architectural style(s)
. Modern rustic, . Rustic, . Craftsman / Northwest, . Country, . Modern / Design, . Ranch, . Transitional, . Mountain
Similar plans
Previously Viewed Plans
Thank you for your comment! It must be approved before being put online, please allow a period of 24 hours.
Error with google reCaptcha! Try again
Here is a brief description of our different plan packages. Please select the plan package that suits your needs. You can change the package at the next step, if necessary.
PDF VERSION OF PLAN:
Complete digital version of plan (pdf format) sent by email (original plan format 18" x 24'' or 24" x 36'')
5 copies of plan + PDF:
Includes: 5 copies of plan, plan in PDF format (reduced size version), materials list.
Foundation type
Additional foundation types are available, a fee may apply. Please indicate your choice on the online order form, or to our customer service representative, when placing your house plan order.
If your desired foundation type is not available, please contact our customer service to receive your free plan modification quote.
Explanation of bonus space types
UNFINISHED BONUS ROOM
The bonus rooms are often planned above the garage and are accessible from the house. They are designed to be converted as an office, a laundry area, a bathroom, a library corner or even an additional bedroom for which homeowners must make sure to have a window that complies with current codes & standards.
STORAGE AREA
Often located above the garage, our storage areas are used only as storage and are usually accessible from the garage via a retractable staircase.
Do you like this plan but want it to be modified to suit your needs?
To add a garage, another bedroom, finish the basement or any other modification, click here and let us know about your desired changes and to get your free quote for the modification of your plan.
Conditions of use
Important copyright notice! Please take note of these copyright conditions before printing:
By printing this house plan, cottage or garage or the floorplan(s), you confirm being informed that every house plan on this website is the exclusive property of Drummond House
Plans and is protected by Canadian copyright law. You are aware that these prints cannot be used to build or even obtain a building permit. The graphic representations of these
models are offered by Drummond House Plans for the sole purpose of allowing you to notate modifications of a model and then take it to one of the Drummond House Plans Canadian dealers for
modification of the plan.
The purchase of a house plan, cottage or garage from Drummond House Plans is mandatory if you wish to build any of our models. The plan purchase allows you to build a single unit; you cannot resell or give your plan to anyone once the house, cottage or garage has been built. If you wish to build the same house, cottage or garage more than once, you need to obtain the licence to this effect. Please contact us for more details.
All plans from Drummond House Plans can only be modified by a licensed Drummond House Plan Canadian dealer. If any other business or individual with no affiliation to Drummond House Plans modifies a Drummond House Plan on your behalf, please ensure this business or individual has a licence to modify this specific plan or you will be subject to prosecution on the same level as the business or individual who modified or reproduced the plan.
For more details, do not hesitate to contact u by e-mail or by phone at 1-800-567-1413.
I agree to respect the conditions above to not reproduce, modify or build a model from Drummond House Plans without previously purchasing a complete house plan.



























