There are no shipping fees if you buy one of our 2 plan packages "PDF file format" or "5 sets of blueprints + PDF". Shipping charges may apply if you buy additional sets of blueprints.
House plan Muskoka (3143)
One-story farmhouse, 1 to 4 bedrooms, den, kitchen with pantry, cathedral ceiling, optional finished basement
Other useful information on this plan
MUSKOKA Farmhouse Ranch Plan – offering up to 4 bedrooms!
Discover this stunning Farmhouse design, thoughtfully created to combine comfort, elegance, and functionality. With the flexibility of 1 to 4 bedrooms depending on the *optional finished basement, this home adapts perfectly to the needs of a young family, an active couple, or anyone looking to welcome children and guests with ease.
From the moment you arrive, you’ll be impressed by the inviting entryway, featuring a practical mudroom with built-in bench seating that makes daily life simpler. The nearby den or study is a valuable asset, whether you work remotely or need a quiet study space.
The main floor impresses with its 9-foot ceilings that enhance the sense of space, while the cathedral ceiling in the family room creates a bright, airy, and welcoming atmosphere filled with natural light.
The open-concept kitchen is sure to delight cooking enthusiasts and families alike. Featuring a spacious central island—perfect for preparing meals or gathering around—and a well-designed pantry, it becomes the true heart of the home. The adjoining dining area is equally suited for cozy family dinners or lively entertaining with friends.
The living room, complete with a fireplace, adds a warm and inviting touch, ideal for relaxing winter evenings. The primary suite, located on the main floor, is a true retreat with its generous walk-in closet and semi-private bathroom, along with convenient access to a tucked-away powder room.
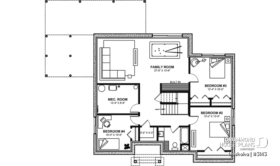
For those who need more space, the *optional finished basement completely transforms the home. It offers three additional bedrooms, a large family room with a play area, a full bathroom, plus plenty of storage and a mechanical room—perfect for growing families or hosting guests in comfort and privacy.
This house plan also allows for different foundation options, giving you even more flexibility to personalize your project.
In short, the MUSKOKA Farmhouse beautifully blends timeless charm, modern comfort, and adaptability, creating a unique and evolving living environment.
---
*If you wish to purchase the finished basement plan, as presented on this plan page, please select this option in the shopping cart, in the "Selection of foundation type" section. If you do not select this option, you will receive the unfinished full basement option, at no extra charge.
Distinctive elements
Farmhouse Home Plan offering 1 to 4 bedrooms, depending on the *optional finished basement.
9' ceilings on the main floor and a cathedral ceiling in the family room.
Welcoming entry with mudroom and built-in bench.
Convenient home office located near the entrance.
Inviting kitchen with large island and pantry.
Laundry room well located on the main floor.
Cozy living room with fireplace.
Primary suite on the main floor with walk-in closet and semi-private bathroom.
Powder room tucked away and shared with the primary suite.
---
*Optional finished basement ($):
3 additional bedrooms.
Spacious family room with play area.
Full bathroom.
Storage space and mechanical room.
Other foundation types available for this plan.
---
*If you wish to purchase the finished basement plan, as presented on this plan page, please select this option in the shopping cart, in the "Selection of foundation type" section. If you do not select this option, you will receive the unfinished full basement option, at no extra charge.
Plan feature(s)
Master suite on main, Screened porch, Fireplace, Jack & Jill bath, Gound floor laundry room, Panoramic view, Built-ins, Cathedral ceiling, Ceiling over 8', Pantry, Office / Study / Den, Island, Mud room, Bench seat(s), Walk-in master bed., Separate bath and shower, Open floor layout, Builder
Plan architectural style(s)
Modern farmhouse, Modern Craftsman, . Mountain, . Farmhouse, . Rustic, . Transitional, . Country, . Modern rustic, . Vacation and waterfront, . Craftsman / Northwest, . Ranch
Previously Viewed Plans
Thank you for your comment! It must be approved before being put online, please allow a period of 24 hours.
Error with google reCaptcha! Try again
Here is a brief description of our different plan packages. Please select the plan package that suits your needs. You can change the package at the next step, if necessary.
PDF VERSION OF PLAN:
Complete digital version of plan (pdf format) sent by email (original plan format 18" x 24'' or 24" x 36'')
5 copies of plan + PDF:
Includes: 5 copies of plan, plan in PDF format (reduced size version), materials list.
Foundation type
Additional foundation types are available, a fee may apply. Please indicate your choice on the online order form, or to our customer service representative, when placing your house plan order.
If your desired foundation type is not available, please contact our customer service to receive your free plan modification quote.
Explanation of bonus space types
UNFINISHED BONUS ROOM
The bonus rooms are often planned above the garage and are accessible from the house. They are designed to be converted as an office, a laundry area, a bathroom, a library corner or even an additional bedroom for which homeowners must make sure to have a window that complies with current codes & standards.
STORAGE AREA
Often located above the garage, our storage areas are used only as storage and are usually accessible from the garage via a retractable staircase.
Do you like this plan but want it to be modified to suit your needs?
To add a garage, another bedroom, finish the basement or any other modification, click here and let us know about your desired changes and to get your free quote for the modification of your plan.
Conditions of use
Important copyright notice! Please take note of these copyright conditions before printing:
By printing this house plan, cottage or garage or the floorplan(s), you confirm being informed that every house plan on this website is the exclusive property of Drummond House
Plans and is protected by Canadian copyright law. You are aware that these prints cannot be used to build or even obtain a building permit. The graphic representations of these
models are offered by Drummond House Plans for the sole purpose of allowing you to notate modifications of a model and then take it to one of the Drummond House Plans Canadian dealers for
modification of the plan.
The purchase of a house plan, cottage or garage from Drummond House Plans is mandatory if you wish to build any of our models. The plan purchase allows you to build a single unit; you cannot resell or give your plan to anyone once the house, cottage or garage has been built. If you wish to build the same house, cottage or garage more than once, you need to obtain the licence to this effect. Please contact us for more details.
All plans from Drummond House Plans can only be modified by a licensed Drummond House Plan Canadian dealer. If any other business or individual with no affiliation to Drummond House Plans modifies a Drummond House Plan on your behalf, please ensure this business or individual has a licence to modify this specific plan or you will be subject to prosecution on the same level as the business or individual who modified or reproduced the plan.
For more details, do not hesitate to contact u by e-mail or by phone at 1-800-567-1413.
I agree to respect the conditions above to not reproduce, modify or build a model from Drummond House Plans without previously purchasing a complete house plan.


































