There are no shipping fees if you buy one of our 2 plan packages "PDF file format" or "5 sets of blueprints + PDF". Shipping charges may apply if you buy additional sets of blueprints.
                                                                                                                                                                                                                                                                                                                                                                                                                                                                                                                                                                                                                                                                                                                                                                          House plan Barrington 2  (3153-V1)                
                                      
                                  
              
              Craftsman-style ranch bungalow with daylight basement, 2 beds, oversized single garage & open-living space
Other useful information on this plan
Nordic-Style Home Blending Comfort, Rustic Charm, and Modern Design — 2 Bedrooms and Garage
It’s impossible not to be charmed by this stunning home that gracefully blends Nordic aesthetics, the warmth of a cozy chalet, and modern-rustic details. From the first glance, this model captures attention with its welcoming atmosphere, perfect for those who appreciate natural design and inviting spaces.
As you enter, you’ll find a practical covered entryway with a spacious closet, slightly set back from the living area — a smart layout that keeps cold drafts out of the heart of the home during those chilly winter months. The living room and dining area flow together in a bright, open-concept space. At their center sits a cozy fireplace, creating a warm focal point under the cathedral ceiling, with the option to add exposed wood beams for an even more striking look. A patio door from the dining room opens onto the backyard, inspiring visions of the perfect outdoor space for summer gatherings and quiet mornings.
Open to the kitchen, the dining room encourages easy flow and conversation, whether you’re hosting friends or enjoying a family evening. The well-designed kitchen features a 3’ x 6’ island, comfortably seating three to four for meals, coffee, or conversation.
The primary bedroom, filled with natural light, includes two closets and is located conveniently near the full family bathroom. This bathroom is smartly divided, with a large glass shower and freestanding tub on one side, and toilet, sink, and linen storage on the other.
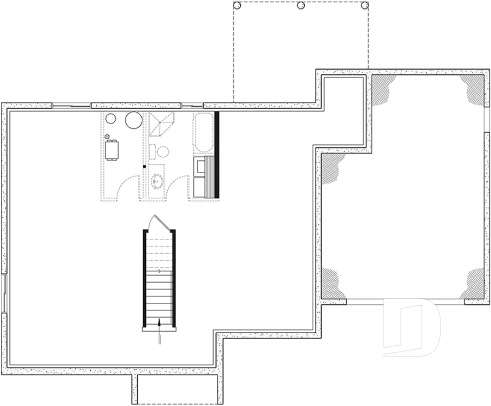
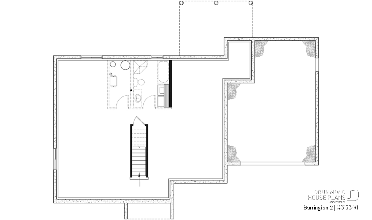
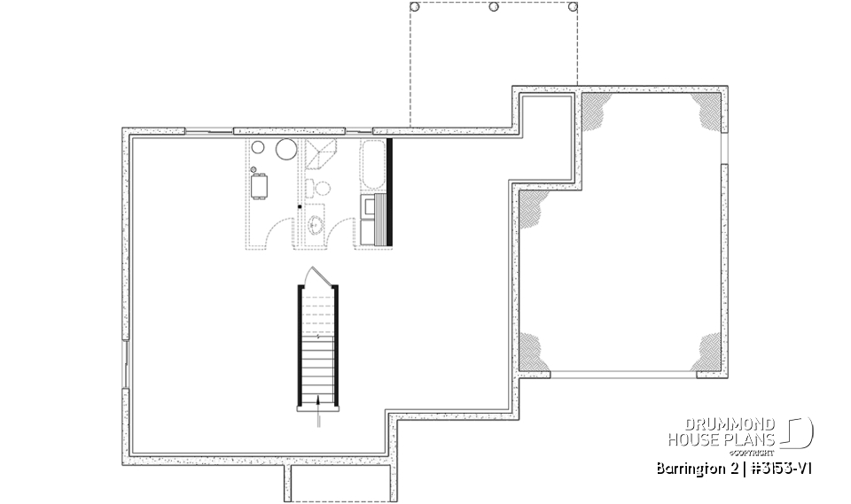
The second bedroom features a generous walk-in closet, making it both practical and versatile. Located near the pantry, it makes smart use of space without compromising comfort. Whether used as a home office, hobby room, kids’ space, or guest bedroom, the choice is yours. And if you need more room, additional bedrooms can be finished in the basement to suit your needs (*optional $).
All of our home plans are fully customizable—whether you're looking to finish the basement, expand the layout, or add a single or double garage, we can make it happen. Contact us to share your ideas and connect with the nearest Drummond House Plans office, or take advantage of our convenient online services!
Distinctive elements
Nordic style house with a mix of very trendy modern and rustic.  
Partial cathedral ceiling in living room and dining room. 
Entrance with coat closet. 
Garage entrance with walk-in closet (mud room). 
Dining room and living room with an open concept and fireplace. Kitchen with island that sits 3 with large pantry. 
Master bedroom with 2 closets and a section of the ceiling that is 11’-10’’.
Secondary bedroom with walk-in closet. 
Full bathroom with large shower and separate bath. 
Plan feature(s)
Fireplace, Island, Open floor layout, Deck, Cathedral ceiling, Pantry, Separate bath and shower, Mud room, Entrance hall
Plan architectural style(s)
. Craftsman / Northwest, . Ranch, . Rustic, . Transitional, . Modern rustic, . Country, . Mountain, . Farmhouse, Modern farmhouse
Similar plans
Previously Viewed Plans
Thank you for your comment! It must be approved before being put online, please allow a period of 24 hours.
Error with google reCaptcha! Try again
Here is a brief description of our different plan packages. Please select the plan package that suits your needs. You can change the package at the next step, if necessary.
PDF VERSION OF PLAN:
Complete digital version of plan (pdf format) sent by email (original plan format 18" x 24'' or 24" x 36'')
5 copies of plan + PDF:
Includes: 5 copies of plan, plan in PDF format (reduced size version), materials list.
Foundation type
Additional foundation types are available, a fee may apply. Please indicate your choice on the online order form, or to our customer service representative, when placing your house plan order.
If your desired foundation type is not available, please contact our customer service to receive your free plan modification quote.
Explanation of bonus space types
UNFINISHED BONUS ROOM
The bonus rooms are often planned above the garage and are accessible from the house. They are designed to be converted as an office, a laundry area, a bathroom, a library corner or even an additional bedroom for which homeowners must make sure to have a window that complies with current codes & standards.
STORAGE AREA
Often located above the garage, our storage areas are used only as storage and are usually accessible from the garage via a retractable staircase.
Do you like this plan but want it to be modified to suit your needs?
To add a garage, another bedroom, finish the basement or any other modification, click here and let us know about your desired changes and to get your free quote for the modification of your plan.
Conditions of use
Important copyright notice! Please take note of these copyright conditions before printing:
        By printing this house plan, cottage or garage or the floorplan(s), you confirm being informed that every house plan on this website is the exclusive property of Drummond House
          Plans and is protected by Canadian copyright law. You are aware that these prints cannot be used to build or even obtain a building permit. The graphic representations of these
        models are offered by Drummond House Plans for the sole purpose of allowing you to notate modifications of a model and then take it to one of the Drummond House Plans Canadian dealers for
        modification of the plan.
The purchase of a house plan, cottage or garage from Drummond House Plans is mandatory if you wish to build any of our models. The plan purchase allows you to build a single unit; you cannot resell or give your plan to anyone once the house, cottage or garage has been built. If you wish to build the same house, cottage or garage more than once, you need to obtain the licence to this effect. Please contact us for more details.
All plans from Drummond House Plans can only be modified by a licensed Drummond House Plan Canadian dealer. If any other business or individual with no affiliation to Drummond House Plans modifies a Drummond House Plan on your behalf, please ensure this business or individual has a licence to modify this specific plan or you will be subject to prosecution on the same level as the business or individual who modified or reproduced the plan.
For more details, do not hesitate to contact u by e-mail or by phone at 1-800-567-1413.
I agree to respect the conditions above to not reproduce, modify or build a model from Drummond House Plans without previously purchasing a complete house plan.
















                          
                          
                          
                          
                          
                          
                          
                          
                          
                          
                          
                          
                          
                          

                            
                            






