There are no shipping fees if you buy one of our 2 plan packages "PDF file format" or "5 sets of blueprints + PDF". Shipping charges may apply if you buy additional sets of blueprints.
House plan Miranda (3137)
An affordable house plan designed for the real needs of today’s families
Other useful information on this plan
Miranda (#3137) – An Affordable Farmhouse House Plan Designed for Real Family Living
The Miranda house plan (#3137) stands out for its perfect balance of Farmhouse-inspired design, everyday functionality, and budget-friendly appeal. Designed as a bright single-story home, this plan is an ideal choice for young families looking for a warm, well-designed, and future-ready first home.
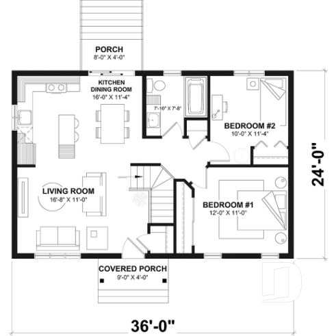
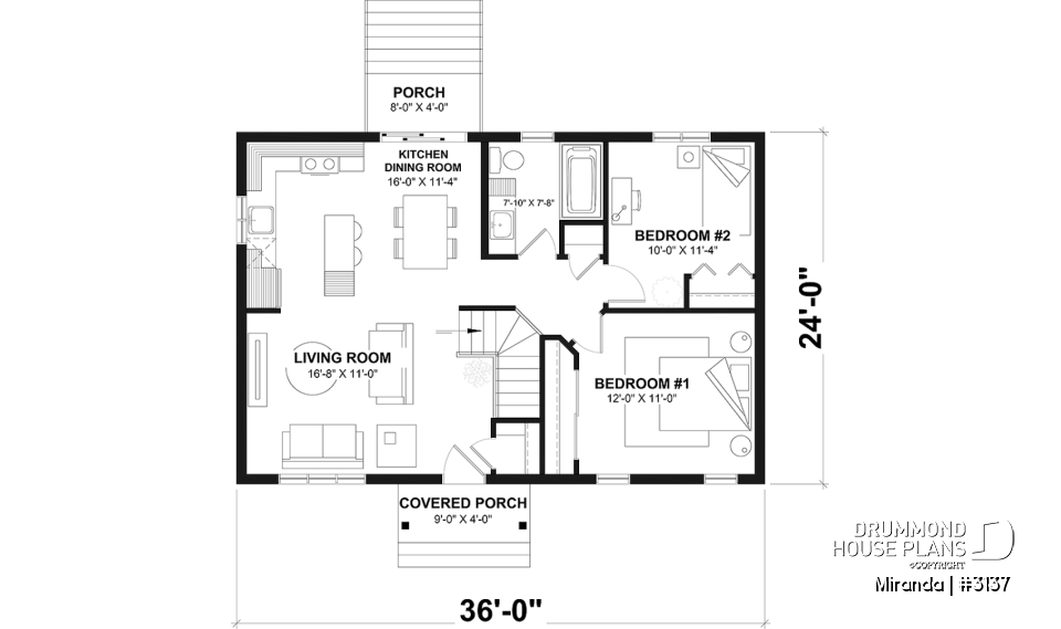
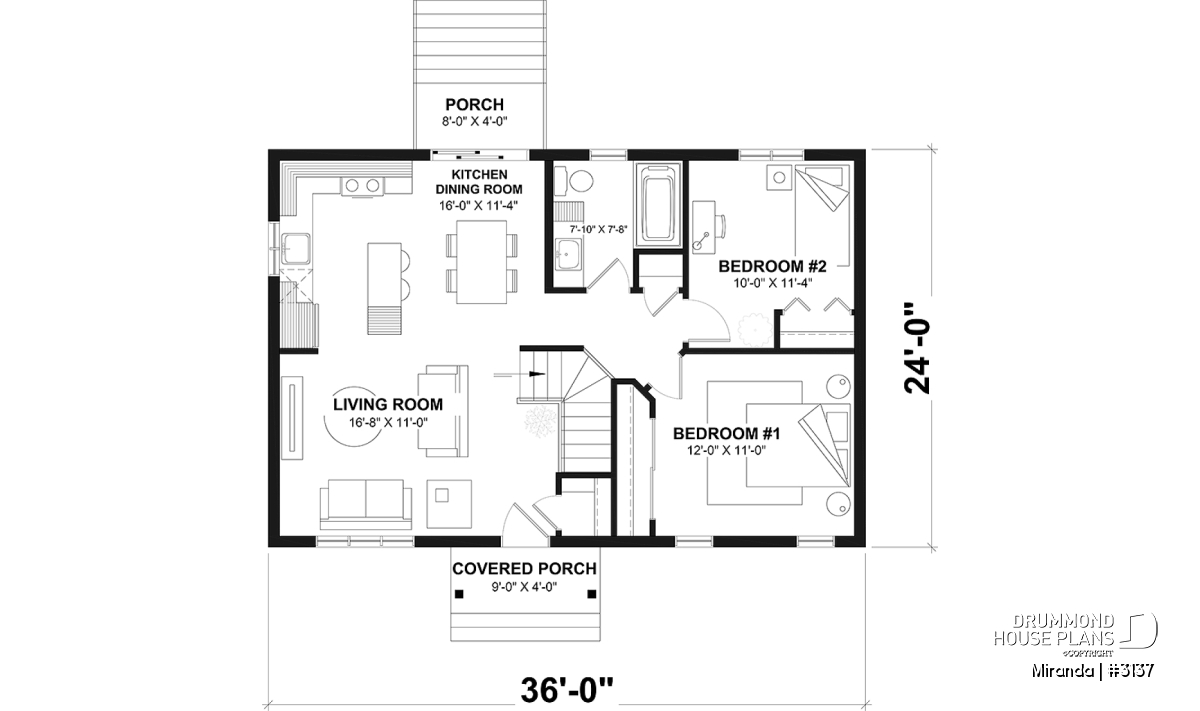
From the very first glance, the Miranda’s exterior makes a welcoming impression. The combination of stone accents and warm color tones creates a modern yet timeless look that will age beautifully over time. A covered front porch adds charm while providing year-round protection from the elements. Inside, a practical entry closet helps keep daily life organized—an essential feature for busy family routines.
At the heart of the home is a light-filled open-concept living space where the kitchen, dining area, and living room flow seamlessly together. This layout encourages connection and shared moments, whether you’re hosting guests or spending quality time as a family. The functional kitchen with a central island quickly becomes a gathering spot, perfect for casual meals, homework sessions, or entertaining. The dining area patio door brings in abundant natural light and creates an easy connection to the outdoors.
The primary bedroom is comfortable and well proportioned, offering a generous closet for efficient storage. The secondary bedroom is versatile and easily adapts to your needs, whether as a child’s room, guest bedroom, or home office. The full bathroom, featuring a tub/shower combination, is thoughtfully designed and complemented by an adjacent linen closet for towels and laundry essentials. A compact hallway storage closet provides convenient space for household supplies and pantry items.
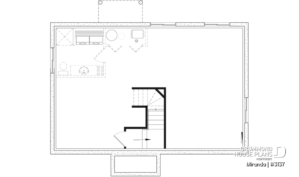
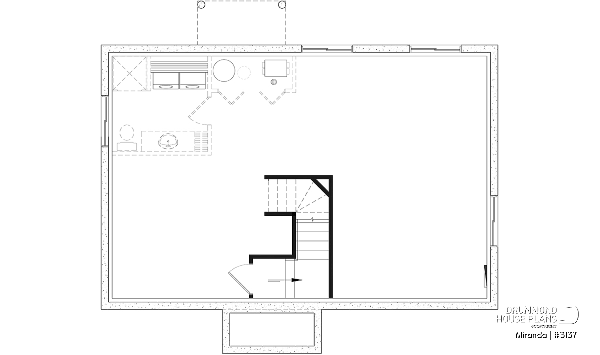
Included in the base plan, the unfinished basement offers outstanding potential for future development. Whether you envision additional bedrooms, a family room, or extra storage space, the Miranda adapts effortlessly to your family’s changing needs—today and in the years ahead.
Affordable, bright, and intelligently designed, the Miranda (#3137) is more than just a house plan. It’s a reassuring, flexible home environment, thoughtfully created to grow with your family and support real life, every step of the way.
Distinctive elements
Modern Rustic Bungalow, very affordable. Great kitchen island for entertaining, good size coat closet and good size closets in bedrooms.
NOTE:
For a construction in the US, please contact us since we may need to revise some elements.
Plan feature(s)
Island, Mud room, Open floor layout, Builder, Self-Build
Plan architectural style(s)
. Craftsman / Northwest, . Modern rustic, . American, . Ranch, . Traditional, . Country, . Mountain, Modern Craftsman
Similar plans
Previously Viewed Plans
Thank you for your comment! It must be approved before being put online, please allow a period of 24 hours.
Error with google reCaptcha! Try again
Here is a brief description of our different plan packages. Please select the plan package that suits your needs. You can change the package at the next step, if necessary.
PDF VERSION OF PLAN:
Complete digital version of plan (pdf format) sent by email (original plan format 18" x 24'' or 24" x 36'')
5 copies of plan + PDF:
Includes: 5 copies of plan, plan in PDF format (reduced size version), materials list.
Foundation type
Additional foundation types are available, a fee may apply. Please indicate your choice on the online order form, or to our customer service representative, when placing your house plan order.
If your desired foundation type is not available, please contact our customer service to receive your free plan modification quote.
Explanation of bonus space types
UNFINISHED BONUS ROOM
The bonus rooms are often planned above the garage and are accessible from the house. They are designed to be converted as an office, a laundry area, a bathroom, a library corner or even an additional bedroom for which homeowners must make sure to have a window that complies with current codes & standards.
STORAGE AREA
Often located above the garage, our storage areas are used only as storage and are usually accessible from the garage via a retractable staircase.
Do you like this plan but want it to be modified to suit your needs?
To add a garage, another bedroom, finish the basement or any other modification, click here and let us know about your desired changes and to get your free quote for the modification of your plan.
Conditions of use
Important copyright notice! Please take note of these copyright conditions before printing:
By printing this house plan, cottage or garage or the floorplan(s), you confirm being informed that every house plan on this website is the exclusive property of Drummond House
Plans and is protected by Canadian copyright law. You are aware that these prints cannot be used to build or even obtain a building permit. The graphic representations of these
models are offered by Drummond House Plans for the sole purpose of allowing you to notate modifications of a model and then take it to one of the Drummond House Plans Canadian dealers for
modification of the plan.
The purchase of a house plan, cottage or garage from Drummond House Plans is mandatory if you wish to build any of our models. The plan purchase allows you to build a single unit; you cannot resell or give your plan to anyone once the house, cottage or garage has been built. If you wish to build the same house, cottage or garage more than once, you need to obtain the licence to this effect. Please contact us for more details.
All plans from Drummond House Plans can only be modified by a licensed Drummond House Plan Canadian dealer. If any other business or individual with no affiliation to Drummond House Plans modifies a Drummond House Plan on your behalf, please ensure this business or individual has a licence to modify this specific plan or you will be subject to prosecution on the same level as the business or individual who modified or reproduced the plan.
For more details, do not hesitate to contact u by e-mail or by phone at 1-800-567-1413.
I agree to respect the conditions above to not reproduce, modify or build a model from Drummond House Plans without previously purchasing a complete house plan.



















