There are no shipping fees if you buy one of our 2 plan packages "PDF file format" or "5 sets of blueprints + PDF". Shipping charges may apply if you buy additional sets of blueprints.
House plan Clarendon (3136)
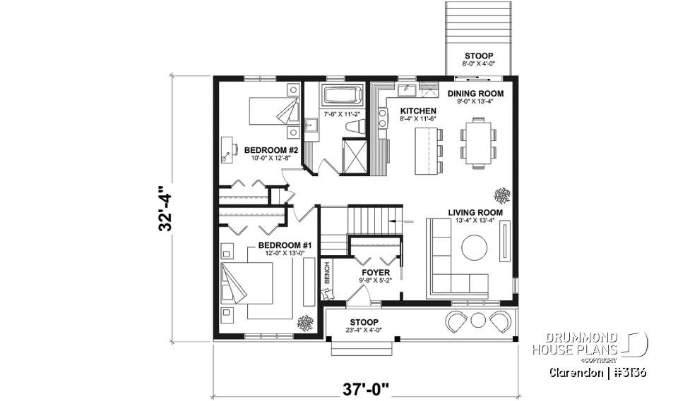
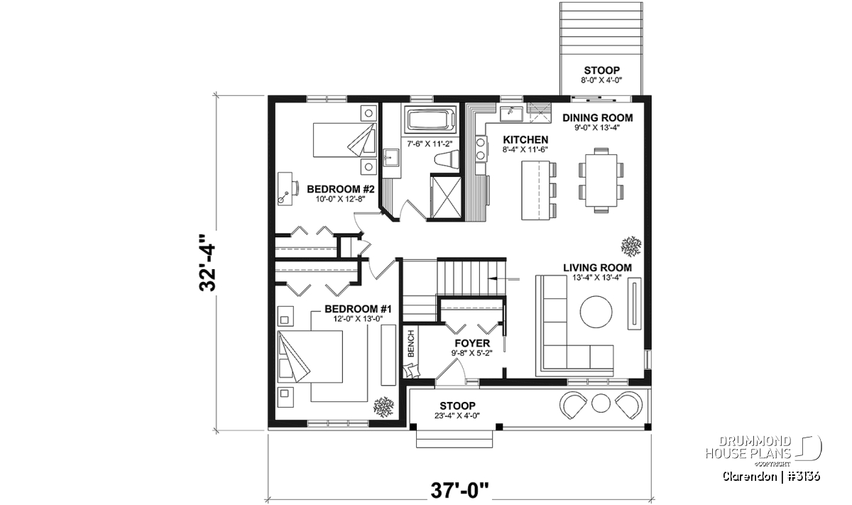
Traditional ranch style bungalow plan, ideal starter home, open living concept with patio door, large shower
Other useful information on this plan
Traditional and affordable 2 bedroom, small ranch style house plan
This delightful model features a full width, covered veranda in front the is sure to be a favorite gathering place during the warmer months.
The large entrance foyer has abundant closet space and room for a bench in which to store seasonal items and provide a perfect place to sit while removing boots!
The completely open floor plan offers an abundance of natural light from the living room through the dining area with access to the back yard through patio doors and to the "L" shaped kitchen with its a large island that's perfect for informal meals.
The two nicely sized bedrooms have abundant closet space and share a full bathroom with separate tub and 3' x 4' shower enclosure.
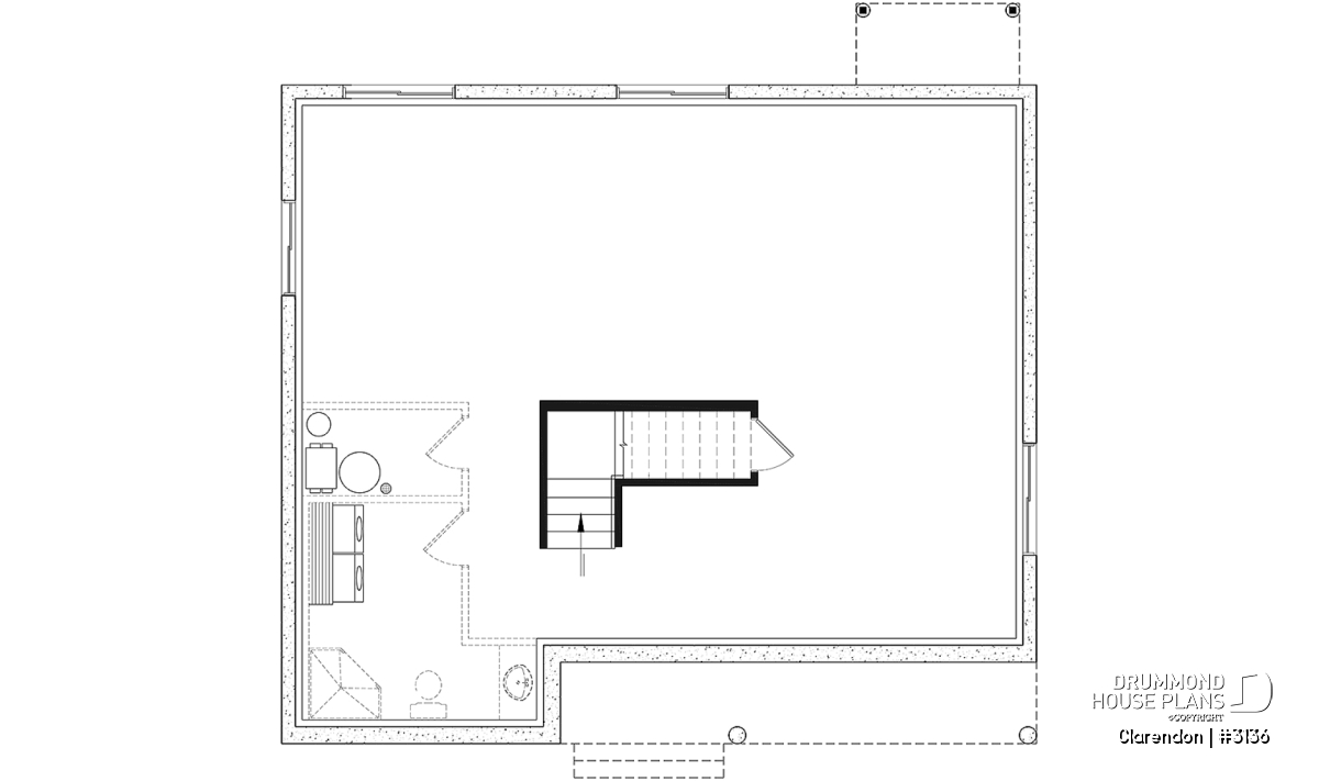
The full basement foundation can be finished to meet your specific needs, either to add bedrooms or a home theater/media room and we would be happy to return a free estimate for customization within two business days after receipt of this on line form..
Distinctive elements
Craftsman style starter home, open living concept with patio door, large shower. Foyer in front, open floor plan throughout common area. Full bathroom with separate 3' x 4' shower enclosure. Two nicely sized bedrooms.
Plan feature(s)
Mud room, Island, Open floor layout, Separate bath and shower
Plan architectural style(s)
. Country, . Traditional, . American, . Ranch, . Transitional
Similar plans
Previously Viewed Plans
Thank you for your comment! It must be approved before being put online, please allow a period of 24 hours.
Error with google reCaptcha! Try again
Here is a brief description of our different plan packages. Please select the plan package that suits your needs. You can change the package at the next step, if necessary.
PDF VERSION OF PLAN:
Complete digital version of plan (pdf format) sent by email (original plan format 18" x 24'' or 24" x 36'')
5 copies of plan + PDF:
Includes: 5 copies of plan, plan in PDF format (reduced size version), materials list.
Foundation type
Additional foundation types are available, a fee may apply. Please indicate your choice on the online order form, or to our customer service representative, when placing your house plan order.
If your desired foundation type is not available, please contact our customer service to receive your free plan modification quote.
Explanation of bonus space types
UNFINISHED BONUS ROOM
The bonus rooms are often planned above the garage and are accessible from the house. They are designed to be converted as an office, a laundry area, a bathroom, a library corner or even an additional bedroom for which homeowners must make sure to have a window that complies with current codes & standards.
STORAGE AREA
Often located above the garage, our storage areas are used only as storage and are usually accessible from the garage via a retractable staircase.
Do you like this plan but want it to be modified to suit your needs?
To add a garage, another bedroom, finish the basement or any other modification, click here and let us know about your desired changes and to get your free quote for the modification of your plan.
Conditions of use
Important copyright notice! Please take note of these copyright conditions before printing:
By printing this house plan, cottage or garage or the floorplan(s), you confirm being informed that every house plan on this website is the exclusive property of Drummond House
Plans and is protected by Canadian copyright law. You are aware that these prints cannot be used to build or even obtain a building permit. The graphic representations of these
models are offered by Drummond House Plans for the sole purpose of allowing you to notate modifications of a model and then take it to one of the Drummond House Plans Canadian dealers for
modification of the plan.
The purchase of a house plan, cottage or garage from Drummond House Plans is mandatory if you wish to build any of our models. The plan purchase allows you to build a single unit; you cannot resell or give your plan to anyone once the house, cottage or garage has been built. If you wish to build the same house, cottage or garage more than once, you need to obtain the licence to this effect. Please contact us for more details.
All plans from Drummond House Plans can only be modified by a licensed Drummond House Plan Canadian dealer. If any other business or individual with no affiliation to Drummond House Plans modifies a Drummond House Plan on your behalf, please ensure this business or individual has a licence to modify this specific plan or you will be subject to prosecution on the same level as the business or individual who modified or reproduced the plan.
For more details, do not hesitate to contact u by e-mail or by phone at 1-800-567-1413.
I agree to respect the conditions above to not reproduce, modify or build a model from Drummond House Plans without previously purchasing a complete house plan.







