There are no shipping fees if you buy one of our 2 plan packages "PDF file format" or "5 sets of blueprints + PDF". Shipping charges may apply if you buy additional sets of blueprints.
House plan Briere (2170)
Affordable bungalow house plan, 2 to 4 bedrooms, optional finished basement ($), kitchen island
Other useful information on this plan
The bungalow provides rustic charm together with modern comfort which makes it suitable for your family needs.
The farmhouse-style bungalow offers a thoughtful design solution for young families or couples who want to enjoy country-inspired elegance and comfort at an affordable price.
The first step through the entrance reveals a space that welcomes you with both light and inspiration. The living room and dining area and kitchen create a seamless connection through an open-concept design that forms the central part of the home. The flexible space serves both social events and family relaxation needs to create an atmosphere of warmth and relaxation.
The kitchen located in the center of the home provides ample storage space which makes it suitable for everyday use. The kitchen design provides both efficient organization capabilities and seamless connectivity to other areas of the home.
The dining area creates a central gathering point which connects the kitchen to the living room for shared dining and socializing. The living room receives abundant natural illumination which creates a tranquil atmosphere for relaxation.
The main floor contains two well-proportioned bedrooms which serve as suitable spaces for children or guests or a home office. The bathroom provides both style and functionality through its design which includes two sinks and a bathtub and walk-in shower that meets the needs of an active family.
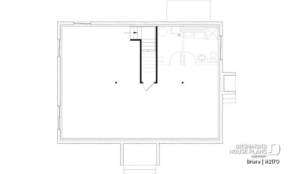
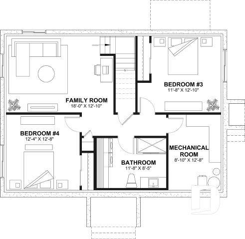
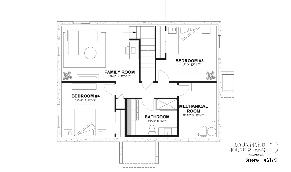
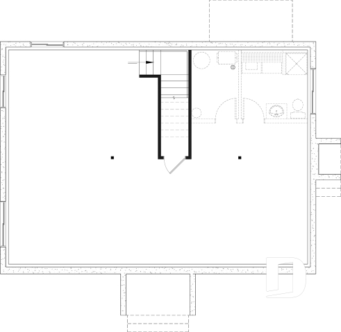
The *optional finished basement expansion ($$) provides two additional bedrooms and a bathroom with shower along with a laundry room and family room and plenty of storage space.
This home provides both functionality and warmth as a living space which will endure through time because every detail was designed to simplify your daily tasks and build a real family sanctuary.
---
*If you wish to purchase the finished basement plan, please select this option in the shopping cart, in the "Selection of foundation type" section. If you do not select this option, you will receive the unfinished full basement option, at no extra charge.
Distinctive elements
Charming farmhouse-style bungalow, ideal for a family with 2 to 3 children, at an affordable price.
Featuring 2 bedrooms on the main floor.
Full bathroom with double sinks, separate bathtub and shower.
Functional kitchen with ample storage space.
Open-concept living room connected to the kitchen.
Centrally located dining area, perfectly positioned between the living room and kitchen.
---
Adds 2 additional bedrooms, a bathroom, a laundry room, a family room, a mechanical room, and a storage area.
---
*If you wish to purchase the finished basement plan, please select this option in the shopping cart, in the "Selection of foundation type" section. If you do not select this option, you will receive the unfinished full basement option, at no extra charge.
Plan feature(s)
Island, Open floor layout, Separate bath and shower, Double sinks
Plan architectural style(s)
. Ranch, . Traditional, . European, . Farmhouse, Modern farmhouse, . Country
Similar plans
Previously Viewed Plans
Thank you for your comment! It must be approved before being put online, please allow a period of 24 hours.
Error with google reCaptcha! Try again
Here is a brief description of our different plan packages. Please select the plan package that suits your needs. You can change the package at the next step, if necessary.
PDF VERSION OF PLAN:
Complete digital version of plan (pdf format) sent by email (original plan format 18" x 24'' or 24" x 36'')
5 copies of plan + PDF:
Includes: 5 copies of plan, plan in PDF format (reduced size version), materials list.
Foundation type
Additional foundation types are available, a fee may apply. Please indicate your choice on the online order form, or to our customer service representative, when placing your house plan order.
If your desired foundation type is not available, please contact our customer service to receive your free plan modification quote.
Explanation of bonus space types
UNFINISHED BONUS ROOM
The bonus rooms are often planned above the garage and are accessible from the house. They are designed to be converted as an office, a laundry area, a bathroom, a library corner or even an additional bedroom for which homeowners must make sure to have a window that complies with current codes & standards.
STORAGE AREA
Often located above the garage, our storage areas are used only as storage and are usually accessible from the garage via a retractable staircase.
Do you like this plan but want it to be modified to suit your needs?
To add a garage, another bedroom, finish the basement or any other modification, click here and let us know about your desired changes and to get your free quote for the modification of your plan.
Conditions of use
Important copyright notice! Please take note of these copyright conditions before printing:
By printing this house plan, cottage or garage or the floorplan(s), you confirm being informed that every house plan on this website is the exclusive property of Drummond House
Plans and is protected by Canadian copyright law. You are aware that these prints cannot be used to build or even obtain a building permit. The graphic representations of these
models are offered by Drummond House Plans for the sole purpose of allowing you to notate modifications of a model and then take it to one of the Drummond House Plans Canadian dealers for
modification of the plan.
The purchase of a house plan, cottage or garage from Drummond House Plans is mandatory if you wish to build any of our models. The plan purchase allows you to build a single unit; you cannot resell or give your plan to anyone once the house, cottage or garage has been built. If you wish to build the same house, cottage or garage more than once, you need to obtain the licence to this effect. Please contact us for more details.
All plans from Drummond House Plans can only be modified by a licensed Drummond House Plan Canadian dealer. If any other business or individual with no affiliation to Drummond House Plans modifies a Drummond House Plan on your behalf, please ensure this business or individual has a licence to modify this specific plan or you will be subject to prosecution on the same level as the business or individual who modified or reproduced the plan.
For more details, do not hesitate to contact u by e-mail or by phone at 1-800-567-1413.
I agree to respect the conditions above to not reproduce, modify or build a model from Drummond House Plans without previously purchasing a complete house plan.














