There are no shipping fees if you buy one of our 2 plan packages "PDF file format" or "5 sets of blueprints + PDF". Shipping charges may apply if you buy additional sets of blueprints.
House plan Sam (2115)
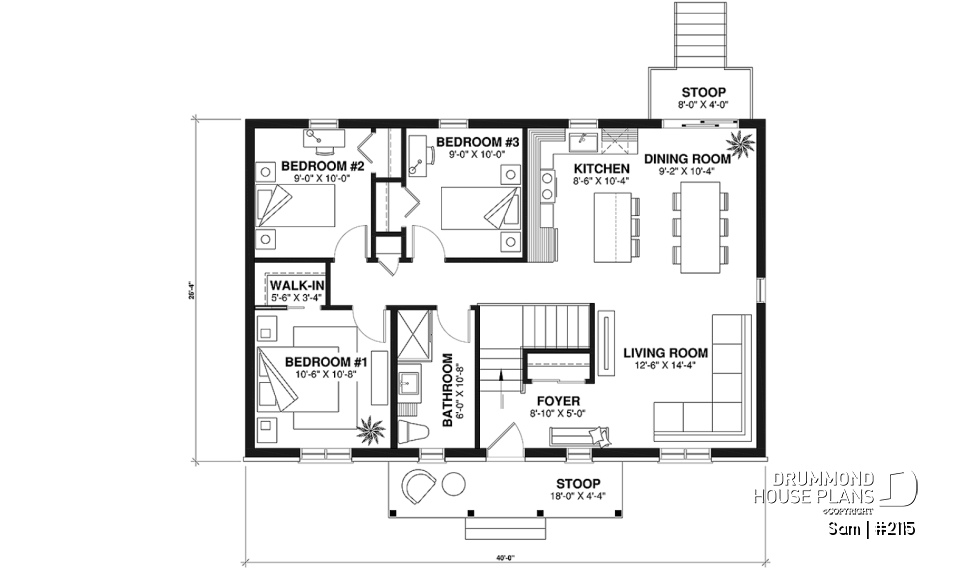
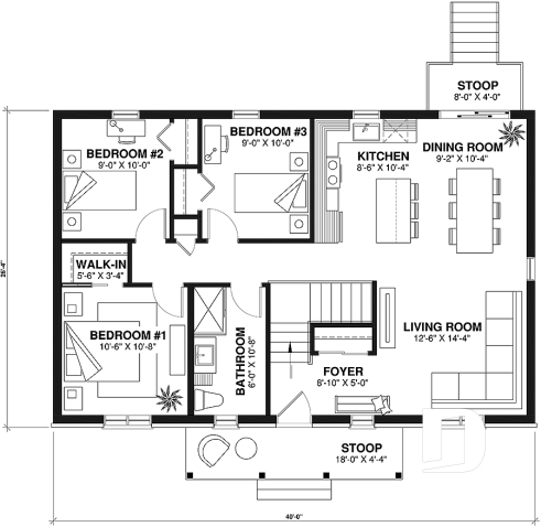
3 bedroom ranch style home design with great open concept, covered front porch, budget-friendly
Other useful information on this plan
Affordable Country-Style Bungalow Plan: Warm, Simple and Designed for Everyday Comfort
This affordable country-style bungalow plan stands out with its warm character and inviting design. Created for simple, practical, and comfortable living, it’s an ideal choice for families seeking an efficient layout at a budget-friendly price.
The home begins with a covered front porch, a charming and useful feature during bad weather and a welcoming spot for visitors. Inside, a functional entryway includes a built-in bench and a convenient closet, helping organize coats, boots, and everyday essentials for smoother routines.
The layout offers three bedrooms on the same floor, a configuration perfect for a young family wanting closeness and simplicity. The primary bedroom features a spacious walk-in closet, providing excellent storage for clothing and accessories, while the secondary bedrooms work equally well for children, guests, or a home office.
Bright Open-Concept Living With a Social, Family-Friendly Kitchen
The heart of the home is the bright open-concept living area, which connects the kitchen, dining room, and living room. This shared space encourages togetherness and creates a warm, lively environment for daily life.
The inviting kitchen features a central island, ideal for meal prep, morning coffees, or hosting friends and family. Its open layout makes movement easy and helps keep conversations flowing. The connected dining area adds convenience and flexibility, especially for busy households.
The main bathroom includes a large shower, offering comfort and functionality that fit today’s modern lifestyle. Its practical layout ensures it meets the needs of families of all sizes.
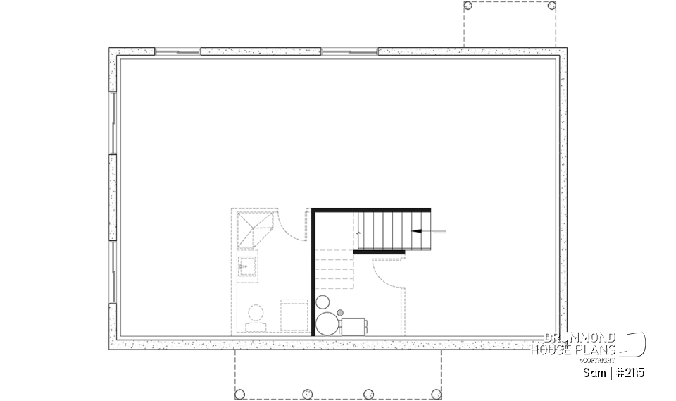
Unfinished Basement With Excellent Expansion Potential
The home includes an unfinished basement, offering impressive potential for future development. With ample space, it can easily accommodate a family room, additional bedrooms, a playroom, a gym, or large storage areas. This flexibility allows the house to grow and evolve over time, adapting to changing family needs or personal projects.
Whether used as a budget-friendly family home, a first property, or a cozy downsize option, this country-style bungalow plan delivers warmth, simplicity, and long-term value.
Distinctive elements
Economical single-story home with a warm country style, perfect for simple and comfortable living.
Covered front porch, very practical during bad weather and welcoming for guests.
Functional entryway with a built-in bench and a convenient closet for coats and shoes.
Three bedrooms located on the same level, an ideal layout for a young family.
Inviting kitchen with a central island, open to the dining area to ease meals and conversation.
Primary bathroom with a large shower, offering maximum comfort for daily routines.
Bright open-concept living space connecting the main living areas for a friendly atmosphere.
Primary bedroom with a spacious walk-in closet, perfect for efficient storage.
Unfinished basement with great potential, ideal for adding a family room, extra bedrooms, or storage.
Plan feature(s)
Island, Walk-in master bed., Open floor layout, Bench seat(s), Self-Build
Plan architectural style(s)
. Country, . Traditional, . American, . Craftsman / Northwest, . Farmhouse, . Ranch
Similar plans
Previously Viewed Plans
Questions and comments
March 10
Humphreys Charles Saiti
I have seen and viewed the nice plans for 3 bedroooms which contains stairs, its good but I wish if you could prepare me for a 2 bedroom sketch plan with 1 common and private bath, kitchen, dining and storeroom with good verandah front and back.Thanks for the good sketch plans.
Humphreys
March 10
Customer service
Good day and thank you for taking the time to write.
We would be happy to prepare a free estimate for the changes that you require to this or any of our other plans within two business days after receipt of this on line request.
Please let me know if I can further assist you
Regards
Deb
Thank you for your comment! It must be approved before being put online, please allow a period of 24 hours.
Error with google reCaptcha! Try again
Here is a brief description of our different plan packages. Please select the plan package that suits your needs. You can change the package at the next step, if necessary.
PDF VERSION OF PLAN:
Complete digital version of plan (pdf format) sent by email (original plan format 18" x 24'' or 24" x 36'')
5 copies of plan + PDF:
Includes: 5 copies of plan, plan in PDF format (reduced size version), materials list.
Foundation type
Additional foundation types are available, a fee may apply. Please indicate your choice on the online order form, or to our customer service representative, when placing your house plan order.
If your desired foundation type is not available, please contact our customer service to receive your free plan modification quote.
Explanation of bonus space types
UNFINISHED BONUS ROOM
The bonus rooms are often planned above the garage and are accessible from the house. They are designed to be converted as an office, a laundry area, a bathroom, a library corner or even an additional bedroom for which homeowners must make sure to have a window that complies with current codes & standards.
STORAGE AREA
Often located above the garage, our storage areas are used only as storage and are usually accessible from the garage via a retractable staircase.
Do you like this plan but want it to be modified to suit your needs?
To add a garage, another bedroom, finish the basement or any other modification, click here and let us know about your desired changes and to get your free quote for the modification of your plan.
Conditions of use
Important copyright notice! Please take note of these copyright conditions before printing:
By printing this house plan, cottage or garage or the floorplan(s), you confirm being informed that every house plan on this website is the exclusive property of Drummond House
Plans and is protected by Canadian copyright law. You are aware that these prints cannot be used to build or even obtain a building permit. The graphic representations of these
models are offered by Drummond House Plans for the sole purpose of allowing you to notate modifications of a model and then take it to one of the Drummond House Plans Canadian dealers for
modification of the plan.
The purchase of a house plan, cottage or garage from Drummond House Plans is mandatory if you wish to build any of our models. The plan purchase allows you to build a single unit; you cannot resell or give your plan to anyone once the house, cottage or garage has been built. If you wish to build the same house, cottage or garage more than once, you need to obtain the licence to this effect. Please contact us for more details.
All plans from Drummond House Plans can only be modified by a licensed Drummond House Plan Canadian dealer. If any other business or individual with no affiliation to Drummond House Plans modifies a Drummond House Plan on your behalf, please ensure this business or individual has a licence to modify this specific plan or you will be subject to prosecution on the same level as the business or individual who modified or reproduced the plan.
For more details, do not hesitate to contact u by e-mail or by phone at 1-800-567-1413.
I agree to respect the conditions above to not reproduce, modify or build a model from Drummond House Plans without previously purchasing a complete house plan.











March 10
Humphreys Charles Saiti
I have seen and viewed the nice plans for 3 bedroooms which contains stairs, its good but I wish if you could prepare me for a 2 bedroom sketch plan with 1 common and private bath, kitchen, dining and storeroom with good verandah front and back.Thanks for the good sketch plans.
Humphreys