There are no shipping fees if you buy one of our 2 plan packages "PDF file format" or "5 sets of blueprints + PDF". Shipping charges may apply if you buy additional sets of blueprints.
House plan Colton (1051)
Economical 3 bedroom ranch style house plan, ideal for young families and first-home owners
Other useful information on this plan
Affordable Country-Style Bungalow with 3 Bedrooms and an Unfinished Basement: The Perfect Layout for a Young Family
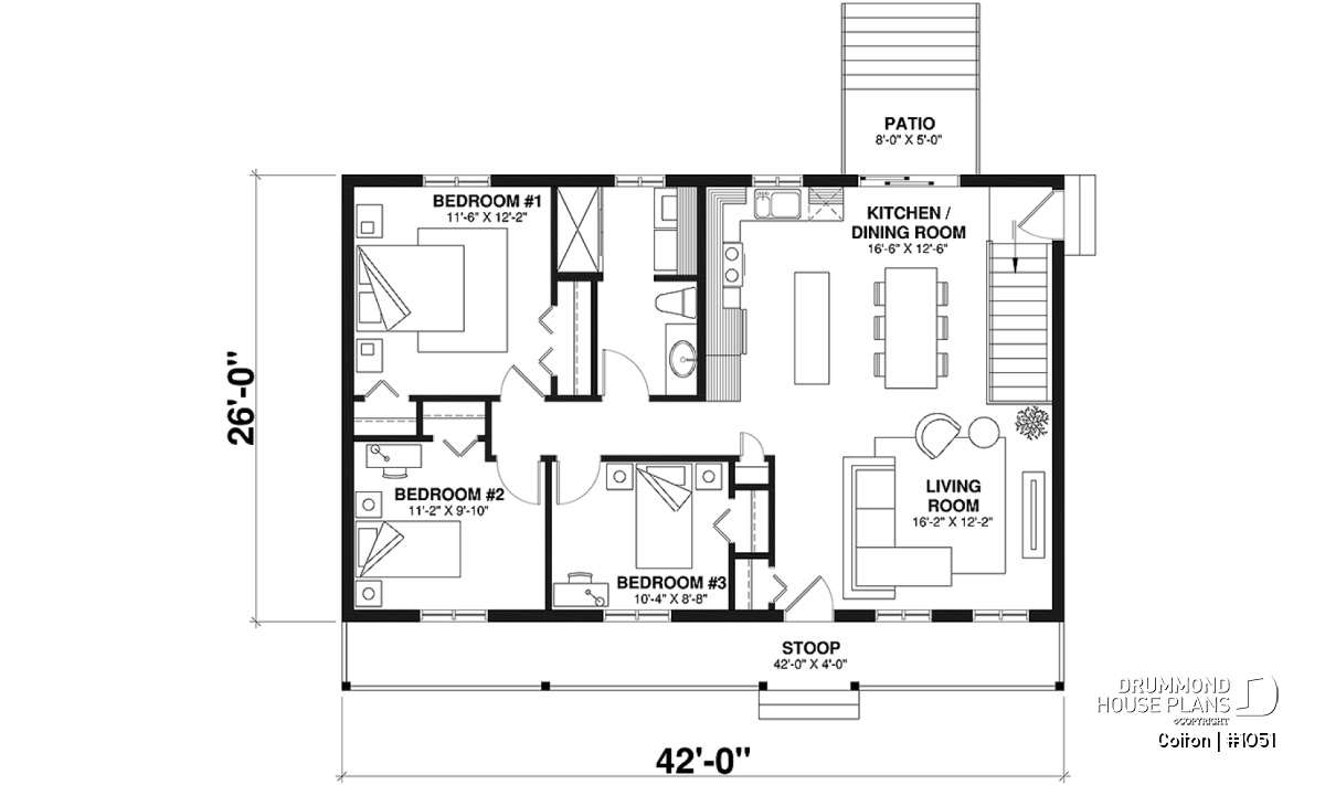
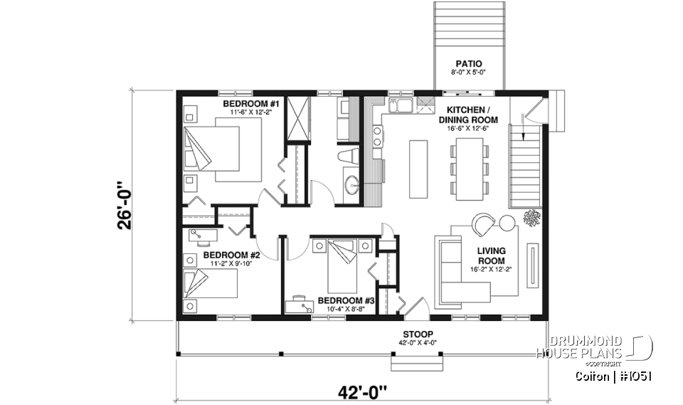
This charming country-style bungalow, designed to be affordable, functional and welcoming, stands out with its inviting exterior and its well-planned, efficient interior layout. From the moment you arrive, the large covered front porch creates a warm, practical welcome—ideal for sheltering from the rain, enjoying a quiet morning coffee or simply taking in the peaceful surroundings.
Inside, the entryway includes a convenient closet that helps keep the space tidy and organized. A side door located just beside the vestibule provides direct access near the basement staircase, a particularly useful feature for quickly reaching storage areas or a future finished space.
The dining area benefits from generous natural light thanks to a patio door that opens to the outside, filling the space with a soft, pleasant brightness throughout the day. This natural light flows into the comfortable living room, a well-sized space perfect for relaxing, movie nights or family gatherings.
All three bedrooms are located on the main floor—an important advantage for young families wanting to keep children close. One of the bedrooms can also serve as a home office, providing a dedicated area for remote work, studying or personal projects. The primary bedroom includes spacious closets that offer excellent storage for a well-organized lifestyle.
The main bathroom is smartly designed with a large modern shower and an integrated laundry area. This thoughtful arrangement maximizes available space and simplifies daily routines, making everyday tasks more accessible and efficient.
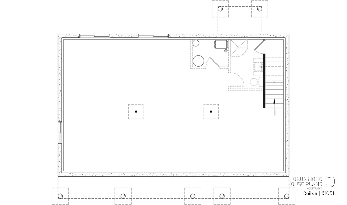
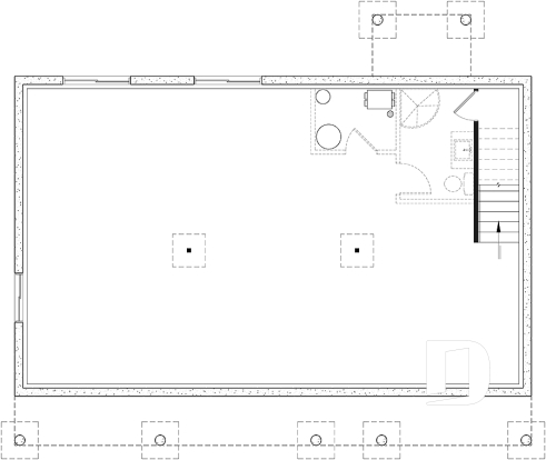
The unfinished basement represents a true world of possibilities. It can be transformed into additional bedrooms, a large family room, an extra bathroom, a home gym or generous storage space. Each family can tailor it into a living environment that fits both present and future needs.
Altogether, this affordable country-style bungalow combines simplicity, warmth and practicality, offering a solid and flexible foundation for a young family looking for a comfortable and long-lasting home.
Distinctive elements
Economical country-style bungalow designed for simple, comfortable living.
Large covered front porch offering a warm welcome in any season.
Entryway with a convenient closet and practical side access near the staircase leading to the basement.
Bright dining area thanks to a patio door that brings in abundant natural light.
Well-sized living room, perfect for family time and relaxing moments.
Three bedrooms on the same floor—ideal for a young family—or two bedrooms plus a home office.
Primary bedroom equipped with large closets for optimal storage.
Main bathroom featuring a spacious shower and an integrated laundry area to maximize space.
Unfinished basement offering flexible potential for additional bedrooms, a family room, storage, a bathroom or any project to suit your needs.
Plan feature(s)
Island, Gound floor laundry room, Open floor layout, Self-Build
Plan architectural style(s)
. Ranch, . Traditional, . Country
Similar plans
Previously Viewed Plans
Thank you for your comment! It must be approved before being put online, please allow a period of 24 hours.
Error with google reCaptcha! Try again
Here is a brief description of our different plan packages. Please select the plan package that suits your needs. You can change the package at the next step, if necessary.
PDF VERSION OF PLAN:
Complete digital version of plan (pdf format) sent by email (original plan format 18" x 24'' or 24" x 36'')
5 copies of plan + PDF:
Includes: 5 copies of plan, plan in PDF format (reduced size version), materials list.
Foundation type
Additional foundation types are available, a fee may apply. Please indicate your choice on the online order form, or to our customer service representative, when placing your house plan order.
If your desired foundation type is not available, please contact our customer service to receive your free plan modification quote.
Explanation of bonus space types
UNFINISHED BONUS ROOM
The bonus rooms are often planned above the garage and are accessible from the house. They are designed to be converted as an office, a laundry area, a bathroom, a library corner or even an additional bedroom for which homeowners must make sure to have a window that complies with current codes & standards.
STORAGE AREA
Often located above the garage, our storage areas are used only as storage and are usually accessible from the garage via a retractable staircase.
Do you like this plan but want it to be modified to suit your needs?
To add a garage, another bedroom, finish the basement or any other modification, click here and let us know about your desired changes and to get your free quote for the modification of your plan.
Conditions of use
Important copyright notice! Please take note of these copyright conditions before printing:
By printing this house plan, cottage or garage or the floorplan(s), you confirm being informed that every house plan on this website is the exclusive property of Drummond House
Plans and is protected by Canadian copyright law. You are aware that these prints cannot be used to build or even obtain a building permit. The graphic representations of these
models are offered by Drummond House Plans for the sole purpose of allowing you to notate modifications of a model and then take it to one of the Drummond House Plans Canadian dealers for
modification of the plan.
The purchase of a house plan, cottage or garage from Drummond House Plans is mandatory if you wish to build any of our models. The plan purchase allows you to build a single unit; you cannot resell or give your plan to anyone once the house, cottage or garage has been built. If you wish to build the same house, cottage or garage more than once, you need to obtain the licence to this effect. Please contact us for more details.
All plans from Drummond House Plans can only be modified by a licensed Drummond House Plan Canadian dealer. If any other business or individual with no affiliation to Drummond House Plans modifies a Drummond House Plan on your behalf, please ensure this business or individual has a licence to modify this specific plan or you will be subject to prosecution on the same level as the business or individual who modified or reproduced the plan.
For more details, do not hesitate to contact u by e-mail or by phone at 1-800-567-1413.
I agree to respect the conditions above to not reproduce, modify or build a model from Drummond House Plans without previously purchasing a complete house plan.










