There are no shipping fees if you buy one of our 2 plan packages "PDF file format" or "5 sets of blueprints + PDF". Shipping charges may apply if you buy additional sets of blueprints.
House plan Leslie (3955)
Affordable simple northwest style lakefront home plan, 1 to 3+ bedrooms, 2 living , 2 fireplaces, covered deck
Other useful information on this plan
Affordable cottage plan with walkout basement, perfect for a lake front or slope side lot.
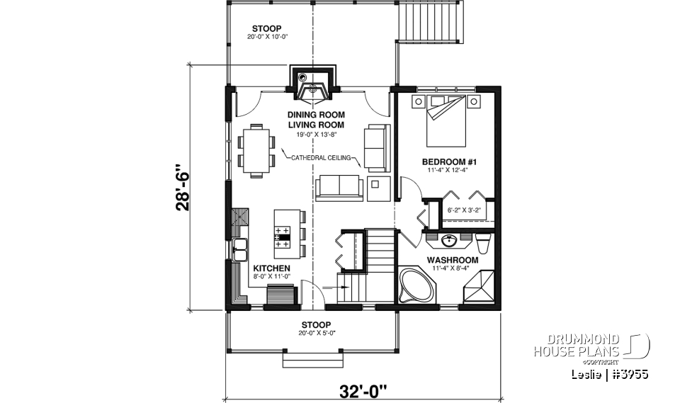
From the front it appears to be a country style bungalow with large covered veranda and master on the main level complete with walk-in closet, a full bathroom with separate corner bath and corner shower and an open floor plan throughout the common area that includes a large closet at the foyer and a pantry/linen closet for extra convenience. There is an abundance of natural light from the many windows and triple patio doors on all three sides and a large fireplace on the living room side enhances the coziness without hindering the view from the covered terrace in back. The "L" shaped kitchen provides enough space for an island and the dining area has enough room for a table that seats six.
The finished basement has a second living room with its own corner fireplace and a second full bathroom with corner shower and separate laundry area. The entrance foyer to this level can be closed off from the main area to keep the elements out and is large enough to use as a mud room with abundant closet space. There is a mechanical room that can provide extra storage for seasonal items and the two nicely sized bedrooms on this level each have their own walk-in type closet.
Distinctive elements
Cathedral ceiling in entry-kitchen-dining-living room area.
Large foyer on lower level.
Fireplace in living/dining room area and also in game room on lower level.
Remarquable covered back porch with garden doors to living and dining room.
Master bedroom on 1st floor.
Plan feature(s)
Open floor layout, Separate bath and shower, Walk-in master bed., Fireplace, Deck, Cathedral ceiling
Plan architectural style(s)
. Mountain, . Vacation and waterfront, . Ski chalets, . Rustic, . American, . Ranch, . Craftsman / Northwest, . Country, . Modern rustic, . Transitional, . Cottage, chalet, cabin
Similar plans
Previously Viewed Plans
Questions and comments
July 07
Anthony Grancic
What is the overall depth of this plan including the front deck and rear porch. I see the dimensions listed as 26’x32’ but I assume that is just the size of the building itself. Also will the plans be certified for use in Ontario?
June 24
Lisa
Hi!
Your cost calculator doesn't seem to be working. Could you tell me the cost to build this house in Prince George, B.C.
Thanks,
Lisa-Marie
March 12
anne
is it possible to get a cost on what is needed to build this cottage?
March 14
Customer service
Dear Anne,
Thank you for your interest in Drummond House Plans.
The only prices we have a provincial averages for the province of Quebec. These prices include labor and materials and may not be accurate for your area. The price we have is from $145,000 to $176,000.
If you need further information, do not hesitate to contact me again. I will gladly answer any questions you may have.
Best Regards,
Doreen, Customer Service Department
Thank you for your comment! It must be approved before being put online, please allow a period of 24 hours.
Error with google reCaptcha! Try again
Here is a brief description of our different plan packages. Please select the plan package that suits your needs. You can change the package at the next step, if necessary.
PDF VERSION OF PLAN:
Complete digital version of plan (pdf format) sent by email (original plan format 18" x 24'' or 24" x 36'')
5 copies of plan + PDF:
Includes: 5 copies of plan, plan in PDF format (reduced size version), materials list.
Foundation type
Additional foundation types are available, a fee may apply. Please indicate your choice on the online order form, or to our customer service representative, when placing your house plan order.
If your desired foundation type is not available, please contact our customer service to receive your free plan modification quote.
Explanation of bonus space types
UNFINISHED BONUS ROOM
The bonus rooms are often planned above the garage and are accessible from the house. They are designed to be converted as an office, a laundry area, a bathroom, a library corner or even an additional bedroom for which homeowners must make sure to have a window that complies with current codes & standards.
STORAGE AREA
Often located above the garage, our storage areas are used only as storage and are usually accessible from the garage via a retractable staircase.
Do you like this plan but want it to be modified to suit your needs?
To add a garage, another bedroom, finish the basement or any other modification, click here and let us know about your desired changes and to get your free quote for the modification of your plan.
Conditions of use
Important copyright notice! Please take note of these copyright conditions before printing:
By printing this house plan, cottage or garage or the floorplan(s), you confirm being informed that every house plan on this website is the exclusive property of Drummond House
Plans and is protected by Canadian copyright law. You are aware that these prints cannot be used to build or even obtain a building permit. The graphic representations of these
models are offered by Drummond House Plans for the sole purpose of allowing you to notate modifications of a model and then take it to one of the Drummond House Plans Canadian dealers for
modification of the plan.
The purchase of a house plan, cottage or garage from Drummond House Plans is mandatory if you wish to build any of our models. The plan purchase allows you to build a single unit; you cannot resell or give your plan to anyone once the house, cottage or garage has been built. If you wish to build the same house, cottage or garage more than once, you need to obtain the licence to this effect. Please contact us for more details.
All plans from Drummond House Plans can only be modified by a licensed Drummond House Plan Canadian dealer. If any other business or individual with no affiliation to Drummond House Plans modifies a Drummond House Plan on your behalf, please ensure this business or individual has a licence to modify this specific plan or you will be subject to prosecution on the same level as the business or individual who modified or reproduced the plan.
For more details, do not hesitate to contact u by e-mail or by phone at 1-800-567-1413.
I agree to respect the conditions above to not reproduce, modify or build a model from Drummond House Plans without previously purchasing a complete house plan.









July 07
Anthony Grancic
What is the overall depth of this plan including the front deck and rear porch. I see the dimensions listed as 26’x32’ but I assume that is just the size of the building itself. Also will the plans be certified for use in Ontario?