There are no shipping fees if you buy one of our 2 plan packages "PDF file format" or "5 sets of blueprints + PDF". Shipping charges may apply if you buy additional sets of blueprints.
House plan Lombard (3960)
Modern Rustic Cottage Plan – Bright Layout with Central Fireplace, 3 Bedrooms & Flexible Basement
Virtual visit
Other useful information on this plan
Modern Rustic Cabin Home Plan with Central Fireplace, 10’ Ceilings, Covered Deck and Flexible Basement for Year-Round Comfort
This modern rustic cabin plan combines authentic charm with contemporary living. Dark materials and stone give the exterior a warm, distinctive look, while expansive windows frame panoramic rear views and flood the interior with natural light. A 10-foot ceiling in the main activity area creates a sense of openness, making this design perfect for family gatherings or quiet retreats.
An Inviting, Functional Entryway
Step into an inviting split-level front entry with an integrated closet, offering practical storage for coats and shoes. The functional kitchen features a central breakfast island and a corner pantry, ideal for everyday cooking and entertaining. A bright dining area adjoins the kitchen and opens directly to a charming balcony on the main level, perfect for outdoor meals and relaxing moments.
A Signature STÛV Fireplace
At the heart of the cabin sits a stunning central fireplace visible from the kitchen, dining room, and living room. The proposed STÛV s21 wood-burning fireplace combines sleek design with high performance. More than just a source of heat, it becomes the centerpiece of the living area—bringing warmth, Scandinavian-style ambiance, and a timeless focal point to every family gathering.
Designed for Family Living
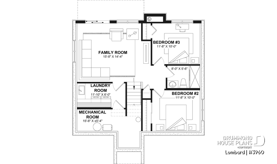
The primary bedroom on the main floor enjoys outdoor views and easy access to a full bathroom with separate tub and shower plus dual sinks. Downstairs, two secondary bedrooms with closets share a bathroom and a second family room located on the walk-out level. This level also includes a covered deck accessible from the family room, ideal for extending time outdoors in any season. You’ll also find a laundry room, storage under the stairs, and a mechanical room for added convenience.
A flexible basement layout lets you adapt the space to your lifestyle—create a playroom, home office, gym, or extra bedrooms. This modern rustic cabin plan blends warmth, practicality, and style to offer a welcoming home for every season.
Distinctive elements
Modern Rustic-Style Cottage Plan.
Dark materials and stone give it a warm, rustic character.
Expansive windows offer panoramic rear views and maximize natural light.
10' ceilings in the activity area, fully open to the back of the home.
Inviting split-level front entry with integrated closet.
Functional kitchen with a central breakfast island and corner pantry.
Bright dining area directly adjacent to the kitchen.
Charming balcony on the main level, directly accessible from the kitchen for easy outdoor living.
Stunning central *fireplace visible from the kitchen, dining room, and living room.
*Suggested fireplace: STÛV s21 wood-burning model.
Primary bedroom on the main level with outdoor views.
Main-level bathroom with separate tub and shower plus double sinks.
Two secondary bedrooms on the lower level with closets.
A second family room located on the walk-out basement level.
Covered balcony at the lower level, accessible from the family room—ideal for extending time outdoors.
On this level, you’ll also find the laundry room, storage under the stairs, and a mechanical room.
Direct access to the yard from the lower level for added convenience.
Flexible basement layout allowing you to adapt the space to your needs.
Plan feature(s)
Open floor layout, Inverted living, Panoramic view, Fireplace, Island, Sloped ceiling, Separate bath and shower
Plan architectural style(s)
. Cottage, chalet, cabin, . Vacation and waterfront, . Modern / Design, . Modern rustic, . Contemporary, . Ski chalets, . Scandinavian, . Transitional, . Mountain, . Country
Similar plans
Previously Viewed Plans
Questions and comments
January 23
James E. Watts
I was going to purchase this plan on Jan 1, 2015 and placed it in my cart when you had 35% off plans. Now it's gone and no discount, what gives?
January 23
Customer service
Good day Mr. Watts and thank you for your interest in this plan.
The boxing week discount of 35% off the regular price was valid from December 26th 2014 to January 4th 2015 inclusively and is no longer available. Since it is now January 23rd 2015 this is probably why the order at the discounted, 2014 price is no longer in your cart.
I apologize for any inconvenience caused.
Regards
Deb
October 25
Dave
Are these floorplans correct? The main floor does not show a chimney or flue for the lower floor fireplace.
October 25
Customer service
Hello Dave!
There is one flue in the chimney in the basement for the fireplace of the playroom. The flue will run through the closet in a bulkhead or between floor joists. On the main floor we can see two flues, one is coming from the basement and the second one is for the fireplace of the dining/ living room.
Hope this helps you! Get back to us if you need more information!
Thank you for your comment! It must be approved before being put online, please allow a period of 24 hours.
Error with google reCaptcha! Try again
Here is a brief description of our different plan packages. Please select the plan package that suits your needs. You can change the package at the next step, if necessary.
PDF VERSION OF PLAN:
Complete digital version of plan (pdf format) sent by email (original plan format 18" x 24'' or 24" x 36'')
5 copies of plan + PDF:
Includes: 5 copies of plan, plan in PDF format (reduced size version), materials list.
Foundation type
Additional foundation types are available, a fee may apply. Please indicate your choice on the online order form, or to our customer service representative, when placing your house plan order.
If your desired foundation type is not available, please contact our customer service to receive your free plan modification quote.
Explanation of bonus space types
UNFINISHED BONUS ROOM
The bonus rooms are often planned above the garage and are accessible from the house. They are designed to be converted as an office, a laundry area, a bathroom, a library corner or even an additional bedroom for which homeowners must make sure to have a window that complies with current codes & standards.
STORAGE AREA
Often located above the garage, our storage areas are used only as storage and are usually accessible from the garage via a retractable staircase.
Do you like this plan but want it to be modified to suit your needs?
To add a garage, another bedroom, finish the basement or any other modification, click here and let us know about your desired changes and to get your free quote for the modification of your plan.
Conditions of use
Important copyright notice! Please take note of these copyright conditions before printing:
By printing this house plan, cottage or garage or the floorplan(s), you confirm being informed that every house plan on this website is the exclusive property of Drummond House
Plans and is protected by Canadian copyright law. You are aware that these prints cannot be used to build or even obtain a building permit. The graphic representations of these
models are offered by Drummond House Plans for the sole purpose of allowing you to notate modifications of a model and then take it to one of the Drummond House Plans Canadian dealers for
modification of the plan.
The purchase of a house plan, cottage or garage from Drummond House Plans is mandatory if you wish to build any of our models. The plan purchase allows you to build a single unit; you cannot resell or give your plan to anyone once the house, cottage or garage has been built. If you wish to build the same house, cottage or garage more than once, you need to obtain the licence to this effect. Please contact us for more details.
All plans from Drummond House Plans can only be modified by a licensed Drummond House Plan Canadian dealer. If any other business or individual with no affiliation to Drummond House Plans modifies a Drummond House Plan on your behalf, please ensure this business or individual has a licence to modify this specific plan or you will be subject to prosecution on the same level as the business or individual who modified or reproduced the plan.
For more details, do not hesitate to contact u by e-mail or by phone at 1-800-567-1413.
I agree to respect the conditions above to not reproduce, modify or build a model from Drummond House Plans without previously purchasing a complete house plan.







January 23
James E. Watts
I was going to purchase this plan on Jan 1, 2015 and placed it in my cart when you had 35% off plans. Now it's gone and no discount, what gives?