There are no shipping fees if you buy one of our 2 plan packages "PDF file format" or "5 sets of blueprints + PDF". Shipping charges may apply if you buy additional sets of blueprints.
House plan Taylor (3993)
Modern cottage plan, 2-3 bedrooms, 2 large terraces, panoramic views, 2 fireplaces, large kitchen island
Other useful information on this plan
Modern chalet house plan for land with panoramic view
The new contemporary chalet plan from Drummond House Plans (plan # 3993) also named "Taylor", charms at first by the impressive amount of windows and doors it offers to future owners. These openings allow a maximum of natural light to be obtained in several key rooms in the house: the activity area at the back and the master bedroom. Whether in the wooded countryside, along a lake or river, or in the mountains, the new Drummond House Plans "Taylor" cottage plan will give you the maximum enjoyment of the views available from your land.
The main floor, which offers a ceiling height of 9 feet, allows you to enter a closed vestibule offering a wardrobe and which is adjacent to a convenient half bathroom (powder room). Then, to your left, find a flex room that can serve as a home office as well as a game room, TV room or guest bedroom.
Located in the heart of the house, the dining room is near the kitchen and large enough to accommodate a table and 6 guests. Adjoining this dining room, an "L" shaped kitchen offers a large central island with sink and dishwasher, as well as a large counter space. The living room, open to the kitchen area, features a fireplace and an access to a large sheltered back deck. On the landing of the staircase leading to the second floor, a glass wall offers a view of the office area located at the front of the house.
Upstairs, with a sloped ceiling, is the large master bedroom with a reading area, a fireplace, a walk-in closet, a private access to the upstairs bathroom and access to a large and private rear terrace! A secondary bedroom is also located upstairs and offers a good size closet and lots of natural light. A large family bathroom offers a double vanity, a toilet, a bath and a large shower, separate from the bath.
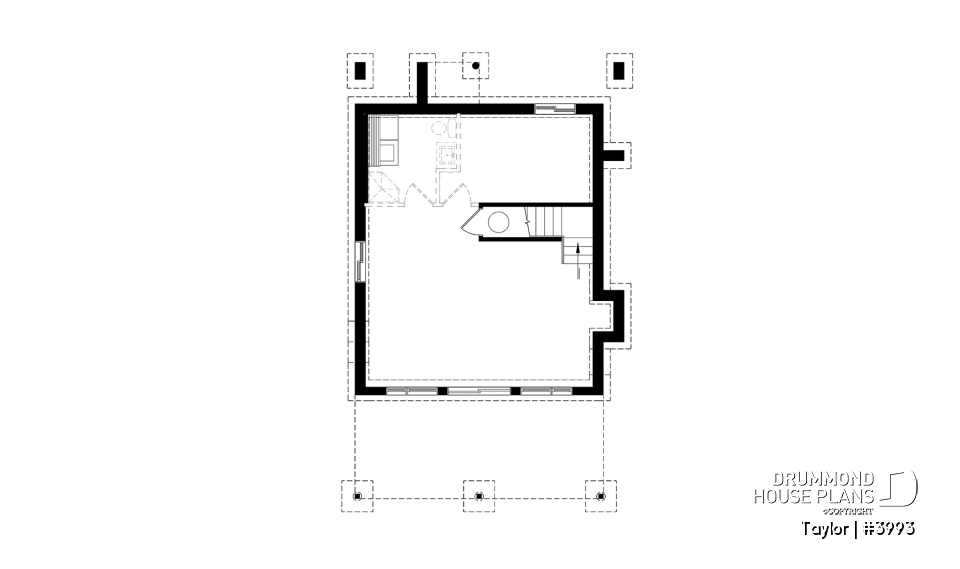
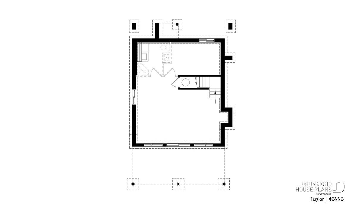
The walkout basement of this new cottage design by Drummond House Plans is unfinished, except for the laundry area. So you can decide to add additional rooms, a family area or simply to build storage space for your sports items, etc.
Distinctive elements
Modern style chalet house plan.
Ideal design for lakefront land or panoramic view.
9' ceiling on main floor.
Home office or guest bedroom on main floor.
Open kitchen living room concept.
Fireplace in living room and also in master suite.
Laudry area located in walkout basement.
Master bedroom with fireplace, walk-in closet, access to family bathroom and access to a large private terrace.
Large family bathroom on second floor with separate shower and bath.
Walkout basement. Many foundation options are available.
Plan feature(s)
Island, Fireplace, Open floor layout, Ceiling over 8', Narrow lot, Deck, Walk-in master bed., Balcony 2nd floor, Master suite upstairs, Office / Study / Den, Panoramic view, Double sinks, Separate bath and shower
Plan architectural style(s)
. Cottage, chalet, cabin, . Contemporary, . Scandinavian, . Transitional, . Ski chalets, . Vacation and waterfront, . Modern / Design, . Modern rustic, . Mid-century
Similar plans
Previously Viewed Plans
Thank you for your comment! It must be approved before being put online, please allow a period of 24 hours.
Error with google reCaptcha! Try again
Here is a brief description of our different plan packages. Please select the plan package that suits your needs. You can change the package at the next step, if necessary.
PDF VERSION OF PLAN:
Complete digital version of plan (pdf format) sent by email (original plan format 18" x 24'' or 24" x 36'')
5 copies of plan + PDF:
Includes: 5 copies of plan, plan in PDF format (reduced size version), materials list.
Foundation type
Additional foundation types are available, a fee may apply. Please indicate your choice on the online order form, or to our customer service representative, when placing your house plan order.
If your desired foundation type is not available, please contact our customer service to receive your free plan modification quote.
Explanation of bonus space types
UNFINISHED BONUS ROOM
The bonus rooms are often planned above the garage and are accessible from the house. They are designed to be converted as an office, a laundry area, a bathroom, a library corner or even an additional bedroom for which homeowners must make sure to have a window that complies with current codes & standards.
STORAGE AREA
Often located above the garage, our storage areas are used only as storage and are usually accessible from the garage via a retractable staircase.
Do you like this plan but want it to be modified to suit your needs?
To add a garage, another bedroom, finish the basement or any other modification, click here and let us know about your desired changes and to get your free quote for the modification of your plan.
Conditions of use
Important copyright notice! Please take note of these copyright conditions before printing:
By printing this house plan, cottage or garage or the floorplan(s), you confirm being informed that every house plan on this website is the exclusive property of Drummond House
Plans and is protected by Canadian copyright law. You are aware that these prints cannot be used to build or even obtain a building permit. The graphic representations of these
models are offered by Drummond House Plans for the sole purpose of allowing you to notate modifications of a model and then take it to one of the Drummond House Plans Canadian dealers for
modification of the plan.
The purchase of a house plan, cottage or garage from Drummond House Plans is mandatory if you wish to build any of our models. The plan purchase allows you to build a single unit; you cannot resell or give your plan to anyone once the house, cottage or garage has been built. If you wish to build the same house, cottage or garage more than once, you need to obtain the licence to this effect. Please contact us for more details.
All plans from Drummond House Plans can only be modified by a licensed Drummond House Plan Canadian dealer. If any other business or individual with no affiliation to Drummond House Plans modifies a Drummond House Plan on your behalf, please ensure this business or individual has a licence to modify this specific plan or you will be subject to prosecution on the same level as the business or individual who modified or reproduced the plan.
For more details, do not hesitate to contact u by e-mail or by phone at 1-800-567-1413.
I agree to respect the conditions above to not reproduce, modify or build a model from Drummond House Plans without previously purchasing a complete house plan.



















