There are no shipping fees if you buy one of our 2 plan packages "PDF file format" or "5 sets of blueprints + PDF". Shipping charges may apply if you buy additional sets of blueprints.
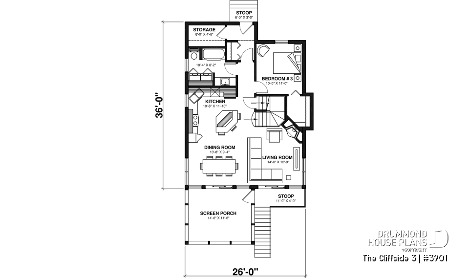
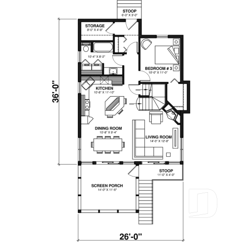
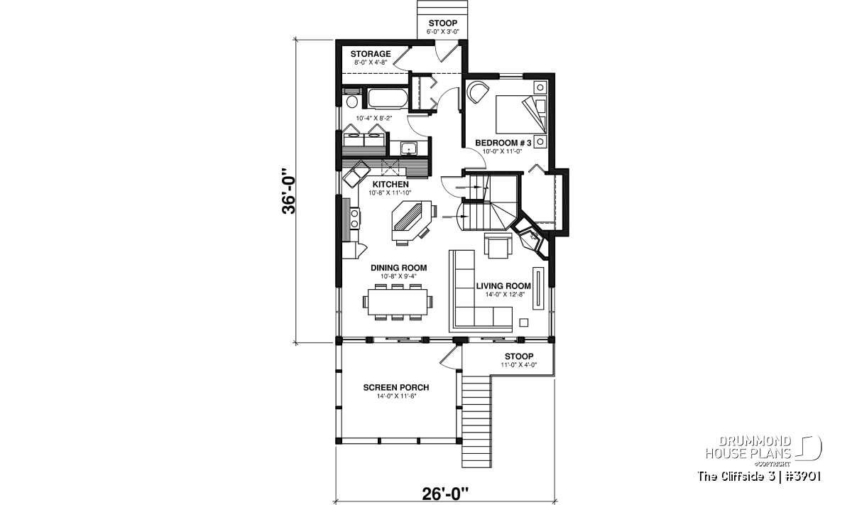
House plan The Cliffside 3 (3901)
Cottage house plan with screened-in porch, 3 bedrooms, panoramic view, open floor plan, fireplace
Other useful information on this plan
For a judicious choice of a four season vacation home with 3 beds and 2 baths
Are you looking for a four season vacation home but hesitate between several models in the Drummond Designs collection? Well now, let’s look at this one more closely together in order to appreciate the different assets.
First, outside at the rear of the house, we notice that beautiful covered terrace enveloped in screening, for outside dining or to simply take pleasure in relaxing, sheltered from the rain and from the famous mosquitoes.
Entering by the front of the house, we are agreeably surprised by a storage area, quite adequate in this type of house, and by the presence of a bedroom and full bathroom on the main level. Next, we note an entirely open activities area, characterized by an L-shaped kitchen with central island lunch counter, an abundantly windowed dining room with access to the screened terrace, a living room with just as many windows and adorned with a corner fireplace as well as access to the exterior gallery which for its part is endowed with a staircase allowing access to the yard.
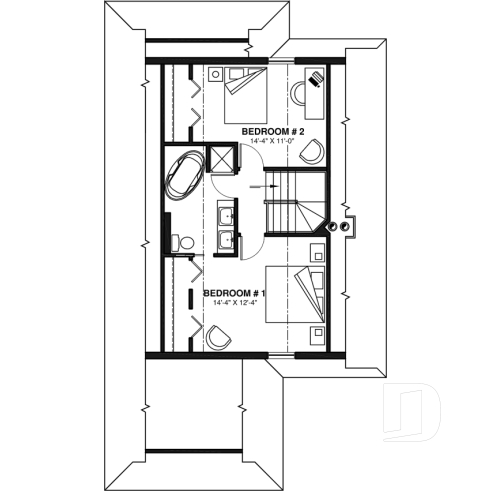
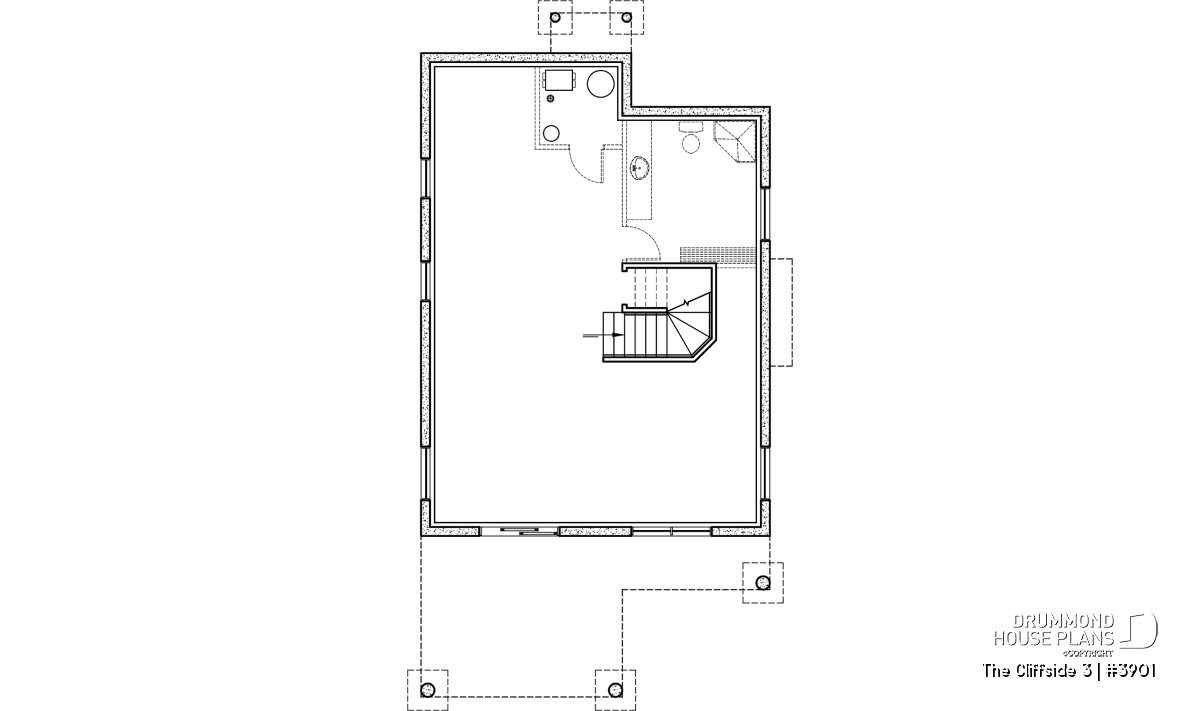
Finally, we are pampered on the upper level by the presence of two large bedrooms, each having excellent storage, and by a totally comfortable bathroom to conclude that this four season vacation home is a judicious choice.
Distinctive elements
1st level with bedroom and open activity area. Fireplace in family room. Two remarkable bedrooms on 2nd level, sharing a bathroom with separate shower. Rear covered screened terrace.
Plan feature(s)
Screened porch, Fireplace, Gound floor laundry room, Open floor layout, Island, Walk-in master bed., Panoramic view, Mud room, Separate bath and shower, Sloped ceiling
Plan architectural style(s)
. Country, . Vacation and waterfront, . A-Frame, . Ski chalets, . Rustic, . Transitional, . Mountain, . Craftsman / Northwest, . Cottage, chalet, cabin
Similar plans
Previously Viewed Plans
Thank you for your comment! It must be approved before being put online, please allow a period of 24 hours.
Error with google reCaptcha! Try again
Here is a brief description of our different plan packages. Please select the plan package that suits your needs. You can change the package at the next step, if necessary.
PDF VERSION OF PLAN:
Complete digital version of plan (pdf format) sent by email (original plan format 18" x 24'' or 24" x 36'')
5 copies of plan + PDF:
Includes: 5 copies of plan, plan in PDF format (reduced size version), materials list.
Foundation type
Additional foundation types are available, a fee may apply. Please indicate your choice on the online order form, or to our customer service representative, when placing your house plan order.
If your desired foundation type is not available, please contact our customer service to receive your free plan modification quote.
Explanation of bonus space types
UNFINISHED BONUS ROOM
The bonus rooms are often planned above the garage and are accessible from the house. They are designed to be converted as an office, a laundry area, a bathroom, a library corner or even an additional bedroom for which homeowners must make sure to have a window that complies with current codes & standards.
STORAGE AREA
Often located above the garage, our storage areas are used only as storage and are usually accessible from the garage via a retractable staircase.
Do you like this plan but want it to be modified to suit your needs?
To add a garage, another bedroom, finish the basement or any other modification, click here and let us know about your desired changes and to get your free quote for the modification of your plan.
Conditions of use
Important copyright notice! Please take note of these copyright conditions before printing:
By printing this house plan, cottage or garage or the floorplan(s), you confirm being informed that every house plan on this website is the exclusive property of Drummond House
Plans and is protected by Canadian copyright law. You are aware that these prints cannot be used to build or even obtain a building permit. The graphic representations of these
models are offered by Drummond House Plans for the sole purpose of allowing you to notate modifications of a model and then take it to one of the Drummond House Plans Canadian dealers for
modification of the plan.
The purchase of a house plan, cottage or garage from Drummond House Plans is mandatory if you wish to build any of our models. The plan purchase allows you to build a single unit; you cannot resell or give your plan to anyone once the house, cottage or garage has been built. If you wish to build the same house, cottage or garage more than once, you need to obtain the licence to this effect. Please contact us for more details.
All plans from Drummond House Plans can only be modified by a licensed Drummond House Plan Canadian dealer. If any other business or individual with no affiliation to Drummond House Plans modifies a Drummond House Plan on your behalf, please ensure this business or individual has a licence to modify this specific plan or you will be subject to prosecution on the same level as the business or individual who modified or reproduced the plan.
For more details, do not hesitate to contact u by e-mail or by phone at 1-800-567-1413.
I agree to respect the conditions above to not reproduce, modify or build a model from Drummond House Plans without previously purchasing a complete house plan.












