There are no shipping fees if you buy one of our 2 plan packages "PDF file format" or "5 sets of blueprints + PDF". Shipping charges may apply if you buy additional sets of blueprints.
House plan The Sun Stream 2 (6922)
Rustic cottage plan, scandinavian style home, with open loft on mezzanine and 4 bedrooms
Other useful information on this plan
Rustic cottage plan, scandinavian style home, with open loft on mezzanine and 4 bedrooms
Originated from popular Drummond House cottage plans # 2908, # 2942 and # 2915 (which you can see on drummondhouseplans.com) this simple and rustic chalet house plan # 6922 is an even more comfortable version with and additional 225 square feet spread over the three floors, a desirable mezzanine, a lovable terrace and an increasing popular trend: a screened in porch.
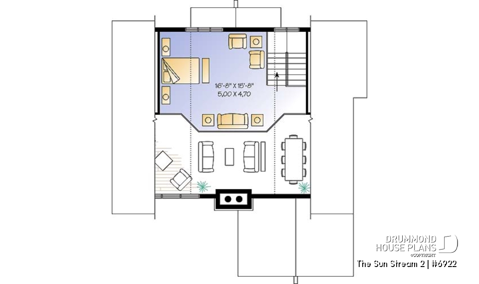
Inside, there are beautiful spaces including a large living room with central fireplace opening onto the eat-in kitchen, a beautiful master bedroom with French doors overlooking the panorama. A guest bedroom in the mezzanine area will make guests want to come back! Not to mention the basement with two appreciable bedrooms, a shower / laundry room, a storage room and a beautiful living room with wood stove.
Outside, the use of cedar shingles and stone give this chalet a distinct look, emphasized more by the columns with elongated braces supporting the superb terrace.
Distinctive elements
Cathedral ceiling over family/dining/kitchen areas, four bedrooms in all, large terrace and remarkable screened-in porch, dual sinks in the main level bathroom, finished walk-out basement, wrap-around balcony on two sides, multiple fireplaces.
Plan feature(s)
Screened porch, Fireplace, Cathedral ceiling, Mezzanine, Loft, Mud room, Separate bath and shower, Master suite on main, Open floor layout
Plan architectural style(s)
. Cottage, chalet, cabin, . Vacation and waterfront, . Craftsman / Northwest, . Ski chalets, . A-Frame, . Country, . Rustic, . Scandinavian, . Traditional, . Mountain
Similar plans
Previously Viewed Plans
Questions and comments
March 06
amanda shaw
wow i really love this floor plan, i am wondering if the foyer and closet could be a mud room if both were combined or could the stairs be moved over and make the master bath a little smaller so it could be a mudroom area? also, is there a wider version of this plan? thanks
March 06
Customer service
Good day Ms. Shaw and thank you for your interest in this plan.
Although there is no wider version of this plan at the present time, we would be happy to send you a free estimate for all of the changes that you require to this model within two business days after receipt of this on line form
Please let me know if you have any other questions or comments.
Regards
Deb
March 11
Charles Crutchfield
Plan W6922 Sunstream 2: Does this plan have an optional attached garage plan? Does this plan have a sister plan with more square footage. Can you provide locations where this plan or variations of this plan have been built?
March 12
Customer service
Good day Mr. Crutchfield and thank you for taking the time to write.
Although there is no optional attached garage plan available for this plan, we would be happy to give you a free quote for the garage that you need upon receipt of your on line request, the link for which I have attached below.
http://www.drummondhouseplans.com/plan-modification-services/online-estimate-form/plan/1002080.html
Unfortunately, this is the largest of the similar designs that are part of the collection but we would be happy to provide an estimate for an enlarged version and you can request this at the same time as the garage addition.
In respect of the confidentiality of our clients, you will understand that I am not able to give out their personal information with regards to addresses and/or phone numbers.
Please let me know if I can further assist you.
Regards
Deborah
Thank you for your comment! It must be approved before being put online, please allow a period of 24 hours.
Error with google reCaptcha! Try again
Here is a brief description of our different plan packages. Please select the plan package that suits your needs. You can change the package at the next step, if necessary.
PDF VERSION OF PLAN:
Complete digital version of plan (pdf format) sent by email (original plan format 18" x 24'' or 24" x 36'')
5 copies of plan + PDF:
Includes: 5 copies of plan, plan in PDF format (reduced size version), materials list.
Foundation type
Additional foundation types are available, a fee may apply. Please indicate your choice on the online order form, or to our customer service representative, when placing your house plan order.
If your desired foundation type is not available, please contact our customer service to receive your free plan modification quote.
Explanation of bonus space types
UNFINISHED BONUS ROOM
The bonus rooms are often planned above the garage and are accessible from the house. They are designed to be converted as an office, a laundry area, a bathroom, a library corner or even an additional bedroom for which homeowners must make sure to have a window that complies with current codes & standards.
STORAGE AREA
Often located above the garage, our storage areas are used only as storage and are usually accessible from the garage via a retractable staircase.
Do you like this plan but want it to be modified to suit your needs?
To add a garage, another bedroom, finish the basement or any other modification, click here and let us know about your desired changes and to get your free quote for the modification of your plan.
Conditions of use
Important copyright notice! Please take note of these copyright conditions before printing:
By printing this house plan, cottage or garage or the floorplan(s), you confirm being informed that every house plan on this website is the exclusive property of Drummond House
Plans and is protected by Canadian copyright law. You are aware that these prints cannot be used to build or even obtain a building permit. The graphic representations of these
models are offered by Drummond House Plans for the sole purpose of allowing you to notate modifications of a model and then take it to one of the Drummond House Plans Canadian dealers for
modification of the plan.
The purchase of a house plan, cottage or garage from Drummond House Plans is mandatory if you wish to build any of our models. The plan purchase allows you to build a single unit; you cannot resell or give your plan to anyone once the house, cottage or garage has been built. If you wish to build the same house, cottage or garage more than once, you need to obtain the licence to this effect. Please contact us for more details.
All plans from Drummond House Plans can only be modified by a licensed Drummond House Plan Canadian dealer. If any other business or individual with no affiliation to Drummond House Plans modifies a Drummond House Plan on your behalf, please ensure this business or individual has a licence to modify this specific plan or you will be subject to prosecution on the same level as the business or individual who modified or reproduced the plan.
For more details, do not hesitate to contact u by e-mail or by phone at 1-800-567-1413.
I agree to respect the conditions above to not reproduce, modify or build a model from Drummond House Plans without previously purchasing a complete house plan.












March 06
amanda shaw
wow i really love this floor plan, i am wondering if the foyer and closet could be a mud room if both were combined or could the stairs be moved over and make the master bath a little smaller so it could be a mudroom area? also, is there a wider version of this plan? thanks