There are no shipping fees if you buy one of our 2 plan packages "PDF file format" or "5 sets of blueprints + PDF". Shipping charges may apply if you buy additional sets of blueprints.
House plan Maple Bay 2 (3916)
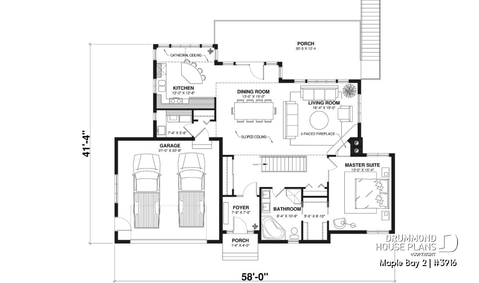
One-storey ranch style house plan with walkout basement, 2-car garage, 2 fireplaces, master on main floor
Other useful information on this plan
Modern Single-Story House Plan with Walkout Basement – Maple Bay 2 (#3916)
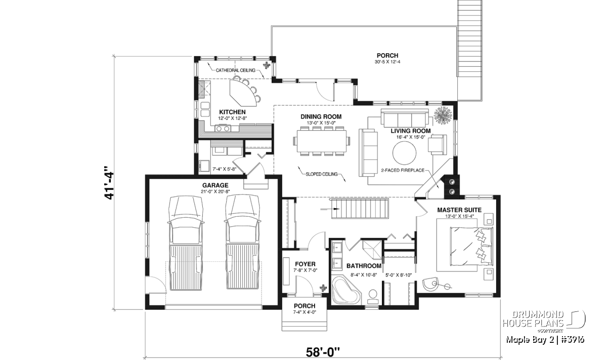
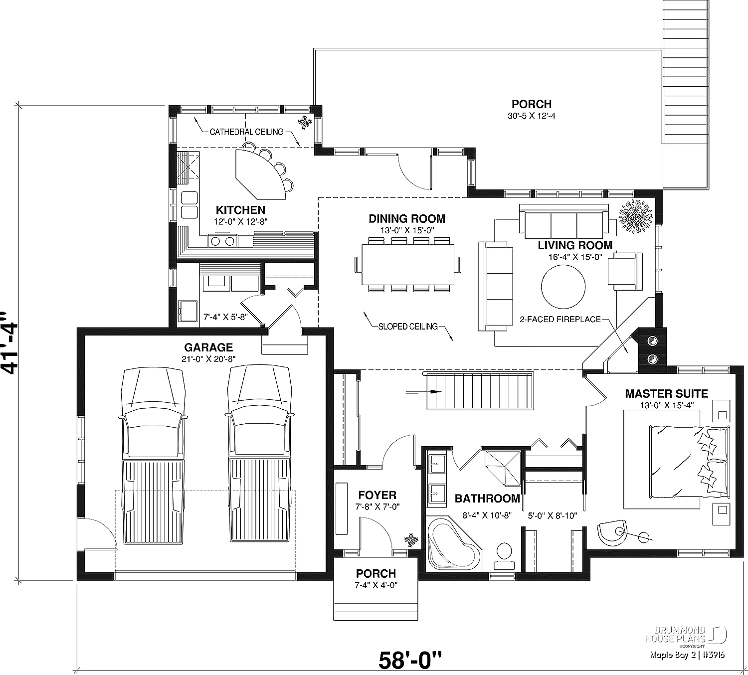
The Maple Bay 2 house plan (#3916) is a thoughtfully designed single-story home with a finished walkout basement, created to offer comfort, light and flexibility for modern family living. Ideal for sloped lots or scenic properties, this residential design takes full advantage of its garden-level lower floor while maintaining an elegant and functional main level.
From the moment you enter, the home feels welcoming and practical. A fully enclosed front entry provides a comfortable transition into the home, complete with space for a built-in bench and a generous coat closet—a feature especially appreciated in regions with seasonal weather. The main floor immediately opens onto a bright, open-concept living area where the kitchen, dining room and living room flow seamlessly together.
Natural light is a defining feature of the Maple Bay 2. Large windows flood the interior with daylight, while 9-foot ceilings throughout the main level enhance the sense of openness. In the living and dining areas, a striking 13'4" cathedral ceiling creates an impressive volume, adding architectural character and a feeling of spaciousness. The living room includes a fireplace and benefits from both rear and side windows, reinforcing the connection to the outdoor environment.
The kitchen is designed for gathering, featuring a central island with seating for up to four people and direct access to the dining area—perfect for everyday meals or entertaining. Nearby, a dedicated laundry room on the main floor adds everyday convenience without compromising the home’s layout.
The primary bedroom, located on the main level, offers a private retreat with its own fireplace, a spacious walk-in closet and a well-appointed ensuite bathroom. The ensuite includes a double vanity, along with a separate bathtub and shower, creating a comfortable and relaxing space.
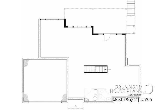
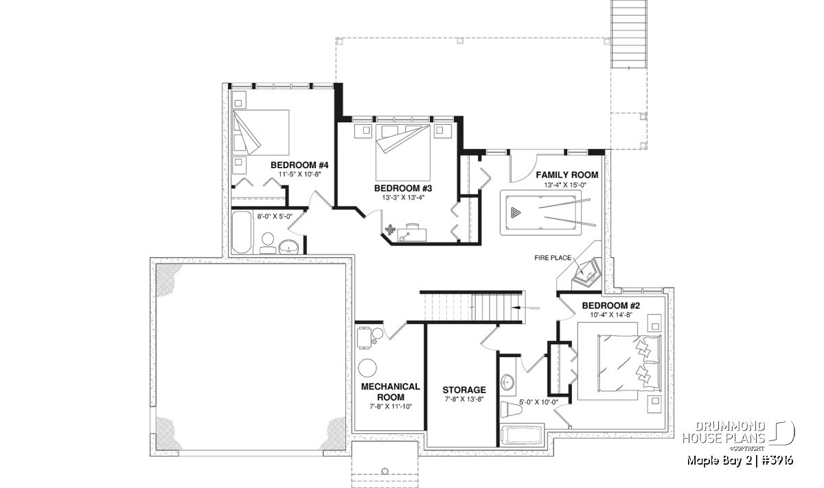
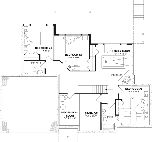
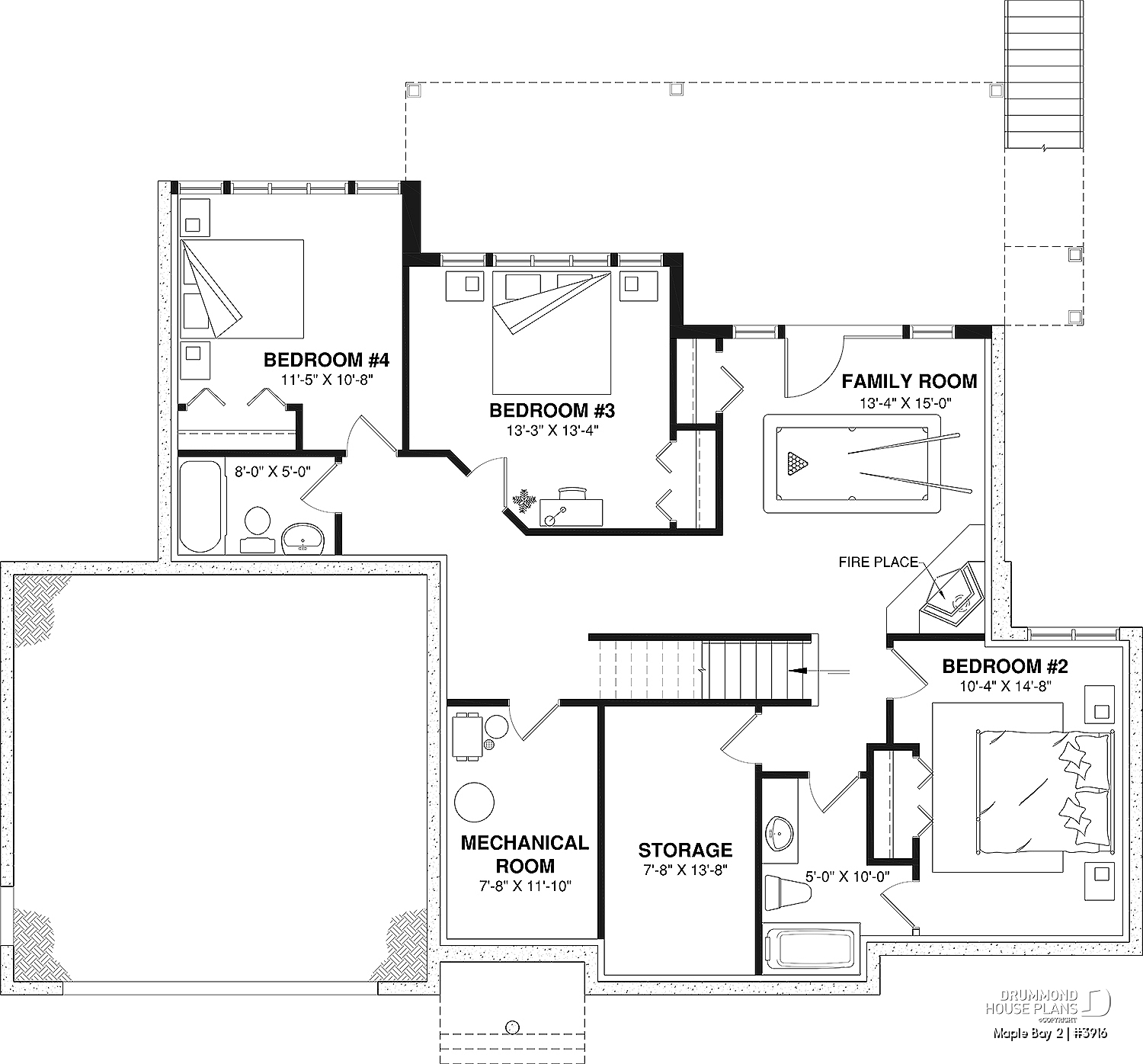
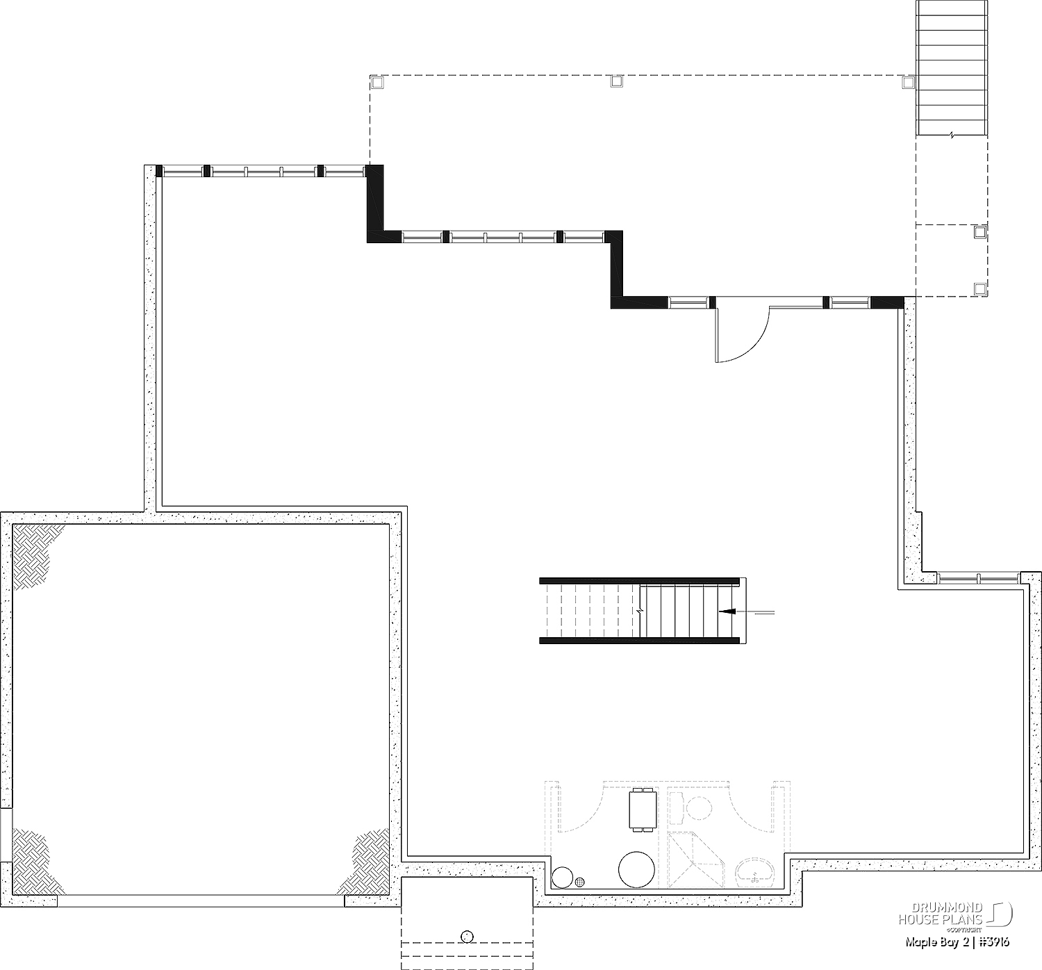
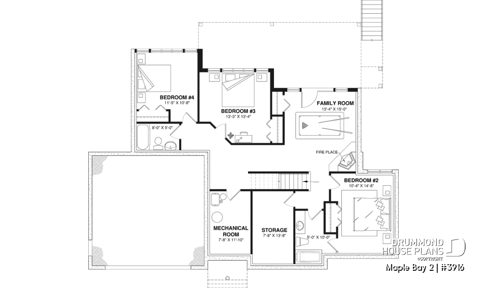
The walkout basement significantly expands the home’s living potential. Designed with families in mind, it includes a guest suite, two additional bedrooms, two full bathrooms, a large family or game room, ample storage and a mechanical room.
With its smart layout, abundant light and walkout basement design, the Maple Bay 2 house plan (#3916) offers a balanced and versatile home well suited to a wide range of lifestyles across the United States.
Distinctive elements
Single-story house plan with a finished walkout basement (garden level).
Exceptional natural light throughout the kitchen, dining area and living room.
9-foot ceilings on the main floor, with a 13'4" cathedral ceiling in the living and dining areas.
Enclosed front entry with space for a built-in bench.
Large coat closet conveniently located near the main entrance.
Dedicated laundry room on the main level for everyday convenience.
Main-floor primary bedroom featuring a fireplace, walk-in closet and private bathroom.
Primary bathroom with double vanity, separate bathtub and shower.
Open-concept kitchen with island seating for up to four, connected to the dining area.
Bright living room with fireplace, enhanced by rear and side windows.
Walkout basement designed for family living, offering generous space.
Lower level includes a guest suite, two secondary bedrooms and two full bathrooms.
Large family room or game room, storage areas and mechanical room located on the lower level.
Plan feature(s)
Fireplace, Guest suite, Master suite on main, Island, Gound floor laundry room, Walk-in master bed., Entrance hall, Ceiling over 8', Separate bath and shower, Cathedral ceiling, Sloped ceiling
Plan architectural style(s)
. Cottage, chalet, cabin, . Country, . Ranch, . Vacation and waterfront, . American, . Craftsman / Northwest, . Cape Cod, . Traditional, . A-Frame, . Rustic, . Modern rustic
Similar plans
Previously Viewed Plans
Questions and comments
March 09
Linda Tracey
What is the difference between this plan and 6916?
March 09
Customer service
Good day Ms. Tracey and thank you for your interest in this plan.
The only difference between the two plans is in the stair configuration as plan 6916 conforms to the US IRC building code requirements so if you are planning to build in the United States then plan 6916 if your best choice but if you are planning to build elsewhere the choice is yours.
Please let me know if you have any other questions or comments
Regards
Deb
Thank you for your comment! It must be approved before being put online, please allow a period of 24 hours.
Error with google reCaptcha! Try again
Here is a brief description of our different plan packages. Please select the plan package that suits your needs. You can change the package at the next step, if necessary.
PDF VERSION OF PLAN:
Complete digital version of plan (pdf format) sent by email (original plan format 18" x 24'' or 24" x 36'')
5 copies of plan + PDF:
Includes: 5 copies of plan, plan in PDF format (reduced size version), materials list.
Foundation type
Additional foundation types are available, a fee may apply. Please indicate your choice on the online order form, or to our customer service representative, when placing your house plan order.
If your desired foundation type is not available, please contact our customer service to receive your free plan modification quote.
Explanation of bonus space types
UNFINISHED BONUS ROOM
The bonus rooms are often planned above the garage and are accessible from the house. They are designed to be converted as an office, a laundry area, a bathroom, a library corner or even an additional bedroom for which homeowners must make sure to have a window that complies with current codes & standards.
STORAGE AREA
Often located above the garage, our storage areas are used only as storage and are usually accessible from the garage via a retractable staircase.
Do you like this plan but want it to be modified to suit your needs?
To add a garage, another bedroom, finish the basement or any other modification, click here and let us know about your desired changes and to get your free quote for the modification of your plan.
Conditions of use
Important copyright notice! Please take note of these copyright conditions before printing:
By printing this house plan, cottage or garage or the floorplan(s), you confirm being informed that every house plan on this website is the exclusive property of Drummond House
Plans and is protected by Canadian copyright law. You are aware that these prints cannot be used to build or even obtain a building permit. The graphic representations of these
models are offered by Drummond House Plans for the sole purpose of allowing you to notate modifications of a model and then take it to one of the Drummond House Plans Canadian dealers for
modification of the plan.
The purchase of a house plan, cottage or garage from Drummond House Plans is mandatory if you wish to build any of our models. The plan purchase allows you to build a single unit; you cannot resell or give your plan to anyone once the house, cottage or garage has been built. If you wish to build the same house, cottage or garage more than once, you need to obtain the licence to this effect. Please contact us for more details.
All plans from Drummond House Plans can only be modified by a licensed Drummond House Plan Canadian dealer. If any other business or individual with no affiliation to Drummond House Plans modifies a Drummond House Plan on your behalf, please ensure this business or individual has a licence to modify this specific plan or you will be subject to prosecution on the same level as the business or individual who modified or reproduced the plan.
For more details, do not hesitate to contact u by e-mail or by phone at 1-800-567-1413.
I agree to respect the conditions above to not reproduce, modify or build a model from Drummond House Plans without previously purchasing a complete house plan.
















March 09
Linda Tracey
What is the difference between this plan and 6916?