There are no shipping fees if you buy one of our 2 plan packages "PDF file format" or "5 sets of blueprints + PDF". Shipping charges may apply if you buy additional sets of blueprints.
House plan Great Escape 3 (1904-V2)
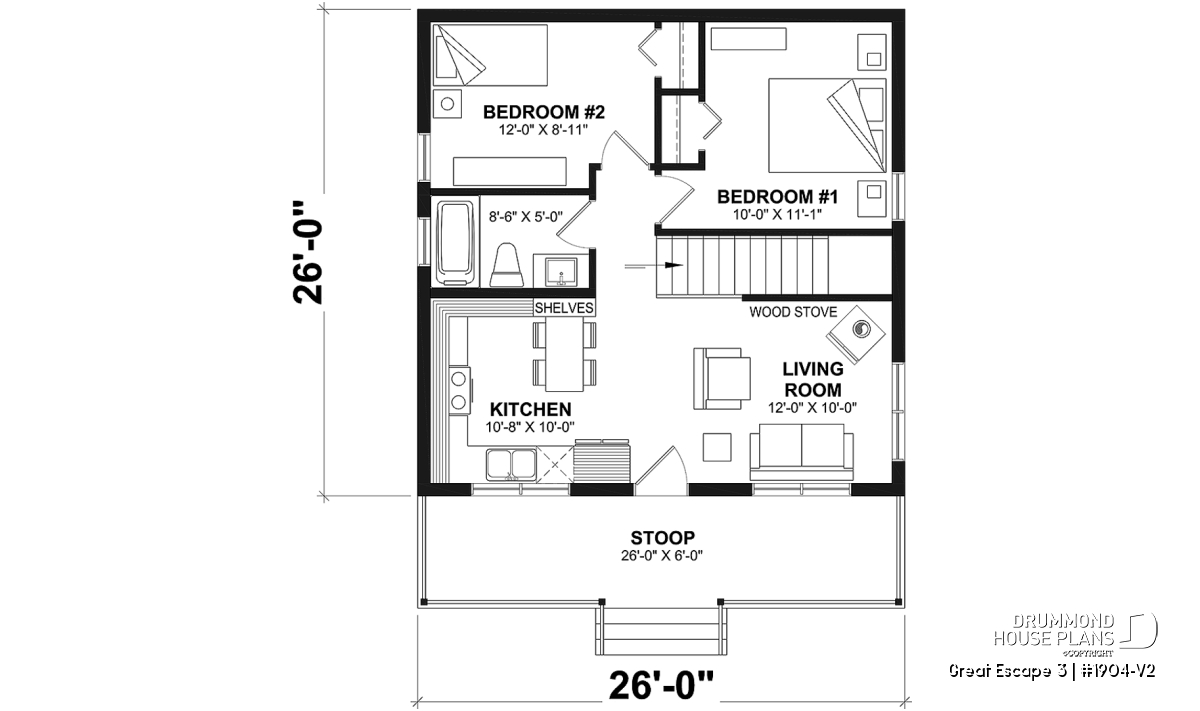
Modern 4-Season Chalet Plan – 2 to 4 Bedrooms, Flexible Basement and Wood-Burning Stove
Other useful information on this plan
Modern Rustic 4-Season Small Chalet Plan – 2 to 4 Bedrooms, Flexible Basement and Wood Stove in the Living Room!
This affordable, cozy modern rustic 4-season chalet is designed to offer all the comfort of a primary residence in a compact, cost-effective format. Perfect for a family, a couple, or as a vacation home, it blends contemporary style with rustic charm to create a unique, bright, and easy-to-maintain living space.
From the outside, a large covered front balcony sets the tone with its warm look and welcoming feel. Ideal for greeting guests or simply enjoying the view, it’s the perfect retreat in any season. Inside, the 12-foot sloped ceiling in the kitchen and living area adds volume and light, enhancing the sense of space. The open-concept layout connecting the kitchen and living room makes circulation easy and shared moments even more enjoyable.
A STÛV Wood Stove for an Unmatched Ambiance!
At the heart of the living room stands a STÛV wood stove, proposed model s16-H 58, known for its performance and elegant design. This stove becomes the centerpiece of the space, bringing warmth and Scandinavian ambiance to your winter evenings. It transforms every moment in the living area into a cozy retreat while blending seamlessly with the chalet’s modern, streamlined style.
The chalet includes two well-sized main-floor bedrooms with built-in closets, ideal for residents or guests. A spacious bathroom with a practical tub-shower combo completes the main level. A laundry area is planned in the basement, freeing up space upstairs and optimizing daily organization.
The unfinished basement included in the plan offers exceptional potential to adapt the chalet to your needs: family room, additional bedrooms, or a leisure and relaxation space.
*Finished Basement (optional $):
For even more possibilities, an optional finished basement can include a comfortable bedroom for guests or teens, a modern, functional shower room, a convenient washer-dryer nook, a spacious family room (or fourth bedroom) for hobbies or a home theater, a home office area for remote work or homework, and a dedicated mechanical room to optimize storage and maintenance.
This modern 4-season chalet plan combines style, efficiency, and friendliness. An ideal choice for enjoying a warm, bright, and lasting living environment on a budget.
---
---
*If you wish to purchase the finished basement plan, please select this option in the shopping cart, in the "Selection of foundation type" section. If you do not select this option, you will receive the unfinished full basement option, at no extra charge.
Distinctive elements
Cozy and Affordable Modern 4-Season Chalet.
Large covered front balcony offering a rustic and welcoming atmosphere.
Sloped ceiling up to 12 feet high in the kitchen and living area.
Open-concept layout connecting the kitchen and living room for more space and natural light.
Proposed STÛV wood stove in the living room: model s16-H 58.
Two generously sized bedrooms with built-in closets.
Spacious bathroom with practical tub-shower combo.
Laundry area planned in the basement.
Unfinished basement ready to be customized to your needs. Other options available, including the one below.
---
Finished Basement (optional $):
Comfortable bedroom ideal for guests or teens.
Modern, functional shower room.
Convenient washer-dryer nook to simplify laundry.
Spacious family room (or fourth bedroom) for hobbies or a home theater.
Perfect home office area for remote work or homework.
Dedicated mechanical room to optimize storage and maintenance.
---
*If you wish to purchase the finished basement plan, please select this option in the shopping cart, in the "Selection of foundation type" section. If you do not select this option, you will receive the unfinished full basement option, at no extra charge.
Plan feature(s)
Sloped ceiling, Open floor layout, Wood stove, Ceiling over 8', Planning desk
Plan architectural style(s)
. Cottage, chalet, cabin, . Rustic, . Ski chalets, . Vacation and waterfront, . Cabin plans, . Modern / Design, . Contemporary, . Modern rustic
Similar plans
Previously Viewed Plans
Questions and comments
October 29
Monica Doucet
Hello
Could the square footage be increased to min 775sft?
Thank you
July 25
Kevin
Can I get this plan without the stairway ?
August 06
Marie
Good morning Kevin!
Most changes are possible! So yes… no problem!
Please just fill up this form and we will provide you with your FREE plan modification estimate:
drummondhouseplans.com/plan-modification-request-form/1003211
Please don’t hesitate to contact us if you have more questions or wish to buy this beautiful cabin plan!
Customer service
DrummondHousePlans.com
[email protected]
1-800-567-5267 ext. 109 (Monday-Friday 8am-4pm EST)
October 05
Patrick Mcneil
This is a very handsome looking Cottage and is just the type I would love to build and own. Thanks.
October 05
ddi123
Thank you Patrick! It really is a nice plan!
Thank you for your comment! It must be approved before being put online, please allow a period of 24 hours.
Error with google reCaptcha! Try again
Here is a brief description of our different plan packages. Please select the plan package that suits your needs. You can change the package at the next step, if necessary.
PDF VERSION OF PLAN:
Complete digital version of plan (pdf format) sent by email (original plan format 18" x 24'' or 24" x 36'')
5 copies of plan + PDF:
Includes: 5 copies of plan, plan in PDF format (reduced size version), materials list.
Foundation type
Additional foundation types are available, a fee may apply. Please indicate your choice on the online order form, or to our customer service representative, when placing your house plan order.
If your desired foundation type is not available, please contact our customer service to receive your free plan modification quote.
Explanation of bonus space types
UNFINISHED BONUS ROOM
The bonus rooms are often planned above the garage and are accessible from the house. They are designed to be converted as an office, a laundry area, a bathroom, a library corner or even an additional bedroom for which homeowners must make sure to have a window that complies with current codes & standards.
STORAGE AREA
Often located above the garage, our storage areas are used only as storage and are usually accessible from the garage via a retractable staircase.
Do you like this plan but want it to be modified to suit your needs?
To add a garage, another bedroom, finish the basement or any other modification, click here and let us know about your desired changes and to get your free quote for the modification of your plan.
Conditions of use
Important copyright notice! Please take note of these copyright conditions before printing:
By printing this house plan, cottage or garage or the floorplan(s), you confirm being informed that every house plan on this website is the exclusive property of Drummond House
Plans and is protected by Canadian copyright law. You are aware that these prints cannot be used to build or even obtain a building permit. The graphic representations of these
models are offered by Drummond House Plans for the sole purpose of allowing you to notate modifications of a model and then take it to one of the Drummond House Plans Canadian dealers for
modification of the plan.
The purchase of a house plan, cottage or garage from Drummond House Plans is mandatory if you wish to build any of our models. The plan purchase allows you to build a single unit; you cannot resell or give your plan to anyone once the house, cottage or garage has been built. If you wish to build the same house, cottage or garage more than once, you need to obtain the licence to this effect. Please contact us for more details.
All plans from Drummond House Plans can only be modified by a licensed Drummond House Plan Canadian dealer. If any other business or individual with no affiliation to Drummond House Plans modifies a Drummond House Plan on your behalf, please ensure this business or individual has a licence to modify this specific plan or you will be subject to prosecution on the same level as the business or individual who modified or reproduced the plan.
For more details, do not hesitate to contact u by e-mail or by phone at 1-800-567-1413.
I agree to respect the conditions above to not reproduce, modify or build a model from Drummond House Plans without previously purchasing a complete house plan.

















October 29
Monica Doucet
Hello
Could the square footage be increased to min 775sft?
Thank you