There are no shipping fees if you buy one of our 2 plan packages "PDF file format" or "5 sets of blueprints + PDF". Shipping charges may apply if you buy additional sets of blueprints.
House plan Woodwinds (1901)
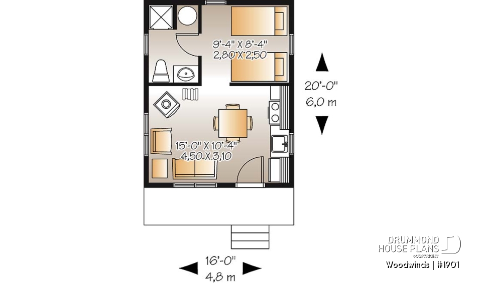
Small 1 bedroom cabin house plan, 1 shower room, options for 3 or 4-season included, wood stove
Other useful information on this plan
1 Bedroom low budget cabin plan with 3-season and 4-season options included to the plan
This simple woodland getaway meets the expectations of simplified construction and simplified living.
Maximizing interior space is important with compact getaways and this model, includes one bedroom and a shower room (optional in the 3-season house plan option) on the back and can accommodate up to six people if arranged creatively.
Hikers, fishermen, hunters and vacationers greatly appreciate an open activities area with sloping ceiling rafters and windows galore for provide a panoramic view. The forward porch provides the best seat out of the house.
In order to respect the building code and also meet the multiple needs of our customers, you will have two (2) versions of the cottage design included in your plan.
A first version will include an uninsulated and unheated version for seasonal use only (3 seasons). The walls are 2 '' x 4 '', the floor joists are 2 '' x 8 '' and the rafters are 2 '' x 8 '' for the roof.
The second version is an isolated and heated version for permanent occupation (4 seasons). For this one the walls are 2 '' x 6 '', the floor joists are 2 '' x 10 '' and the roof is designed with roof trusses.
** BCIN certification for Ontario residents only: as the 2x4 and 2x6 wall versions are included in the plan you will receive, the BCIN certification service is only offered on the 2x6 wall version. Please contact us for details, if needed.
Both versions are provided on screw piles to ensure stability. However we can design other types of foundation for this plan to better suit your needs if necessary. You need simply contact us for details.
Distinctive elements
Affordable 1 bedroom cabin plan.
3-season (not heated) and 4-season (heated) construction options included in the house plan.
Kitchen and family room open concept.
Can accomodate up to 6 people.
Ceiling sloping from 8 'to 12'.
Low budget construction
Plan feature(s)
Wood stove, Open floor layout, Cathedral ceiling
Plan architectural style(s)
. Cottage, chalet, cabin, . Country, . Cabin plans
Similar plans
Previously Viewed Plans
Questions and comments
February 24
Abby
What style is this cabin?
January 29
Greg
What is the average cost to build this small cabin? Please specify cabin in answer, because I don't want to mix your answers for the plans I am looking at.
January 29
Customer service
Good day and thank you for your interest in this plan.
Since this type of construction is usually a DIY project, we do not have construction estimates but the materials costs in Quebec, Canada (less taxes) are around $18,000. but can be different in your area.
Please let me know if you have any other questions or comments.
Regards
Deb
May 21
Greg
What would the average construction cost of this home. If you can't answer that, it's understandable. What is the material cost as well?
May 21
Customer service
Good day and thank you for taking the time to write.
We do not have a construction estimate but the ballpark estimate of materials cost for Quebec, Canada is around $17,000.
This figure could vary for your area and it would be best to get estimates from local contractors and/or materials suppliers.
Please let me know if you have any other questions or comments.
Regards
Deborah
Thank you for your comment! It must be approved before being put online, please allow a period of 24 hours.
Error with google reCaptcha! Try again
Here is a brief description of our different plan packages. Please select the plan package that suits your needs. You can change the package at the next step, if necessary.
PDF VERSION OF PLAN:
Complete digital version of plan (pdf format) sent by email (original plan format 18" x 24'' or 24" x 36'')
5 copies of plan + PDF:
Includes: 5 copies of plan, plan in PDF format (reduced size version), materials list.
Foundation type
Additional foundation types are available, a fee may apply. Please indicate your choice on the online order form, or to our customer service representative, when placing your house plan order.
If your desired foundation type is not available, please contact our customer service to receive your free plan modification quote.
Explanation of bonus space types
UNFINISHED BONUS ROOM
The bonus rooms are often planned above the garage and are accessible from the house. They are designed to be converted as an office, a laundry area, a bathroom, a library corner or even an additional bedroom for which homeowners must make sure to have a window that complies with current codes & standards.
STORAGE AREA
Often located above the garage, our storage areas are used only as storage and are usually accessible from the garage via a retractable staircase.
Do you like this plan but want it to be modified to suit your needs?
To add a garage, another bedroom, finish the basement or any other modification, click here and let us know about your desired changes and to get your free quote for the modification of your plan.
Conditions of use
Important copyright notice! Please take note of these copyright conditions before printing:
By printing this house plan, cottage or garage or the floorplan(s), you confirm being informed that every house plan on this website is the exclusive property of Drummond House
Plans and is protected by Canadian copyright law. You are aware that these prints cannot be used to build or even obtain a building permit. The graphic representations of these
models are offered by Drummond House Plans for the sole purpose of allowing you to notate modifications of a model and then take it to one of the Drummond House Plans Canadian dealers for
modification of the plan.
The purchase of a house plan, cottage or garage from Drummond House Plans is mandatory if you wish to build any of our models. The plan purchase allows you to build a single unit; you cannot resell or give your plan to anyone once the house, cottage or garage has been built. If you wish to build the same house, cottage or garage more than once, you need to obtain the licence to this effect. Please contact us for more details.
All plans from Drummond House Plans can only be modified by a licensed Drummond House Plan Canadian dealer. If any other business or individual with no affiliation to Drummond House Plans modifies a Drummond House Plan on your behalf, please ensure this business or individual has a licence to modify this specific plan or you will be subject to prosecution on the same level as the business or individual who modified or reproduced the plan.
For more details, do not hesitate to contact u by e-mail or by phone at 1-800-567-1413.
I agree to respect the conditions above to not reproduce, modify or build a model from Drummond House Plans without previously purchasing a complete house plan.









February 24
Abby
What style is this cabin?