There are no shipping fees if you buy one of our 2 plan packages "PDF file format" or "5 sets of blueprints + PDF". Shipping charges may apply if you buy additional sets of blueprints.
House plan Great Escape 2 (1904-V1)
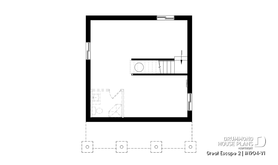
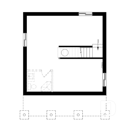
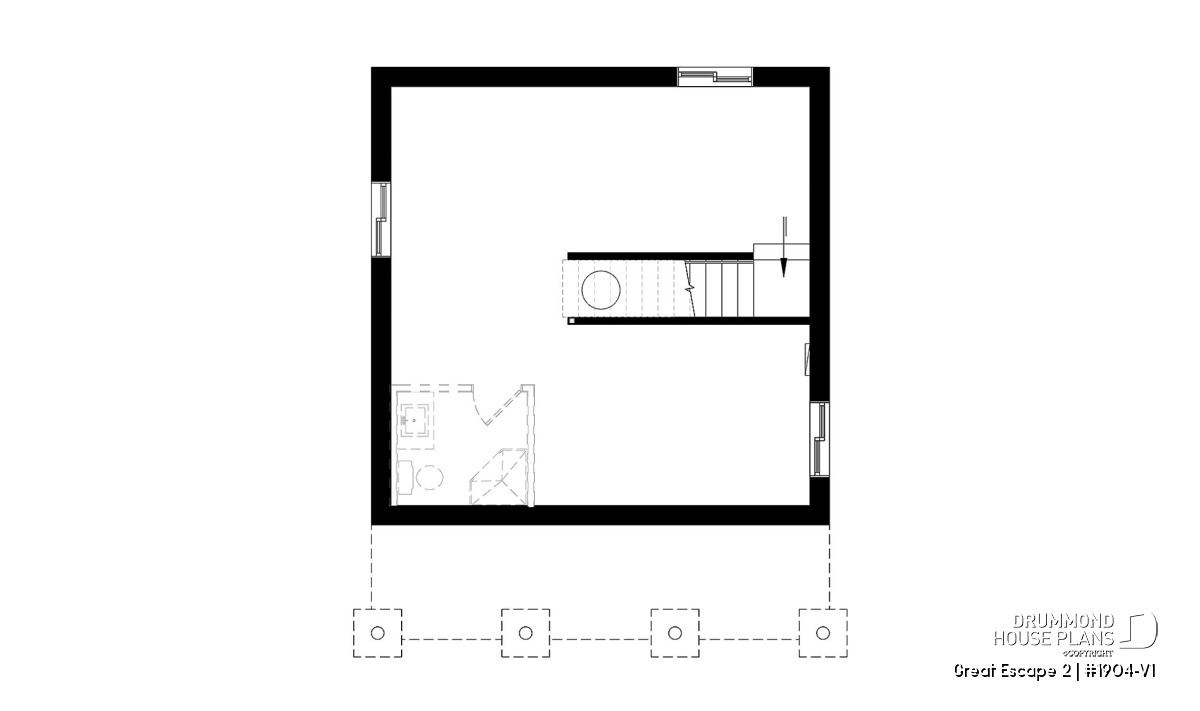
Getaway cottage with unfinished basement, one large bedroom with walk-in, wood burning stove, open floor plan
Other useful information on this plan
One Bedroom 4-Season Country Cabin with very low construction costs
At a mere 576 sq. ft., this getaway cottage is popular for its large one-bedroom with walk-in closet, large full bathroom that includes a laundry area, a cozy & open floor plan activity area and large covered porch.
Clerestory windows above the porch add the the brightness and illusion of more space and a woodstove keeps the whole area warm with very little fuel.
This tiny cottage is a favorite because of the ease of building the simple plan in remote areas. An unfinished basement could be used as extra storage or additional bedrooms.
Distinctive elements
Small cottage with low building costs.
Covered front balcony.
12' ceiling in kitchen and family room.
Large one bedroom with walk-in closet.
Good size bathroom with a shower and bath tub combo, and laundry area.
Unfinished basement.
Many foundation options available.
Plan feature(s)
Sloped ceiling, Walk-in master bed., Gound floor laundry room, Open floor layout
Plan architectural style(s)
. Cottage, chalet, cabin, . Country, . Rustic, . Vacation and waterfront, . Cabin plans
Similar plans
Previously Viewed Plans
Questions and comments
January 22
patty
I am wondering if this plan could be extended in height to include a loft area or full second story. I understand the sloped roof would mean the back side of the second floor would be quite low, but I'm wondering about a small, open room with two small beds in it, and then a bit of storage at the back, where the roof line is lower.
January 23
Marie
Hello Patty,
The foundation is a full basement. I think that it might be possible.
I suggest you fill up the modification form below, to get your free plan modification estimate. Make sure to include as much details as possible.
drummondhouseplans.com/plan-modification-request-form/1003210
Please let me know if you have more questions by calling us or sending an email.
DrummondHousePlans.com
[email protected]
1-800-567-5267 ext. 109
January 19
Danny MacDonald
can this be built on screw piles ?
January 21
Marie
Good afternoon,
the option is available, only through our plan modification service.
Please fill up this form to get your free estimate: drummondhouseplans.com/plan-modification-request-form/1003210
Please let us know if you have more questions before your place your house plan order!
Regards,
Marie
DrummondHousePlans.com
Phone 1-800-567-5267 ext. 109
Email : [email protected]
Thank you for your comment! It must be approved before being put online, please allow a period of 24 hours.
Error with google reCaptcha! Try again
Here is a brief description of our different plan packages. Please select the plan package that suits your needs. You can change the package at the next step, if necessary.
PDF VERSION OF PLAN:
Complete digital version of plan (pdf format) sent by email (original plan format 18" x 24'' or 24" x 36'')
5 copies of plan + PDF:
Includes: 5 copies of plan, plan in PDF format (reduced size version), materials list.
Foundation type
Additional foundation types are available, a fee may apply. Please indicate your choice on the online order form, or to our customer service representative, when placing your house plan order.
If your desired foundation type is not available, please contact our customer service to receive your free plan modification quote.
Explanation of bonus space types
UNFINISHED BONUS ROOM
The bonus rooms are often planned above the garage and are accessible from the house. They are designed to be converted as an office, a laundry area, a bathroom, a library corner or even an additional bedroom for which homeowners must make sure to have a window that complies with current codes & standards.
STORAGE AREA
Often located above the garage, our storage areas are used only as storage and are usually accessible from the garage via a retractable staircase.
Do you like this plan but want it to be modified to suit your needs?
To add a garage, another bedroom, finish the basement or any other modification, click here and let us know about your desired changes and to get your free quote for the modification of your plan.
Conditions of use
Important copyright notice! Please take note of these copyright conditions before printing:
By printing this house plan, cottage or garage or the floorplan(s), you confirm being informed that every house plan on this website is the exclusive property of Drummond House
Plans and is protected by Canadian copyright law. You are aware that these prints cannot be used to build or even obtain a building permit. The graphic representations of these
models are offered by Drummond House Plans for the sole purpose of allowing you to notate modifications of a model and then take it to one of the Drummond House Plans Canadian dealers for
modification of the plan.
The purchase of a house plan, cottage or garage from Drummond House Plans is mandatory if you wish to build any of our models. The plan purchase allows you to build a single unit; you cannot resell or give your plan to anyone once the house, cottage or garage has been built. If you wish to build the same house, cottage or garage more than once, you need to obtain the licence to this effect. Please contact us for more details.
All plans from Drummond House Plans can only be modified by a licensed Drummond House Plan Canadian dealer. If any other business or individual with no affiliation to Drummond House Plans modifies a Drummond House Plan on your behalf, please ensure this business or individual has a licence to modify this specific plan or you will be subject to prosecution on the same level as the business or individual who modified or reproduced the plan.
For more details, do not hesitate to contact u by e-mail or by phone at 1-800-567-1413.
I agree to respect the conditions above to not reproduce, modify or build a model from Drummond House Plans without previously purchasing a complete house plan.










January 22
patty
I am wondering if this plan could be extended in height to include a loft area or full second story. I understand the sloped roof would mean the back side of the second floor would be quite low, but I'm wondering about a small, open room with two small beds in it, and then a bit of storage at the back, where the roof line is lower.