There are no shipping fees if you buy one of our 2 plan packages "PDF file format" or "5 sets of blueprints + PDF". Shipping charges may apply if you buy additional sets of blueprints.
House plan Bonzai 2 (1909-V1)
Modern small cottage-style home plan with finished walkout basement, offering beautiful natural light
Other useful information on this plan
Modern Small Cottage Plan with Walk-Out Basement — 3 Bedrooms, 2 Covered Decks, a Fireplace and Wood Stove for the Coziest Atmosphere!
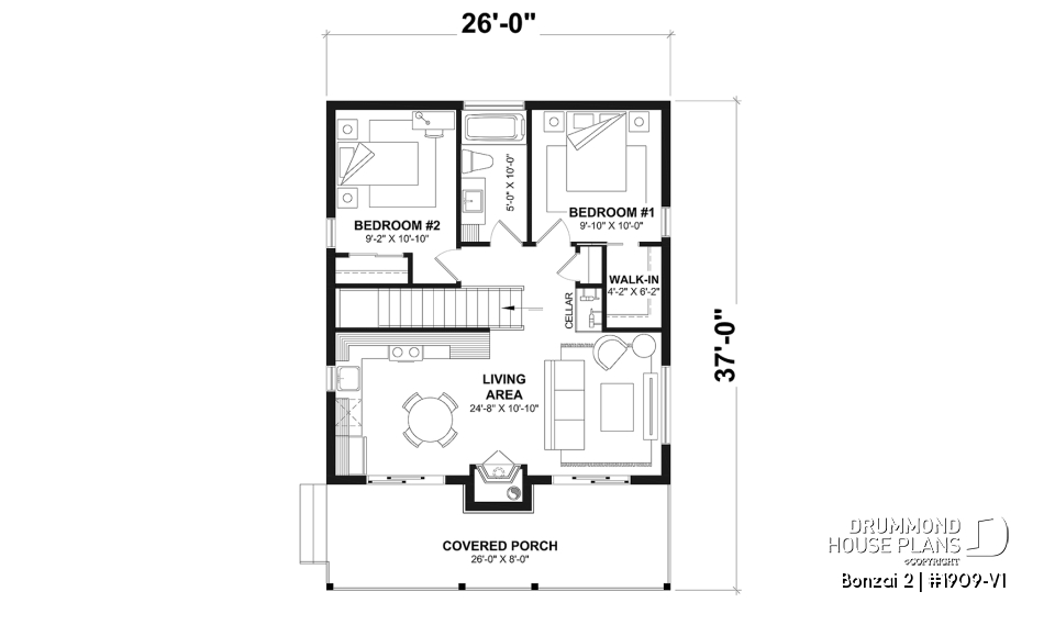
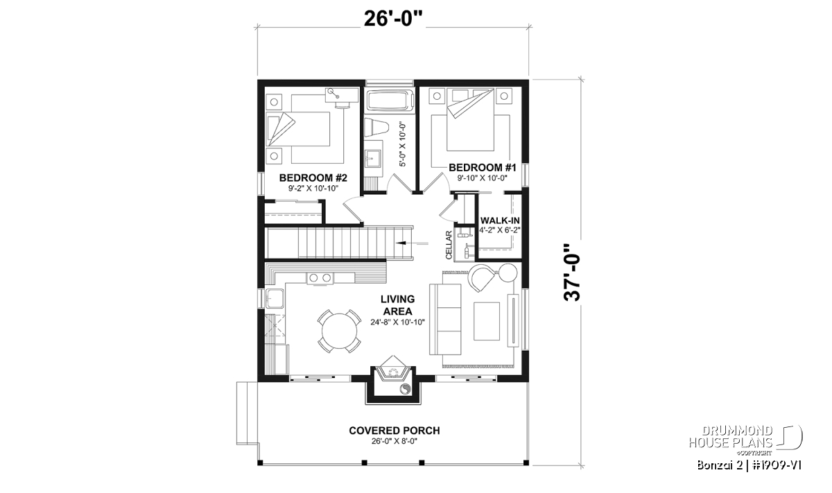
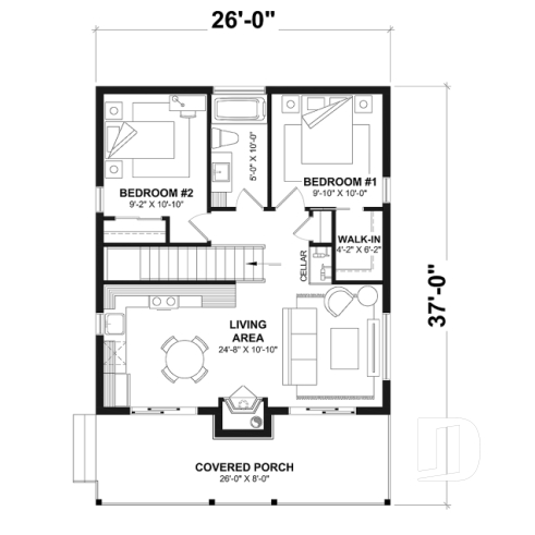
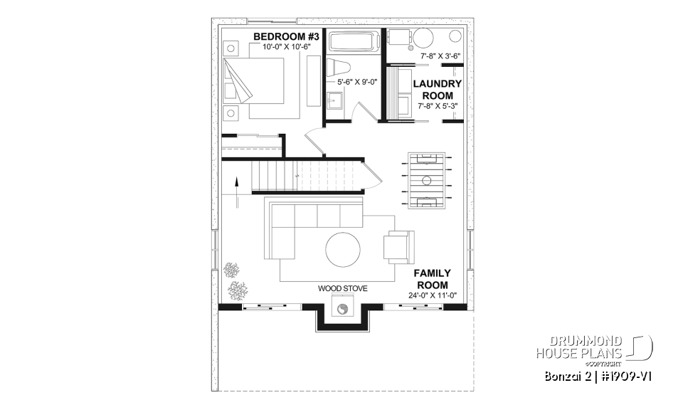
The BONZAI 2 tiny cottage (plan #1909-V1) is a slightly larger and enhanced version of the original BONZAI plan (plan #1909-BH). It offers 764 sq. ft. on the main floor and the same area in the walk-out basement, for a total of 1,528 sq. ft. of finished living space spread over two thoughtfully designed levels.
Designed with lakeside or mountain lots in mind, this plan makes the most of its rear-facing windows, which bring in an abundance of natural light and offer beautiful views. Two covered decks—one on each floor—let you enjoy the outdoors comfortably in any weather. The main living areas (kitchen, family room, and living room) are all located at the back and are filled with light thanks to the large patio doors.
This compact cottage shines with its versatile spaces, ready to adapt to your lifestyle. For example, the kitchen table can be swapped out for an island, and the main floor living room can become a dedicated dining room — perfect for those who love entertaining! A built-in wine cellar completes this space, ideal for foodies and festive gatherings.
Two bedrooms and a full bathroom are located on the main floor, while the third bedroom is in the lower level, adjacent to a second bathroom. Downstairs also includes a spacious family room, a play area, and a laundry room with storage.
And the best part? A fireplace centrally located between the kitchen and living room upstairs, and a wood stove in the basement family room, both adding a warm and inviting feel. The sloped ceilings on the main floor reach up to 11'10", giving the entire level an airy, open feel.
A smartly designed modern cottage, full of charm and comfort—ready for your lifestyle, year-round or weekend retreat!!
Distinctive elements
Modern Small Cottage Plan with Walk-Out Basement
Sloped ceilings on the main floor rise up to 11'10" at the front, creating a beautiful sense of openness and space.
Enjoy two stunning outdoor terraces — one on the main level and another on the walk-out basement level — perfect for connecting with nature at any time of day.
The layout includes 3 bedrooms and 2 full bathrooms, thoughtfully distributed for everyone’s comfort.
The design is flexible: the kitchen table can be swapped for a central island, and the adjacent living room can be converted into a dining area. In this configuration, the basement family room becomes the home’s main living space, allowing for an even more fluid layout.
The kitchen includes a built-in wine cellar, offering practical and elegant storage.
A wood-burning fireplace, positioned between the kitchen and living room, brings warmth and charm to the main floor.
A wood stove is also planned for the basement level, adding both comfort and rustic appeal to the lower space.
The primary bedroom features a walk-in closet, a much-loved addition for optimized storage.
Plan feature(s)
Sloped ceiling, Fireplace, Wine cellar, Wood stove, Ceiling over 8', Game room, Open floor layout, Walk-in master bed., Deck
Plan architectural style(s)
. Contemporary, Modern Craftsman, . Mountain, . Rustic, . Transitional, . Ski chalets, . Cabin plans, . Vacation and waterfront, Classic, . Modern rustic, . Cottage, chalet, cabin, . Modern / Design
Similar plans
Previously Viewed Plans
Thank you for your comment! It must be approved before being put online, please allow a period of 24 hours.
Error with google reCaptcha! Try again
Here is a brief description of our different plan packages. Please select the plan package that suits your needs. You can change the package at the next step, if necessary.
PDF VERSION OF PLAN:
Complete digital version of plan (pdf format) sent by email (original plan format 18" x 24'' or 24" x 36'')
5 copies of plan + PDF:
Includes: 5 copies of plan, plan in PDF format (reduced size version), materials list.
Foundation type
Additional foundation types are available, a fee may apply. Please indicate your choice on the online order form, or to our customer service representative, when placing your house plan order.
If your desired foundation type is not available, please contact our customer service to receive your free plan modification quote.
Explanation of bonus space types
UNFINISHED BONUS ROOM
The bonus rooms are often planned above the garage and are accessible from the house. They are designed to be converted as an office, a laundry area, a bathroom, a library corner or even an additional bedroom for which homeowners must make sure to have a window that complies with current codes & standards.
STORAGE AREA
Often located above the garage, our storage areas are used only as storage and are usually accessible from the garage via a retractable staircase.
Do you like this plan but want it to be modified to suit your needs?
To add a garage, another bedroom, finish the basement or any other modification, click here and let us know about your desired changes and to get your free quote for the modification of your plan.
Conditions of use
Important copyright notice! Please take note of these copyright conditions before printing:
By printing this house plan, cottage or garage or the floorplan(s), you confirm being informed that every house plan on this website is the exclusive property of Drummond House
Plans and is protected by Canadian copyright law. You are aware that these prints cannot be used to build or even obtain a building permit. The graphic representations of these
models are offered by Drummond House Plans for the sole purpose of allowing you to notate modifications of a model and then take it to one of the Drummond House Plans Canadian dealers for
modification of the plan.
The purchase of a house plan, cottage or garage from Drummond House Plans is mandatory if you wish to build any of our models. The plan purchase allows you to build a single unit; you cannot resell or give your plan to anyone once the house, cottage or garage has been built. If you wish to build the same house, cottage or garage more than once, you need to obtain the licence to this effect. Please contact us for more details.
All plans from Drummond House Plans can only be modified by a licensed Drummond House Plan Canadian dealer. If any other business or individual with no affiliation to Drummond House Plans modifies a Drummond House Plan on your behalf, please ensure this business or individual has a licence to modify this specific plan or you will be subject to prosecution on the same level as the business or individual who modified or reproduced the plan.
For more details, do not hesitate to contact u by e-mail or by phone at 1-800-567-1413.
I agree to respect the conditions above to not reproduce, modify or build a model from Drummond House Plans without previously purchasing a complete house plan.












