There are no shipping fees if you buy one of our 2 plan packages "PDF file format" or "5 sets of blueprints + PDF". Shipping charges may apply if you buy additional sets of blueprints.
House plan The Cliffside 4 (6901)
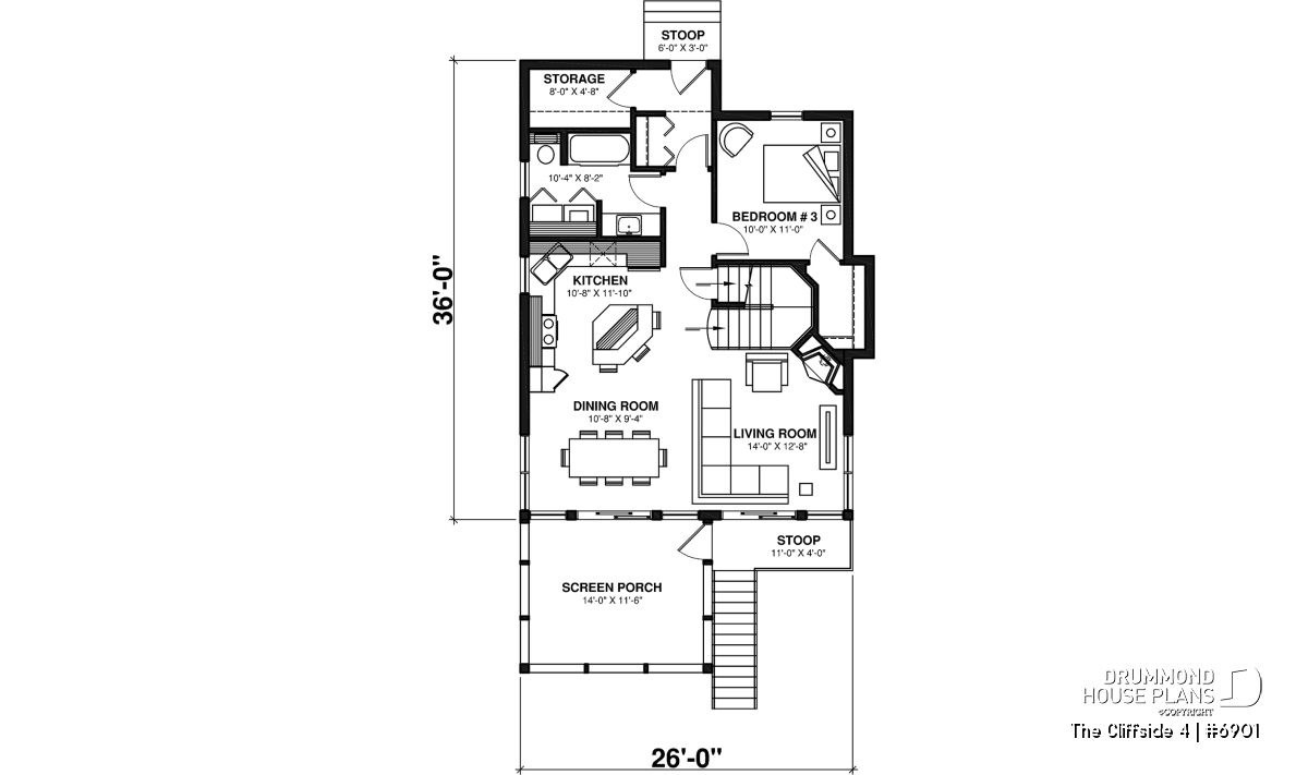
4-seasons chalet style house plan, 3 bedrooms, fireplace, screened-in deck and open floor plan
Other useful information on this plan
Charming 3 bedroom cottage plan with screened-in porch and great open floor plan
Are you looking for a four season vacation home but hesitate between several models in the Drummond Designs collection? Well now, let’s look at this one more closely together in order to appreciate the different assets.
First, outside at the rear of the house, we notice that beautiful covered terrace enveloped in screening, for outside dining or to simply take pleasure in relaxing, sheltered from the rain and from the famous mosquitoes.
Entering by the front of the house, we are agreeably surprised by a storage area, quite adequate in this type of house, and by the presence of a bedroom and full bathroom on the main level. Next, we note an entirely open activities area, characterized by an L-shaped kitchen with central island lunch counter, an abundantly windowed dining room with access to the screened terrace, a living room with just as many windows and adorned with a corner fireplace as well as access to the exterior gallery which for its part is endowed with a staircase allowing access to the yard.
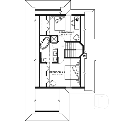
Finally, we are pampered on the upper level by the presence of two large bedrooms, each having excellent storage, and by a totally comfortable bathroom to conclude that this four season vacation home is a judicious choice.
Distinctive elements
Fireplace
Abundant windowing
Screened porch
Plan feature(s)
Screened porch, Fireplace, Panoramic view, Island, Gound floor laundry room, Open floor layout, Walk-in master bed., Mud room, Sloped ceiling, Double sinks, Separate bath and shower
Plan architectural style(s)
. Cottage, chalet, cabin, . Country, . Vacation and waterfront, . A-Frame, . American, . Ski chalets, . Transitional, . Modern rustic, . Cape Cod, . Mountain
Similar plans
Previously Viewed Plans
Questions and comments
June 29
Brad Suter
What are the differences between the various Cliffside plans? In particular, what are the differences between w6901 and w3901?
Thanks,
Brad Suter
June 29
Customer service
Hello Mr. Suter,
they have the same floor plans but the staircase was redesigned for house plan 6901, to remove the angle stairs from house plan 3901 (requested by the US Building Code).
Thanks for your interest and let me know if you have more questions!
Marie
Thank you for your comment! It must be approved before being put online, please allow a period of 24 hours.
Error with google reCaptcha! Try again
Here is a brief description of our different plan packages. Please select the plan package that suits your needs. You can change the package at the next step, if necessary.
PDF VERSION OF PLAN:
Complete digital version of plan (pdf format) sent by email (original plan format 18" x 24'' or 24" x 36'')
5 copies of plan + PDF:
Includes: 5 copies of plan, plan in PDF format (reduced size version), materials list.
Foundation type
Additional foundation types are available, a fee may apply. Please indicate your choice on the online order form, or to our customer service representative, when placing your house plan order.
If your desired foundation type is not available, please contact our customer service to receive your free plan modification quote.
Explanation of bonus space types
UNFINISHED BONUS ROOM
The bonus rooms are often planned above the garage and are accessible from the house. They are designed to be converted as an office, a laundry area, a bathroom, a library corner or even an additional bedroom for which homeowners must make sure to have a window that complies with current codes & standards.
STORAGE AREA
Often located above the garage, our storage areas are used only as storage and are usually accessible from the garage via a retractable staircase.
Do you like this plan but want it to be modified to suit your needs?
To add a garage, another bedroom, finish the basement or any other modification, click here and let us know about your desired changes and to get your free quote for the modification of your plan.
Conditions of use
Important copyright notice! Please take note of these copyright conditions before printing:
By printing this house plan, cottage or garage or the floorplan(s), you confirm being informed that every house plan on this website is the exclusive property of Drummond House
Plans and is protected by Canadian copyright law. You are aware that these prints cannot be used to build or even obtain a building permit. The graphic representations of these
models are offered by Drummond House Plans for the sole purpose of allowing you to notate modifications of a model and then take it to one of the Drummond House Plans Canadian dealers for
modification of the plan.
The purchase of a house plan, cottage or garage from Drummond House Plans is mandatory if you wish to build any of our models. The plan purchase allows you to build a single unit; you cannot resell or give your plan to anyone once the house, cottage or garage has been built. If you wish to build the same house, cottage or garage more than once, you need to obtain the licence to this effect. Please contact us for more details.
All plans from Drummond House Plans can only be modified by a licensed Drummond House Plan Canadian dealer. If any other business or individual with no affiliation to Drummond House Plans modifies a Drummond House Plan on your behalf, please ensure this business or individual has a licence to modify this specific plan or you will be subject to prosecution on the same level as the business or individual who modified or reproduced the plan.
For more details, do not hesitate to contact u by e-mail or by phone at 1-800-567-1413.
I agree to respect the conditions above to not reproduce, modify or build a model from Drummond House Plans without previously purchasing a complete house plan.















June 29
Brad Suter
What are the differences between the various Cliffside plans? In particular, what are the differences between w6901 and w3901?
Thanks,
Brad Suter