There are no shipping fees if you buy one of our 2 plan packages "PDF file format" or "5 sets of blueprints + PDF". Shipping charges may apply if you buy additional sets of blueprints.
House plan Vistas 2 (2939A)
A-Frame cottage house plan, 2 bedrooms + loft, cathedral ceiling, walkout basement
Other useful information on this plan
Sweeping Views and 2 bedrooms + loft
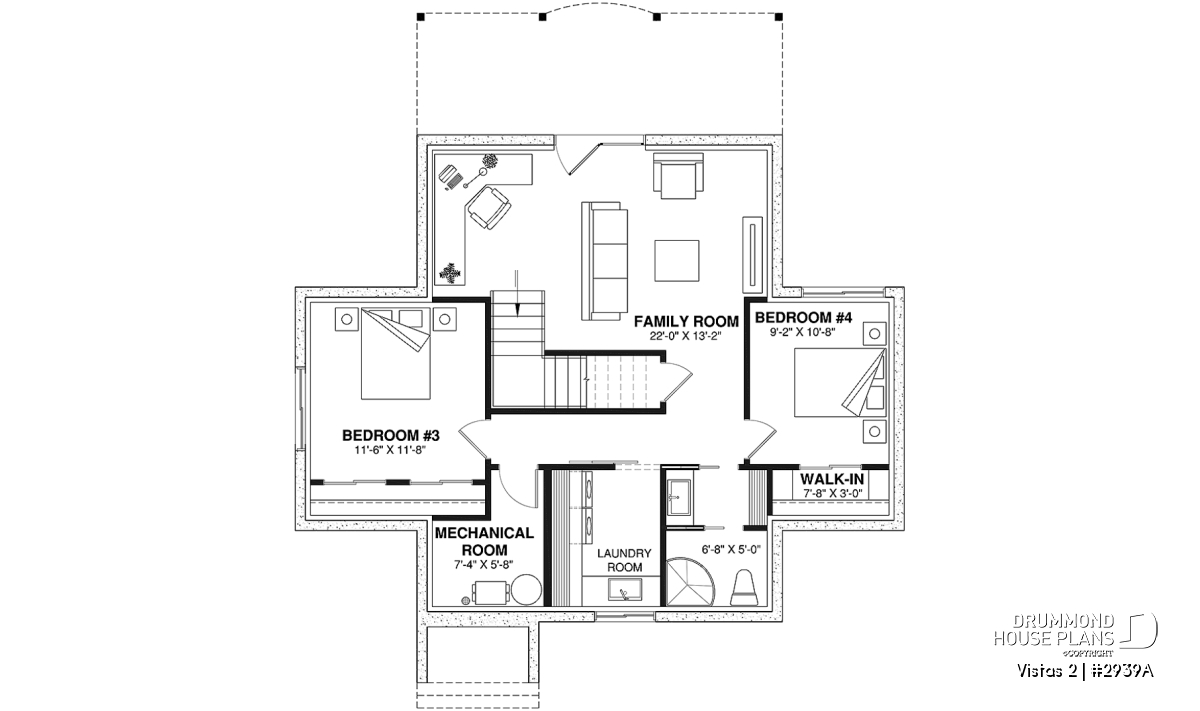
Here is one of the most sought-after models by owners of view lots. Ample windows and careful design ensure panoramic views from the kitchen, dining room and master bedroom. Each of these beautiful spaces offers something distinctive. The open kitchen includes a large central island. The living/dining room area shares a fireplace and abundant windows. The master bedroom includes a large walk-in closet and discreet access to the full bathroom.
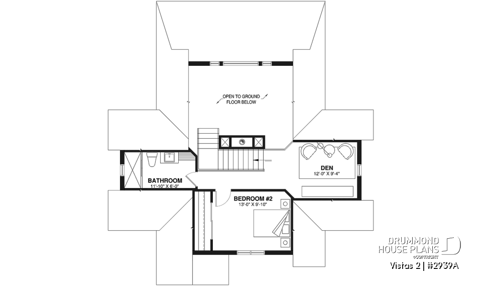
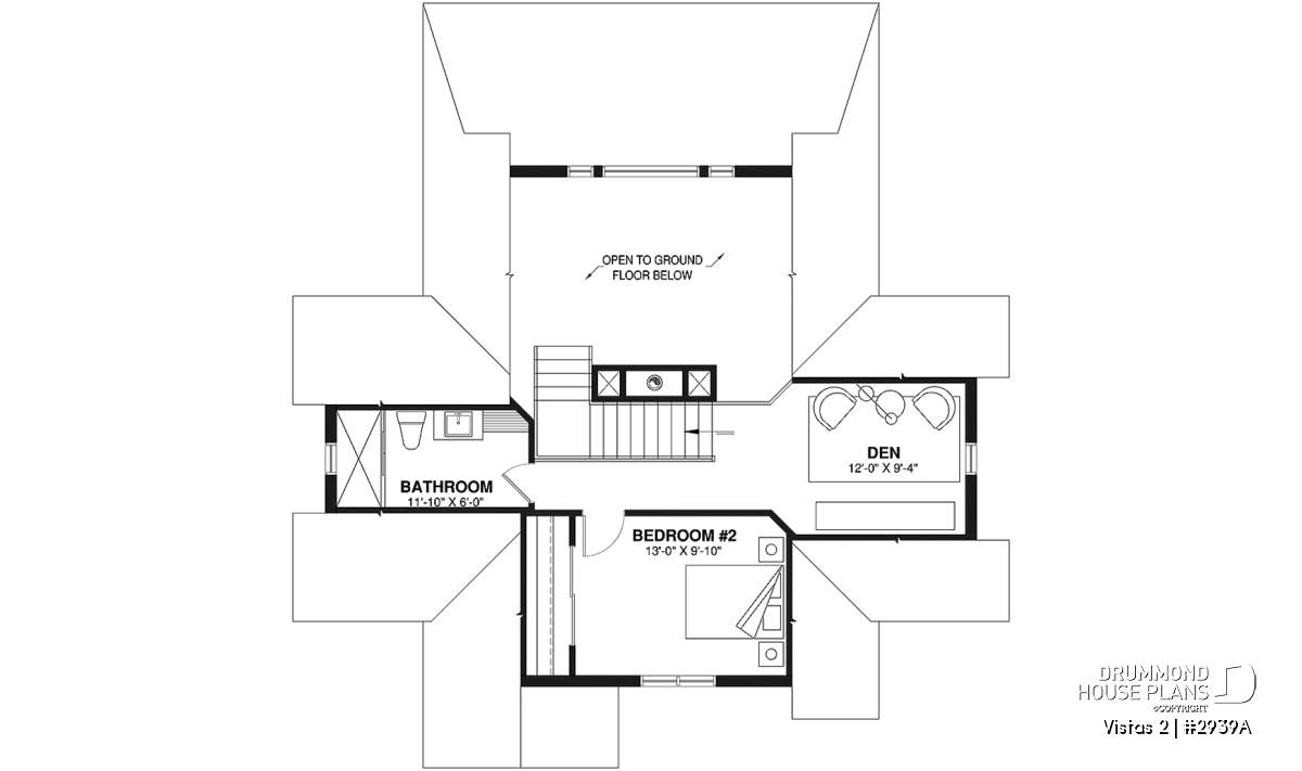
The mezzanine boasts a guest room to house friends and guests, a cozy sitting area, and private bathroom.
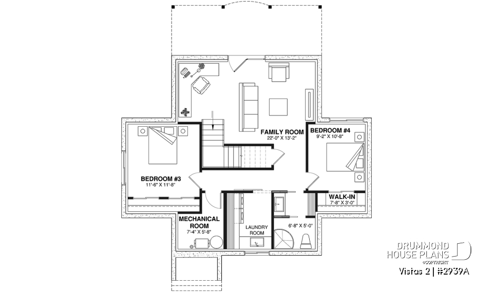
Outside, a large covered balcony ensures as much comfort, enjoyment and sweeping views as the interior. An unfinished daylight basement can be finished to your needs. This is truly a home to celebrate the view from every level!
Distinctive elements
Beautiful and economial country cottage house plan.
2 bedrooms + loft.
Main-floor master suite.
Abundant windows in the rear of the house.
Fireplace and cathedral ceiling in the living/dining room.
Large rear covered porch.
Walkout basement.
Many floor plan layouts of this model are available.
Plan feature(s)
Fireplace, Cathedral ceiling, Mezzanine, Access to basement from exterior, Panoramic view, Walk-in master bed., Deck, Loft
Plan architectural style(s)
. Country, . Vacation and waterfront, . Ski chalets, . American, . A-Frame, . Traditional, . Mountain, . Cottage, chalet, cabin
Similar plans
Previously Viewed Plans
Questions and comments
January 23
Tim Dykstra
Can you get the prints to build this house without the second floor
January 27
Marie
Hello Mr. Dykstra,
Actually, yes it is possible but would have to go through our plan modification services for structural révision, etc.
However, Plan # 2939B-V1 is very similar and has no second floor. The walkout basement is finished but you don't need to finish it if you don't need it.
Here it is: drummondhouseplans.com/plan/vistas-4-cottage-chalet-cabin-1002919
Let us know if you have more question or are ready to order!
Have a great week,
DrummondHousePlans.com
[email protected]
Phone: 1-800-567-5267 ext.109
March 12
Kathleen
Can this plan be modified to enclude a washer dryer space on the main floor as in W2939B?
March 12
Customer service
Good day and thank you for your interest in this plan.
This plan can be modified to bring the washer and dryer to the main floor, all you need to do is to fill in our on line modification form for which I have attached the link below.
http://www.drummondhouseplans.com/plan-modification-services/online-estimate-form/plan/1001777.html
We will be happy to return a free estimate for the changes within two business days after receipt of your request.
Please let me know if I can further assist you.
Regards
Deborah
Thank you for your comment! It must be approved before being put online, please allow a period of 24 hours.
Error with google reCaptcha! Try again
Here is a brief description of our different plan packages. Please select the plan package that suits your needs. You can change the package at the next step, if necessary.
PDF VERSION OF PLAN:
Complete digital version of plan (pdf format) sent by email (original plan format 18" x 24'' or 24" x 36'')
5 copies of plan + PDF:
Includes: 5 copies of plan, plan in PDF format (reduced size version), materials list.
Foundation type
Additional foundation types are available, a fee may apply. Please indicate your choice on the online order form, or to our customer service representative, when placing your house plan order.
If your desired foundation type is not available, please contact our customer service to receive your free plan modification quote.
Explanation of bonus space types
UNFINISHED BONUS ROOM
The bonus rooms are often planned above the garage and are accessible from the house. They are designed to be converted as an office, a laundry area, a bathroom, a library corner or even an additional bedroom for which homeowners must make sure to have a window that complies with current codes & standards.
STORAGE AREA
Often located above the garage, our storage areas are used only as storage and are usually accessible from the garage via a retractable staircase.
Do you like this plan but want it to be modified to suit your needs?
To add a garage, another bedroom, finish the basement or any other modification, click here and let us know about your desired changes and to get your free quote for the modification of your plan.
Conditions of use
Important copyright notice! Please take note of these copyright conditions before printing:
By printing this house plan, cottage or garage or the floorplan(s), you confirm being informed that every house plan on this website is the exclusive property of Drummond House
Plans and is protected by Canadian copyright law. You are aware that these prints cannot be used to build or even obtain a building permit. The graphic representations of these
models are offered by Drummond House Plans for the sole purpose of allowing you to notate modifications of a model and then take it to one of the Drummond House Plans Canadian dealers for
modification of the plan.
The purchase of a house plan, cottage or garage from Drummond House Plans is mandatory if you wish to build any of our models. The plan purchase allows you to build a single unit; you cannot resell or give your plan to anyone once the house, cottage or garage has been built. If you wish to build the same house, cottage or garage more than once, you need to obtain the licence to this effect. Please contact us for more details.
All plans from Drummond House Plans can only be modified by a licensed Drummond House Plan Canadian dealer. If any other business or individual with no affiliation to Drummond House Plans modifies a Drummond House Plan on your behalf, please ensure this business or individual has a licence to modify this specific plan or you will be subject to prosecution on the same level as the business or individual who modified or reproduced the plan.
For more details, do not hesitate to contact u by e-mail or by phone at 1-800-567-1413.
I agree to respect the conditions above to not reproduce, modify or build a model from Drummond House Plans without previously purchasing a complete house plan.

















January 23
Tim Dykstra
Can you get the prints to build this house without the second floor