There are no shipping fees if you buy one of our 2 plan packages "PDF file format" or "5 sets of blueprints + PDF". Shipping charges may apply if you buy additional sets of blueprints.
House plan Gable House 2 (3642-V1)
4-Bedroom Classic Two-Story House Plan – Open Concept Design with Garage & Optional Basement
Other useful information on this plan
Classic Two-Story House Plan – 4 Bedrooms, Open Concept, Double Garage & Optional Finished Basement
This timeless classic two-story house captivates with its elegant architecture and refined details. Its style conveys both strength and comfort while incorporating features designed for modern living. At first glance, the front porch with partial cathedral ceiling gives the façade a prestigious and welcoming character.
Upon entering, a bright foyer leads directly to a practical flex room, perfect for remote work or easily converted into a children’s playroom. The 9-foot ceilings on the main floor enhance the sense of space, while the living room ceiling rises to 12’9’’, creating a spectacular and unique effect.
At the heart of the home, the living room, dining room, and kitchen flow together in a warm and inviting atmosphere. The fireplace with built-in cabinetry becomes the focal point of the living room, while the cathedral ceiling maximizes natural light. The open kitchen impresses with its central island and functional pantry, directly connected to the mudroom located across from the garage entrance, making everyday routines easier. The main-floor primary suite offers two spacious walk-in closets and a complete bathroom with double vanities, a bathtub, and a separate shower, creating a private and refined retreat.
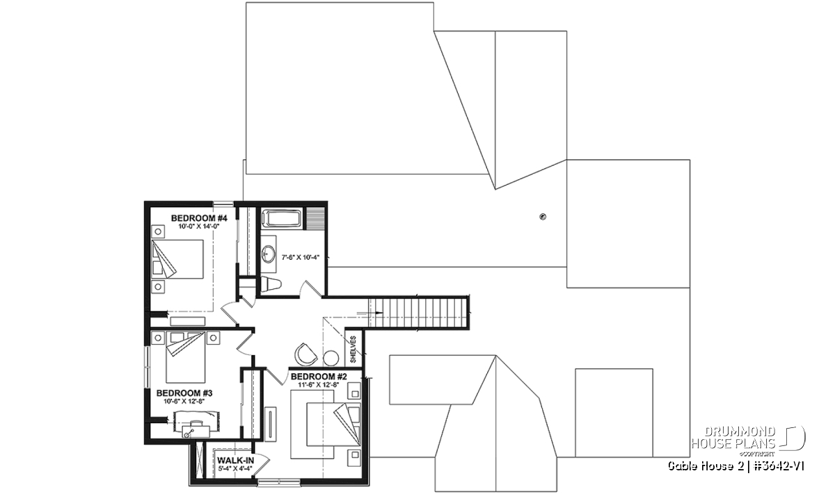
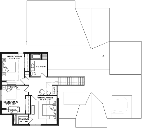
Upstairs, three comfortable secondary bedrooms and a full bathroom provide space and privacy for family members. A flexible area can be used as a family room or relaxation space, adapting to your lifestyle.
Outdoors, a large covered rear terrace (21’ x 14’) becomes a natural extension of the home, perfect for an outdoor dining area and lounge. A spacious double garage completes this elegant and practical design.
---
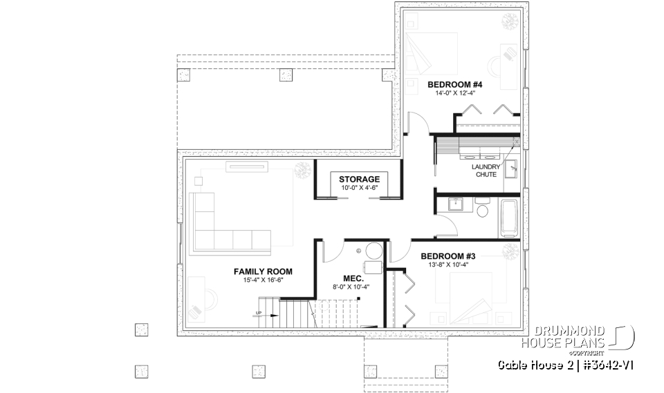
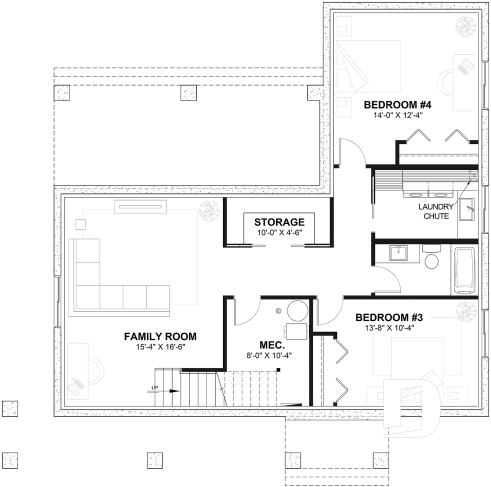
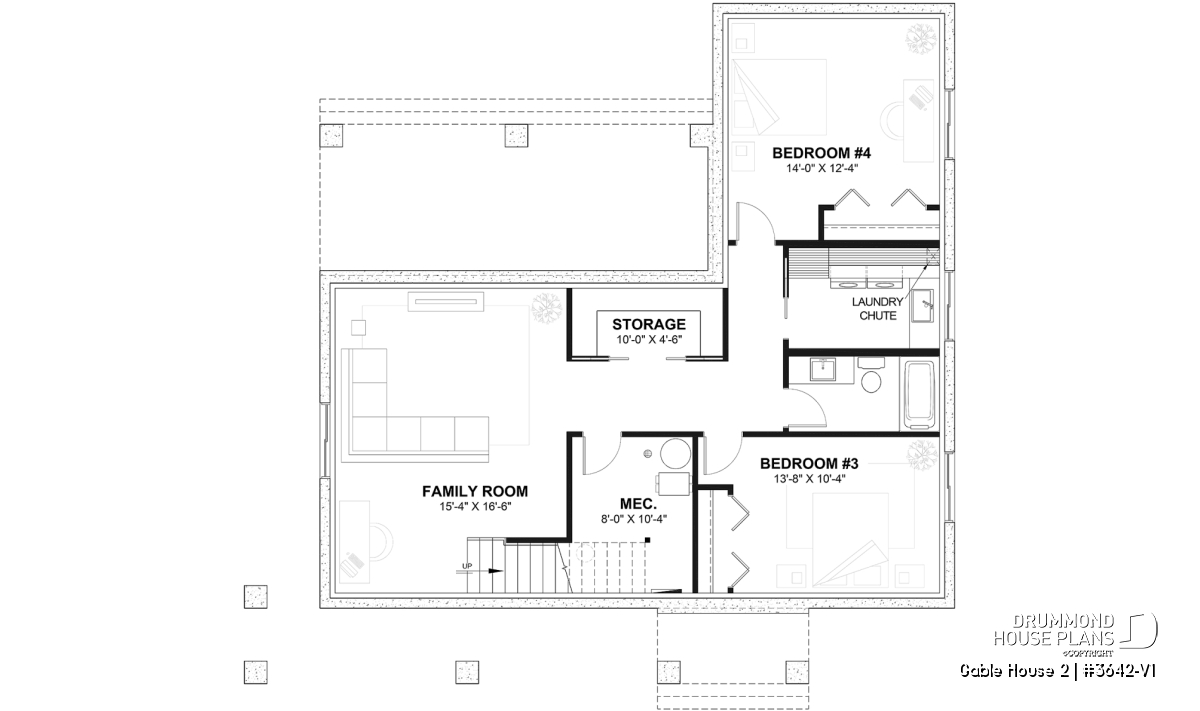
*Optional Finished Basement ($):
For families needing more space, the finished basement includes a game room, home gym area, additional bedroom, full bathroom, generous storage, and even a cold room—perfect for adapting the home to evolving needs.
By combining classic style, elegant arches, and modern comfort, this two-story house plan is the ideal choice for families seeking a warm, functional, and long-lasting home.
---
*If you wish to purchase the finished basement plan, as presented on this plan page, please select this option in the shopping cart, in the "Selection of foundation type" section. If you do not select this option, you will receive the unfinished full basement option, at no extra charge.
Distinctive elements
Timeless Classic Two-Story Home with Elegant Charm.
Front porch with partial cathedral ceiling, adding prestige and character to the entrance.
Welcoming front entry leading directly to a bright home office.
9-foot ceilings throughout the main floor, with the living room ceiling soaring to 12’9’’ for a spectacular effect.
Home office near the entrance that can easily be converted into a playroom for children or a creative space.
Main-floor primary bedroom with two spacious walk-in closets and a private bathroom featuring double vanities, a large bathtub, and a separate shower.
Open-concept kitchen with large central island and walk-in pantry, directly connected to the mudroom strategically located across from the garage entry.
Living room and dining room enhanced by a stunning cathedral ceiling that maximizes brightness and amplifies the sense of space.
Warm fireplace in the living room, framed by built-in cabinetry on each side for both style and function.
Upstairs includes three comfortable secondary bedrooms and a full bathroom.
Large covered rear terrace (21’ x 14’) offering plenty of space for an outdoor dining area and relaxing lounge.
Spacious double garage completing this beautiful home.
Original plan includes an unfinished basement, ready to be customized to your needs.
---
*Optional Finished Basement ($):
Family-friendly game room, perfect for kids.
Home gym area, ideal for workouts at home.
Additional bedroom, perfect for guests or teenagers.
Full bathroom for added comfort and convenience.
Practical storage spaces plus a cold room.
---
*If you wish to purchase the finished basement plan, as presented on this plan page, please select this option in the shopping cart, in the "Selection of foundation type" section. If you do not select this option, you will receive the unfinished full basement option, at no extra charge.
Plan feature(s)
Office / Study / Den, Oversized garage, Pantry, Island, Master suite on main, Mud room, His/Hers walk-in, Double sinks, Separate bath and shower, Gound floor laundry room, Deck, Game room, Oversized garage, Built-ins, Fireplace, Sloped ceiling, Cathedral ceiling, Ceiling over 8'
Plan architectural style(s)
French Country, . Craftsman / Northwest, . Ranch, . Farmhouse, Modern French Country, . Transitional, . Country, . American
Similar plans
Previously Viewed Plans
Thank you for your comment! It must be approved before being put online, please allow a period of 24 hours.
Error with google reCaptcha! Try again
Here is a brief description of our different plan packages. Please select the plan package that suits your needs. You can change the package at the next step, if necessary.
PDF VERSION OF PLAN:
Complete digital version of plan (pdf format) sent by email (original plan format 18" x 24'' or 24" x 36'')
5 copies of plan + PDF:
Includes: 5 copies of plan, plan in PDF format (reduced size version), materials list.
Foundation type
Additional foundation types are available, a fee may apply. Please indicate your choice on the online order form, or to our customer service representative, when placing your house plan order.
If your desired foundation type is not available, please contact our customer service to receive your free plan modification quote.
Explanation of bonus space types
UNFINISHED BONUS ROOM
The bonus rooms are often planned above the garage and are accessible from the house. They are designed to be converted as an office, a laundry area, a bathroom, a library corner or even an additional bedroom for which homeowners must make sure to have a window that complies with current codes & standards.
STORAGE AREA
Often located above the garage, our storage areas are used only as storage and are usually accessible from the garage via a retractable staircase.
Do you like this plan but want it to be modified to suit your needs?
To add a garage, another bedroom, finish the basement or any other modification, click here and let us know about your desired changes and to get your free quote for the modification of your plan.
Conditions of use
Important copyright notice! Please take note of these copyright conditions before printing:
By printing this house plan, cottage or garage or the floorplan(s), you confirm being informed that every house plan on this website is the exclusive property of Drummond House
Plans and is protected by Canadian copyright law. You are aware that these prints cannot be used to build or even obtain a building permit. The graphic representations of these
models are offered by Drummond House Plans for the sole purpose of allowing you to notate modifications of a model and then take it to one of the Drummond House Plans Canadian dealers for
modification of the plan.
The purchase of a house plan, cottage or garage from Drummond House Plans is mandatory if you wish to build any of our models. The plan purchase allows you to build a single unit; you cannot resell or give your plan to anyone once the house, cottage or garage has been built. If you wish to build the same house, cottage or garage more than once, you need to obtain the licence to this effect. Please contact us for more details.
All plans from Drummond House Plans can only be modified by a licensed Drummond House Plan Canadian dealer. If any other business or individual with no affiliation to Drummond House Plans modifies a Drummond House Plan on your behalf, please ensure this business or individual has a licence to modify this specific plan or you will be subject to prosecution on the same level as the business or individual who modified or reproduced the plan.
For more details, do not hesitate to contact u by e-mail or by phone at 1-800-567-1413.
I agree to respect the conditions above to not reproduce, modify or build a model from Drummond House Plans without previously purchasing a complete house plan.

























