There are no shipping fees if you buy one of our 2 plan packages "PDF file format" or "5 sets of blueprints + PDF". Shipping charges may apply if you buy additional sets of blueprints.
House plan Simone (3641)
Stunning French Country Style Home, L-Shaped, No Basement, 3 to 4 Bedrooms, 2 Family Rooms
Other useful information on this plan
French countryside inspired house plan offering 3 to 4 bedrooms and a sensational kitchen!!
SIMONE house plan (#3641) offers a large 2528 sq.ft. of space, arranged on 2 floors. The initial foundation planned is a floating slab. It should be noted that all of our plans offer several types of foundations.
The garage with its 505 sq.ft. is considered single but is large enough to accommodate a car, a bicycle area, a large storage area and a small mechanical space. In addition, it gives direct access to the inside closet, offering a bench and hooks for hanging and storage.
The kitchen is truly the prefered aspect of this house for the immensity of the storage space available, starting with the scullery and the pantry. In addition, a large central island, open to the living room will allow you to cook while maintaining contact with your guests. The dining room, with cathedral ceiling is very bright thanks to the elegant windows. A central fireplace will give a warm atmosphere to your movie evenings with family or friends.
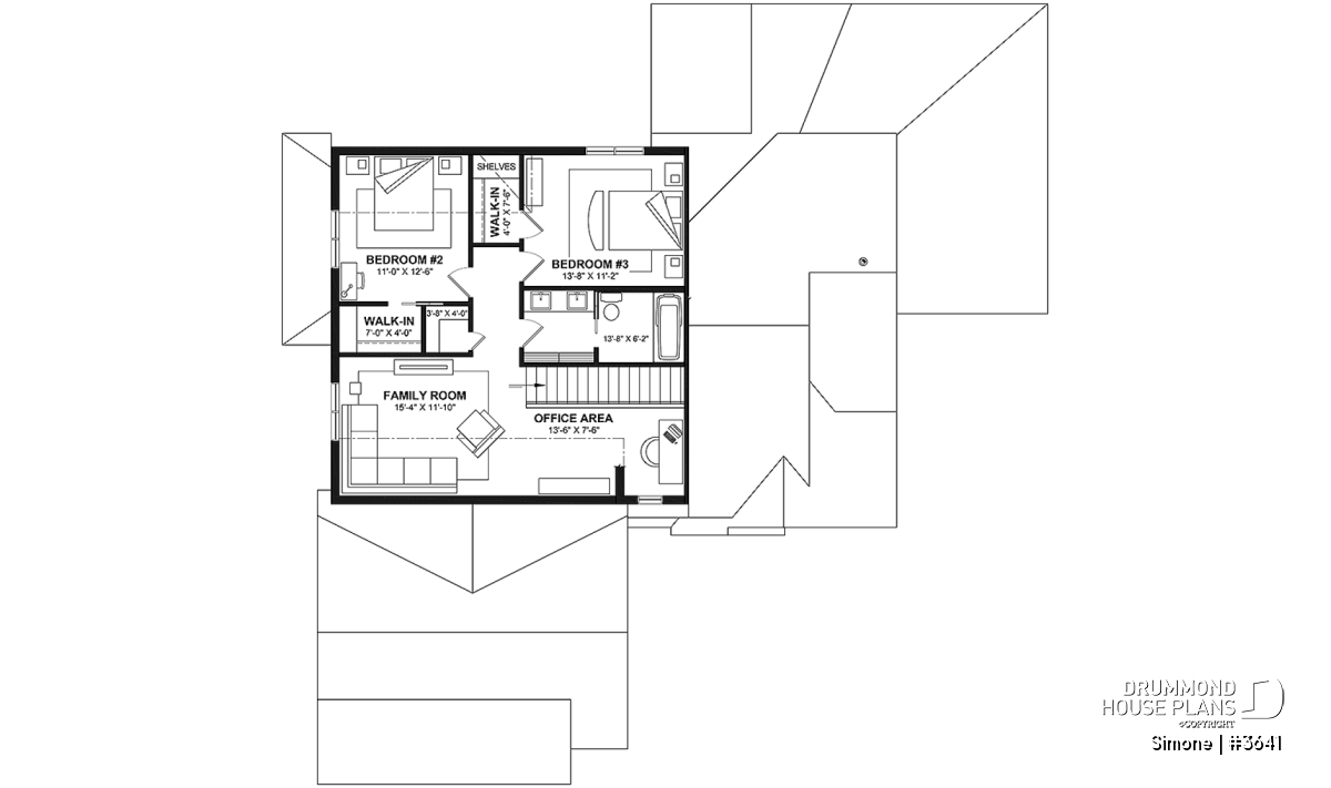
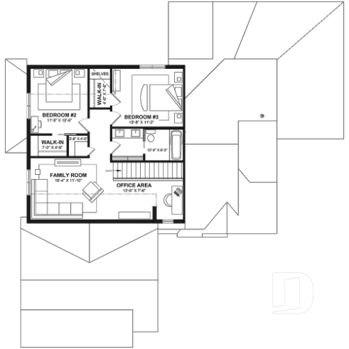
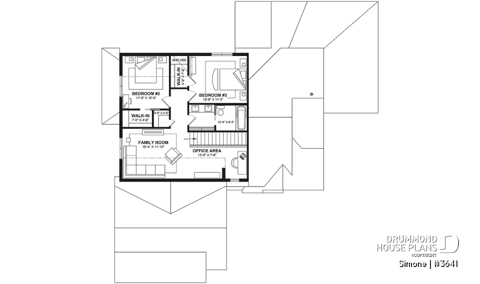
The parents' suite is located on the ground floor and includes a large walk-in closet, as well as a large (and complete!) private bathroom. The children's bedrooms are upstairs and have their own bathroom, as well as a family room with a small office area. A 4th bedroom could be fitted out instead of the family room, depending on your needs.
Do you like this plan as is, or do you want to modify certain elements? Contact us and we will be happy to help you in this life project!!
Distinctive elements
French country style home plan with an L-shaped, ideal for deep lots.
Ceiling at 9' everywhere on the ground floor, except in the dining room where it is cathedral at more than 12'-6''.
The entrance coat closet is accessible from the main front entrance, as well as the garage. It offers a bench and a wall with hooks.
Practical small game room with barn door that is set back from the living room.
Several decorative arches are available for transitional spaces as well as built-ins on each side of the fireplace.
Kitchen with scullery and pantry.
Open area between the kitchen and the living room.
Living room with fireplace and built-in furniture.
Parents' bedroom with private bathroom offering 2 sinks as well as a bath and a separate shower.
The laundry room is adjacent to the powder room.
Panoramic view from the dining room.
The upper floor offers 2 bedrooms each with a walk-in closet and also share a bathroom.
The upstairs bathroom is convenient to accommodating 2 people at a time because the toilet and shower area is separate from the double sink area.
The upstairs family room can be converted into bedroom #4 if needed.
A small office area is set up upstairs, with a small window.
The initial foundation planned is on a floating slab. Several types of foundation are available for this plan.
The 400 sq.ft. sheltered terrace is large enough to accommodate a dining room and a lounge area.
The single garage is large and includes storage and the mechanical corner.
Would you like to make changes to this plan? Contact us and we'll assist you!
Plan feature(s)
Arch, Butler's pantry, Planning desk, Fireplace, Pantry, Island, Cathedral ceiling, Gound floor laundry room, Master suite on main, Mud room, Walk-in master bed., Ceiling over 8', Open floor layout, Separate bath and shower, Double sinks, Panoramic view, Shelves, Sliding barn door(s), Built-ins, Sloped ceiling, Oversized garage
Plan architectural style(s)
. L-Shaped, . European, French Country, . Farmhouse, . Transitional, . Country
Similar plans
Previously Viewed Plans
Thank you for your comment! It must be approved before being put online, please allow a period of 24 hours.
Error with google reCaptcha! Try again
Here is a brief description of our different plan packages. Please select the plan package that suits your needs. You can change the package at the next step, if necessary.
PDF VERSION OF PLAN:
Complete digital version of plan (pdf format) sent by email (original plan format 18" x 24'' or 24" x 36'')
5 copies of plan + PDF:
Includes: 5 copies of plan, plan in PDF format (reduced size version), materials list.
Foundation type
Additional foundation types are available, a fee may apply. Please indicate your choice on the online order form, or to our customer service representative, when placing your house plan order.
If your desired foundation type is not available, please contact our customer service to receive your free plan modification quote.
Explanation of bonus space types
UNFINISHED BONUS ROOM
The bonus rooms are often planned above the garage and are accessible from the house. They are designed to be converted as an office, a laundry area, a bathroom, a library corner or even an additional bedroom for which homeowners must make sure to have a window that complies with current codes & standards.
STORAGE AREA
Often located above the garage, our storage areas are used only as storage and are usually accessible from the garage via a retractable staircase.
Do you like this plan but want it to be modified to suit your needs?
To add a garage, another bedroom, finish the basement or any other modification, click here and let us know about your desired changes and to get your free quote for the modification of your plan.
Conditions of use
Important copyright notice! Please take note of these copyright conditions before printing:
By printing this house plan, cottage or garage or the floorplan(s), you confirm being informed that every house plan on this website is the exclusive property of Drummond House
Plans and is protected by Canadian copyright law. You are aware that these prints cannot be used to build or even obtain a building permit. The graphic representations of these
models are offered by Drummond House Plans for the sole purpose of allowing you to notate modifications of a model and then take it to one of the Drummond House Plans Canadian dealers for
modification of the plan.
The purchase of a house plan, cottage or garage from Drummond House Plans is mandatory if you wish to build any of our models. The plan purchase allows you to build a single unit; you cannot resell or give your plan to anyone once the house, cottage or garage has been built. If you wish to build the same house, cottage or garage more than once, you need to obtain the licence to this effect. Please contact us for more details.
All plans from Drummond House Plans can only be modified by a licensed Drummond House Plan Canadian dealer. If any other business or individual with no affiliation to Drummond House Plans modifies a Drummond House Plan on your behalf, please ensure this business or individual has a licence to modify this specific plan or you will be subject to prosecution on the same level as the business or individual who modified or reproduced the plan.
For more details, do not hesitate to contact u by e-mail or by phone at 1-800-567-1413.
I agree to respect the conditions above to not reproduce, modify or build a model from Drummond House Plans without previously purchasing a complete house plan.
























