There are no shipping fees if you buy one of our 2 plan packages "PDF file format" or "5 sets of blueprints + PDF". Shipping charges may apply if you buy additional sets of blueprints.
House plan Sophia (3640)
Two-story country home with double garage, 3 bedrooms and great panoramic view at the back of the house
Other useful information on this plan
Bright 3 bedrooms + office home plan, with a superb sheltered terrace and a large master suite!
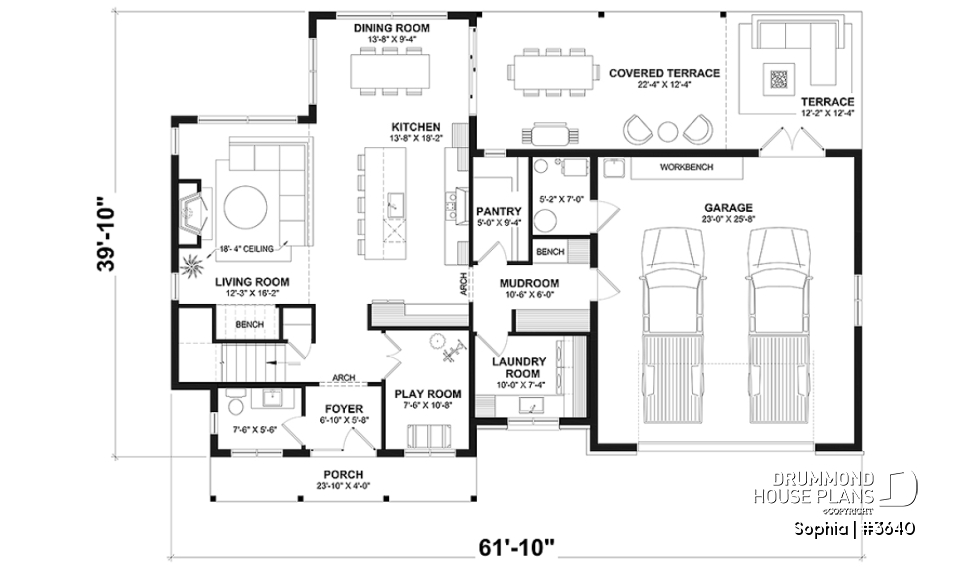
The SOPHIA home (plan #3640) offers 2,174 sq. ft. of living space, spread over two floors. The 23' x 25'8'' double garage is large enough to add a gardening area. The rear terrace offers a covered area of 22'-4 x 12'-4'' and an "uncovered" portion of 12'-2'' x 12'-4''. Several floor layouts are therefore possible. The basic foundation you will receive (included in the plan) is a floating slab. If you would like another type of foundation, simply select it in the shopping cart or contact us.
The ground floor has an open concept and several pretty and practical architectural elements are installed there such as a bench under the staircase leading upstairs, arches in the two entrance areas and an open ceiling on two floors in the living room. In addition, a practical game room, not far from the kitchen, will be the envy of many. Also, the garage entrance is near the pantry, mudroom and laundry room, which is convenient for those arriving from the grocery store and/or daycare!
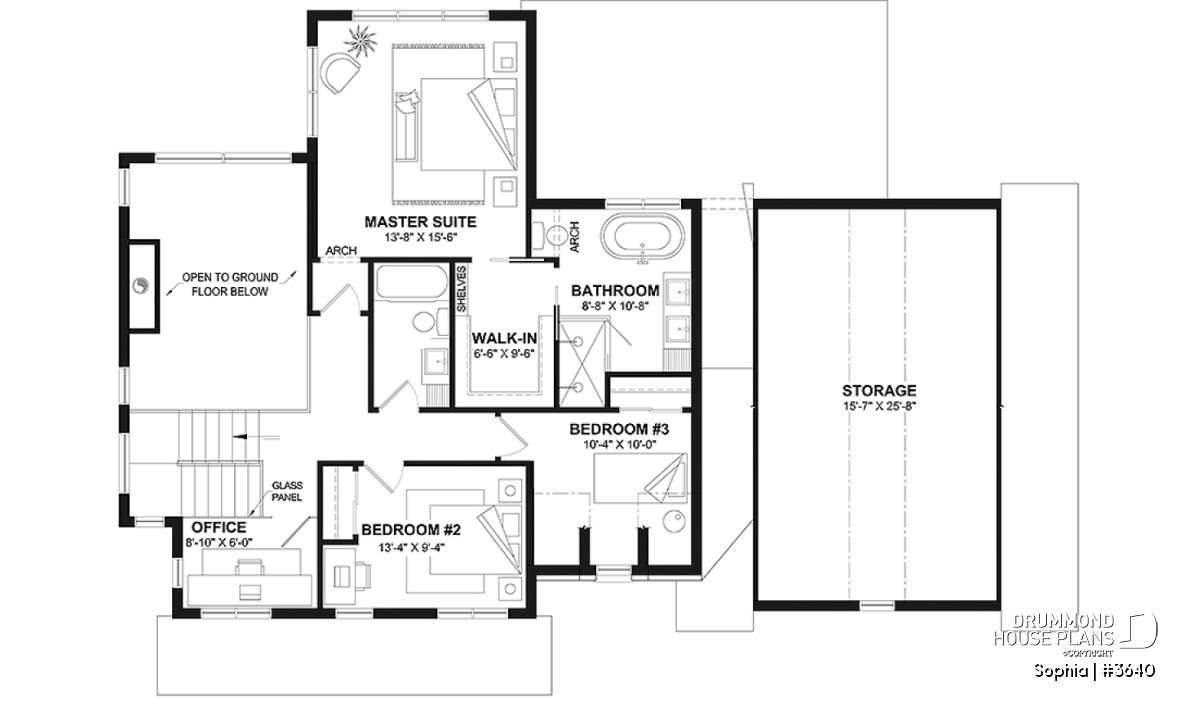
Upstairs, from the corridor, you have a clear view of the living room, thus bringing a beautiful spaciousness to this area. The office has a wall of glass panels, allowing you to keep an eye on who's coming and going. The parents' bedroom receives beautiful natural light from the rear window. In addition, the walk-in closet and the superb (and well appointed) private bathroom will allow you to relax in the evening.
This house has it all because no detail has been forgotten! Everything has been thought of, every corner has been maximized so that each of it's occupants get a maximum of satisfaction! The interior photos included are proof of this, please have a look at them!
Distinctive elements
Superb classic style model able to receive lots of natural light at the back of the house, both on the ground floor and upstairs.
The ceiling of the ground floor is 9' high, with the exception of that of the living room which is 18'-4''.
Three pretty architectural arches are fitted out, one at the front entrance and the other at the entrance from the garage, and the last at the toilet cabinet area of the parents' private bathroom.
The pantry, mudroom and laundry room are close to the garage entrance.
The kitchen is open to both the living room and the dining room and offers a large island and a pantry. The latter has a dimension of 5' x 9'4''.
The living room is open over 2 floors and offers a fireplace and a pretty seating area under the staircase which goes upstairs (see photo).
The parents' bedroom, living room and dining room receive plenty of natural light.
The sheltered terrace is accessible from the dining room and is large enough to accommodate a lounge sitting area and a table and chairs area.
A portion of the terrace is unsheltered, at the living room area (see small floor, portion with decorative and sectional fireplace).
The parents' bedroom is upstairs and offers a walk-in closet and a large private bathroom with dual vanity, as well as a separate shower and bath.
The 2 additional bedrooms upstairs share a bathroom.
The small office at the top of the stairs has a glass panel serving as a wall, allowing a beautiful view into the living room.
The double garage is large enough to accommodate a gardening area for tool storage etc.
The main foundation of this house is on a floating slab, but remember that all of our plans are available with several foundation options, and they are all customizable by one of our offices.
Plan feature(s)
Arch, Fireplace, Oversized garage, Pantry, Island, Ceiling over 8', Game room, Gound floor laundry room, Master suite upstairs, Mud room, Panoramic view, Walk-in master bed., Open floor layout, Bench seat(s), Deck, Mezzanine, Double sinks, Separate bath and shower
Plan architectural style(s)
. Farmhouse, . American, Modern farmhouse, . Traditional, . Transitional, . Country, . Vacation and waterfront, Trending
Similar plans
Previously Viewed Plans
Thank you for your comment! It must be approved before being put online, please allow a period of 24 hours.
Error with google reCaptcha! Try again
Here is a brief description of our different plan packages. Please select the plan package that suits your needs. You can change the package at the next step, if necessary.
PDF VERSION OF PLAN:
Complete digital version of plan (pdf format) sent by email (original plan format 18" x 24'' or 24" x 36'')
5 copies of plan + PDF:
Includes: 5 copies of plan, plan in PDF format (reduced size version), materials list.
Foundation type
Additional foundation types are available, a fee may apply. Please indicate your choice on the online order form, or to our customer service representative, when placing your house plan order.
If your desired foundation type is not available, please contact our customer service to receive your free plan modification quote.
Explanation of bonus space types
UNFINISHED BONUS ROOM
The bonus rooms are often planned above the garage and are accessible from the house. They are designed to be converted as an office, a laundry area, a bathroom, a library corner or even an additional bedroom for which homeowners must make sure to have a window that complies with current codes & standards.
STORAGE AREA
Often located above the garage, our storage areas are used only as storage and are usually accessible from the garage via a retractable staircase.
Do you like this plan but want it to be modified to suit your needs?
To add a garage, another bedroom, finish the basement or any other modification, click here and let us know about your desired changes and to get your free quote for the modification of your plan.
Conditions of use
Important copyright notice! Please take note of these copyright conditions before printing:
By printing this house plan, cottage or garage or the floorplan(s), you confirm being informed that every house plan on this website is the exclusive property of Drummond House
Plans and is protected by Canadian copyright law. You are aware that these prints cannot be used to build or even obtain a building permit. The graphic representations of these
models are offered by Drummond House Plans for the sole purpose of allowing you to notate modifications of a model and then take it to one of the Drummond House Plans Canadian dealers for
modification of the plan.
The purchase of a house plan, cottage or garage from Drummond House Plans is mandatory if you wish to build any of our models. The plan purchase allows you to build a single unit; you cannot resell or give your plan to anyone once the house, cottage or garage has been built. If you wish to build the same house, cottage or garage more than once, you need to obtain the licence to this effect. Please contact us for more details.
All plans from Drummond House Plans can only be modified by a licensed Drummond House Plan Canadian dealer. If any other business or individual with no affiliation to Drummond House Plans modifies a Drummond House Plan on your behalf, please ensure this business or individual has a licence to modify this specific plan or you will be subject to prosecution on the same level as the business or individual who modified or reproduced the plan.
For more details, do not hesitate to contact u by e-mail or by phone at 1-800-567-1413.
I agree to respect the conditions above to not reproduce, modify or build a model from Drummond House Plans without previously purchasing a complete house plan.

























