There are no shipping fees if you buy one of our 2 plan packages "PDF file format" or "5 sets of blueprints + PDF". Shipping charges may apply if you buy additional sets of blueprints.
House plan Strom 2 (3896-V1)
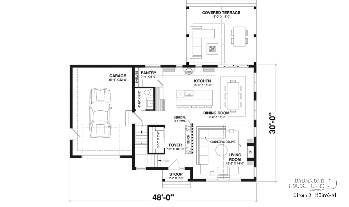
Farmhouse home with a versatile layout offering 3 to 6 bedrooms, optional finished basement ($), and a covered
Virtual visit
Other useful information on this plan
Fall in love for this bright Modern Farmhouse home featuring up to 6 bedrooms and a great sheltered rear balcony!
Discover STROM 2 house plan, the Farmhouse version of our popular Strom contemporary plan, a home that perfectly blends modern elegance with rustic charm. Thoughtfully designed for today’s families, this two-story home offers bright, inviting spaces, practical functionality, and warm details that make everyday living truly enjoyable.
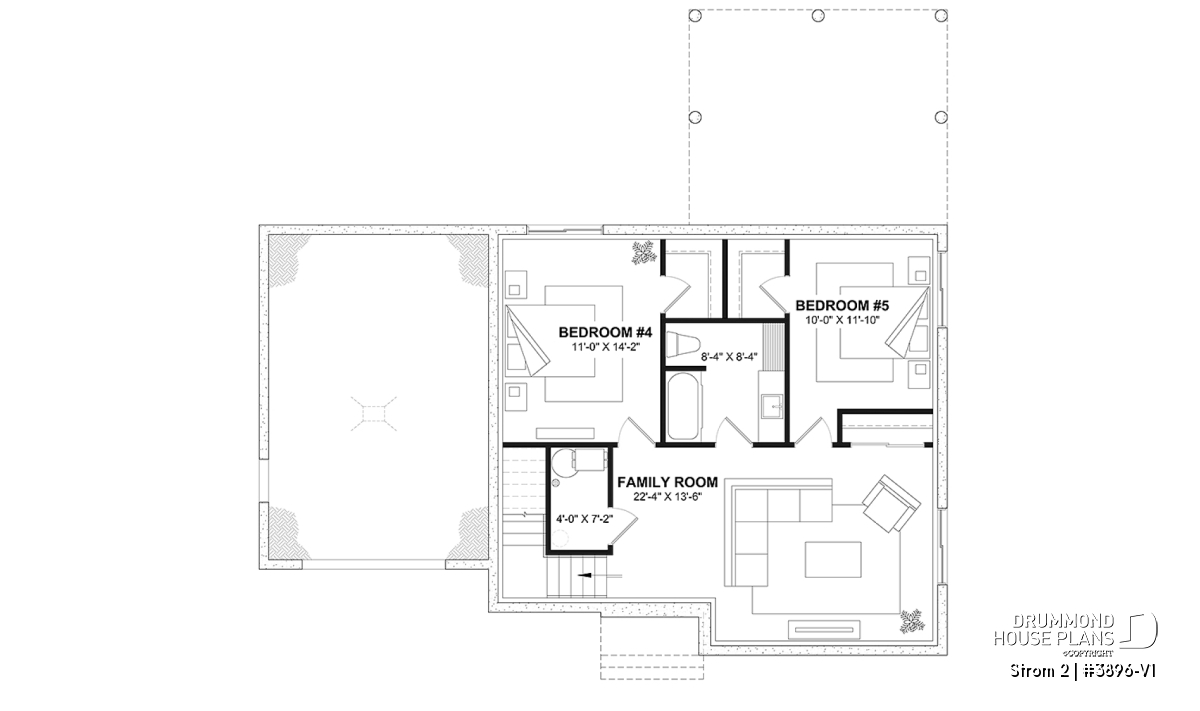
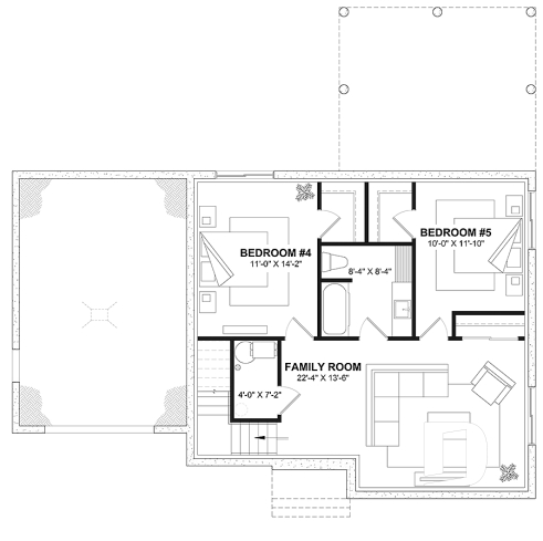
Upstairs, you’ll find 3 to 4 spacious bedrooms, with the option to add 2 additional bedrooms in the *basement if you choose to finish it (optional $). The upstairs office, complete with a closet, can easily convert into an extra bedroom, bringing the total to 6 bedrooms. This flexible layout is perfect for large families, overnight guests, or even creating a dedicated home office. A convenient laundry room on the second floor makes daily routines easier, eliminating the need for constant trips up and down the stairs.
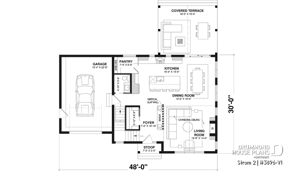
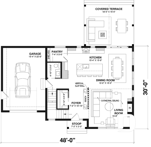
The spacious front entry sets the tone with a walk-in closet for coats and shoes, keeping everything neatly organized. A welcoming bench, backed by a slatted feature wall that filters natural light, adds a touch of character and functionality to this inviting space.
The bright living room features a cathedral ceiling and a cozy fireplace, creating the perfect atmosphere for relaxation or entertaining guests. The functional kitchen is the heart of the home, with a friendly island and pantry that make cooking and gathering effortless. A discreet powder room, tucked away from the main living areas, adds an extra level of comfort and privacy.
Step outside to the covered terrace, easily accessible from the dining room, and enjoy a seamless extension of your living space outdoors—perfect for summer dinners or quiet mornings with a coffee. The single-car garage offers direct access to the home, adding convenience in every season.
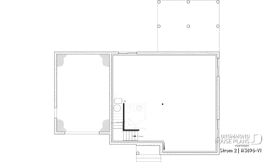
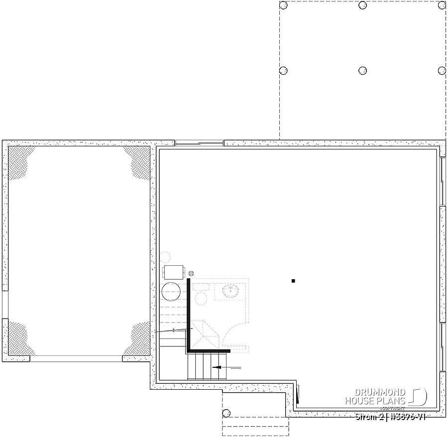
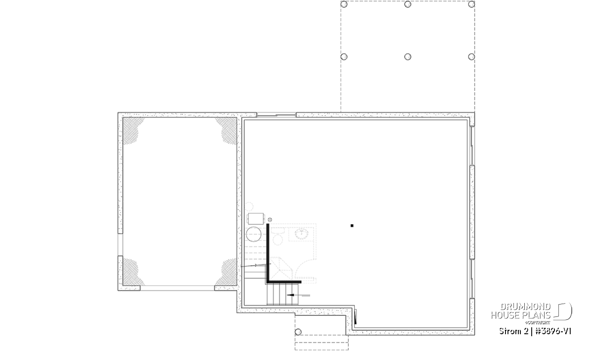
For those who opt for the finished basement (optional $), the possibilities expand even further with 2 additional bedrooms, a spacious family room, a full bathroom, and storage space.
With its timeless Farmhouse character, family-friendly layout, and modern comforts, this Strom 2 Farmhouse design delivers a home that’s as practical as it is charming—a place where every day feels inviting and inspired.
---
*If you wish to purchase the finished basement plan, as presented on this plan page, please select this option in the shopping cart, in the "Selection of foundation type" section. If you do not select this option, you will receive the unfinished full basement option, at no extra charge.
Distinctive elements
Farmhouse version of our popular contemporary Strom plan.
Two-story home offering 3 to 4 bedrooms upstairs and 2 additional bedrooms in the *basement if finished (optional $).
Upstairs office with closet, easily convertible into a bedroom for a total of 6 bedrooms.
Convenient upstairs laundry room, reducing trips to this area.
Spacious front entry with a walk-in coat closet.
Inviting bench backed by a slatted wall allowing light to filter through.
Bright living room with cathedral ceiling and cozy fireplace.
Functional kitchen with a friendly island and pantry.
Discreet powder room, tucked away from the main living areas.
Covered rear terrace directly accessible from the dining room.
Single-car garage with direct access to the home.
Optional finished basement ($):
2 bedrooms, family room, bathroom, and storage space.
---
*If you wish to purchase the finished basement plan, as presented on this plan page, please select this option in the shopping cart, in the "Selection of foundation type" section. If you do not select this option, you will receive the unfinished full basement option, at no extra charge.
Plan feature(s)
Office / Study / Den, Pantry, Island, Mezzanine, Cathedral ceiling, Second floor laundry room, Deck, Walk-in master bed., Bench seat(s), Built-ins, Shelves, Sloped ceiling, Ceiling over 8', Sliding barn door(s), Separate bath and shower, Double sinks, Open floor layout, Self-Build, Builder
Plan architectural style(s)
. Farmhouse, . American, Modern farmhouse, . Country, Trending, . Transitional
Similar plans
Previously Viewed Plans
Thank you for your comment! It must be approved before being put online, please allow a period of 24 hours.
Error with google reCaptcha! Try again
Here is a brief description of our different plan packages. Please select the plan package that suits your needs. You can change the package at the next step, if necessary.
PDF VERSION OF PLAN:
Complete digital version of plan (pdf format) sent by email (original plan format 18" x 24'' or 24" x 36'')
5 copies of plan + PDF:
Includes: 5 copies of plan, plan in PDF format (reduced size version), materials list.
Foundation type
Additional foundation types are available, a fee may apply. Please indicate your choice on the online order form, or to our customer service representative, when placing your house plan order.
If your desired foundation type is not available, please contact our customer service to receive your free plan modification quote.
Explanation of bonus space types
UNFINISHED BONUS ROOM
The bonus rooms are often planned above the garage and are accessible from the house. They are designed to be converted as an office, a laundry area, a bathroom, a library corner or even an additional bedroom for which homeowners must make sure to have a window that complies with current codes & standards.
STORAGE AREA
Often located above the garage, our storage areas are used only as storage and are usually accessible from the garage via a retractable staircase.
Do you like this plan but want it to be modified to suit your needs?
To add a garage, another bedroom, finish the basement or any other modification, click here and let us know about your desired changes and to get your free quote for the modification of your plan.
Conditions of use
Important copyright notice! Please take note of these copyright conditions before printing:
By printing this house plan, cottage or garage or the floorplan(s), you confirm being informed that every house plan on this website is the exclusive property of Drummond House
Plans and is protected by Canadian copyright law. You are aware that these prints cannot be used to build or even obtain a building permit. The graphic representations of these
models are offered by Drummond House Plans for the sole purpose of allowing you to notate modifications of a model and then take it to one of the Drummond House Plans Canadian dealers for
modification of the plan.
The purchase of a house plan, cottage or garage from Drummond House Plans is mandatory if you wish to build any of our models. The plan purchase allows you to build a single unit; you cannot resell or give your plan to anyone once the house, cottage or garage has been built. If you wish to build the same house, cottage or garage more than once, you need to obtain the licence to this effect. Please contact us for more details.
All plans from Drummond House Plans can only be modified by a licensed Drummond House Plan Canadian dealer. If any other business or individual with no affiliation to Drummond House Plans modifies a Drummond House Plan on your behalf, please ensure this business or individual has a licence to modify this specific plan or you will be subject to prosecution on the same level as the business or individual who modified or reproduced the plan.
For more details, do not hesitate to contact u by e-mail or by phone at 1-800-567-1413.
I agree to respect the conditions above to not reproduce, modify or build a model from Drummond House Plans without previously purchasing a complete house plan.


































