There are no shipping fees if you buy one of our 2 plan packages "PDF file format" or "5 sets of blueprints + PDF". Shipping charges may apply if you buy additional sets of blueprints.
House plan Belanger (3637)
Modern farmhouse plan with 2 to 4 bedrooms, garage, great living room with fireplace, cathedral and built-ins
Other useful information on this plan
Contemporary Farmhouse House Plan with Garage, 2 to 4 Bedrooms, and Optional Finished Basement
The stunning and spacious BELANGER house plan (#3637) offers 3,012 sq.ft. of living space, plus a garage and a large partially covered rear terrace. Notably, all ceilings on the main floor are 9 feet high, except for the living room, which features a dramatic cathedral ceiling soaring to 17 feet!
This modern Farmhouse style home combines the timeless charm of country living with sleek contemporary touches. Its balanced architecture and bright, open spaces make it a perfect choice for families seeking both elegance and functionality.
From the moment you step inside, the sense of space and refinement is undeniable, thanks to the 9-foot ceilings throughout the main floor. A generous mudroom, accessible from both the front entrance and the garage, makes everyday life easier and keeps the home organized.
At the heart of the home lies the spectacular living room, featuring a breathtaking cathedral ceiling and a warm fireplace flanked by built-in furniture. This inviting space flows seamlessly into the bright dining area, which opens onto the rear semi-covered terrace—the ideal spot for family gatherings and outdoor living. The kitchen is equally impressive, with a large central island, a spacious walk-in pantry, and extra storage conveniently located near the powder room.
Upstairs, the primary suite stands out with its refined design, complete with a private bathroom and an oversized walk-in closet, perfectly positioned for convenience. A versatile study is also located on this level and can easily be converted into an additional bedroom if needed. Functionality is enhanced with a laundry chute, connecting the living areas directly to the laundry room.
The rear terrace offers two distinct atmospheres: a covered section on the living room side for relaxing outdoors sheltered from the elements, and an open section by the dining room, perfect for alfresco meals.
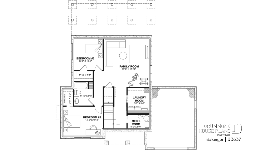
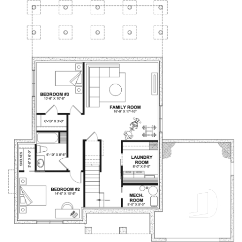
*Optional Finished Basement ($):
This model can be expanded with a finished basement, offering two additional bedrooms, a welcoming family room, a full bathroom, and a laundry area. A convenient laundry chute, connecting both levels, is also included.
Blending Farmhouse charm, contemporary design, and flexible layouts, this house plan is an excellent choice for anyone dreaming of a warm, practical, and stylish home designed for modern living.
---
*If you wish to purchase the finished basement plan, as presented on this plan page, please select this option in the shopping cart, in the "Selection of foundation type" section. If you do not select this option, you will receive the unfinished full basement option, at no extra charge.
Distinctive elements
Trendy Home Combining Farmhouse and Contemporary Style.
9-foot ceilings throughout the main floor for space and elegance, with cathedral ceiling in the living room.
Large, practical mudroom accessible from both the main entrance and the garage.
Living room with cathedral ceiling, warm fireplace, and built-in furniture on each side.
Inviting kitchen with spacious central island, large walk-in pantry, and additional storage near the powder room.
Bright dining area with direct access to the semi-covered rear porch.
Remarkable upstairs primary suite with private bathroom and ideally located walk-in closet.
Upstairs home office that can also serve as an additional bedroom.
Integrated laundry chute connecting directly to the laundry room.
Rear porch with two sections: one covered near the outdoor lounge and one open near the dining area.
Garage with direct access to the mudroom.
Rear terrace partially covered, perfect for enjoying the outdoors.
Unfinished basement.
---
*Optional Finished Basement ($):
Two additional bedrooms, perfect for family or guests.
Spacious family room, full bathroom, and laundry room.
Convenient laundry chute accessible from both the main floor and upper level.
---
*If you wish to purchase the finished basement plan, as presented on this plan page, please select this option in the shopping cart, in the "Selection of foundation type" section. If you do not select this option, you will receive the unfinished full basement option, at no extra charge.
Plan feature(s)
Laundry chute, Fireplace, Ceiling over 8', Master suite upstairs, Mud room, Split bedrooms, Deck, Bench seat(s), Cathedral ceiling, Built-ins, Pantry, Island, Double sinks, Office / Study / Den, Walk-in master bed., Bath in the shower
Plan architectural style(s)
Modern farmhouse, . American, . Farmhouse, . Transitional, . Country, . Modern rustic, Modern Craftsman
Similar plans
Previously Viewed Plans
Thank you for your comment! It must be approved before being put online, please allow a period of 24 hours.
Error with google reCaptcha! Try again
Here is a brief description of our different plan packages. Please select the plan package that suits your needs. You can change the package at the next step, if necessary.
PDF VERSION OF PLAN:
Complete digital version of plan (pdf format) sent by email (original plan format 18" x 24'' or 24" x 36'')
5 copies of plan + PDF:
Includes: 5 copies of plan, plan in PDF format (reduced size version), materials list.
Foundation type
Additional foundation types are available, a fee may apply. Please indicate your choice on the online order form, or to our customer service representative, when placing your house plan order.
If your desired foundation type is not available, please contact our customer service to receive your free plan modification quote.
Explanation of bonus space types
UNFINISHED BONUS ROOM
The bonus rooms are often planned above the garage and are accessible from the house. They are designed to be converted as an office, a laundry area, a bathroom, a library corner or even an additional bedroom for which homeowners must make sure to have a window that complies with current codes & standards.
STORAGE AREA
Often located above the garage, our storage areas are used only as storage and are usually accessible from the garage via a retractable staircase.
Do you like this plan but want it to be modified to suit your needs?
To add a garage, another bedroom, finish the basement or any other modification, click here and let us know about your desired changes and to get your free quote for the modification of your plan.
Conditions of use
Important copyright notice! Please take note of these copyright conditions before printing:
By printing this house plan, cottage or garage or the floorplan(s), you confirm being informed that every house plan on this website is the exclusive property of Drummond House
Plans and is protected by Canadian copyright law. You are aware that these prints cannot be used to build or even obtain a building permit. The graphic representations of these
models are offered by Drummond House Plans for the sole purpose of allowing you to notate modifications of a model and then take it to one of the Drummond House Plans Canadian dealers for
modification of the plan.
The purchase of a house plan, cottage or garage from Drummond House Plans is mandatory if you wish to build any of our models. The plan purchase allows you to build a single unit; you cannot resell or give your plan to anyone once the house, cottage or garage has been built. If you wish to build the same house, cottage or garage more than once, you need to obtain the licence to this effect. Please contact us for more details.
All plans from Drummond House Plans can only be modified by a licensed Drummond House Plan Canadian dealer. If any other business or individual with no affiliation to Drummond House Plans modifies a Drummond House Plan on your behalf, please ensure this business or individual has a licence to modify this specific plan or you will be subject to prosecution on the same level as the business or individual who modified or reproduced the plan.
For more details, do not hesitate to contact u by e-mail or by phone at 1-800-567-1413.
I agree to respect the conditions above to not reproduce, modify or build a model from Drummond House Plans without previously purchasing a complete house plan.




























