There are no shipping fees if you buy one of our 2 plan packages "PDF file format" or "5 sets of blueprints + PDF". Shipping charges may apply if you buy additional sets of blueprints.
House plan Stephenson (3868)
4 bedroom, 3 bathroom Cap Cod house plan, large kitchen with island, formal dining, living room, fireplace
Other useful information on this plan
Comfortable 4 bedroom cottage of Cape Cod inspiration
Motivated by comfort, this Drummond House Plan #3868 also named Stephenson is not only remarkable for its one of a kind exterior but also for its stylish Cape Cod style features mixed with a Craftsman touch which include brick-stone finish and imitation cedar shingle for the front elevation.
The inside is characterized by its 9’ high ceilings and the more than conveniently sized rooms.
One look and you will surely be amazed by the highly entertaining dining room, capable of seating up to 8 and invitingly situated near the main entrance towards the front of the home. More towards the back is the also wonderfully sized kitchen with an impressive center island that can greet up to 5 people as well as a walk-in style pantry. The living area that has abundant windows and a superb center fireplace.
The laundry area will be the envy of many for its size and well thought out design with independent toilet area and sink.
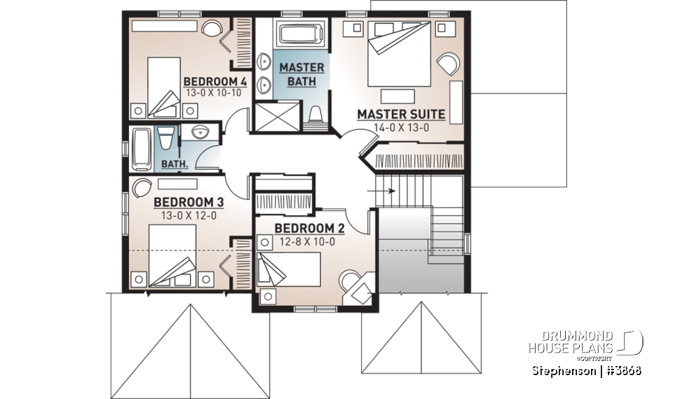
On the second level are 4 good sized bedrooms including 2 bathrooms with one that is private to the master bedroom and has a big separate shower as well as a separate bath.
To complete this beautiful Cape Cod inspired home is a single car garage and a basement to be completed according to your needs.
Distinctive elements
Ceiling at 8'-8`` throughout the first level providing access for false beams if you wish.
Cathedral ceiling in the main entry with a lateral window in the ceiling to bring in more light in the stairwell.
Superb family room with abundant fenestration, a fireplace and a triple garden door with access to the rear.
Vast kitchen open to the family room with a lunch-counter with 5 stools.
Comfortable dining room suggesting a table for 8 people.
Remarkable laundry room on the first level.
Four large bedrooms on the second level, one of which is a master suite with a private bathroom.
Plan feature(s)
Fireplace, Island, Pantry, Gound floor laundry room, Formal dining room, Ceiling over 8', Sloped ceiling, Separate bath and shower, Double sinks, 2-Story foyer
Plan architectural style(s)
. Craftsman / Northwest, . Cape Cod, . Transitional, Modern Craftsman, . Country, . American
Similar plans
Previously Viewed Plans
Questions and comments
June 29
Manon Bachand
Je me demandais a combien on pouvait s'attendre à payer pour la construction de cette maison. Nous sommes à la recherche d'un terrain en plus. Je me demandais si le sous-sol était inclus dans le plan de construction de base.
Merci
May 21
M TOM
Do you sale this plan for west Africa ?
May 21
Customer service
Good day and thank you for your interest in this plan.
If you are planning to build this home in west Africa, I would suggest the CAD version as this electronic file can be modified to suit regional and municipal requirements.
Please let me know if I can further assist you
Regards
Deb
Thank you for your comment! It must be approved before being put online, please allow a period of 24 hours.
Error with google reCaptcha! Try again
Here is a brief description of our different plan packages. Please select the plan package that suits your needs. You can change the package at the next step, if necessary.
PDF VERSION OF PLAN:
Complete digital version of plan (pdf format) sent by email (original plan format 18" x 24'' or 24" x 36'')
5 copies of plan + PDF:
Includes: 5 copies of plan, plan in PDF format (reduced size version), materials list.
Foundation type
Additional foundation types are available, a fee may apply. Please indicate your choice on the online order form, or to our customer service representative, when placing your house plan order.
If your desired foundation type is not available, please contact our customer service to receive your free plan modification quote.
Explanation of bonus space types
UNFINISHED BONUS ROOM
The bonus rooms are often planned above the garage and are accessible from the house. They are designed to be converted as an office, a laundry area, a bathroom, a library corner or even an additional bedroom for which homeowners must make sure to have a window that complies with current codes & standards.
STORAGE AREA
Often located above the garage, our storage areas are used only as storage and are usually accessible from the garage via a retractable staircase.
Do you like this plan but want it to be modified to suit your needs?
To add a garage, another bedroom, finish the basement or any other modification, click here and let us know about your desired changes and to get your free quote for the modification of your plan.
Conditions of use
Important copyright notice! Please take note of these copyright conditions before printing:
By printing this house plan, cottage or garage or the floorplan(s), you confirm being informed that every house plan on this website is the exclusive property of Drummond House
Plans and is protected by Canadian copyright law. You are aware that these prints cannot be used to build or even obtain a building permit. The graphic representations of these
models are offered by Drummond House Plans for the sole purpose of allowing you to notate modifications of a model and then take it to one of the Drummond House Plans Canadian dealers for
modification of the plan.
The purchase of a house plan, cottage or garage from Drummond House Plans is mandatory if you wish to build any of our models. The plan purchase allows you to build a single unit; you cannot resell or give your plan to anyone once the house, cottage or garage has been built. If you wish to build the same house, cottage or garage more than once, you need to obtain the licence to this effect. Please contact us for more details.
All plans from Drummond House Plans can only be modified by a licensed Drummond House Plan Canadian dealer. If any other business or individual with no affiliation to Drummond House Plans modifies a Drummond House Plan on your behalf, please ensure this business or individual has a licence to modify this specific plan or you will be subject to prosecution on the same level as the business or individual who modified or reproduced the plan.
For more details, do not hesitate to contact u by e-mail or by phone at 1-800-567-1413.
I agree to respect the conditions above to not reproduce, modify or build a model from Drummond House Plans without previously purchasing a complete house plan.










June 29
Manon Bachand
Je me demandais a combien on pouvait s'attendre à payer pour la construction de cette maison. Nous sommes à la recherche d'un terrain en plus. Je me demandais si le sous-sol était inclus dans le plan de construction de base.
Merci